Скачать Типовой проект 221-1-706.92 Альбом 3. Отопление, вентиляция. Внутренний водопровод и канализацияДата актуализации: 10.08.2017 Типовой проект 221-1-706.92
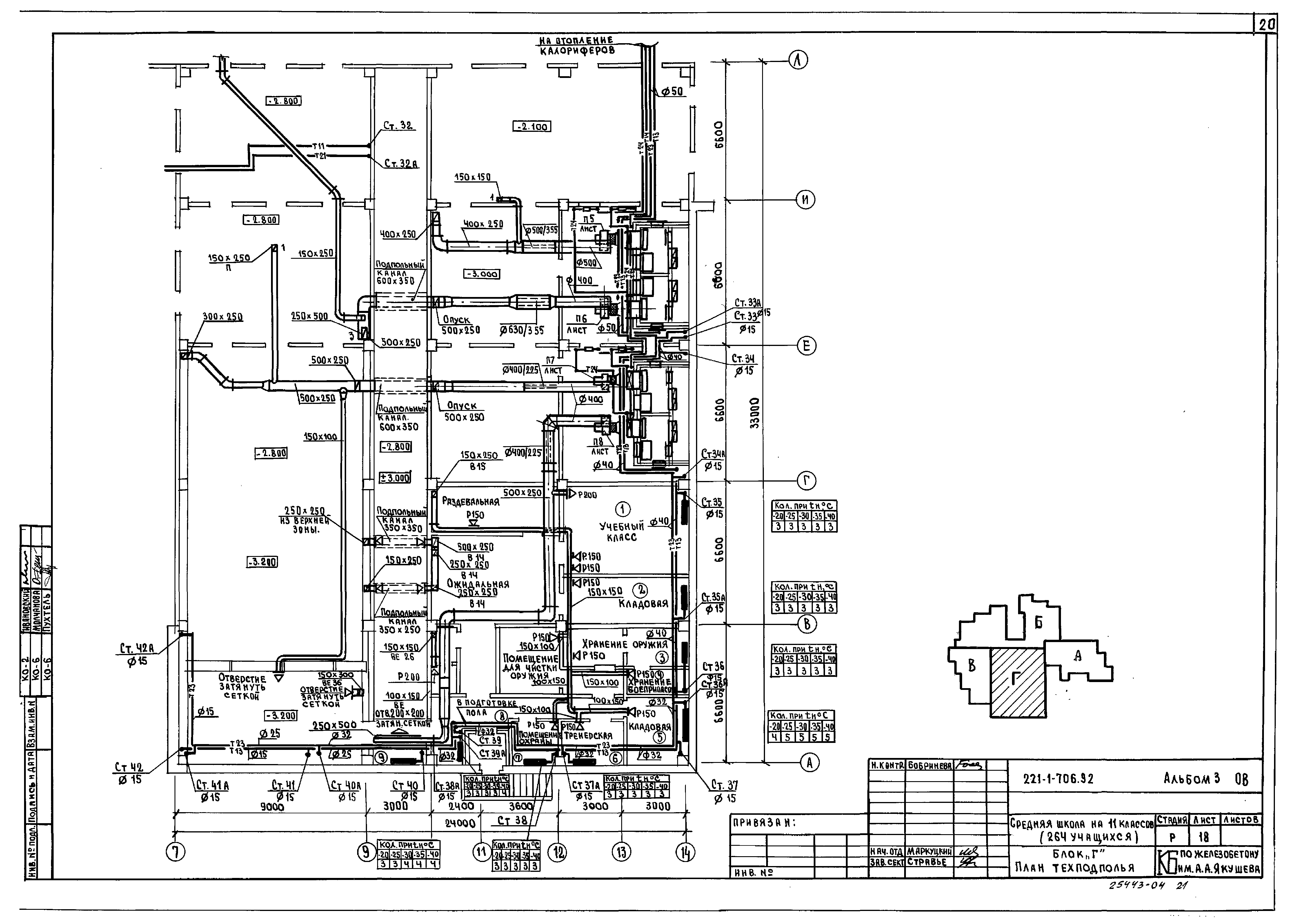
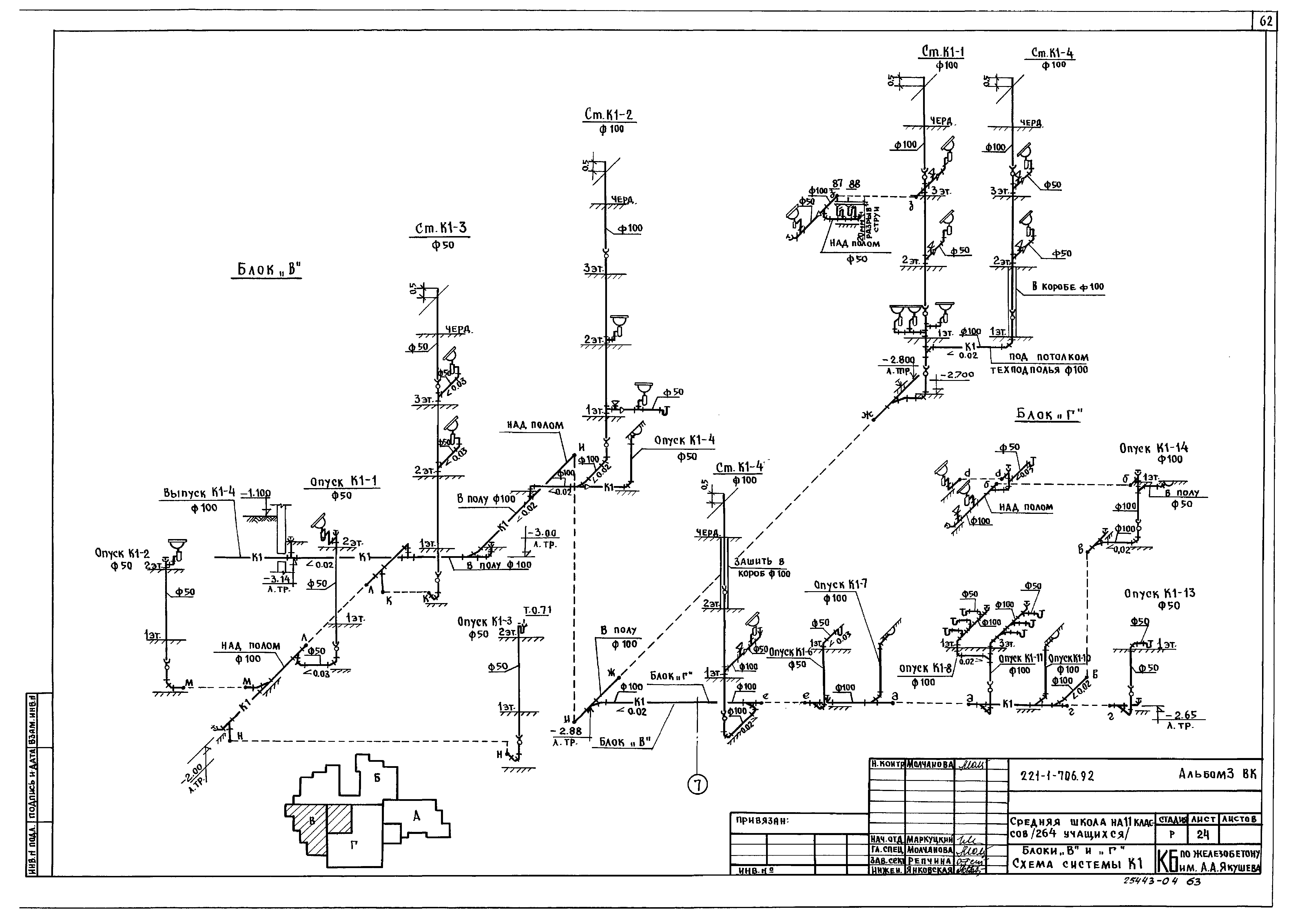
Альбом 3. Отопление, вентиляция. Внутренний водопровод и канализацияОбозначение: | Типовой проект 221-1-706.92 | Обозначение англ: | 221-1-706.92 | Статус: | не определен законодательством | Название рус.: | Альбом 3. Отопление, вентиляция. Внутренний водопровод и канализация | Дата добавления в базу: | 01.09.2013 | Дата актуализации: | 05.05.2017 | Дата введения: | 30.06.1992 | Оглавление: | Содержание альбома Отопление и вентиляция Общие данные (начало) Общие данные (продолжение) Общие данные (окончание) Блок "Б". План техподполья Блок "А". План 1 этажа Блок "А". План 2 этажа Блок "А". План чердака Блок "Б". План техподполья Блок "Б". План 1 этажа Блок "Б". План 2 этажа Блок "Б". План 3 этажа Блок "Б". План чердака Блок "В". План техподполья Блок "В". Планы 1 и 2 этажа Блок "В". План чердака Блок "Г". План техподполья Блок "Г". План 1 этажа Блок "Г". План 2 этажа Блок "Г". План чердака Схема системы отопления блоков "Б" и "В" Схема системы отопления блоков "А" и "Б" Схема системы отопления блока "Г". Узел управления Схемы стояков отопления 1-25 Схемы стояков отопления 26-50 Схема системы теплоснабжения установок П1-П8 Схемы систем вентиляции П1,П2,П4,П8 Схемы систем вентиляции П3,П5-П7 Схемы систем вентиляции В1-В15 Схемы систем вентиляции ВЕ1-ВЕ18 Схемы систем вентиляции ВЕ19-ВЕ36 Установки систем П1,П5-П8 Установки систем П2,П3 Спецификация установок П1-П3,П5 Спецификация установок П6-П8 Водопровод и канализация Общие данные Блок "А". План техподполья с системами В1,Т3,Т4 Блок "А". План техподполья с системой К1 Блок "А". План 1-го этажа с системами В1,Т3,К1 Блок "А". План 2-го этажа с системами В1,Т3,К1 Блок "Б". План техподполья с системами В1,Т3,Т4 Блок "Б". План техподполья с системой К1 Блок "Б". План 1-го этажа с системами В1,Т3,Т4,К1 Блок "Б". План 2-го этажа с системами В1,Т3,Т4,К1 Блоки "Б","В". План 3-го этажа с системами В1,Т3,К1,К3 Блок "В". План техподполья с системами В1,Т3,Т4,К1,К3 Блок "В". План 1-го и 2-го этажей с системами В1,Т3,К1,К3 Блок "В". План пищеблока с системами В1,Т3,К1,К3 Блок "Г". План техподполья с системами В1,Т3,Т4 Блок "Г". План техподполья с системой К1. Схема выпуска К1-5 Блок "Г". План 1-го этажа с системами В1,Т3,Т4,К1 Блок "Г". План 2-го этажа с системами В1,Т3,Т4,К1 Блок "А". Схема систем В1,Т3,Т4 Блок "Б". Схема систем В1,Т3,Т4 Блок "В". Схема систем В1,Т3,Т4 Блок "Г". Схема систем В1,Т3,Т4 Блоки "А" и "Г". Схема системы К1 Блок "Б". Схемы системы К1 Блоки "В" и "Г". Схема системы К1 Блок "В". Схемы системы К3 Блок "Г". Бассейн. Общие данные План и схема трубопроводов и оборудования водоподготовки воды ванны бассейна Схема обвязки ванны бассейна. Установка МХ-Ф-1 (расположения технического оборудования) | Разработан: | КБ по железобетону им. А.А. Якушева
| Утверждён: | 14.04.1989 Госкомархстрой РСФСР (Russian Federation Goskomarkhstroy 108)
| Расположен в: |
|
                                                                 
|