Информационная система
«Ёшкин Кот»

Скачать базу одним архивом
Скачать обновления
История создания базы
Карта сайта

Скачать Типовой проект 290-1-42.84 Альбом I. Архитектурно-строительная часть. Спецификация оборудования. Ведомость потребности в материалах

Дата актуализации: 10.08.2017

Типовой проект 290-1-42.84

Альбом I. Архитектурно-строительная часть. Спецификация оборудования. Ведомость потребности в материалах

Обозначение: Типовой проект 290-1-42.84
Обозначение англ: 290-1-42.84
Статус:не определен законодательством
Название рус.:Альбом I. Архитектурно-строительная часть. Спецификация оборудования. Ведомость потребности в материалах
Дата добавления в базу:01.09.2013
Дата актуализации:05.05.2017
Дата введения:16.11.1984
Оглавление:Титульный лист
Общие данные (начало)
Общие данные (продолжение)
Общие данные (окончание)
Ведомость чертежей комплекта АС
План спортядра с беговой дорожкой 300 м
План северного сектора. План полосы препятствий ГТО
План южного сектора
Вертикальная планировка. Типы покрытий
Кассета и брус толчковый. Яма для прыжков в длину. Площадка для толкания ядра. Фундамент Ф-1
Полоса препятствий ГТО. Бум, бревно, разрушенная лестница. Ворота для пролезания. Узлы 1-7
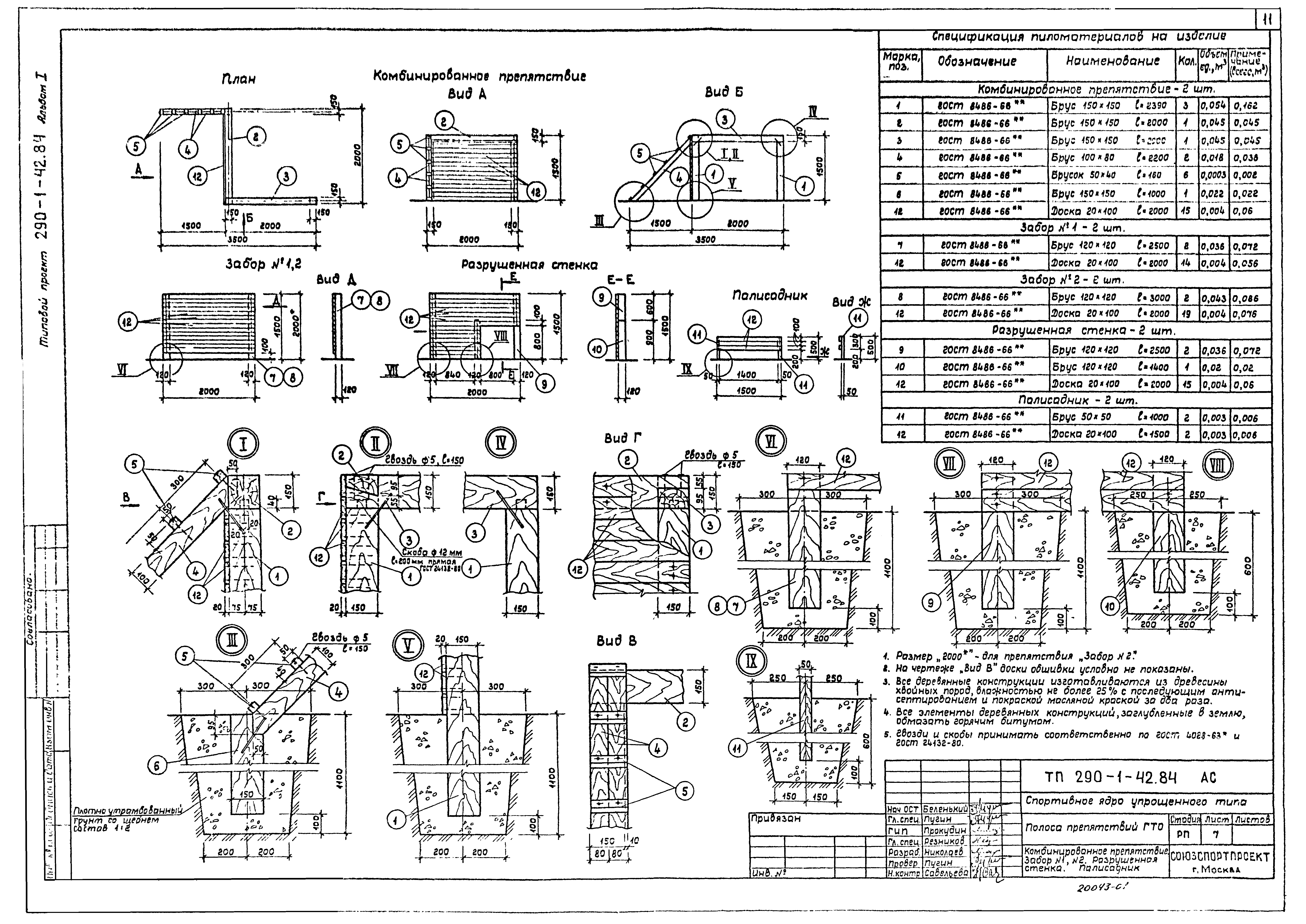
Полоса препятствий ГТО. Комбинированное препятствие. Забор № 1, № 2. Разрушенная стенка. Палисадник
Полоса препятствий ГТО. Лабиринт. Фундамент ф-г. Яма с песком. Ров №1,№2,№3
План спортядра с сетями дренажа. План покрытий
АС.СО Спецификация оборудования к основному комплекту АС
АС.ВМ Ведомость потребности в материалах
Разработан: Спортпроект
Утверждён:06.02.1984 Госгражданстрой (Gosgrazhdanstroy 41)
Расположен в:Техническая документация Строительство Справочные документы Типовые строительные конструкции, изделия и узлы Общероссийский строительный каталог Общественные здания в городах и поселках городского типа Физкультурно-оздоровительные и спортивные здания и сооружения Открытые спортивно-физкультурные сооружения
Типовой проект 290-1-42.84Типовой проект 290-1-42.84Типовой проект 290-1-42.84Типовой проект 290-1-42.84Типовой проект 290-1-42.84Типовой проект 290-1-42.84Типовой проект 290-1-42.84Типовой проект 290-1-42.84Типовой проект 290-1-42.84Типовой проект 290-1-42.84Типовой проект 290-1-42.84Типовой проект 290-1-42.84Типовой проект 290-1-42.84Типовой проект 290-1-42.84Типовой проект 290-1-42.84

© 2013 Ёшкин Кот :-) Карта сайта