Информационная система
«Ёшкин Кот»

Скачать базу одним архивом
Скачать обновления
История создания базы
Карта сайта

Скачать Типовой проект 184-000-382.86 Альбом 1. Архитектурно-строительные решения. Отопление и вентиляция. Внутренние водопровод и канализация. Электротехнические решения. Связь и сигнализация

Дата актуализации: 10.08.2017

Типовой проект 184-000-382.86

Альбом 1. Архитектурно-строительные решения. Отопление и вентиляция. Внутренние водопровод и канализация. Электротехнические решения. Связь и сигнализация

Обозначение: Типовой проект 184-000-382.86
Обозначение англ: 184-000-382.86
Статус:не действует
Название рус.:Альбом 1. Архитектурно-строительные решения. Отопление и вентиляция. Внутренние водопровод и канализация. Электротехнические решения. Связь и сигнализация
Дата добавления в базу:01.09.2013
Дата актуализации:05.05.2017
Оглавление:Обложка
Титульный лист
Содержание альбома
Архитектурно-строительные решения
Примеры компоновки жилого дома и хозблока
Общие данные (начало)
Общие данные (продолжение)
Общие данные (окончание)
Общий вид жилого дома
Планы
Вариант с комбинированным отоплением
Фасады
Фасады варианта с комбинированным отоплением
Фрагмент фасада
Разрезы
Разрезы варианта с комбинированным отоплением
Фундаменты. Планы, сечения
Кладочный план стен. Столярные изделия, полы
Маркировочные планы перемычек
Перекрытия
Изделия деревянные и металлические
Щиты мансарды. Детали перекрытий
Балкон. Детали перекрытий
Стропила, кровля
Стропила. Детали
Стропила. Разрезы, детали
Экспликация полов. Ведомость отделки помещений
Установка оконных блоков и ставней
Установка дверных блоков и ставней
Лестница
Лестница. Детали
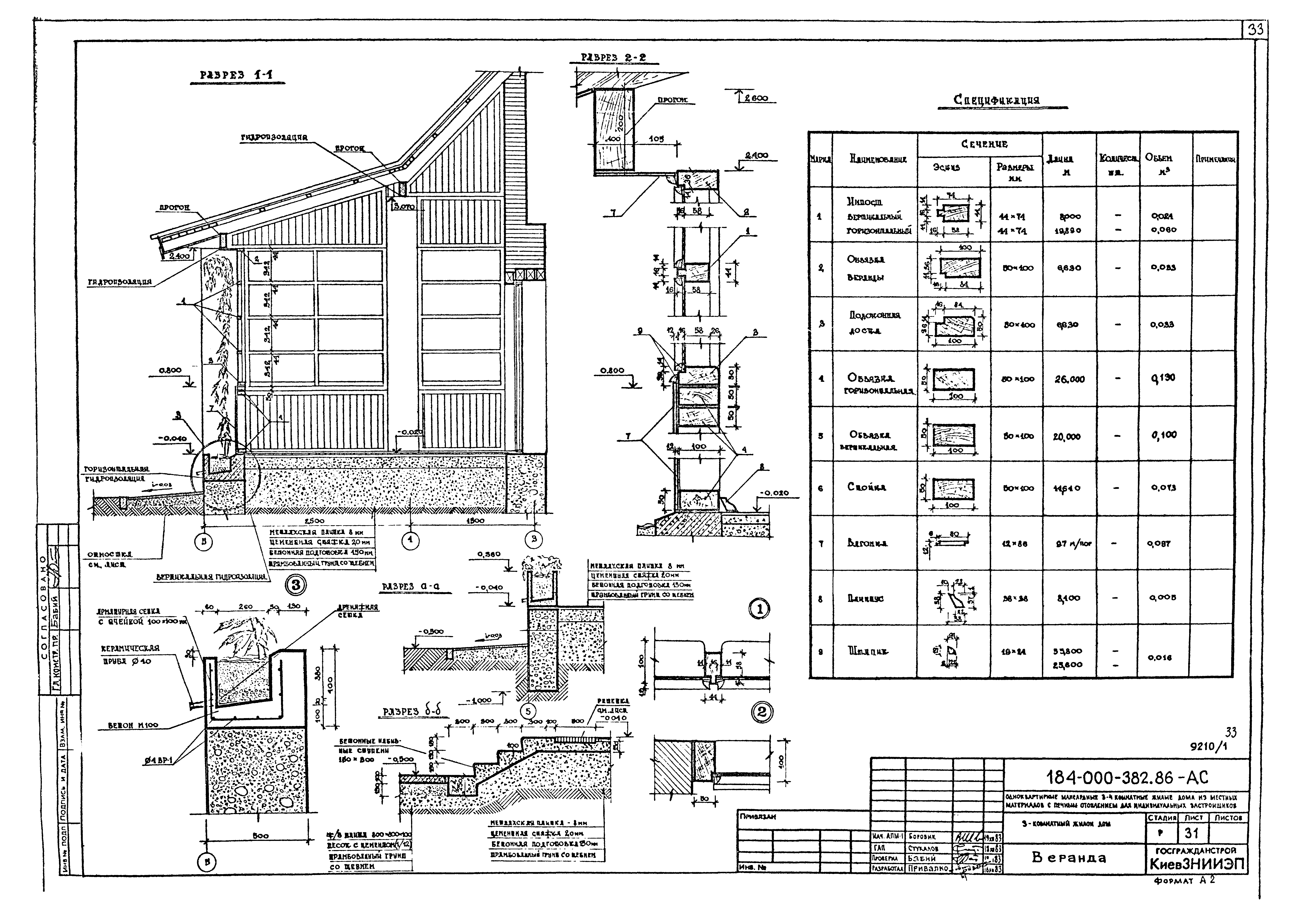
Веранда
Печное отопление
Комбинированное отопление (печное и водяное)
Установка печей. Дымовентиляционные каналы
Отопительно-варочный агрегат с щитком
Двухъярусная отопительная печь с щитком
Компоновка печи с кухонной мебелью
Вариант компоновки кухонного оборудования
Вариант устройства печи-камина в общей комнате
Конструкция печи-камина с воздушным обогревом
Бойлер емк. 145 л. Змеевик Q=11990 ккал/ч
Водозапасный бак в утепленной будке на чердаке
Отопление и вентиляция
Общие данные
Планы 1 этажа и мансарды. Схемы систем отопления. Комплектовочная ведомость радиаторов
Водоснабжение и канализация
Общие данные
Планы 1 этажа и мансарды. Схемы В1,Т3 и К1. Спецификация
Электроосвещение
Общие данные
План 1 этажа и мансарды. Электрические сети
Связь и сигнализация
Общие данные
Разработан: КиевЗНИИЭП
Утверждён:31.07.1985 Госгражданстрой (Gosgrazhdanstroy 180)
Расположен в:Техническая документация Строительство Справочные документы Типовые строительные конструкции, изделия и узлы Общероссийский строительный каталог Жилые здания для строительства в сельской местности Жилые дома со стенами из местных материалов Серия 000
Типовой проект 184-000-382.86Типовой проект 184-000-382.86Типовой проект 184-000-382.86Типовой проект 184-000-382.86Типовой проект 184-000-382.86Типовой проект 184-000-382.86Типовой проект 184-000-382.86Типовой проект 184-000-382.86Типовой проект 184-000-382.86Типовой проект 184-000-382.86Типовой проект 184-000-382.86Типовой проект 184-000-382.86Типовой проект 184-000-382.86Типовой проект 184-000-382.86Типовой проект 184-000-382.86Типовой проект 184-000-382.86Типовой проект 184-000-382.86Типовой проект 184-000-382.86Типовой проект 184-000-382.86Типовой проект 184-000-382.86Типовой проект 184-000-382.86Типовой проект 184-000-382.86Типовой проект 184-000-382.86Типовой проект 184-000-382.86Типовой проект 184-000-382.86Типовой проект 184-000-382.86Типовой проект 184-000-382.86Типовой проект 184-000-382.86Типовой проект 184-000-382.86Типовой проект 184-000-382.86Типовой проект 184-000-382.86Типовой проект 184-000-382.86Типовой проект 184-000-382.86Типовой проект 184-000-382.86Типовой проект 184-000-382.86Типовой проект 184-000-382.86Типовой проект 184-000-382.86Типовой проект 184-000-382.86Типовой проект 184-000-382.86Типовой проект 184-000-382.86Типовой проект 184-000-382.86Типовой проект 184-000-382.86Типовой проект 184-000-382.86Типовой проект 184-000-382.86Типовой проект 184-000-382.86Типовой проект 184-000-382.86Типовой проект 184-000-382.86Типовой проект 184-000-382.86Типовой проект 184-000-382.86Типовой проект 184-000-382.86

© 2013 Ёшкин Кот :-) Карта сайта