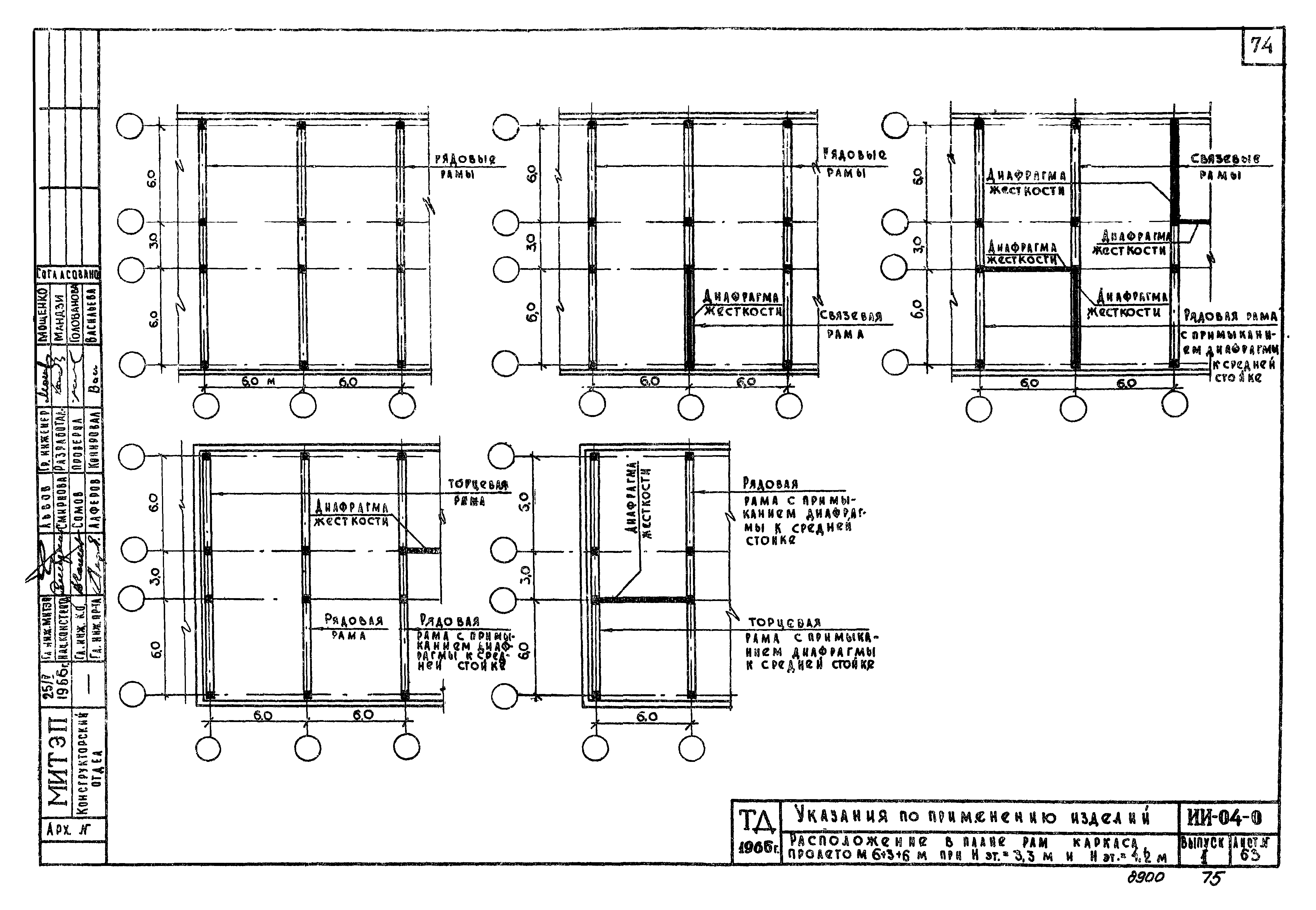
Оглавление: | Перечень серий и выпусков Содержание выпуска Указания по применению изделий Приложения Показатели расхода материалов Этажность зданий, при которой установка диафрагм жесткости в плоскости основных рам не требуется Расположение в плане вертикальных диафрагм, устанавливаемых в плоскости основных рам поперечного каркаса Расположение в плане вертикальных диафрагм, устанавливаемых из плоскости основных рам продольного каркаса Расположение в плане вертикальных диафрагм, устанавливаемых из плоскости основных рам поперечного каркаса Монтажные схемы вертикальных диафрагм жесткости График несущей способности колонн принятых сечений Нагрузки и огибающие эпюры моментов ригелей Несущая способность фундаментов при установке их на грунт Графики несущей способности фундаментов ФК~10,ФК-13 при R в степени н гp=2,5 кг/см² Графики несущей способности фундаментов ФК-17,ФК-20 при R в степени н гp=2,5 кг/см² Несущая способность фундамента ФК-10 при использований его как башмака Монтажные схемы рам Пояснительная записка Монтажные схемы рам 6 - 6н Расположение в плане рам каркаса, пролетом 6-6 и при Нэт=3,3м и Нэт-4,2 м. Схемы загружения поперечных рам каркаса 6-6м Нагрузки на рамы каркаса Монтажные схемы рам /6-6/x1 при Нэт=3,3 м Монтажные схемы рам /6-6/x2 при Нэт=3,3 м Монтажные схемы рам /6-6/x3 при Нэт=3,3 м Монтажные схемы рам /6-6/x4 при Нэт=3,3 м Монтажные схемы стоек с примыканием диафрагм в рамах пролетом 6-6 м при Нэт=3,3 м /здания без подвала/ Монтажные схемы рам /6-6/x1-П при Нэт=3,3 м Монтажные схемы рам /6-6/x2-П при Нэт=3,3 м Монтажные схемы рам /6-6/x3-П при Нэт=3,3 м Монтажные схемы рам /6-6/x4-П при Нэт=3,3 м Монтажные схемы стоек с примыканием диафрагм, в рамах пролетом 6-6 м при Нэт=3,3 м /здания с подвалом/ Монтажные схемы рам /6-6/x1-ТП при Нэт=3,3 м Монтажные схемы рам /6-6/x2-ТП при Нэт=3,3 м Монтажные схемы рам /6-6/x3-ТП при Нэт=3,3 м Монтажные схемы рам /6-6/x4-ТП при Нэт=3,3 м Монтажные схемы стоек с примыканием диафрагм в рамах пролетом 6-6 м при Нэт=3,3 м /здания с техплдпольем/ Монтажные схемы рам /6-6/x1 при Нэт=4,2 м Монтажные схемы рам /6-6/x2 при Нэт=4,2 м Монтажные схемы рам /6-6/x3 при Нэт=4,2 м Монтажные схемы рам /6-6/x4 при Нэт=4,2 м Монтажные схемы стоек с примыканием диафрагм в рамах пролетом 6-6 м при Нэт=4,2 м. /здания без подвала/ Монтажные схемы рам /6-6/x1-П при Нэт=4,2 м Монтажные схемы рам /6-6/x2-П при Нэт=4,2 м Монтажные схемы рам /6-6/x3-П при Нэт=4,2 м Монтажные схемы рам /6-6/x4-П при Нэт=4,2 м Монтажные схемы стоек с примыканием диафрагм в рамах пролетом 6-6 м при Нэт=4,2 м. /здания с подвалом/ Монтажные схемы рам /6-6/x1-ТП при Нэт=4,2 м Монтажные схемы рам /6-6/x2-ТП при Нэт=4,2 м Монтажные схемы рам /6-6/x3-ТП при Нэт=4,2 м Монтажные схемы стоек с примыканием диафрагм, в рамах пролетом 6-6 м при Нэт=4,2 м /здания с техплдпольем/ Монтажные схемы рам каркаса пролетом 6-3-6 м Расположение в плане рам каркаса пролетом 6-3-6м при Нэт=3,3 м и Нэт=4,2 м Схемы загружения поперечных рам каркаса 6-3-6 м. Нагрузки на рамы каркаса Монтажные схемы рам /6-3-6/x1 при Нэт=3,3 м Монтажные схемы рам /6-3-6/x2 при Нэт=3,3 м Монтажные схемы рам /6-3-6/x3 при Нэт=3,3 м Монтажные схемы рам /6-3-6/x4 при Нэт=3,3 м Монтажные схемы сток с примыканием диафрагм в рамах пролетом 6-3-6 при Нэт=3,3 /здания без подвала/ Монтажные схемы рам /6-3-6/x1-П при Нэт=3,3 м Монтажные схемы рам /6-3-6/x2-П при Нэт=3,3 м Монтажные схемы рам /6-3-6/x3-П при Нэт=3,3 м Монтажные схемы рам /6-3-6/x4-П при Нэт=3,3 м Монтажные схемы сток с примыканием диафрагм в рамах пролетом 6-3-6 при Нэт=3,3 /здания с подвалом/ Монтажные схемы рам /6-3-6/x1-ТП при Нэт=3,3 м Монтажные схемы рам /6-3-6/x2-ТП при Нэт=3,3 м Монтажные схемы рам /6-3-6/x3-ТП при Нэт=3,3 м Монтажные схемы рам /6-3-6/x4-ТП при Нэт=3,3 м Монтажные схемы сток с примыканием диафрагм в рамах пролетом 6-3-6 при Нэт=3,3 /здания с техподпольем/ Монтажные схемы рам /6-3-6/x1 при Нэт=4,2 м Монтажные схемы рам /6-3-6/x2 при Нэт=4,2 м Монтажные схемы рам /6-3-6/x3 при Нэт=4,2 м Монтажные схемы рам /6-3-6/x4 при Нэт=4,2 м Монтажные схемы сток с примыканием диафрагм в рамах пролетом 6-3-6 при Нэт=4,2 /здания без подвала/ Монтажные схемы рам /6-3-6/x1-П при Нэт=4,2 м Монтажные схемы рам /6-3-6/x2-П при Нэт=4,2 м Монтажные схемы рам /6-3-6/x3-П при Нэт=4,2 м Монтажные схемы рам /6-3-6/x4-П при Нэт=4,2 м Монтажные схемы сток с примыканием диафрагм в рамах пролетом 6-3-6 при Нэт=4,2 /здания с подвалом/ Монтажные схемы рам /6-3-6/x1-ТП при Нэт=4,2 м Монтажные схемы рам /6-3-6/x2-ТП при Нэт=4,2 м Монтажные схемы рам /6-3-6/x3-ТП при Нэт=4,2 м Монтажные схемы сток с примыканием диафрагм в рамах пролетом 6-3-6 при Нэт=4,2 /здания с техподпольем/ Монтажные схемы рам 6хη Расположение рам каркаса, пролетом 6мхη при Нэт=3,3 м и Нэт=4,2 м Схемы загружения рам каркаса 6мхη Нагрузки на рамы каркаса Монтажные схемы рам /6хη/х1 при Нэт=3,3 м. Монтажные схемы рам /6хη/х2 при Нэт=3,3 м. Монтажные схемы рам /6хη/х3 при Нэт=3,3 м. Монтажные схемы рам /6хη/х4 при Нэт=3,3 м. Монтажные схемы стоек с примыканием диафрагм в рамах пролетом 6мхη при Нэт=3,3 м /здания без подвала/ Монтажные схемы рам /6хη/х1-П при Нэт=3,3 м. Монтажные схемы рам /6хη/х2-П при Нэт=3,3 м. Монтажные схемы рам /6хη/х3-П при Нэт=3,3 м. Монтажные схемы рам /6хη/х4-П при Нэт=3,3 м. Монтажные схемы стоек с примыканием диафрагм в рамах пролетом 6мхη при Нэт=3,3 м /здания с подвалом/ Монтажные схемы рам /6хη/х1-ТП при Нэт=3,3 м. Монтажные схемы рам /6хη/х2-ТП при Нэт=3,3 м. Монтажные схемы рам /6хη/х3-ТП при Нэт=3,3 м. Монтажные схемы рам /6хη/х4-ТП при Нэт=3,3 м. Монтажные схемы стоек с примыканием диафрагм в рамах пролетом 6мхη при Нэт=3,3 м /здания с техподпольем/ Монтажные схемы рам /6хη/х1 при Нэт=4,2 м Монтажные схемы рам /6хη/х2 при Нэт=4,2 м Монтажные схемы рам /6хη/х3 при Нэт=4,2 м Монтажные схемы рам /6хη/х4 при Нэт=4,2 м Монтажные схемы стоек с примыканием диафрагм в рамах пролетом 6мхη при Нэт=4,2 м /здания без подвала/ Монтажные схемы рам /6хη/х1-П при Нэт=4,2 м. Монтажные схемы рам /6хη/х2-П при Нэт=4,2 м. Монтажные схемы рам /6хη/х3-П при Нэт=4,2 м. Монтажные схемы рам /6хη/х4-П при Нэт=4,2 м. Монтажные схемы стоек с примыканием диафрагм в рамах пролетом 6мхη при Нэт=4,2 м /здания с подвалом/ Монтажные схемы рам /6хη/х1-ТП при Нэт=4,2 м. Монтажные схемы рам /6хη/х2-ТП при Нэт=4,2 м. Монтажные схемы рам /6хη/х3-ТП при Нэт=4,2 м. Монтажные схемы стоек с примыканием диафрагм в рамах пролетом 6мхη при Нэт=4,2 м /здания с техподпольем/ Монтажные схемы лестничных рам Расположение в плане лестничных рам каркаса пролетом 6-6 м при Нэт=3,3 м и Нэт=4,2 м Схемы эагружения лестничных поперечных рам каркаса Нагрузки на лестничные рамы каркаса Монтажные схемы лестничных рам /6-6/х2 Нэт=3,3 м. /рамы примыкают к лестнице/ Монтажные схемы лестничных рам 6x2 при Н эт=3,3 м. Монтажные схемы лестничных рам /6-6/х2 при Нэт=3,3 м /рамы не примыкают к лестнице/ Монтажные схемы лестничных рам /6-6/х3 при Нэт=3,3 м /рамы примыкают к лестнице/ Монтажные схемы лестничных рам 6x3 при Нэт=3,3 м Монтажные схемы лестничных рам /6-6/х3 при Нэт=3,3 м /рамы не примыкают к лестнице/ Монтажные схемы лестничных рам /6-6/х4 при Нэт=3,3 м /рамы примыкают к лестнице/ Монтажные схемы лестничных рам 6x4 при Нэт=3,3 м Монтажные схемы лестничных рам /6-6/х4 при Нэт=3,3 м /рамы не примыкают к лестнице/ Монтажные схемы лестничных рам /6-6/х1-П при Нэт=3,3 м /рамы примыкают к лестнице/ Монтажные схемы лестничных рам 6х1-П при Нэт=3,3 м Монтажные схемы лестничных рам /6-6/х1-П при Нэт=3,3 м /рамы не примыкают к лестнице/ Монтажные схемы лестничных рам /6-6/х2-П при Нэт=3,3 м /рамы примыкают к лестнице/ Монтажные схемы лестничных рам 6x2-П при Нэт=3,3 м Монтажные схемы лестничных рам /6-6/х2-П при Нэт=3,3 м /рамы не примыкают к лестнице/ Монтажные схемы лестничных рам /6-6/х3-П при Нэт=3,3 м /рамы примыкают к лестнице/ Монтажные схемы лестничных рам 6x3-П при Нэт=3,3 м Монтажные схемы лестничных рам /6-6/х3-П при Нэт=3,3 м /рамы не примыкают к лестнице/ Монтажные схемы лестничных рам /6-6/х4-П при Нэт=3,3 м /рамы примыкают к лестнице/ Монтажные схемы лестничных рам 6x4-П при Нэт=3,3 м Монтажные схемы лестничных рам /6-6/х4-П при Нэт=3,3 м /рамы не примыкают к лестнице/ Монтажные схемы лестничных рам /6-6/х1-ТП при Нэт=3,3 м /рамы примыкают к лестнице/ Монтажные схемы лестничных рам 6x1-ТП при Нэт=3,3 м Монтажные схемы лестничных рам /6-6/х1-ТП при Нэт=3,3 м /рамы не примыкают к лестнице/ Монтажные схемы лестничных рам /6-6/х2-ТП при Нэт=3,3 м /рамы примыкают к лестнице/ Монтажные схемы лестничных рам /6x2/-ТП при Нэт=3,3 м Монтажные схемы лестничных рам /6-6/х2-ТП при Нэт=3,3 м /рамы не примыкают к лестнице/ Монтажные схемы лестничных рам /6-6/х3-ТП при Нэт=3,3 м /рамы примыкают к лестнице/ Монтажные схемы лестничных рам /6x3/-ТП при Нэт=3,3 м Монтажные схемы лестничных рам /6-6/х3-ТП при Нэт=3,3 м /рамы не примыкают к лестнице/ Монтажные схемы лестничных рам /6-6/х4-ТП при Нэт=3,3 м /рамы примыкают к лестнице/ Монтажные схемы лестничных рам /6x4/-ТП при Нэт=3,3 м Монтажные схемы лестничных рам /6-6/х4-ТП при Нэт=3,3 м /рамы не примыкают к лестнице/ Монтажные схемы лестничных рам /6-6/х2 при Нэт=4,2 м /рамы примыкают к лестнице/ Монтажные схемы лестничных рам 6x2 при Нэт=4,2 м Монтажные схемы лестничных рам /6-6/х2 при Нэт=4,2 м /рамы не примыкают к лестнице/ Монтажные схемы лестничных рам /6-6/х3 при Нэт=4,2 м /рамы примыкают к лестнице/ Монтажные схемы лестничных рам 6x3 при Нэт=4,2 м Монтажные схемы лестничных рам /6-6/х3 при Нэт=4,2 м /рамы не примыкают к лестнице/ Монтажные схемы лестничных рам /6-6/х4 при Нэт=4,2 м /рамы примыкают к лестнице/ Монтажные схемы лестничных рам 6x4 при Нэт=4,2 м Монтажные схемы лестничных рам /6-6/х4 при Нэт=4,2 м /рамы не примыкают к лестнице/ Монтажные схемы лестничных рам /6-6/х1-П при Нэт=4,2 м /рамы примыкают к лестнице/ Монтажные схемы лестничных рам 6x1-П при Нэт=4,2 м Монтажные схемы лестничных рам /6-6/х1-П при Нэт=4,2 м /рамы не примыкают к лестнице/ Монтажные схемы лестничных рам /6-6/х2-П при Нэт=4,2 м /рамы примыкают к лестнице/ Монтажные схемы лестничных рам 6x2-П при Нэт=4,2 м Монтажные схемы лестничных рам /6-6/х2-П при Нэт=4,2 м /рамы не примыкают к лестнице/ Монтажные схемы лестничных рам /6-6/х3-П при Нэт=4,2 м /рамы примыкают к лестнице/ Монтажные схемы лестничных рам 6х3-П при Нэт=4,2 м /рамы примыкают к лестнице/ Монтажные схемы лестничных рам /6-6/х3-П при Нэт=4,2 м /рамы не примыкают к лестнице/ Монтажные схемы лестничных рам /6-6/х4-П при Нэт=4,2 м /рамы примыкают к лестнице/ Монтажные схемы лестничных рам 6x4-П при Нэт=4,2 м Монтажные схемы лестничных рам /6-6/х4-П при Нэт=4,2 м /рамы не примыкают к лестнице/ Монтажные схемы лестничных рам /6-6/х1-П при Нэт=4,2 м /рамы примыкают к лестнице/ Монтажные схемы лестничных рам /6x1/-ТП при Нэт=4,2 м Монтажные схемы лестничных рам /6-6/х1-ТП при Нэт=4,2 м /рамы не примыкают к лестнице/ Монтажные схемы лестничных рам /6-6/х2-ТП при Нэт=4,2 м /рамы примыкают к лестнице/ Монтажные схемы лестничных рам /6x2/-ТП при Нэт=4,2 м Монтажные схемы лестничных рам /6-6/х2-ТП при Нэт=4,2 м /рамы не примыкают к лестнице/ Монтажные схемы лестничных рам /6-6/х3-ТП при Нэт=4,2 м /рамы примыкают к лестнице/ Монтажные схемы лестничных рам /6x3/-ТП при Нэт=4,2 м /рамы примыкают к лестнице/ Монтажные схемы лестничных рам /6-6/х3-ТП при Нэт=4,2 м /рамы не примыкают к лестнице/ Усилия от расчетных нагрузок на фундаменты Схема приложения усилий от расчетных нагрузок на фундаменты Усилия от расчетных нагрузок на фундаменты крайних колонн рамы /6-6/х1 Усилия от расчетных нагрузок на фундаменты средних колонн рамы /6-6/х1 Усилия от расчетных нагрузок на фундаменты крайних колонн рамы /6-6/х2 Усилия от расчетных нагрузок на фундаменты средних колонн рамы /6-6/х2 Усилия от расчетных нагрузок на фундаменты крайних колонн рамы /6-6/х3 Усилия от расчетных нагрузок на фундаменты средних колонн рамы /6-6/х3 Усилия от расчетных нагрузок на фундаменты крайних колонн рамы /6-6/х4 Усилия от расчетных нагрузок на фундаменты средних колонн рамы /6-6/х4 Усилия от расчетных нагрузок на фундаменты средних колонн рамы /6-6/х1-П Усилия от расчетных нагрузок на фундаменты крайних колонн рамы /6-6/х2-П Усилия от расчетных нагрузок на фундаменты средних колонн рамы /6-6/х2-П Усилия от расчетных нагрузок на фундаменты крайних колонн рамы /6-6/х3-П Усилия от расчетных нагрузок на фундаменты средних колонн рамы /6-6/х3-П Усилия от расчетных нагрузок на фундаменты крайних колонн рамы /6-6/х4-П Усилия от расчетных нагрузок на фундаменты средних колонн рамы /6-6/х4-П Усилия от расчетных нагрузок на фундаменты крайних колонн рамы /6-3-6/х1 Усилия от расчетных нагрузок на фундаменты средних колонн рамы /6-3-6/х1 Усилия от расчетных нагрузок на фундаменты крайних колонн рамы /6-3-6/х2 Усилия от расчетных нагрузок на фундаменты средних колонн рамы /6-3-6/х2 Усилия от расчетных нагрузок на фундаменты крайних колонн рамы /6-3-6/х3 Усилия от расчетных нагрузок на фундаменты средних колонн рамы /6-3-6/х3 Усилия от расчетных нагрузок на фундаменты крайних колонн рамы /6-3-6/х4 Усилия от расчетных нагрузок на фундаменты средних колонн рамы /6-3-6/х4 Усилия от расчетных нагрузок на фундаменты крайних колонн рамы /6-3-6/х1-П Усилия от расчетных нагрузок на фундаменты средних колонн рамы /6-3-6/х1-П Усилия от расчетных нагрузок на фундаменты крайних колонн рамы /6-3-6/х2-П Усилия от расчетных нагрузок на фундаменты средних колонн рамы /6-3-6/х2-П Усилия от расчетных нагрузок на фундаменты крайних колонн рамы /6-3-6/х3-П Усилия от расчетных нагрузок на фундаменты средних колонн рамы /6-3-6/х3-П Усилия от расчетных нагрузок на фундаменты крайних колонн рамы /6-3-6/х4-П Усилия от расчетных нагрузок на фундаменты средних колонн рамы /6-3-6/х4-П Усилия от расчетных нагрузок на фундаменты крайних колонн рамы /6хη/х1 Усилия от расчетных нагрузок на фундаменты средних колонн рамы /6хη/х1 Усилия от расчетных нагрузок на фундаменты крайних колонн рамы /6хη/х2 Усилия от расчетных нагрузок на фундаменты средних колонн рамы /6хη/х2 Усилия от расчетных нагрузок на фундаменты крайних колонн рамы /6хη/х3 Усилия от расчетных нагрузок на фундаменты средних колонн рамы /6хη/х3 Усилия от расчетных нагрузок на фундаменты крайних колонн рамы /6хη/х4 Усилия от расчетных нагрузок на фундаменты средних колонн рамы /6хη/х4 Усилия от расчетных нагрузок на фундаменты крайних колонн рамы /6хη/х1-П Усилия от расчетных нагрузок на фундаменты средних колонн рамы /6хη/х1-П Усилия от расчетных нагрузок на фундаменты крайних колонн рамы /6хη/х2-П Усилия от расчетных нагрузок на фундаменты средних колонн рамы /6хη/х2-П Усилия от расчетных нагрузок на фундаменты крайних колонн рамы /6хη/х3-П Усилия от расчетных нагрузок на фундаменты средних колонн рамы /6хη/х3-П Усилия от расчетных нагрузок на фундаменты крайних колонн рамы /6хη/х4-П Усилия от расчетных нагрузок на фундаменты средних колонн рамы /6хη/х4-П |