| ||||||||||||||||||||||||||||
Скачать Серия ПР-05-56 Выпуск 1. Рабочие чертежиДата актуализации: 10.08.2017
|
| Обозначение: | Серия ПР-05-56 |
| Обозначение англ: | Series ПР-05-56 |
| Статус: | не действует |
| Название рус.: | Выпуск 1. Рабочие чертежи |
| Дата добавления в базу: | 01.09.2013 |
| Дата актуализации: | 05.05.2017 |
| Дата введения: | 01.01.1967 |
| Дата окончания срока действия: | 01.10.1977 |
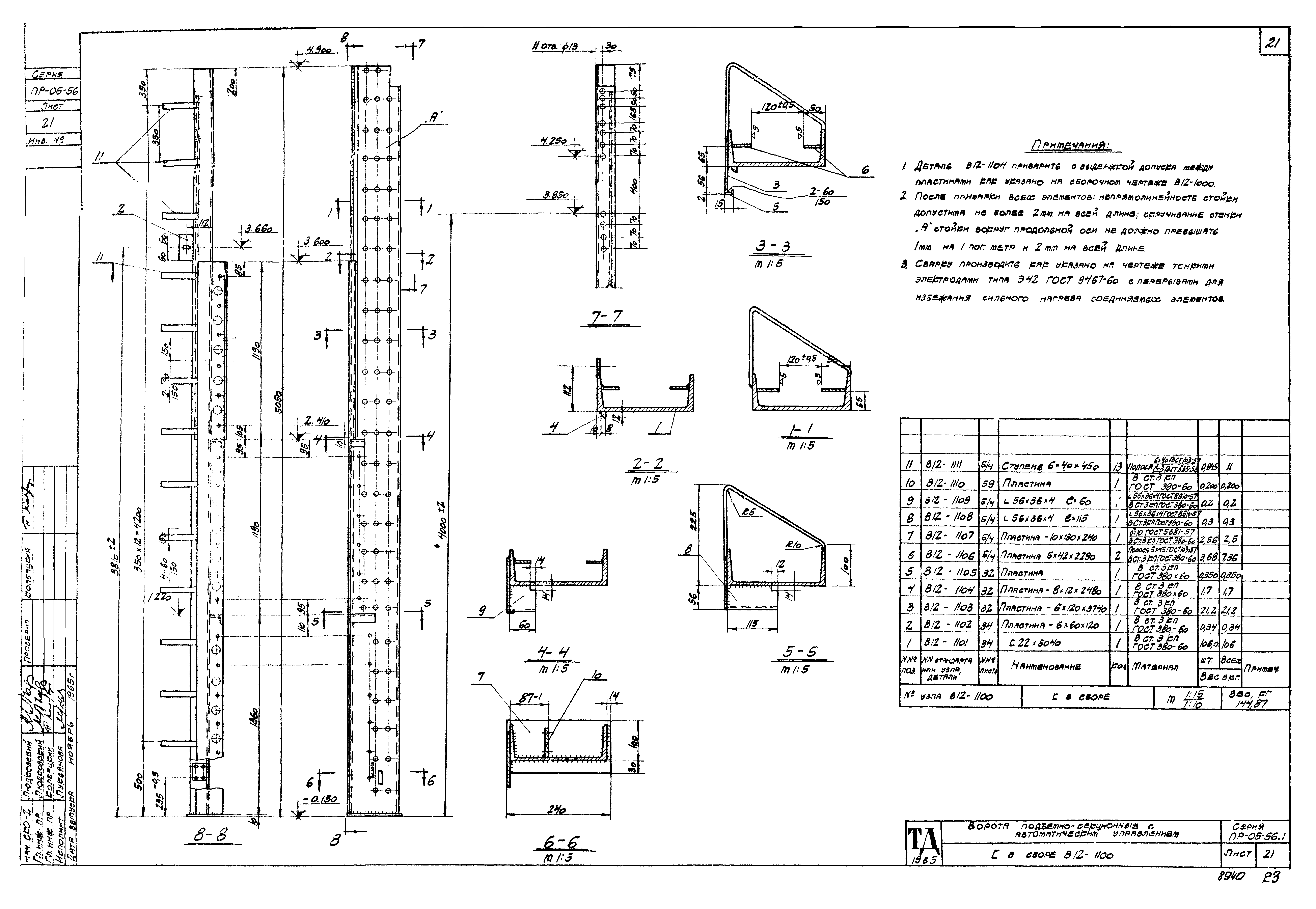
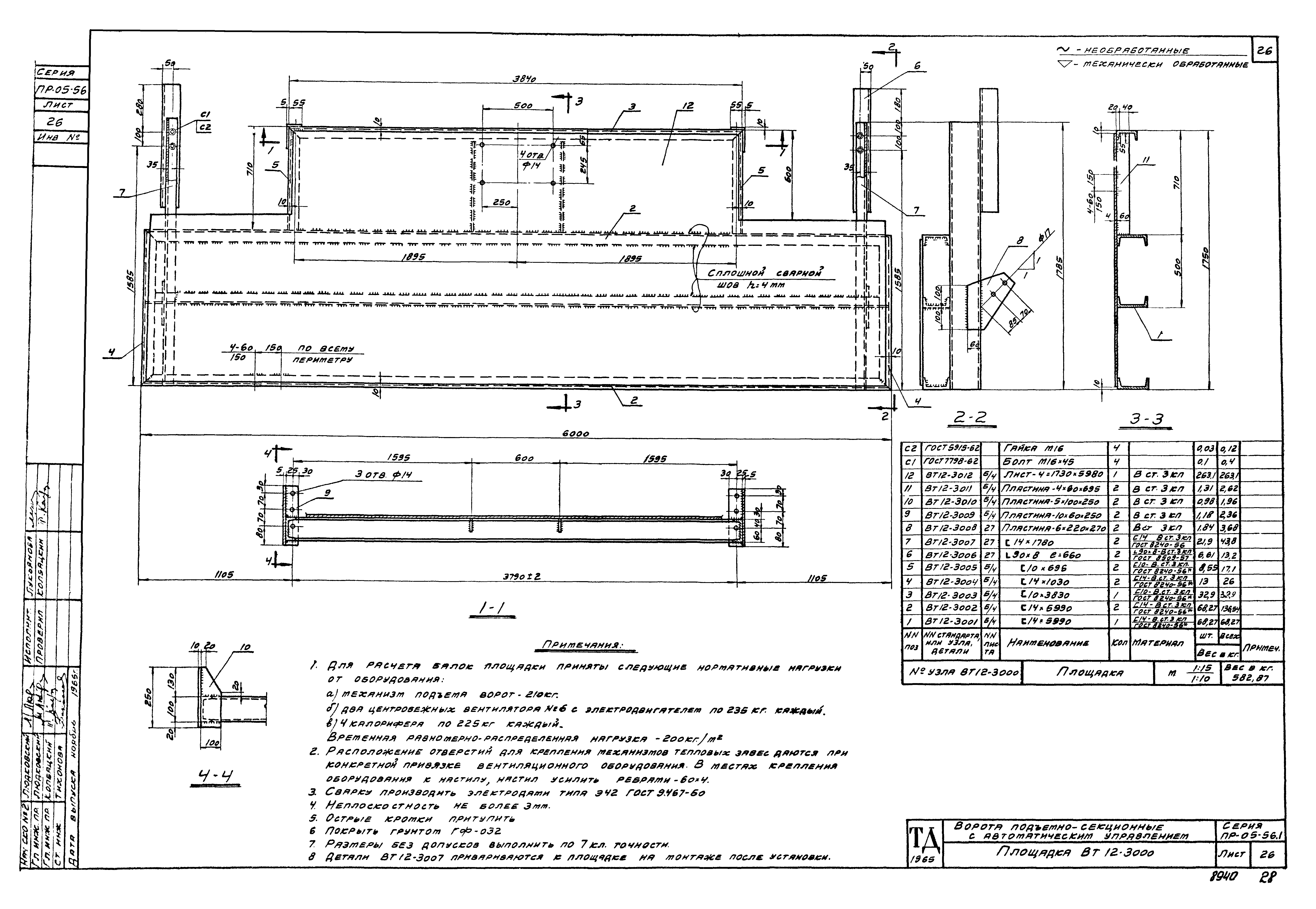
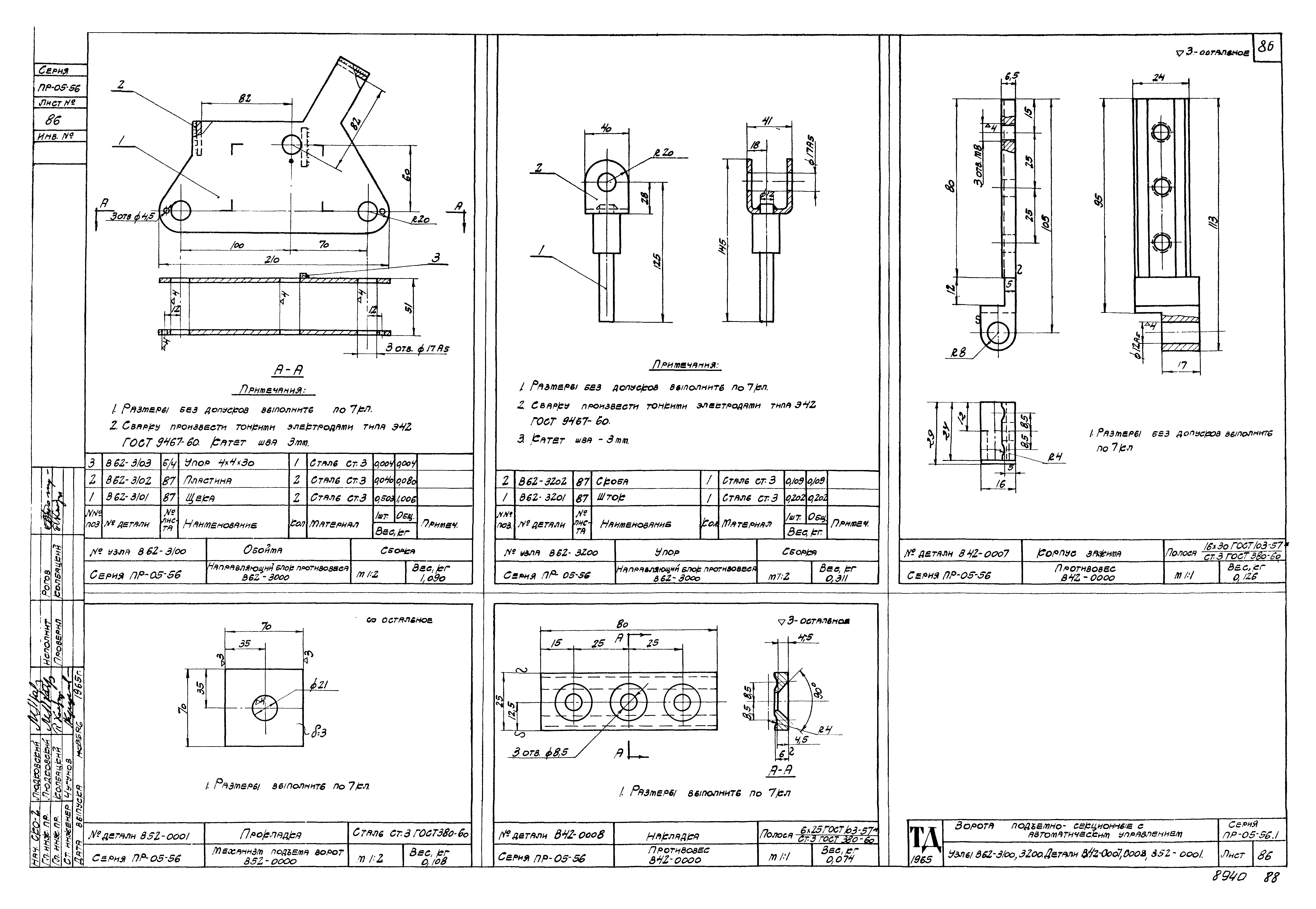
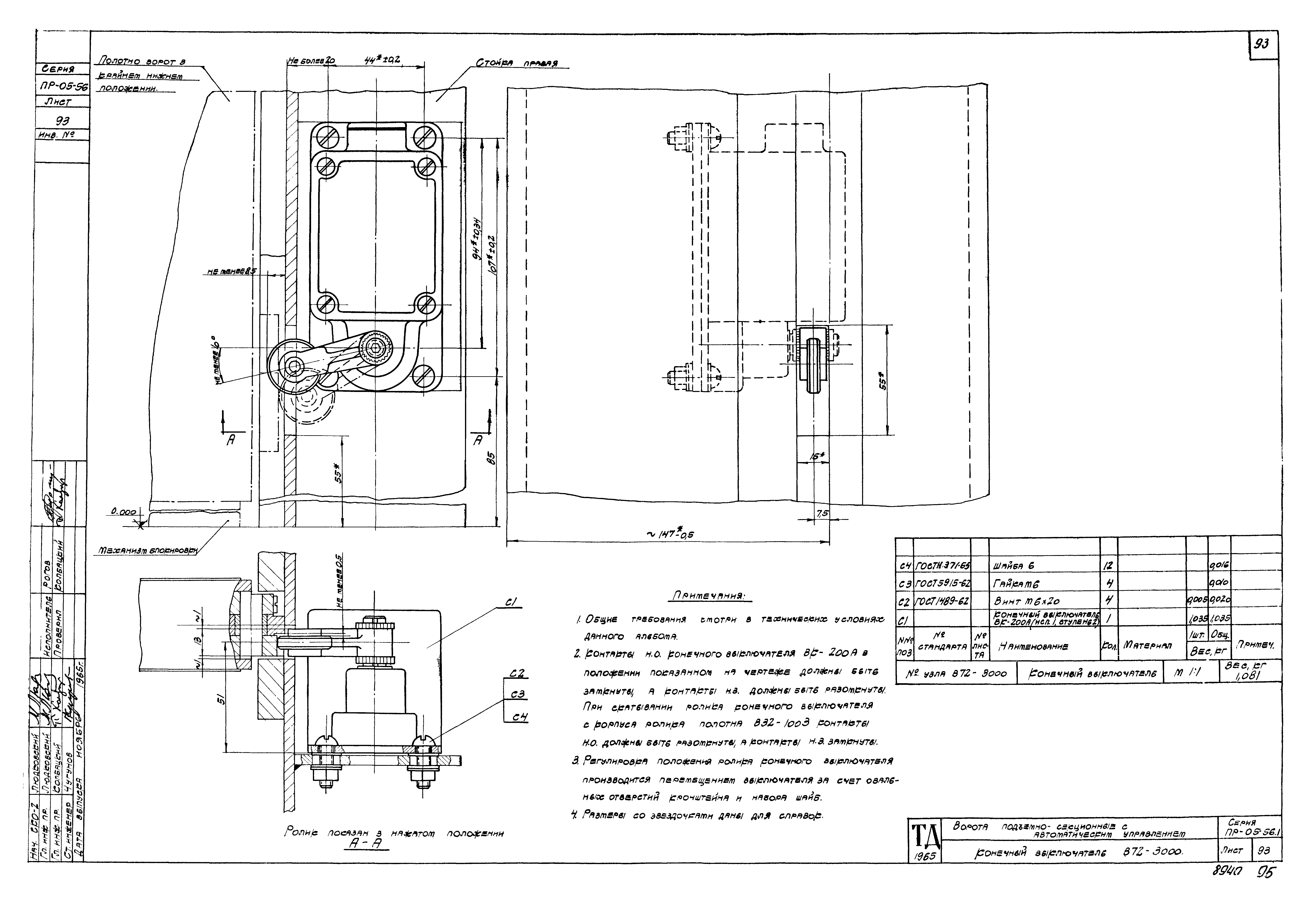
| Оглавление: | Содержание альбома Пояснительная записка Технические условия на ворота Технические условия на ворота (продолжение) Технические условия на ворота (окончание). Технико-экономические показатели Подъемно-секционные ворота ВЛС3,6х3,6 Подъемно-секционные ворота ВЛС3,6х3,0 Подъемно-секционные ворота ВЛСС3,6х3,6 Подъемно-секционные ворота ВЛСС3,6х3,0 Узлы 6,7 Схема запасовки канатов. Узлы 1-5,8 Рама ворот В12-0000 Рама ворот В12А-0000 Рама ворот ВТ12-0000 Рама ворот ВТ12А-0000 Узлы 9-12 Стойка правая В12-1000 Стойка правая В12А-1000 Стойка левая В12-2000 Стойка левая В12А-2000 С в сборе В12-1100 С в сборе В12А-1100 С в сборе В12-2100 С в сборе В12А-2100 Площадка В12-3000 Площадка ВТ12-3000 ВТ12-7000,8000,ВТ12-3006-3008,ВТ12-8002 Узлы В12-4000,5000, детали В12-5001-5003 Перила В12-7000. Детали В12-2001,21-1,В12А-1006 Детали В12-1200,1300,1301,1202 Детали В12А-1200,1300,1201,1202,1301,1009 Детали В12-1001-1003,1103-1105,В12А-1104 Детали В12А-1001-1003,1107,1103,1105 Детали В12-1006,1007,1109,1101,1102,1201 Детали В12А-1101,2001,2101 Детали В12-2102,2106,1008,4002-4006,В12А-1008 Полотно ворот В22-1000 Полотно ворот В22А-1000 Полотно ворот В22-2000 Полотно ворот В22А-2000 Рама полотна В22-1100 Рама полотна В22А-1100 Рама полотна В22-2100 Рама полотна В22А-2100 Детали В22-1002-1004,1103 Детали В22-1101,1101-1-1101-4 Детали В22-2101,2101-1,2001,2002 Ролики полотна В32-1000 Детали В32-1004,1006,1008-1010,1011 Детали В32-1001-1003,1005,1007 Стопорное устройство В32-2000 Детали В32-2001-2006,В32-1006 Противовес В42-0000, В42А-0000 Узел В42-1000. Детали В42-1001-1003 Детали В42-0001-0006,В42А-0003,0004 Механизм подъема ворот В52-0000 Рама механизма ворот В52-1000 Детали В52-1002-1008,В12-1110 Механизм ручного подъема В52-2000 Узлы В52-2100,2400 Узлы В52-2200,2300,2500 Детали В52-2201,2202,2301,2302,2401,2402,2501,2502 Детали В52-2014-2020 Детали В52-2001-2005,2101,2102 Детали В52-2006-2013 Детали В52-3000 Детали В52-3001-3003,2403 Барабаны с шестернями В52-4000 Барабан в сборе В52-4100 Узел В52-4107 Детали В52-4003,4102,4104,4106,4107-2 Детали В52-4001,4105 Детали В52-4002,4101,4103,4107-1,4107-3,4107-4 Направляющий блок (левый) В62-1000 Направляющий блок (правый) В62-2000 Направляющий блок противовеса В62-3000 Детали В62-1001-1007 Узлы Б62-1100,2100. Детали Б62-1009,1103 Узлы Б62-1200,2200. Детали Б62-1008,1202 Детали В62-1101,1102,1201,2201 Узлы В62-3100,3200. Детали В42-0007,0008,В52-0001 Детали В62-3001-3003,3101,3102,3201,3202 Механизм блокировки В72-1000 Конечный выключатель В72-2000 Детали В72 1002-1004,1006-1011 Детали В72-1001,1005,1012,2001,2002 Конечный выключатель В72-3000 Блоки кабеля В62-4000 Детали В62-4001-4007 Примерные схемы обрамления ворот Элементная схема и спецификация электрооборудования Схема внешних соединений и трубный журнал Установка электрооборудования и прокладка труб электропроводки В92-0000,В92А-0000 Установка электрооборудования и прокладка труб электропроводки. Конструкции и детали Шкаф управления В92-1000 Схема внутренних соединений шкафа управления Сводная спецификация изготовляемых узлов и деталей Сводная спецификация изготовляемых узлов и деталей (продолжение) Сводная спецификация изготовляемых узлов и деталей (окончание) Сводная спецификация на стандартные детали (на листы 6-96) Выборка материалов из сводной спецификации, изготовляемых узлов и деталей |
| Разработан: | Промстройпроект |
| Утверждён: | 17.10.1966 Госстрой СССР (Государственный комитет Совета Министров СССР по делам строительства) (USSR Gosstroy 194) |
| Расположен в: |















































































































