| ||||||||||||||||||||||||
Скачать Серия КЭ-01-60 Выпуск II. Рабочие чертежи армирования колоннДата актуализации: 10.08.2017
|
| Обозначение: | Серия КЭ-01-60 |
| Обозначение англ: | Series КЭ-01-60 |
| Статус: | не действует |
| Название рус.: | Выпуск II. Рабочие чертежи армирования колонн |
| Дата добавления в базу: | 01.09.2013 |
| Дата актуализации: | 05.05.2017 |
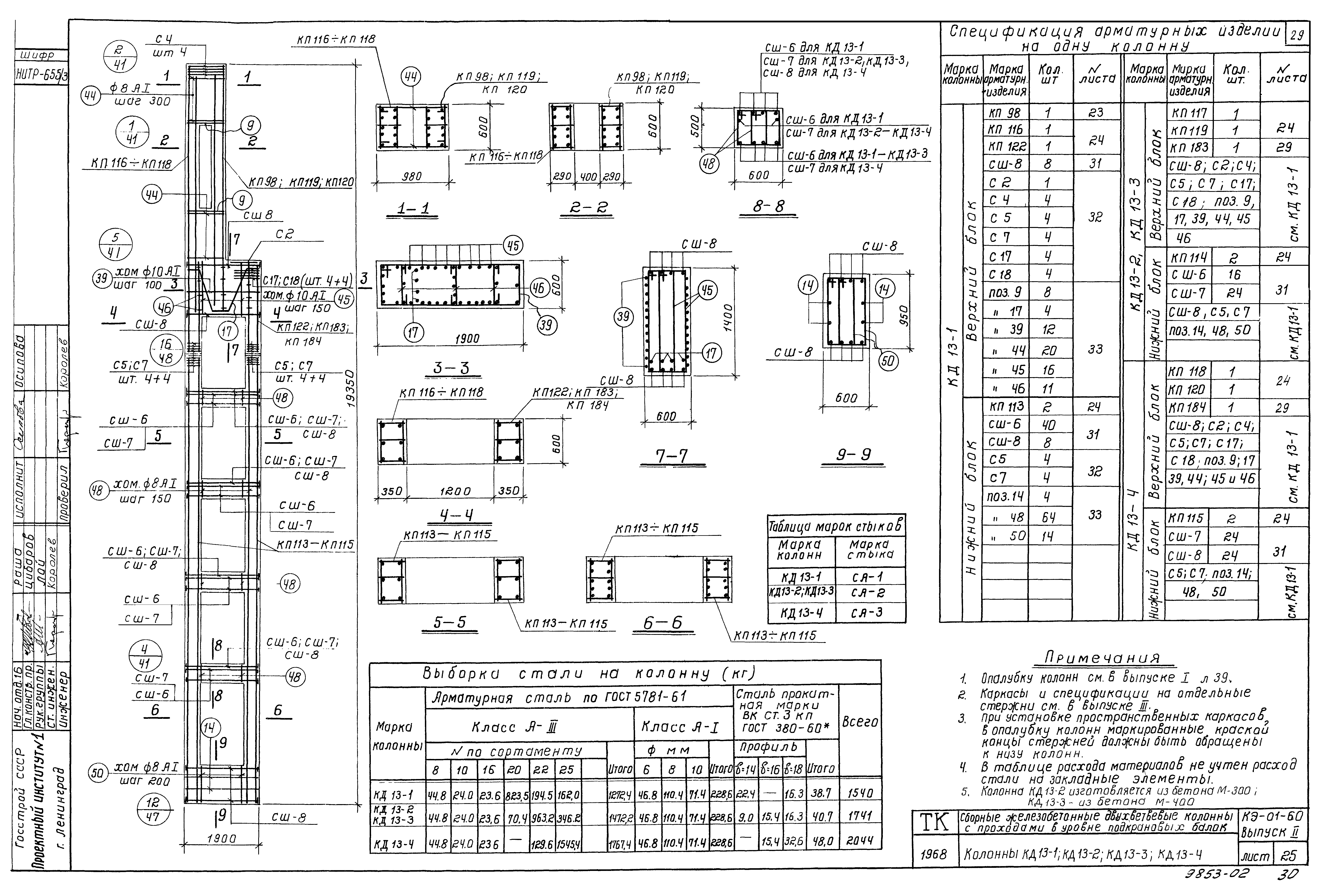
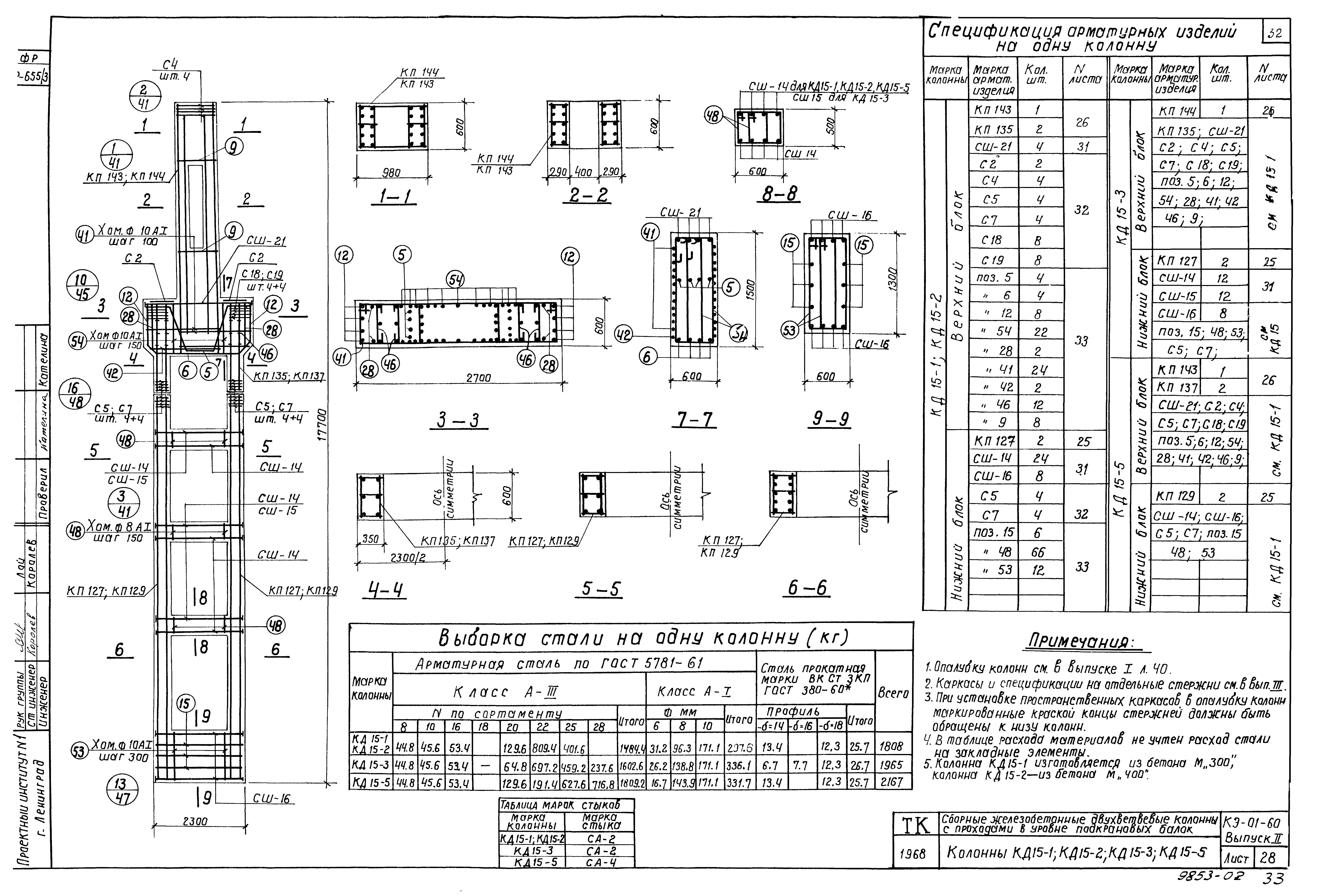
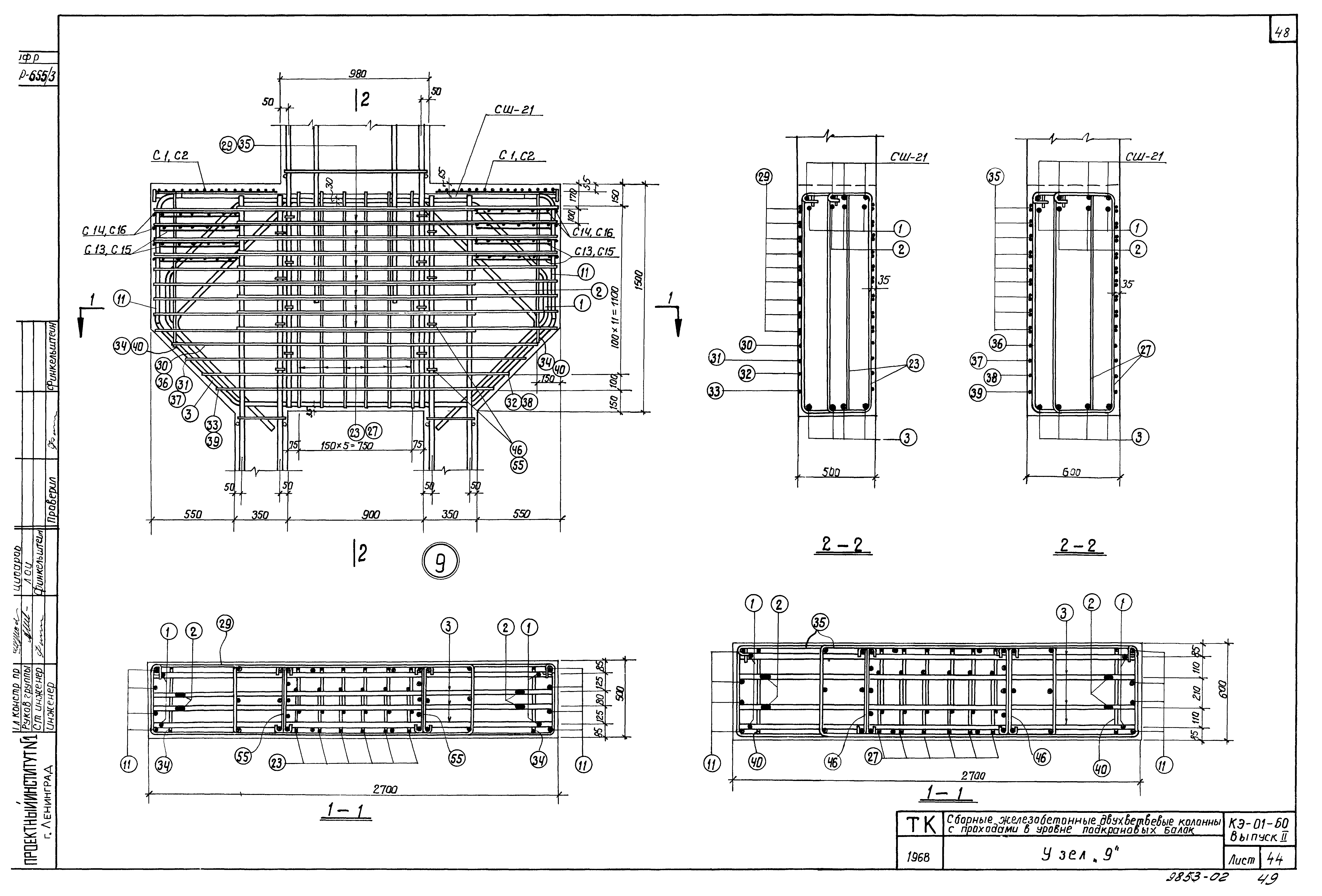
| Оглавление: | Содержание альбома Пояснительная записка Колонны КД1-1-КД1-3 Колонны КД1-4;КД1-5 Колонны КД2-1-КД2-3 Колонны КД2-4-КД2-6 Колонны КД3-1-КД3-3 Колонны КД3-4-КД3-6 Колонны КД4-1-КД4-5 Колонны КД4-6-КД4-8 Колонны КД5-1-КД5-4 Колонны КД5-5;КД5-6 Колонны КД6-1-КД6-5 Колонны КД6-6;КД6-7 Колонны КД7-1-КД7-5 Колонны КД7-6;КД7-7 Колонны КД8-1-КД8-4 Колонны КД8-5;КД8-6 Колонны КД9-1-КД9-4 Колонны КД9-5;КД9-6 Колонны КД10-1-КД10-3 Колонны КД10-4;КД10-5 Колонны КД11-1-КД11-3 Колонны КД11-4;КД11-5 Колонны КД12-1-КД12-3 Колонны КД12-4;КД12-5 Колонны КД13-1-КД13-4 Колонны КД14-1-КД14-3;КД14-5 Колонны КД14-4;КД14-5 Колонны КД15-1-КД15-3;КД15-5 Колонны КД15-4;КД15-6 Колонны КД16-1-КД16-3;КД16-5 Колонны КД16-4;КД16-6 Колонны КД17-1-КД17-3 Колонны КД17-4;КД17-5 Колонны КД18-1-КД18-4 Колонны КД19-1-КД19-4 Колонны КД20-1-КД20-3 Колонны КД21-1;КД21-2 Колонны КД21-3;КД21-4 Колонны КД22-1;КД22-2 Колонны КД22-3;КД22-4 Узлы "1"-"5" Узлы "6";"7" Узел 8. Детали армирования ветвей и шейки колонн в местах установки закладных элементов для крепления несущих столиков и вертикальных связей Узел "9" Узел "10" Узел "11" Узлы "12","13","14","15" Узел "16". Стыки СА-1-СА-5 Узел "17". Стыки СА-6-СА-9 |
| Разработан: | НИИЖБ Проектный институт № 1 Госстроя СССР |
| Утверждён: | 02.01.1968 Госстрой СССР (Государственный комитет Совета Министров СССР по делам строительства) (USSR Gosstroy ) |
| Расположен в: |






















































