| ||||||||||||||||||||||||
Скачать Серия КЭ-01-60 Выпуск I. Материалы для проектированияДата актуализации: 10.08.2017
|
| Обозначение: | Серия КЭ-01-60 |
| Обозначение англ: | Series КЭ-01-60 |
| Статус: | не действует |
| Название рус.: | Выпуск I. Материалы для проектирования |
| Дата добавления в базу: | 01.09.2013 |
| Дата актуализации: | 05.05.2017 |
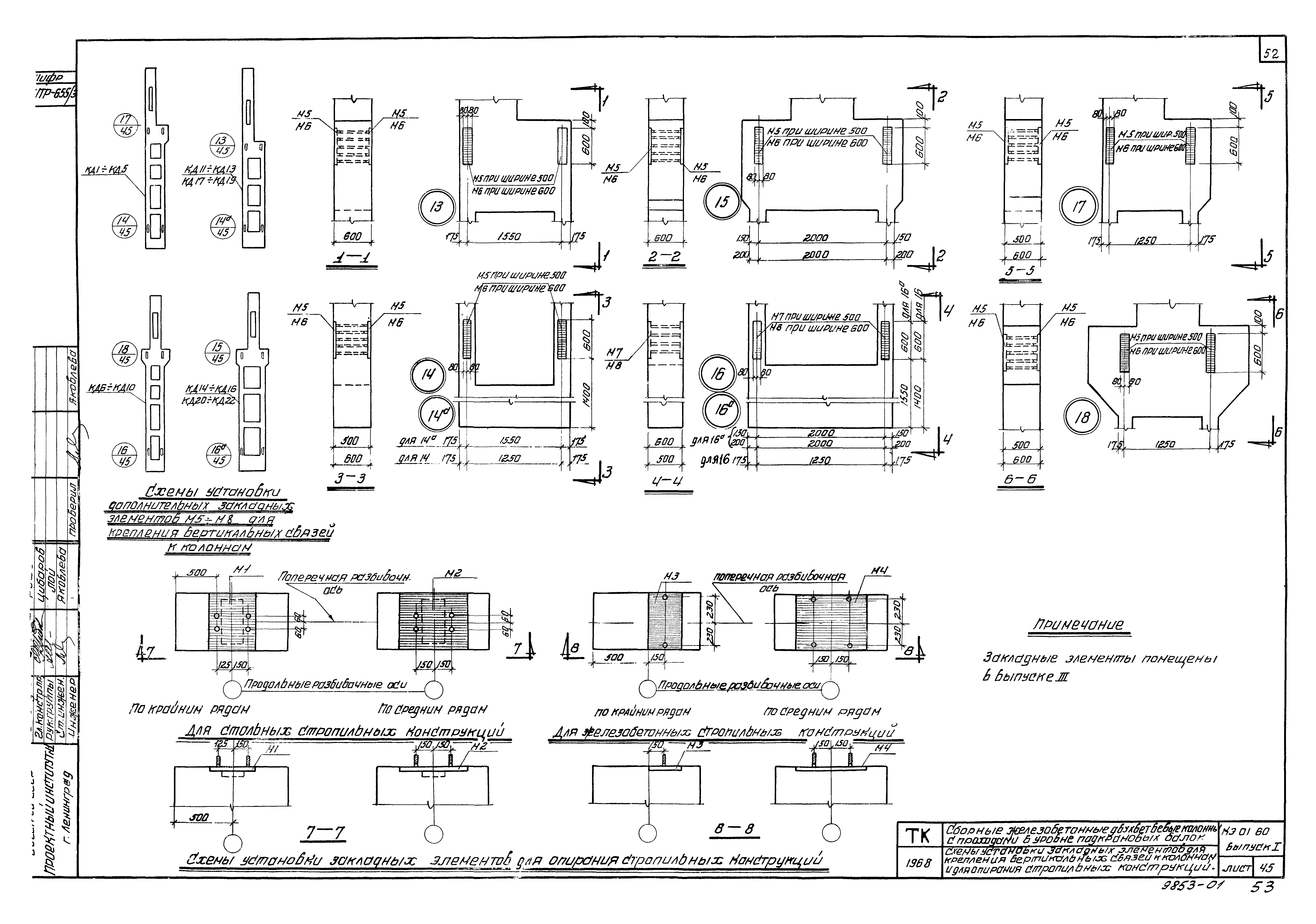
| Оглавление: | Содержание альбома Пояснительная записка Габаритные схемы и расход материалов на колонны под краны грузоподъемностью 10-30/5т Габаритные схемы и расход материалов на колонны под краны грузоподъемностью 50/10 и 75/20т Расчетные схемы зданий Расчетные нагрузки на колонны ветровые, крановые, от покрытия и от стеновых панелей Эпюры моментов и нормальных сил от единичных нагрузок в колоннах КД1 и КД2 Эпюры моментов и нормальных сил от единичных нагрузок в колоннах КД3 и КД4 Эпюры моментов и нормальных сил от единичных нагрузок в колонне КД5 Эпюры моментов и нормальных сил от единичных нагрузок в колоннах КД6, КД7, КД8 Эпюры моментов и нормальных сил от единичных нагрузок в колоннах КД9, КД10 Эпюры моментов и нормальных сил от единичных нагрузок в колоннах КД11, КД12 Эпюры моментов и нормальных сил от единичных нагрузок в колонне КД13 Эпюры моментов и нормальных сил от единичных нагрузок в колоннах КД14, КД15, КД16 Эпюры моментов и нормальных сил от единичных нагрузок в колоннах КД17, КД18 Эпюры моментов и нормальных сил от единичных нагрузок в колонне КД19 Эпюры моментов и нормальных сил от единичных нагрузок в колоннах КД20, КД21, КД22 Расчетные нагрузки на фундаменты крайних колонн от ветра для 4 географического района (в поперечном направлении) Расчетные нагрузки на фундаменты средних колонн от ветра для 4 географического района (в поперечном направлении) Таблицы нагрузок на фундаменты от единичных сил и от температурных воздействий (в поперечном направлении) Расчетные нагрузки на фундаменты колонн в продольном направлении Ключ для подбора колонн под краны грузоподъемностью 10-30 т при разрезных подкрановых балках. Ветровая нагрузка для 1 географического района Ключ для подбора колонн под краны грузоподъемностью 10-30 т при разрезных подкрановых балках. Ветровая нагрузка для 2 географического района Ключ для подбора колонн под краны грузоподъемностью 10-30 т при разрезных подкрановых балках. Ветровая нагрузка для 3 географического района Ключ для подбора колонн под краны грузоподъемностью 10-30 т при разрезных подкрановых балках. Ветровая нагрузка для 4 географического района Ключ для подбора колонн под краны грузоподъемностью 50/10 т при разрезных подкрановых балках Ключ для подбора колонн под краны грузоподъемностью 70/20 т при разрезных подкрановых балках Ключ для подбора колонн под краны грузоподъемностью 10-30 т при неразрезных подкрановых балках. Ветровая нагрузка для 1 географического района Ключ для подбора колонн под краны грузоподъемностью 10-30 т при неразрезных подкрановых балках. Ветровая нагрузка для 2 географического района Ключ для подбора колонн под краны грузоподъемностью 10-30 т при неразрезных подкрановых балках. Ветровая нагрузка для 3 географического района Ключ для подбора колонн под краны грузоподъемностью 10-30 т при неразрезных подкрановых балках. Ветровая нагрузка для 4 географического района Ключ для подбора колонн под краны грузоподъемностью 50/10 т при неразрезных подкрановых балках Ключ для подбора колонн под краны грузоподъемностью 70/20 т при неразрезных подкрановых балках Примерный схематический план цеха с размещением вертикальных связей по колоннам Ключ для подбора вертикальных связей по колоннам Опалубка колонн КД1-1-КД1-6,КД2-1-КД2-5,КД3-1-КЛ3-6 Опалубка колонн КД4-1-КД4-6,КД5-1-КД5-6 Опалубка колонн КД6-1-КД6-7,КД7-1-КД7-7,КД8-1-КД8-6 Опалубка колонн КД9-1-КД9-6,КД10-1-КД10-5 Опалубка колонн КД11-1-КД11-5,КД12-1-КД12-5,КД13-1-КД13-4 Опалубка колонн КД14-1-КД14-6,КД15-1-КД15-6,КД16-1-КД16-6 Опалубка колонн КД17-1-КД17-5,КД18-1-КД18-4,КД19-1-КД19-4 Опалубка колонн КД20-1-КД20-3,КД21-1-КД21-4,КД22-1-КД22-4 Опалубка колонн. Узлы 1-12;19 Ключ для подбора и схемы установки закладных элементов при применении стальных разрезных и неразрезных подкрановых балок Схемы установки закладных элементов для крепления вертикальных связей к колоннам и для опирания стропильных конструкций Схемы установки закладных элементов для крепления стен. Узел 20 Узлы крепления неразрезных стальных подкрановых балок к железобетонным колоннам в зданиях с обычным режимом работы Узлы крепления неразрезных стальных подкрановых балок к железобетонным колоннам в зданиях с тяжелым режимом работы. Узлы опирания подкрановых балок на колонну Схемы монтажа и транспортировка колонн Приложение. Пояснительная записка к таблицам предельных значений Q Таблицы предельных значений Q для колонн КД1-КД5 Таблицы предельных значений Q для колонн КД6-КД10 Таблицы предельных значений Q для колонн КД11-КД22 Пример расчета закладного элемента М14 |
| Разработан: | НИИЖБ Проектный институт № 1 Госстроя СССР |
| Утверждён: | 02.01.1968 Госстрой СССР (Государственный комитет Совета Министров СССР по делам строительства) (USSR Gosstroy ) |
| Расположен в: |






























































