Скачать Серия КЭ-01-52 Выпуск III. Рабочие чертежи колонн для зданий с пролетами 18, 24 и 30 м, оборудованных кранами грузоподъемностью 10, 20, 30 и 50 т при шаге крайних колонн 6 и 12 м, средних 12 м, для II географического района ветровой нагрузкиДата актуализации: 10.08.2017 Серия КЭ-01-52
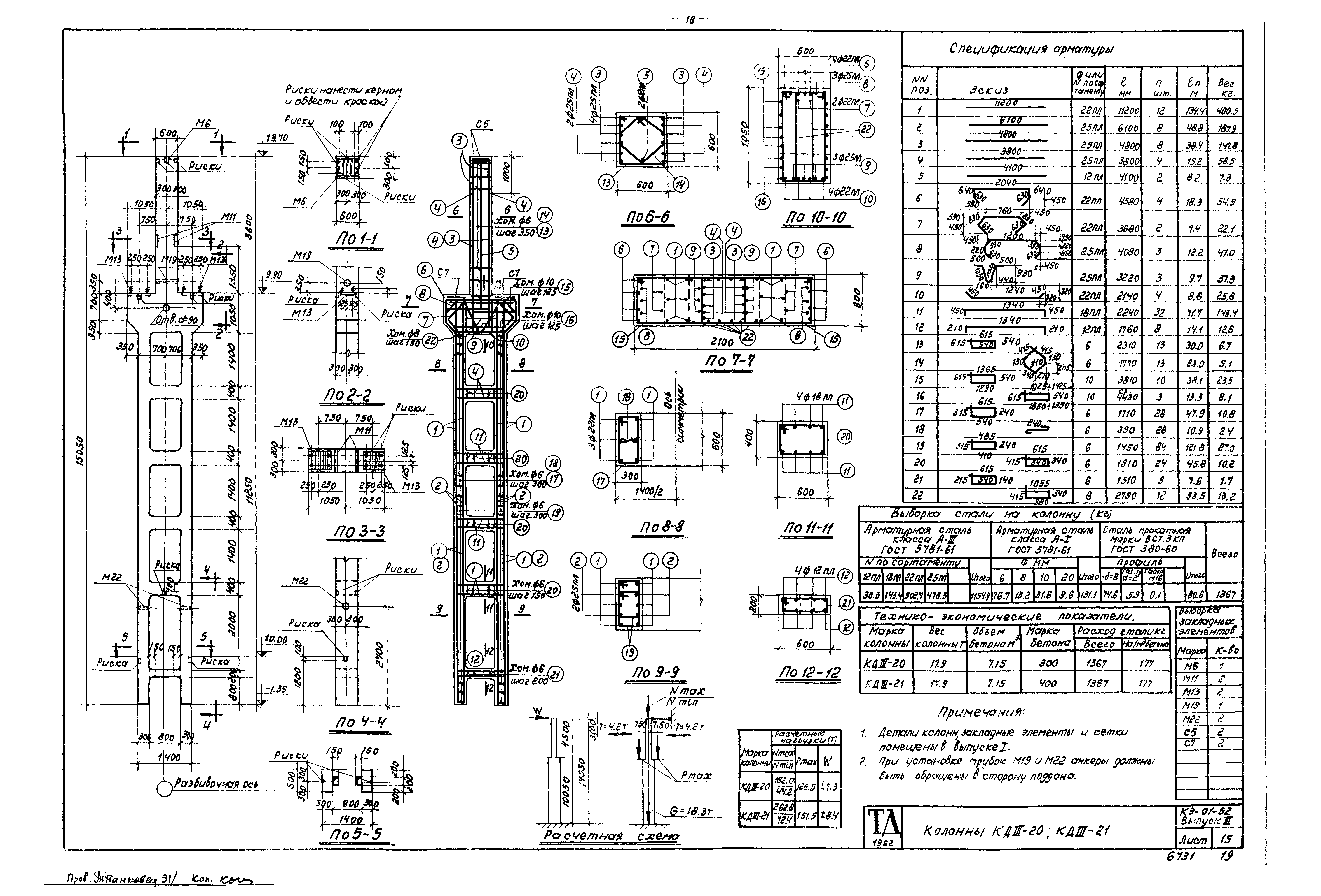
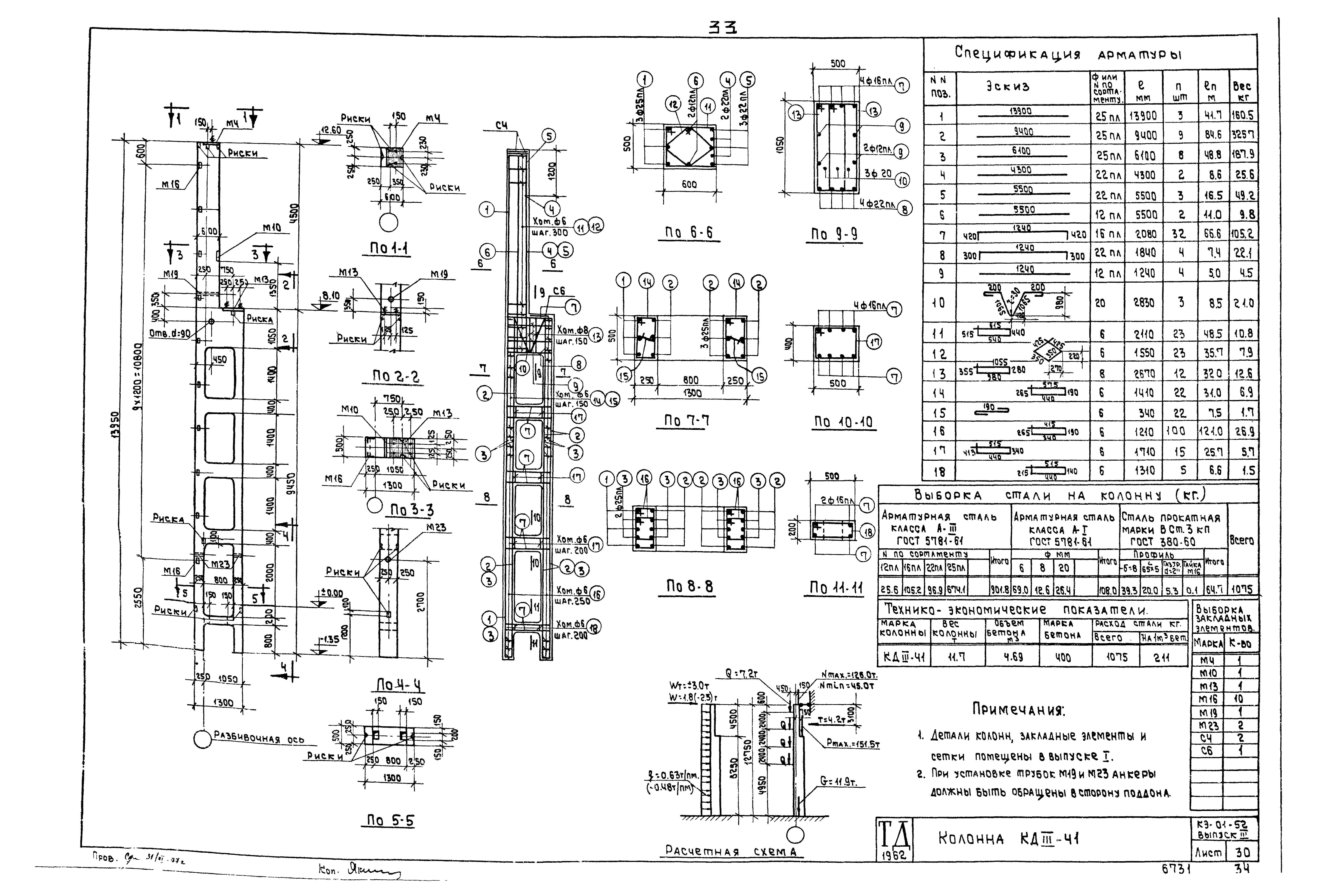
Выпуск III. Рабочие чертежи колонн для зданий с пролетами 18, 24 и 30 м, оборудованных кранами грузоподъемностью 10, 20, 30 и 50 т при шаге крайних колонн 6 и 12 м, средних 12 м, для II географического района ветровой нагрузкиОбозначение: | Серия КЭ-01-52 | Обозначение англ: | Series КЭ-01-52 | Статус: | не действует | Название рус.: | Выпуск III. Рабочие чертежи колонн для зданий с пролетами 18, 24 и 30 м, оборудованных кранами грузоподъемностью 10, 20, 30 и 50 т при шаге крайних колонн 6 и 12 м, средних 12 м, для II географического района ветровой нагрузки | Дата добавления в базу: | 01.09.2013 | Дата актуализации: | 05.05.2017 | Дата окончания срока действия: | 01.02.1984 | Оглавление: | Содержание альбома Пояснительная записка Ключ для подбора колонн. Ветровая нагрузка для 2 географического района. Шаг колонн по крайним рядам 6 и 12 м, по средним рядам - 12 м Колонна КДIII-1 Колонна КДIII-2 Колонна КДIII-3 Колонны КДIII-4;КДIII-5 Колонна КДIII-6 Колонны КДIII-7;КДIII-9 Колонна КДIII-8 Колонны КДIII-10;КДIII-11 Колонны КДIII-12;КДIII-13 Колонна КДIII-14 Колонна КДIII-15 Колонны КДIII-16;КДIII-17 Колонны КДIII-18;КДIII-19 Колонны КДIII-20;КДIII-21 Колонны КДIII-22;КДIII-24 Колонны КДIII-23;КДIII-25 Колонна КДIII-26 Колонна КДIII-27 Колонны КДIII-28;КДIII-30 Колонны КДIII-29;КДIII-31 Колонна КДIII-32 Колонна КДIII-33 Колонна КДIII-34 Колонна КДIII-35 Колонна КДIII-36 Колонна КДIII-37 Колонны КДIII-38;КДIII-39 Колонны КДIII-40;КДIII-43 Колонна КДIII-41 Колонна КДIII-42 Колонны КДIII-44;КДIII-45 Колонны КДIII-46;КДIII-47 Колонна КДIII-48 Колонна КДIII-49 Колонны КДIII-50;КДIII-52 Колонна КДIII-51 Колонны КДIII-53;КДIII-54 Колонны КДIII-55;КДIII-56 Колонны КДIII-57;КДIII-59 Колонны КДIII-58;КДIII-60 Колонна КДIII-61 Колонна КДIII-62 Колонны КДIII-63;КДIII-65 Колонны КДIII-64;КДIII-66 Колонна КДIII-67 Колонна КДIII-68 Колонна КДIII-69 | Разработан: | Проектный институт № 1 Главстройпроекта НИИЖБ АСиА СССР
| Утверждён: | 01.09.1962 Госстрой СССР (Государственный комитет Совета Министров СССР по делам строительства) (USSR Gosstroy 259)
| Расположен в: |
| Чем заменён: | |
                                                   
|