| ||||||||||||||||||||||||||||||
Скачать Серия ИС-01-09 Альбом 4. Выпуск 3. Сборные железобетонные конструкции. Силосы диаметром 12 м. Рабочие чертежиДата актуализации: 10.08.2017
|
| Обозначение: | Серия ИС-01-09 |
| Обозначение англ: | Series ИС-01-09 |
| Статус: | не действует |
| Название рус.: | Альбом 4. Выпуск 3. Сборные железобетонные конструкции. Силосы диаметром 12 м. Рабочие чертежи |
| Дата добавления в базу: | 01.09.2013 |
| Дата актуализации: | 05.05.2017 |
| Дата введения: | 01.05.1966 |
| Дата окончания срока действия: | 01.10.1982 |
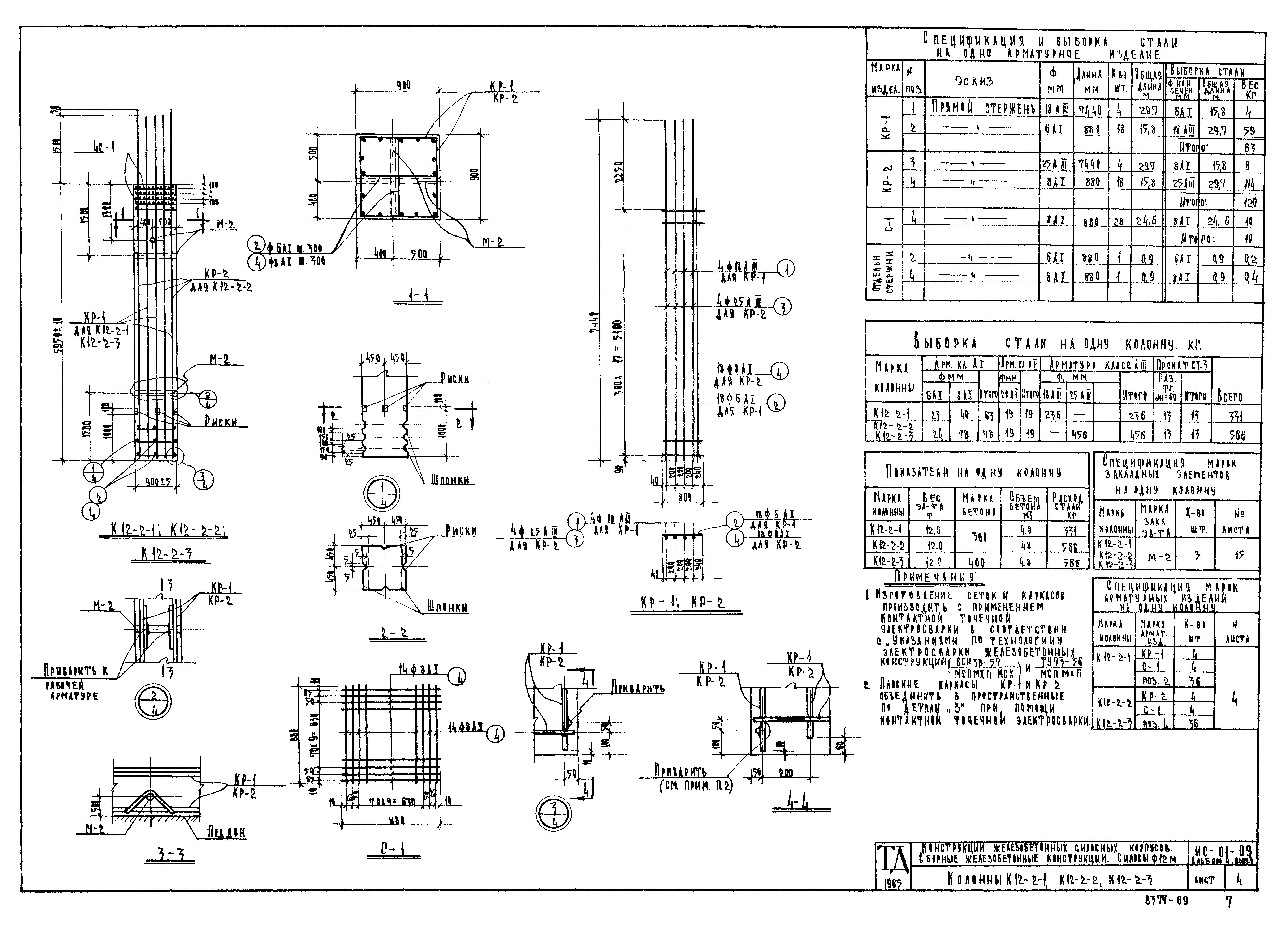
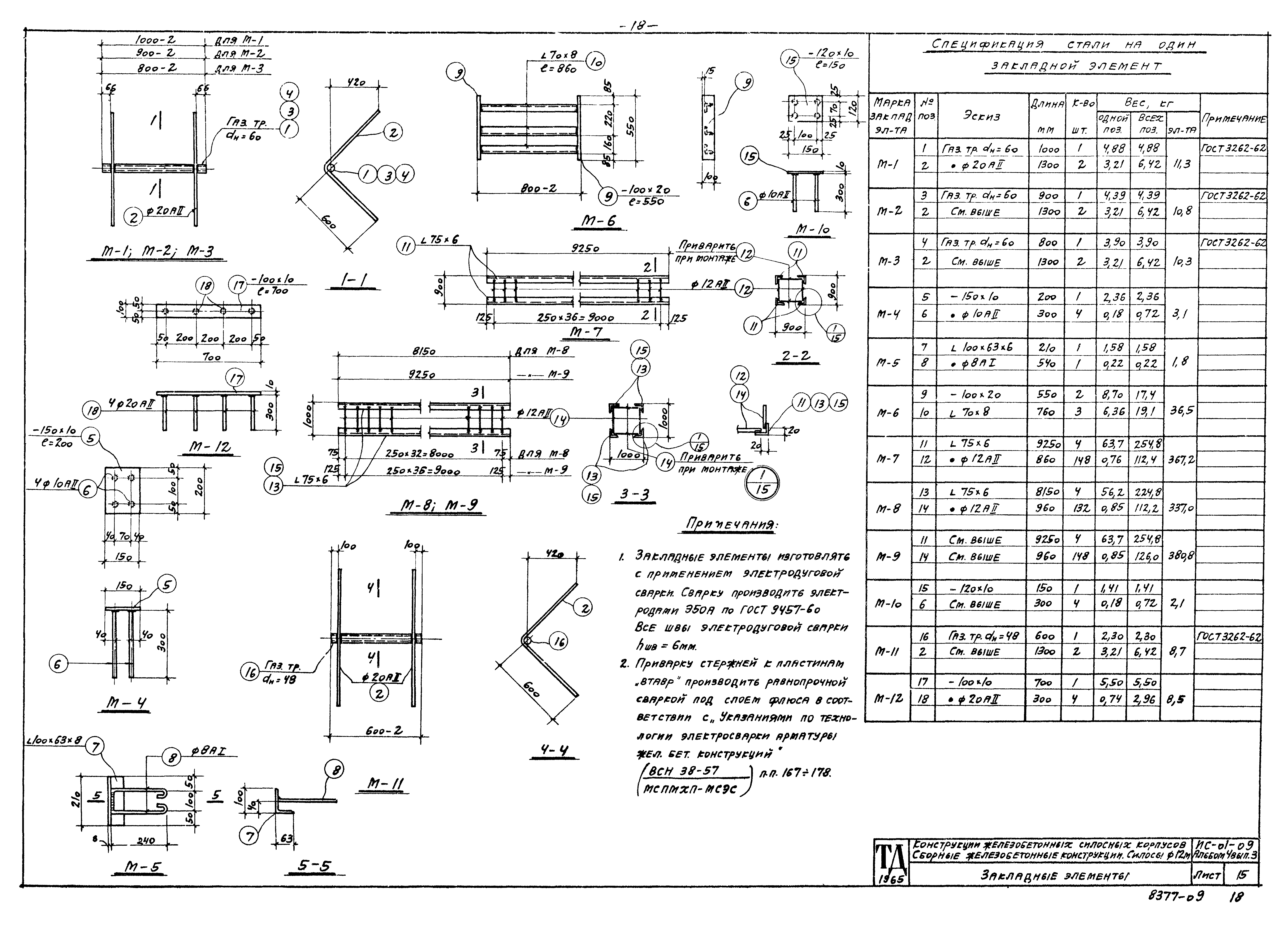
| Оглавление: | Краткие пояснения. Таблица нагрузок и расчетных схем Показатели на один конструктивный элемент Колонна К12-1-1 Колонны К12-2-1,К12-2-2,К12-2-3 Колонна К12-3-1 Колонны К12-4-1,К12-4-2 Колонны К12-4-3,К12-4-4 Колонна К12-5-1 Колонна К12-6-1 Колонны К12-7-1,К12-7-2 Балки Б12-1-1 Балки Б12-1-2 Балки Б12-1-3 Плиты П-1 и П-3 Закладные элементы Воронка В-1 Воронка В-2 (нормальная) Воронка В-3 (укороченная) Воронка В-4 (нормальная) Воронка В-5 (нормальная) Воронка В-6 |
| Разработан: | НИИЖБ ГПИ Ленинградский Промстройпроект |
| Утверждён: | 23.02.1966 Госстрой СССР (Государственный комитет Совета Министров СССР по делам строительства) (USSR Gosstroy 15) |
| Расположен в: | |
| Чем заменён: |
























