| ||||||||||||||||||||||||||||||
Скачать Серия ИС-01-09 Альбом 2. Выпуск 2. Монтажные планы и разрезы. Силосы диаметром 6 м. Материал для проектированияДата актуализации: 10.08.2017
|
| Обозначение: | Серия ИС-01-09 |
| Обозначение англ: | Series ИС-01-09 |
| Статус: | не действует |
| Название рус.: | Альбом 2. Выпуск 2. Монтажные планы и разрезы. Силосы диаметром 6 м. Материал для проектирования |
| Дата добавления в базу: | 01.09.2013 |
| Дата актуализации: | 05.05.2017 |
| Дата введения: | 01.05.1966 |
| Дата окончания срока действия: | 01.10.1982 |
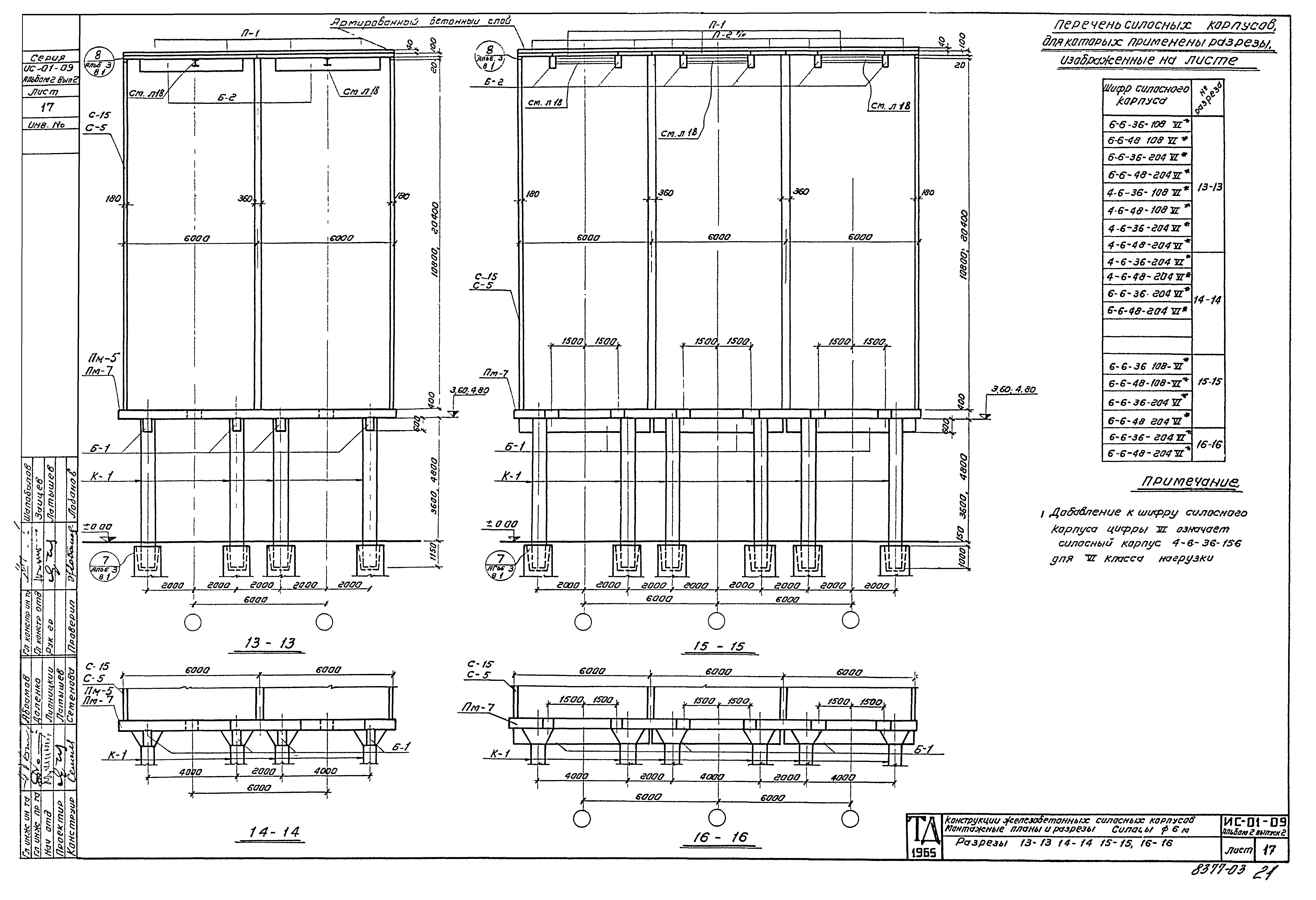
| Оглавление: | Краткие пояснения к чертежам монтажных планов и разрезов Лист 1 Спецификация сборных железобетонных элементов Лист 2 Спецификация сборных железобетонных элементов Лист 3 Спецификация монолитных железобетонных и бетонных элементов Лист 4 Спецификация монолитных железобетонных и бетонных элементов Лист 5 Силосные корпуса: 1-6-36-108; 1-6-48-108; 1-6-36-156; 1-6-48-156; 1-6-56-204; 1-6-48-204. Планы колонн, балок и плиты днища, узлов сопряжения в уровне днища, стенок силосов, балок и плит покрытия. Лист 6 Силосные корпуса: 2-6-36-108; 2-6-48-108; 2-6-36-156; 2-6-48-156; 2-6-36-204; 2-6-48-204. Планы колонн, балок и плиты днища, узлов сопряжения в уровне днища, стенок силосов, балок и плит покрытия. Лист 7 Силосные корпуса: 3-6-36-108; 3-6-48-108; 3-6-56-156; 3-6-48-156; 3-6-56-204; 3-6-48-204. Планы колонн, балок и плиты днища, узлов сопряжения в уровне днища. Лист 8 Силосные корпуса: 3-6-36-108; 3-6-48-108; 3-6-36-156; 3-6-48-156; 3-6-36-204; 3-6-48-204. Планы стенок силосов, балок и плит покрытия Лист 9 Силосные корпуса: 4-6-36-108; 4-6-48-108; 4-6-36-156; 4-6-48-156; 4-6-36-204; 4-6-48-204. Планы колони, балок и плиты днища, узлов сопряжения в уровне днища. Лист 10 Силосные корпуса: 4-6-36-108; 4-6-48-108; 4-6-36-156; 4-6-48-156; 4-6-36-204; 4-6-48-204 Планы стенок силосов, балок и плит покрытия. Лист 11 Силосные корпуса: 6-6-36-108; 6-6-48-108; 6-6-36-156; 6-6-48-156; 6-6-36-204; 6-6-48-204. Планы колонн и балок днища. Лист 12 Силосные корпуса: 6-6-36-108; 6-6-48-108; 6-6-36-156; 6-6-48-156; 6-6-36-204; 6-6-48-204 Планы плиты днища и узлов сопряжения в уровне днища. Лист 13 Силосные корпуса: 6-6-36-108; 6-6-48-108; 6-6-36-156; 6-6-48-156; 6-6-36-204; 6-6-48-204. Планы стенок силосов, балок и плит покрытия Лист 14 Разрезы 1-1; 2-2; 3-3; 4-4 Лист 15 Разрезы 5-5; 6-6; 7-7; 8-8 Лист 16 Разрезы 9-9; 10-10; 11-11; 12-12 Лист 17 Разрезы 13-13; 14-14; 15-15; 16-16 Лист 18 Покрытие силосов. Схема стальных балок и узлы |
| Разработан: | НИИЖБ ГПИ Ленинградский Промстройпроект |
| Утверждён: | 23.02.1966 Госстрой СССР (Государственный комитет Совета Министров СССР по делам строительства) (USSR Gosstroy 15) |
| Расположен в: | |
| Чем заменён: |






















