| ||||||||||||||||||||||||||
Скачать Серия ИИ24-4/70 Железобетонные плиты с отверстиями для покрытий типа 1, с опиранием на полки ригелейДата актуализации: 10.08.2017
|
| Обозначение: | Серия ИИ24-4/70 |
| Обозначение англ: | Series ИИ24-4/70 |
| Статус: | действует |
| Название рус.: | Железобетонные плиты с отверстиями для покрытий типа 1, с опиранием на полки ригелей |
| Дата добавления в базу: | 01.09.2013 |
| Дата актуализации: | 05.05.2017 |
| Дата введения: | 01.07.1973 |
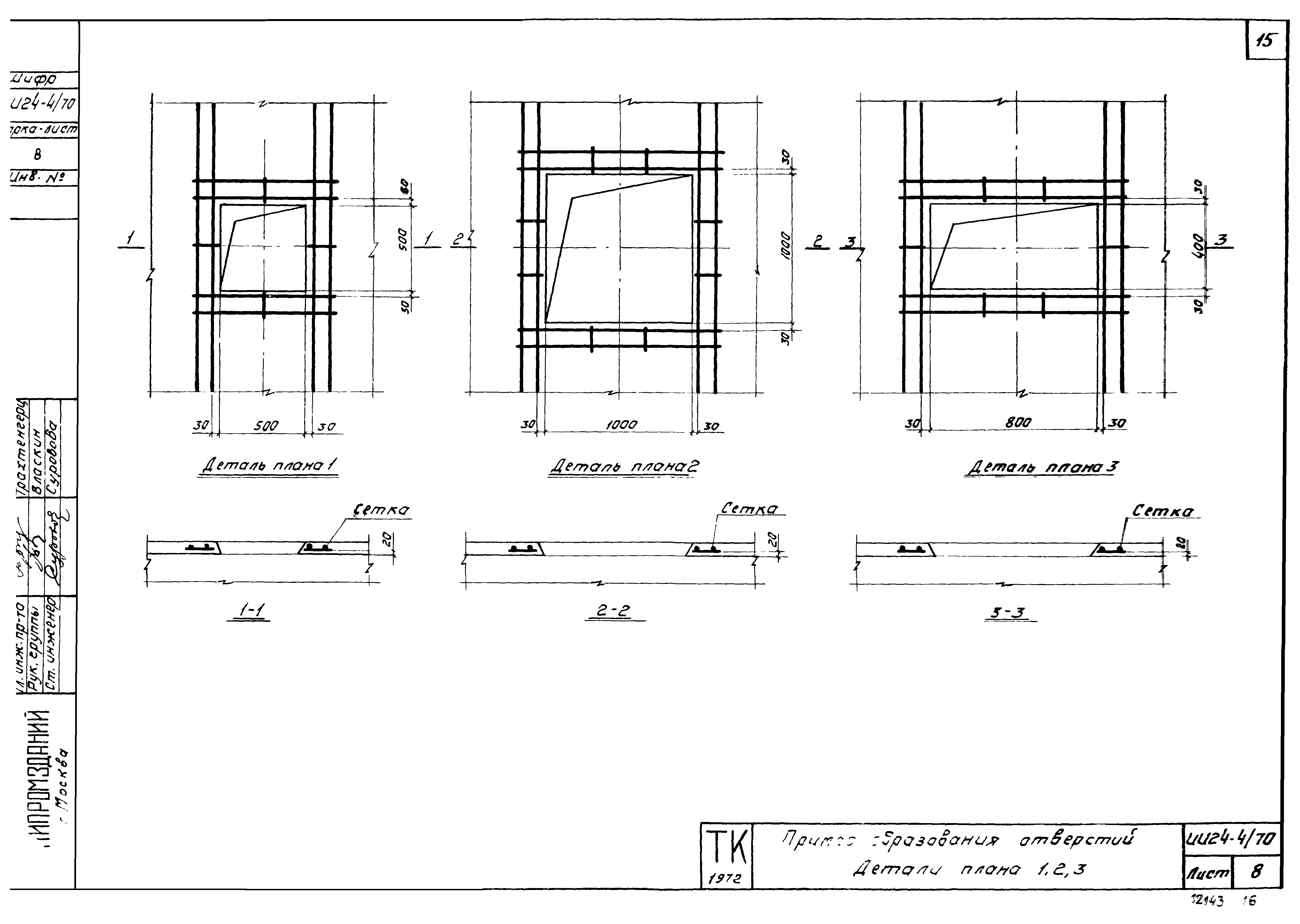
| Оглавление: | I. Пояснительная записка II. Рабочие чертежи 1. Опалубочный чертеж 2. Деталь плана. Детали армирования 1,2,3 3. Сетки C19-C21. Каркас Кр49 4. Закладные детали M1-М4. Спецификация стали на одну заготовку закладной детали 5. Перечень дополнительных позиций на одну плиту. Спецификация позиций арматурных изделий и закладных деталей на альбом 6. Пример образования отверстий в плитах типа ИП1-2-1-ИП1-9-1 7. Пример образования отверстий в плитах типа ИП3-2-ИП3-6 8. Детали плана 1,2,3 9. Сетки |
| Разработан: | ЦНИИпромзданий НИИЖБ |
| Утверждён: | 28.11.1972 Госстрой СССР (Государственный комитет Совета Министров СССР по делам строительства) (USSR Gosstroy 203) |
| Расположен в: |

















