Информационная система
«Ёшкин Кот»

Скачать базу одним архивом
Скачать обновления
История создания базы
Карта сайта

Скачать Серия ИИ-04-6 Выпуск 4. Железобетонные диафрагмы толщиной 140 мм с проемами. Рабочие чертежи

Дата актуализации: 10.08.2017

Серия ИИ-04-6

Выпуск 4. Железобетонные диафрагмы толщиной 140 мм с проемами. Рабочие чертежи

Обозначение: Серия ИИ-04-6
Обозначение англ: Series ИИ-04-6
Статус:не действует
Название рус.:Выпуск 4. Железобетонные диафрагмы толщиной 140 мм с проемами. Рабочие чертежи
Дата добавления в базу:01.09.2013
Дата актуализации:05.05.2017
Оглавление:Содержание выпуска
Пояснительная записка
Номенклатура
Общий вид диафрагм жесткости В-28-29п
Армирование диафрагм жесткости В-28-29п
Общий вид диафрагмы жесткости В-41-29п
Армирование диафрагмы жесткости В-41-29п
Общий вид диафрагмы жесткости В-26-29п
Армирование диафрагмы жесткости В-26-29п
Общий вид диафрагмы жесткости В-26-33п
Армирование диафрагмы жесткости В-28-33п
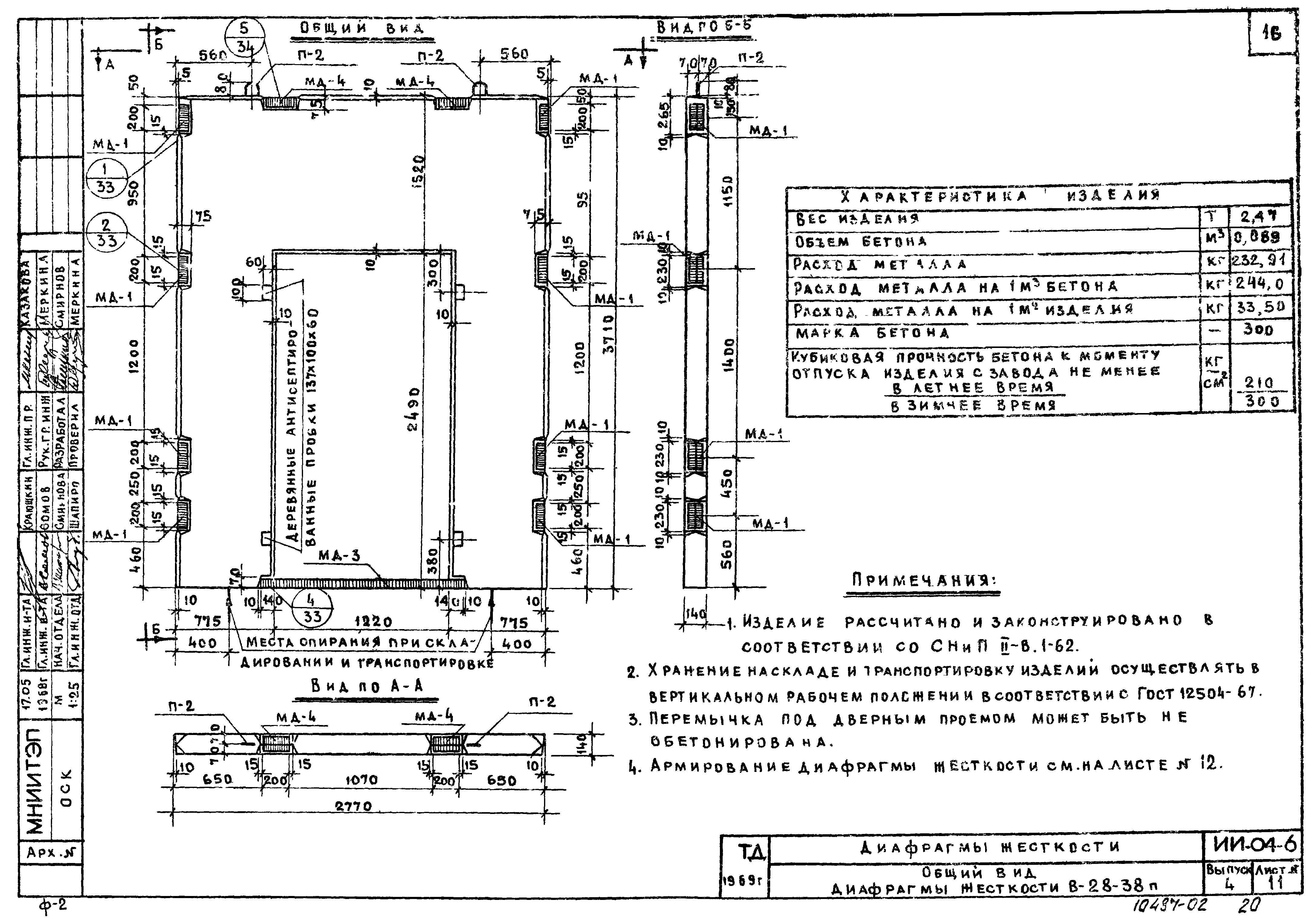
Общий вид диафрагмы жесткости В-28-38п
Армирование диафрагмы жесткости В-28-38п
Общий вид диафрагмы жесткости В-26-38п
Армирование диафрагмы жесткости В-26-38п
Общий вид диафрагмы жесткости В-41-38п
Армирование диафрагмы жесткости В-41-38п
Общий вид .диафрагмы жесткости В-28-42п
Армирование диафрагмы жесткости В-28-42п
Каркасы К-1, К-2, К-3, К-4
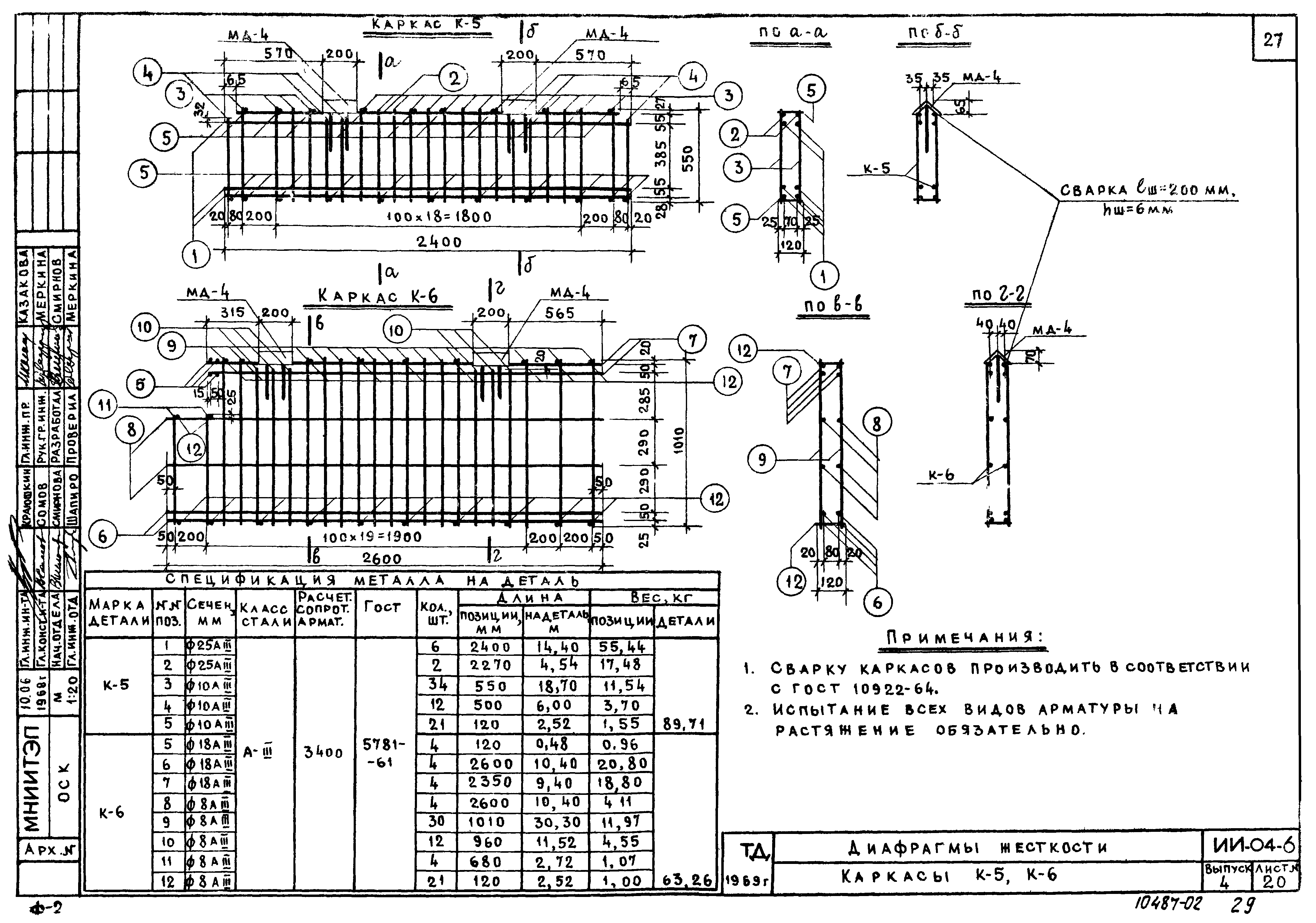
Каркасы К-5, К-6
Каркасы К-7, К-8, К-12
Каркас К-9
Каркасы К-10, К-14
Каркас К-11
Сетки С-1лев, C-1np, С-2лев, С-2пр, С-3лев, С-3пр
Сетки С-4лев, С-4пр, С-4лев, С-5пр
Сетки С-6лев, С-6пр, С-7лев, С-7пр
Сетки С-8лев, С-8пр
Сетки С-9лев, С-9пр, С-10лев, С-10пр
Закладная деталь МД-1
Закладная деталь МД-3
Деталь МД-4; OC-1; петли П-1, П-2, П-3; СТ-1, СТ-2, СТ-3, СТ-4
Узлы "1","2","3","4"
Узлы "5","6","7","8"
Узлы "9","10","11","12"
Узлы "14","15","16","17"
Схемы крепления диафрагм жесткости и примыкающим конструкциям при высоте этажа 3,3 м
Схемы крепления диафрагм жесткости к примыкающим конструкциям при высоте этажа 4,2 м
Узлы К-4к, К-4л, К-4н, К-4п. Крепление диафрагм жесткости
Узлы К-4м, К-4р, К-4с, К-4т. Крепление диафрагм жесткости
Узлы К-4у, К-4ф. Крепление диафрагм жесткости
Монтажные детали ММД-4, ММД-5
Разработан: МНИИТЭП
Утверждён:01.08.1969 Государственный комитет по гражданскому строительству и архитектуре при Госстрое СССР (160)
Расположен в:Техническая документация Строительство Справочные документы Типовые строительные конструкции, изделия и узлы Общероссийский строительный каталог Строительные конструкции, изделия и узлы зданий и сооружений для всех видов строительства Конструкции, изделия и узлы зданий Несущие конструкции двухэтажных и многоэтажных зданий Каркасные здания
Серия ИИ-04-6Серия ИИ-04-6Серия ИИ-04-6Серия ИИ-04-6Серия ИИ-04-6Серия ИИ-04-6Серия ИИ-04-6Серия ИИ-04-6Серия ИИ-04-6Серия ИИ-04-6Серия ИИ-04-6Серия ИИ-04-6Серия ИИ-04-6Серия ИИ-04-6Серия ИИ-04-6Серия ИИ-04-6Серия ИИ-04-6Серия ИИ-04-6Серия ИИ-04-6Серия ИИ-04-6Серия ИИ-04-6Серия ИИ-04-6Серия ИИ-04-6Серия ИИ-04-6Серия ИИ-04-6Серия ИИ-04-6Серия ИИ-04-6Серия ИИ-04-6Серия ИИ-04-6Серия ИИ-04-6Серия ИИ-04-6Серия ИИ-04-6Серия ИИ-04-6Серия ИИ-04-6Серия ИИ-04-6Серия ИИ-04-6Серия ИИ-04-6Серия ИИ-04-6Серия ИИ-04-6Серия ИИ-04-6Серия ИИ-04-6Серия ИИ-04-6Серия ИИ-04-6Серия ИИ-04-6Серия ИИ-04-6Серия ИИ-04-6Серия ИИ-04-6Серия ИИ-04-6Серия ИИ-04-6Серия ИИ-04-6Серия ИИ-04-6Серия ИИ-04-6

© 2013 Ёшкин Кот :-) Карта сайта