| ||||||||||||||||||||||||
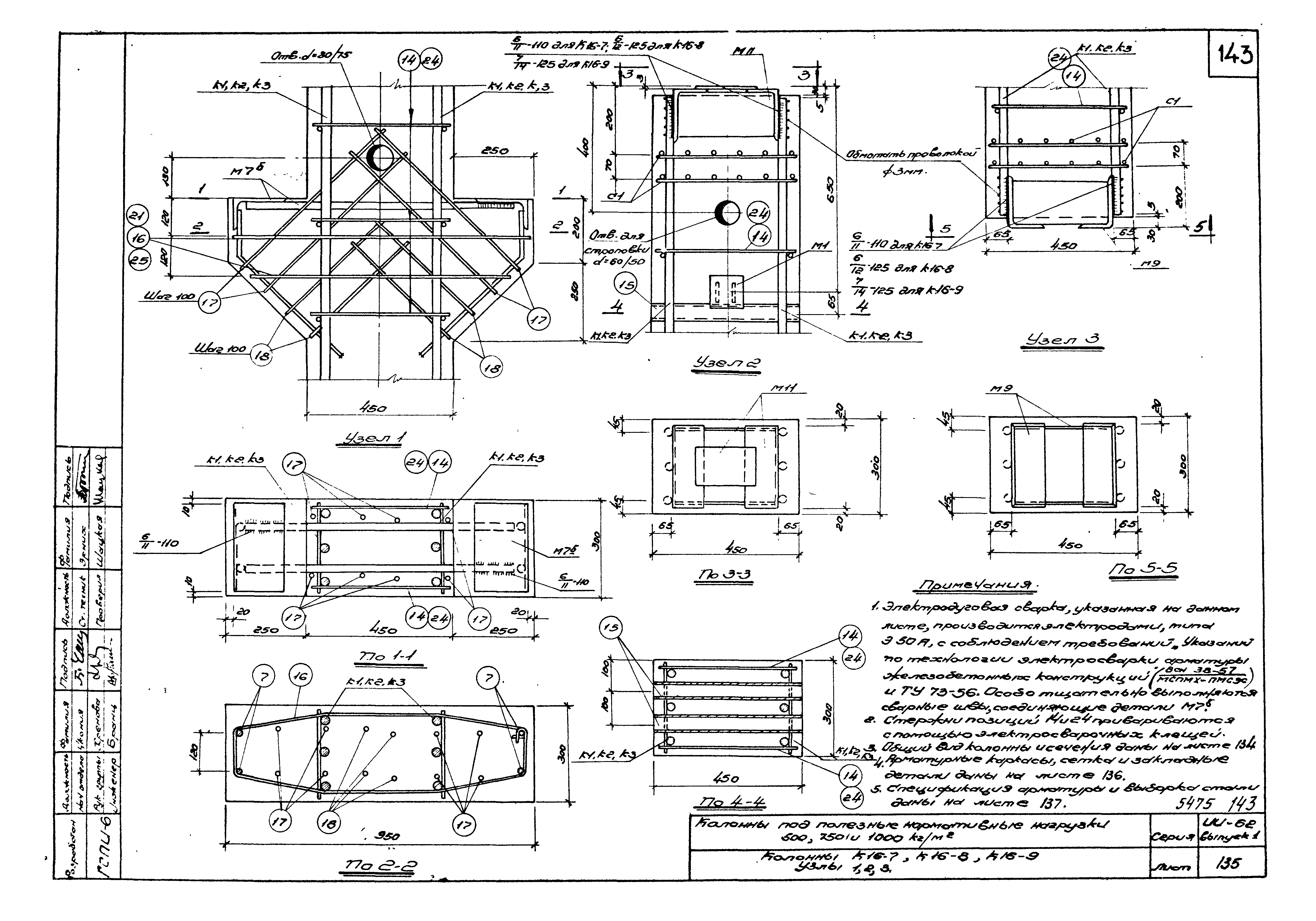
Скачать Серия ИИ-62 Выпуск 1. Колонны под полезные нормальные нагрузки 500; 750 и 1000 кг/кв. мДата актуализации: 10.08.2017
|
| Обозначение: | Серия ИИ-62 |
| Обозначение англ: | Series ИИ-62 |
| Статус: | не действует |
| Название рус.: | Выпуск 1. Колонны под полезные нормальные нагрузки 500; 750 и 1000 кг/кв. м |
| Дата добавления в базу: | 01.09.2013 |
| Дата актуализации: | 05.05.2017 |
| Разработан: | Гипротис НИИЖБ АСиА СССР ГСПИ-6 ГСПИ-5 |
| Утверждён: | 27.01.1960 Госстрой СССР (Государственный комитет Совета Министров СССР по делам строительства) (USSR Gosstroy 40) |
| Издан: | ЦИТП Госстроя СССР (CITP, Gosstroy (USSR) 1961 г. ) |
| Расположен в: |






























































































































































