Обозначение: | Серия 1.020-1 |
Обозначение англ: | Series 1.020-1 |
Статус: | не действует |
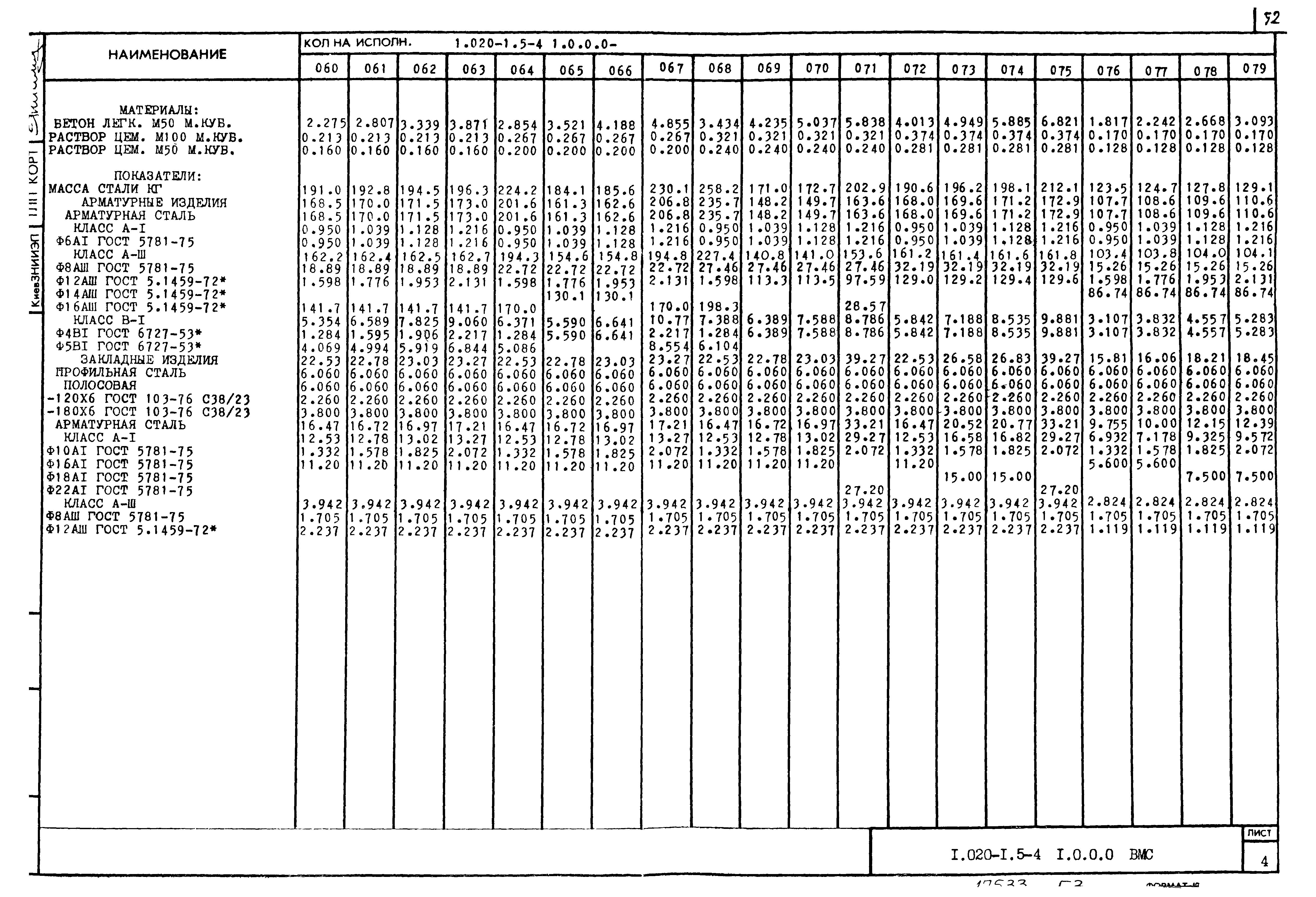
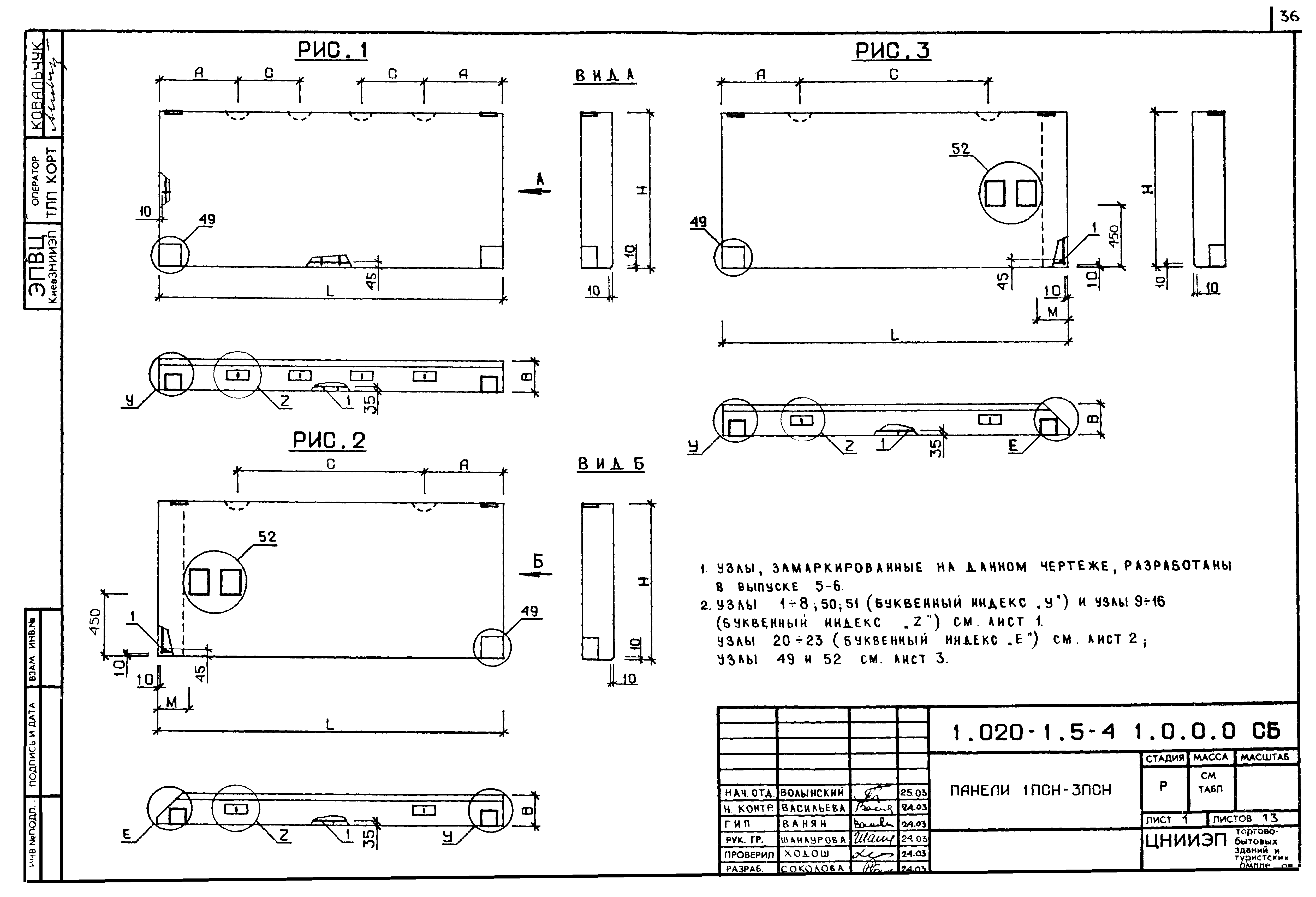
Название рус.: | Выпуск 5-4. Навесные панели наружных стен из легких ячеистых бетонов. Опалубочные чертежи и армирование. Рабочие чертежи |
Дата добавления в базу: | 01.09.2013 |
Дата актуализации: | 05.05.2017 |
Дата введения: | 01.01.1982 |
Дата окончания срока действия: | 01.10.1984 |
Оглавление: | Содержание 1.020-1.5-4.0.0.0.0ПЗ Пояснительная записка 1.020-1.5-4.1.0.0.0 Панель 1ПС. Панель 2ПС. Панель 3ПС 1.020-1.5-4.2.0.0.0 Панель 4ПС. Панель 5ПС |
Разработан: | НИИЖБ Госстроя СССР ЦНИИпромзданий ЦНИИЭП торгово-бытовых зданий и туристских комплексов
|
Утверждён: | 16.11.1981 Госстрой СССР (Государственный комитет Совета Министров СССР по делам строительства) (USSR Gosstroy 190)
|
Расположен в: |
|
Заменяет собой: | |
Чем заменён: | |