Информационная система
«Ёшкин Кот»

Скачать базу одним архивом
Скачать обновления
История создания базы
Карта сайта

Скачать Серия 1.020-1 Выпуск 3-5. Ригели покрытий пролетом 9,0; 7,2; 6,0; 4,5 и 3,0 м под многопустотные панели и ребристые плиты перекрытий. Опалубочные чертежи и армирование. Пространственные каркасы. Рабочие чертежи

Дата актуализации: 10.08.2017

Серия 1.020-1

Выпуск 3-5. Ригели покрытий пролетом 9,0; 7,2; 6,0; 4,5 и 3,0 м под многопустотные панели и ребристые плиты перекрытий. Опалубочные чертежи и армирование. Пространственные каркасы. Рабочие чертежи

Обозначение: Серия 1.020-1
Обозначение англ: Series 1.020-1
Статус:не действует
Название рус.:Выпуск 3-5. Ригели покрытий пролетом 9,0; 7,2; 6,0; 4,5 и 3,0 м под многопустотные панели и ребристые плиты перекрытий. Опалубочные чертежи и армирование. Пространственные каркасы. Рабочие чертежи
Дата добавления в базу:01.09.2013
Дата актуализации:05.05.2017
Дата введения:01.01.1982
Дата окончания срока действия:01.10.1984
Оглавление:Содержание
1.020-1.3-5.0.0.0.0ПЗ Пояснительная записка
1.020-1.3-5.1.0.0.0 Ригель 2РД4
1.020-1.3-5.2.0.0.0 Ригель 2РО4
1.020-1.3-5.3.0.0.0 Ригель 2РД4
1.020-1.3-5.4.0.0.0 Ригель 2РО4
1.020-1.3-5.5.0.0.0 Ригель 2РД6
1.020-1.3-5.6.0.0.0 Ригель 2РО6
1.020-1.3-5.7.0.0.0 Ригель 2Р
1.020-1.3-5.8.0.0.0 Ригель 2РД6
1.020-1.3-5.9.0.0.0 Ригель 2РО6
1.020-1.3-5.0.1.0.0 Каркас пространственный
1.020-1.3-5.0.2.0.0 Каркас пространственный
1.020-1.3-5.0.3.0.0 Каркас пространственный
1.020-1.3-5.0.4.0.0 Каркас пространственный
1.020-1.3-5.0.5.0.0 Каркас пространственный
1.020-1.3-5.0.6.0.0 Каркас пространственный
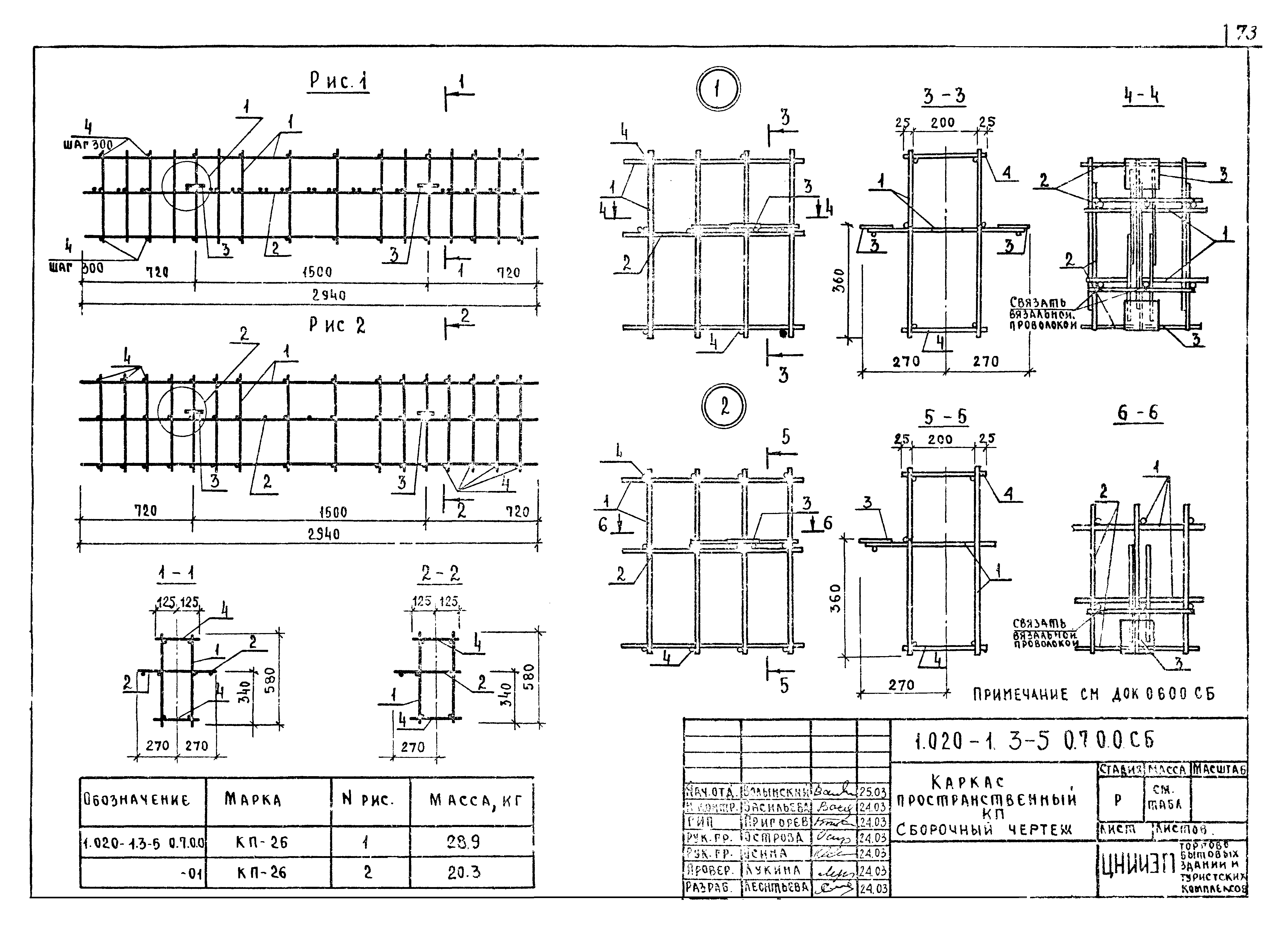
1.020-1.3-5.0.7.0.0 Каркас пространственный
1.020-1.3-5.0.8.0.0 Каркас пространственный
1.020-1.3-5.0.9.0.0 Каркас пространственный
1.020-1.3-5.0.0.0.0ВСТ Выборка стали на один ригель
Разработан: НИИЖБ Госстроя СССР
ЦНИИпромзданий
ЦНИИЭП торгово-бытовых зданий и туристских комплексов
Утверждён:16.11.1981 Госстрой СССР (Государственный комитет Совета Министров СССР по делам строительства) (USSR Gosstroy 190)
Расположен в:Техническая документация Строительство Справочные документы Типовые строительные конструкции, изделия и узлы Общероссийский строительный каталог Строительные конструкции, изделия и узлы зданий и сооружений для всех видов строительства Конструкции, изделия и узлы зданий Несущие конструкции двухэтажных и многоэтажных зданий Каркасные здания
Заменяет собой:
Чем заменён:
Серия 1.020-1Серия 1.020-1Серия 1.020-1Серия 1.020-1Серия 1.020-1Серия 1.020-1Серия 1.020-1Серия 1.020-1Серия 1.020-1Серия 1.020-1Серия 1.020-1Серия 1.020-1Серия 1.020-1Серия 1.020-1Серия 1.020-1Серия 1.020-1Серия 1.020-1Серия 1.020-1Серия 1.020-1Серия 1.020-1Серия 1.020-1Серия 1.020-1Серия 1.020-1Серия 1.020-1Серия 1.020-1Серия 1.020-1Серия 1.020-1Серия 1.020-1Серия 1.020-1Серия 1.020-1Серия 1.020-1Серия 1.020-1Серия 1.020-1Серия 1.020-1Серия 1.020-1Серия 1.020-1Серия 1.020-1Серия 1.020-1Серия 1.020-1Серия 1.020-1Серия 1.020-1Серия 1.020-1Серия 1.020-1Серия 1.020-1Серия 1.020-1Серия 1.020-1Серия 1.020-1Серия 1.020-1Серия 1.020-1Серия 1.020-1Серия 1.020-1Серия 1.020-1Серия 1.020-1Серия 1.020-1Серия 1.020-1Серия 1.020-1Серия 1.020-1Серия 1.020-1Серия 1.020-1Серия 1.020-1Серия 1.020-1Серия 1.020-1Серия 1.020-1Серия 1.020-1Серия 1.020-1Серия 1.020-1Серия 1.020-1Серия 1.020-1Серия 1.020-1Серия 1.020-1Серия 1.020-1Серия 1.020-1Серия 1.020-1Серия 1.020-1Серия 1.020-1Серия 1.020-1Серия 1.020-1Серия 1.020-1Серия 1.020-1Серия 1.020-1Серия 1.020-1Серия 1.020-1Серия 1.020-1Серия 1.020-1Серия 1.020-1Серия 1.020-1Серия 1.020-1

© 2013 Ёшкин Кот :-) Карта сайта