Информационная система
«Ёшкин Кот»

Скачать базу одним архивом
Скачать обновления
История создания базы
Карта сайта

Скачать Серия 1.863-1 Выпуск 1. Фермы пролетами 12 и 18 м. Рабочие чертежи

Дата актуализации: 10.08.2017

Серия 1.863-1

Выпуск 1. Фермы пролетами 12 и 18 м. Рабочие чертежи

Обозначение: Серия 1.863-1
Обозначение англ: Series 1.863-1
Статус:не действует
Название рус.:Выпуск 1. Фермы пролетами 12 и 18 м. Рабочие чертежи
Дата добавления в базу:01.09.2013
Дата актуализации:05.05.2017
Дата введения:01.10.1972
Оглавление:Фермы пролетом 12 и 18 м
Содержание
Пояснительная записка
Схемы хранения, транспортирования и кантования ферм. Узлы опирания
Схемы испытания ферм
Фермы пролетом 12 м
Опалубочный чертеж
Арматурный чертеж
Арматурные узлы А,Б,В,Г
Арматурные каркасы КП-1,КП-2
Арматурные каркасы КП-4,КП-5,КП-6
Арматурный каркас КП-3
Арматурные каркасы КП-8,КП-9. Сетки С-1,С-2
Закладные элементы М-1-М-4
Вариант армирования нижних поясов ферм с напрягаемой арматурой из стали классов АIIIв и АV
Фермы пролетом 18 м
Опалубочный чертеж
Арматурный чертеж ФБТ18-1 и ФБТ18-2
Арматурный чертеж ФБТ18-3, ФБТ18-4,ФБТ18-5
Арматурные узлы А,Б,В,Г
Арматурный каркас КП-1
Арматурный каркас КП-2. Сетки С-1-С-4
Арматурный каркас КП-3
Арматурный каркас КП-4
Арматурные каркасы КП-10,КП-11,КП-5
Арматурные каркасы КП-6,КП-11
Арматурный каркас КП-8
Арматурный каркас КП-9
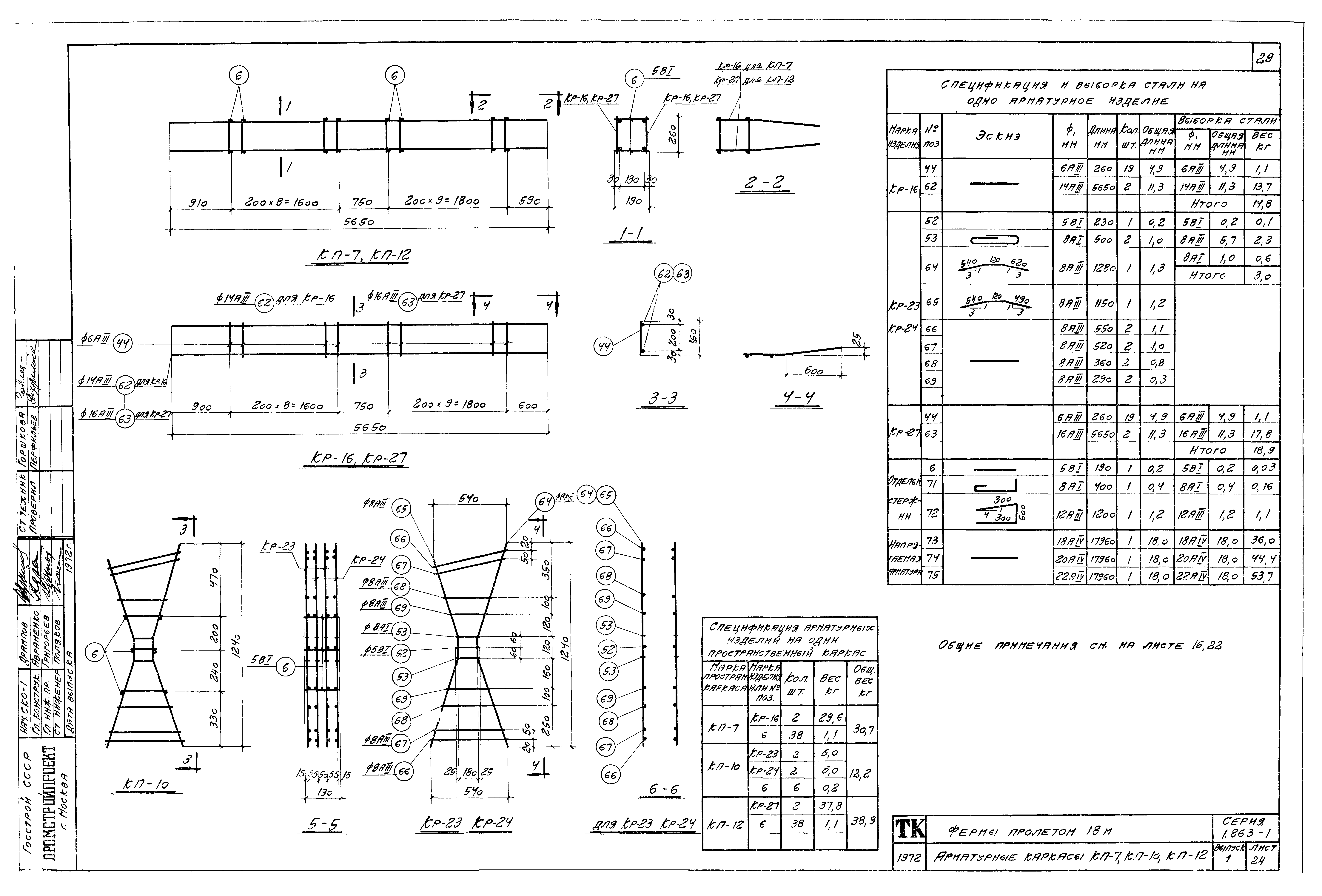
Арматурные каркасы КП-7,КП-10,КП-12
Закладные элементы М-1,М-2,М-3
Вариант армирования нижних поясов ферм с напрягаемой арматурой из стали классов АIIIв и А-V
Разработан: НИИЖБ Госстроя СССР
Гипронисельхоз Минсельхоза СССР
ЦНИИЭПсельстрой Минсельстроя СССР
Промстройпроект
Утверждён:01.08.1972 Госстрой СССР (Государственный комитет Совета Министров СССР по делам строительства) (USSR Gosstroy 150)
Расположен в:Техническая документация Строительство Справочные документы Типовые строительные конструкции, изделия и узлы Общероссийский строительный каталог Строительные конструкции, изделия и узлы зданий и сооружений для всех видов строительства Конструкции, изделия и узлы зданий Несущие конструкции одноэтажных зданий Стропильные и подстропильные конструкции Фермы Железобетонные
Чем заменён:
Серия 1.863-1Серия 1.863-1Серия 1.863-1Серия 1.863-1Серия 1.863-1Серия 1.863-1Серия 1.863-1Серия 1.863-1Серия 1.863-1Серия 1.863-1Серия 1.863-1Серия 1.863-1Серия 1.863-1Серия 1.863-1Серия 1.863-1Серия 1.863-1Серия 1.863-1Серия 1.863-1Серия 1.863-1Серия 1.863-1Серия 1.863-1Серия 1.863-1Серия 1.863-1Серия 1.863-1Серия 1.863-1Серия 1.863-1Серия 1.863-1Серия 1.863-1Серия 1.863-1Серия 1.863-1Серия 1.863-1Серия 1.863-1Серия 1.863-1

© 2013 Ёшкин Кот :-) Карта сайта