Скачать Серия 1.420-6 Выпуск 8. Часть 2. Железобетонные ригели пролетом 12 м (армированные сталью классов А-IIIв, А-IV, А-V, Ат-V и прядями класса П-7). Рабочие чертежиДата актуализации: 10.08.2017 Серия 1.420-6
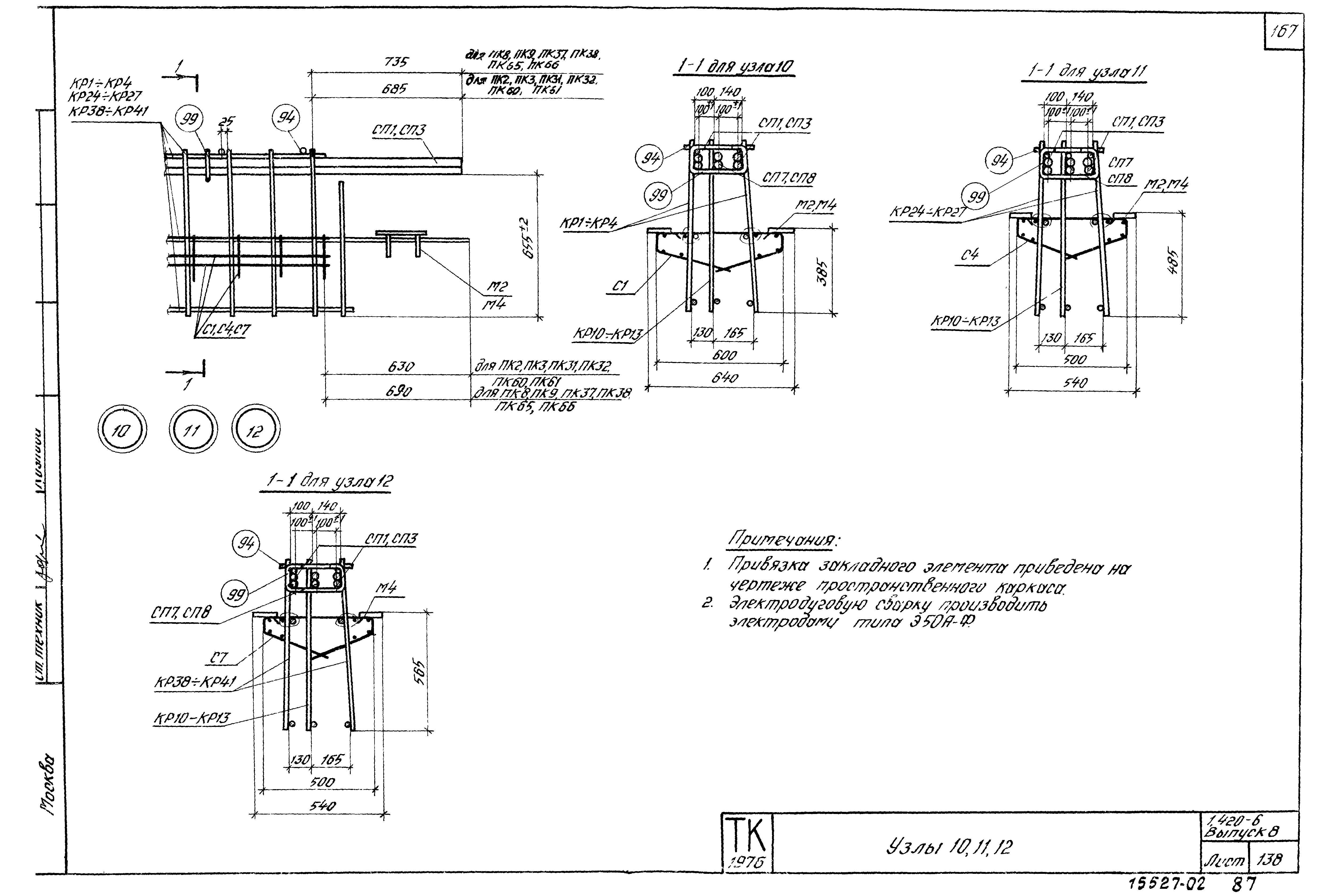
Выпуск 8. Часть 2. Железобетонные ригели пролетом 12 м (армированные сталью классов А-IIIв, А-IV, А-V, Ат-V и прядями класса П-7). Рабочие чертежиОбозначение: | Серия 1.420-6 | Обозначение англ: | Series 1.420-6 | Статус: | заменен | Название рус.: | Выпуск 8. Часть 2. Железобетонные ригели пролетом 12 м (армированные сталью классов А-IIIв, А-IV, А-V, Ат-V и прядями класса П-7). Рабочие чертежи | Дата добавления в базу: | 01.09.2013 | Дата актуализации: | 05.05.2017 | Дата введения: | 01.09.1990 | Оглавление: | 12. Спецификация марок арматурных изделий и закладных деталей на один ригель 13. Расположение предварительно напрягаемой арматуры 14. Пространственные каркасы ПК1-ПК147 15. Спецификация марок арматурных изделий и закладных деталей на один пространственный каркас 16. Узлы 1-71 17. Спецификация позиций арматурных изделий и закладных деталей на альбом 18. Перечень позиций на один ригель 19. Выборка стали на один ригель 20. Пример образования пространственного каркаса при отсутствии электросварочных клещей 21. Вариант ригелей типоразмеров Б30-Б38,Ь29-3 с петля для подъема 22. Показатели на один ригель. Вариант ригелей с петлями для подъема 23. Пример фиксации плоских каркасов в пространственном при транспортировании и складировании с помощью фиксаторов для ригелей с напрягаемой арматурой 24. Пример фиксации плоских каркасов в пространственном при транспортировании и складировании с помощью фиксаторов для ригелей с прядевой арматурой | Разработан: | ЦНИИпромзданий НИИЖБ
| Утверждён: | 18.10.1978 Госстрой СССР (Государственный комитет Совета Министров СССР по делам строительства) (USSR Gosstroy 202)
| Расположен в: |
| Заменяет собой: | | Чем заменён: | |
                                                                                                                                                                            
|