| ||||||||||||||||||||||||
Скачать Серия 1.236-3 Выпуск 3. Уличные витрины-ленты торговых зданий с высотой торгового этажа 3,30 и 4,20 м из тонкостенных электросварных стальных труб со спаренным остеклениемДата актуализации: 10.08.2017
|
| Обозначение: | Серия 1.236-3 |
| Обозначение англ: | Series 1.236-3 |
| Статус: | не действует |
| Название рус.: | Выпуск 3. Уличные витрины-ленты торговых зданий с высотой торгового этажа 3,30 и 4,20 м из тонкостенных электросварных стальных труб со спаренным остеклением |
| Дата добавления в базу: | 01.09.2013 |
| Дата актуализации: | 05.05.2017 |
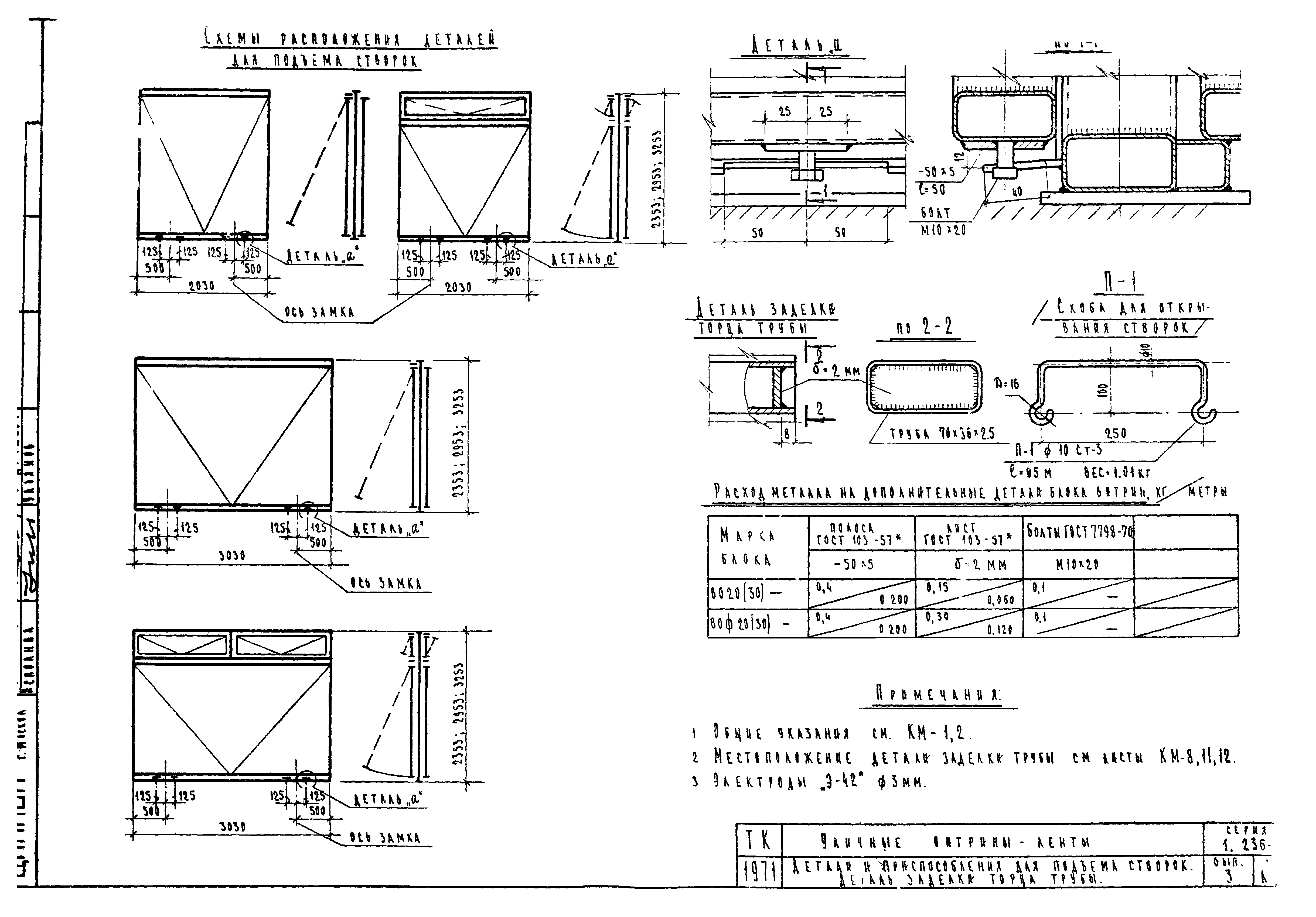
| Оглавление: | Пояснительная записка Часть I Номенклатура и указания по ее применению Номенклатура Монтажные схемы Примеры решения углов витрин Монтажный узел 1 Монтажный узел 2 Монтажный узел 3 Монтажный узел 4,4а,5 Монтажный узел 6,7 Детали крепления стекла Расход материалов на один блок витрин Часть II Чертежи КМ КМ-1,КМ-2 Заглавный лист КМ-3 Схемы основных блоков ВО20-23,ВО20-29,ВО20-32 КМ-4 Схемы основных блоков ВО30-23,ВО30-29,ВО30-32 КМ-5 Схемы фрамужных блоков ВОФ20-29,ВОФ20-32 КМ-6 Схемы фрамужных блоков ВОФ30-29,ВОФ30-32 КМ-7 Схемы фрамужных блоков ВОФ20-23,ВОФ30-23 КМ-8 Узлы блока № 1,2 КМ-9 Узлы каркаса "К","К" № 3,3а,5,5а КМ-10 Узлы открывающейся створки "СО" и узлы глухой створки "СГ" № 6,7,8 КМ-11 Узлы фрамужного блока № 9,10,11,12 КМ-12 Узлы каркаса фрамужного блока "КФ" № 4,4а КМ-13 Схема витрин с наращенными стойками. Узлы сопряжения КМ-14 Стопорное устройство для открывающихся створок КМ-15 Детали и приспособления для подъема створок. Деталь заделки торца трубы |
| Разработан: | ЦНИИЭП торгово-бытовых зданий и туристских комплексов |
| Утверждён: | 31.08.1971 Госгражданстрой (Gosgrazhdanstroy 163) |
| Расположен в: |


































