Информационная система
«Ёшкин Кот»

Скачать базу одним архивом
Скачать обновления
История создания базы
Карта сайта

Скачать Типовой проект 902-1-90.84 Альбом IV. Строительные решения. Подземная часть (опускной способ в сухих и мокрых грунтах)

Дата актуализации: 10.08.2017

Типовой проект 902-1-90.84

Альбом IV. Строительные решения. Подземная часть (опускной способ в сухих и мокрых грунтах)

Обозначение: Типовой проект 902-1-90.84
Обозначение англ: 902-1-90.84
Статус:действует
Название рус.:Альбом IV. Строительные решения. Подземная часть (опускной способ в сухих и мокрых грунтах)
Дата добавления в базу:01.09.2013
Дата актуализации:05.05.2017
Дата введения:18.04.1984
Оглавление:Содержание
Основной комплект КЖ
Общие данные (начало)
Общие данные (окончание)
Планы на отм. -8.640 и -6.200. Разрезы 1-1;2-2
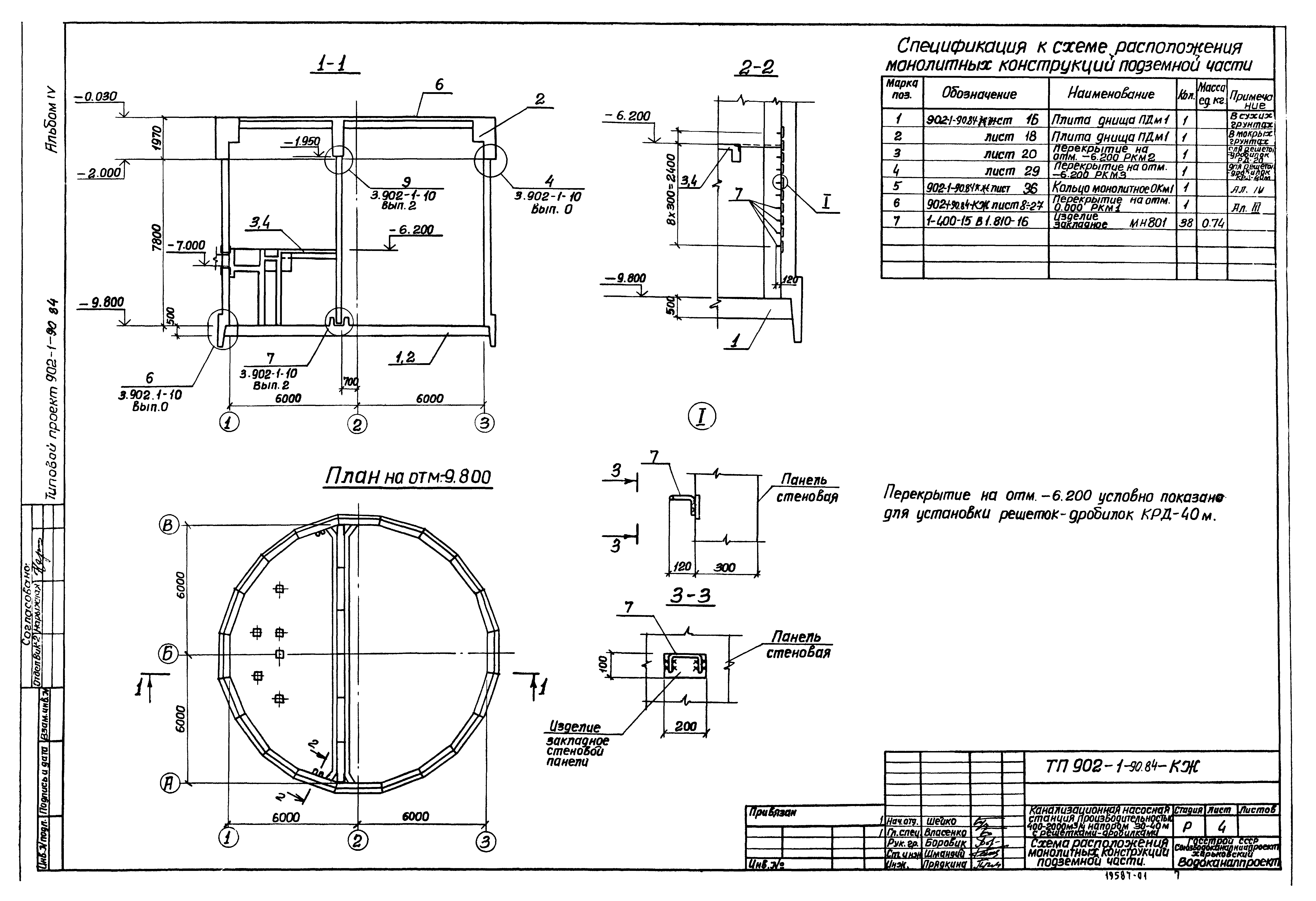
Схема расположения монолитных конструкций подземной части
Схема расположения стеновых панелей. Разрезы 1-1,2-2
Схема расположения стеновых панелей. Развертка наружной стены. Узел 1
Схема расположения стеновых панелей. Узлы 2-3
Схема расположения стеновых панелей. Узлы 4-6
Схема расположения стеновых панелей. Узлы 7-8
Схема расположения стеновых панелей. Узлы 9-10
Схема расположения стеновых панелей. Узлы 11-14
Схема расположения стеновых панелей. Узлы 14-15
Схема расположения стеновых панелей. Узлы 16-17
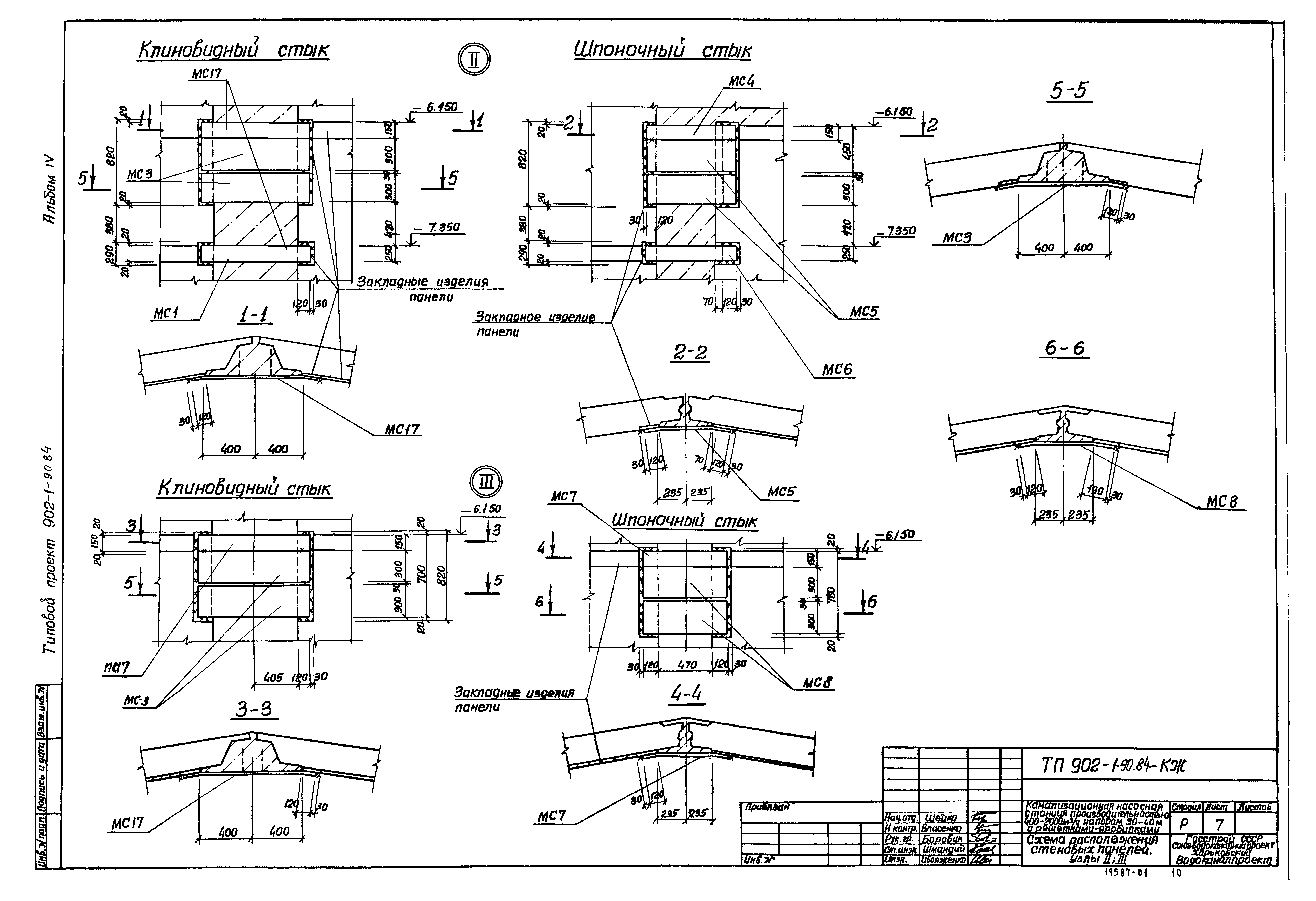
Схема расположения стеновых панелей. Спецификация (клиновидный стык). Узел 18
Схема расположения стеновых панелей. Спецификация (шпоночный стык). Узел 17,18
Плита днища ПДМ1. Общий вид. Схема армирования (в сухих грунтах)
Плита днища ПДМ1. Схема армирования. Спецификация (в сухих грунтах)
Плита днища ПДМ1. Общий вид. Схема армирования (в мокрых грунтах)
Плита днища ПДМ1. Схема армирования. Спецификация (в мокрых грунтах)
РКМ2. Перекрытие на отм. -6.200. План и сечения 1-1-3-3,7-7
РКМ2. Перекрытие на отм. -6.200. Элемент плана 1. Сечения 4-4-6-6
РКМ2. Перекрытие на отм. -6.200. Плита ПМ1. Балки БМ1-БМ3. Схема армирования
РКМ2, РКМ3. Перекрытие на отм. -6.200. Балки БМ4-БМ8. Схема армирования
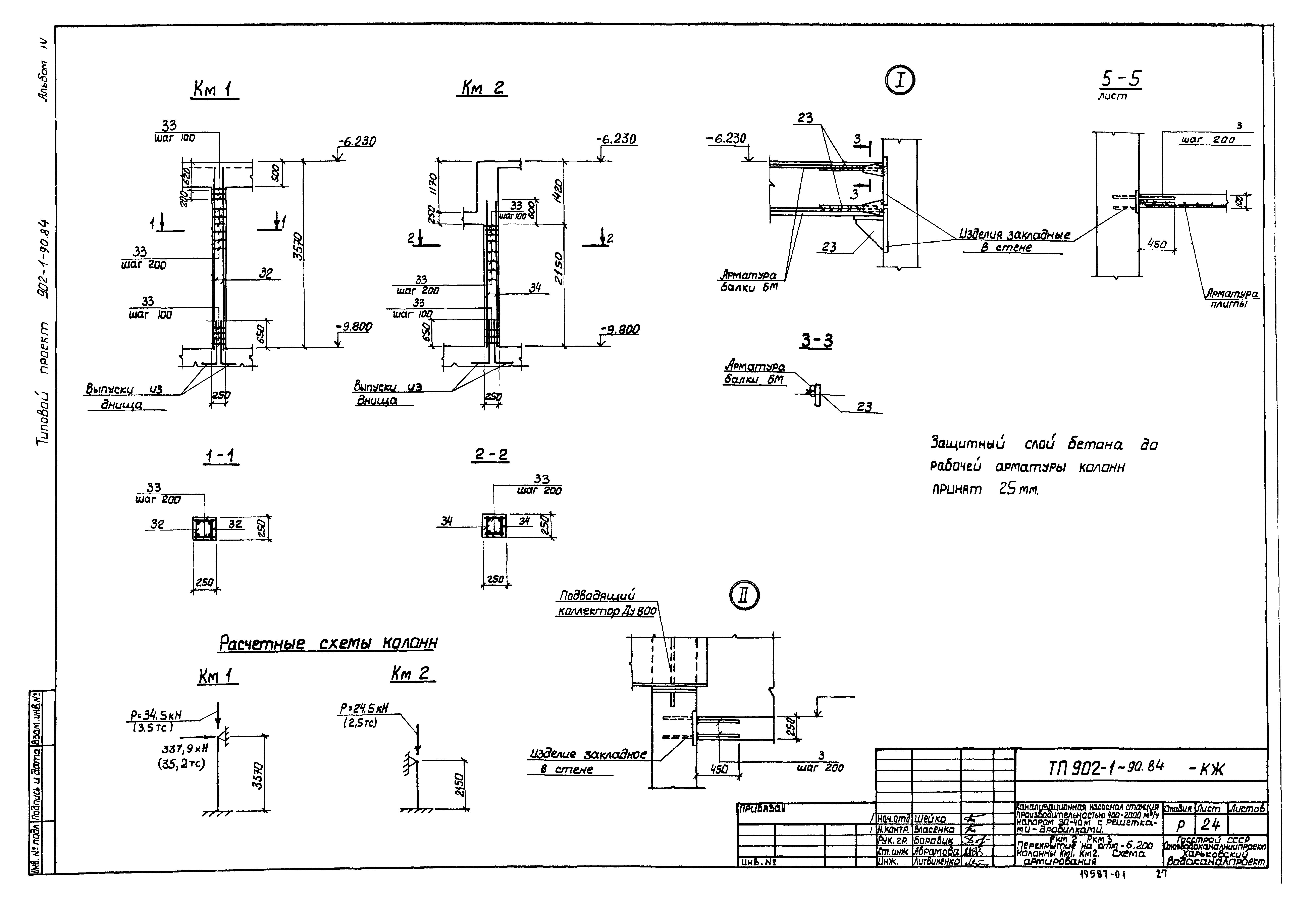
РКМ2, РКМ3. Перекрытие на отм. -6.200. Колонны КМ1,КМ2. Схема армирования
РКМ2. Перекрытие на отм. -6.200. Лоток ЛТМ1. Схема армирования
РКМ2. Перекрытие на отм. -6.200. Лоток ЛТМ1. Схема армирования. Сечения 3-3-8-8
РКМ2. Схема армирования. Спецификация (начало)
РКМ2. Схема армирования. Спецификация (окончание)
РКМ3. Перекрытие на отм. -6.200. План и сечения 1-1-3-3,7-7
РКМ3. Перекрытие на отм. -6.200. Элемент плана 1. Сечения 4-4-6-6
РКМ3. Перекрытие на отм. -6.200. Плита ПМ2. Балки БМ1-БМ3. Схема армирования
РКМ3. Перекрытие на отм. -6.200. Лоток ЛТМ2. Схема армирования
РКМ3. Перекрытие на отм. -6.200. Лоток ЛТМ2. Схема армирования. Сечение 3-3-9-9
РКМ3. Схема армирования. Спецификация (начало)
РКМ3. Схема армирования. Спецификация (окончание)
ОКМ1. Опорное кольцо. Общий вид
ОКМ1. Схема армирования
ОКМ1. Схема армирования. Спецификация
Основной комплект КМ
Общие данные (начало)
Общие данные (окончание)
Схема расположения лестниц, лестничных площадок. Разрезы 1-1,2-2
Схемы узлов лестниц. Узел 1
Узлы 2-5
Разработан: Харьковский Водоканалпроект
Утверждён:27.10.1983 СоюзводоканалНИИпроект (SoyuzvodokanalNIIproject 59)
Расположен в:Техническая документация Строительство Справочные документы Типовые строительные конструкции, изделия и узлы Общероссийский строительный каталог Промышленные предприятия, здания и сооружения Здания и сооружения санитарно-технические Канализация Станции насосные Станции насосные для перекачки бытовых сточных вод
Типовой проект 902-1-90.84Типовой проект 902-1-90.84Типовой проект 902-1-90.84Типовой проект 902-1-90.84Типовой проект 902-1-90.84Типовой проект 902-1-90.84Типовой проект 902-1-90.84Типовой проект 902-1-90.84Типовой проект 902-1-90.84Типовой проект 902-1-90.84Типовой проект 902-1-90.84Типовой проект 902-1-90.84Типовой проект 902-1-90.84Типовой проект 902-1-90.84Типовой проект 902-1-90.84Типовой проект 902-1-90.84Типовой проект 902-1-90.84Типовой проект 902-1-90.84Типовой проект 902-1-90.84Типовой проект 902-1-90.84Типовой проект 902-1-90.84Типовой проект 902-1-90.84Типовой проект 902-1-90.84Типовой проект 902-1-90.84Типовой проект 902-1-90.84Типовой проект 902-1-90.84Типовой проект 902-1-90.84Типовой проект 902-1-90.84Типовой проект 902-1-90.84Типовой проект 902-1-90.84Типовой проект 902-1-90.84Типовой проект 902-1-90.84Типовой проект 902-1-90.84Типовой проект 902-1-90.84Типовой проект 902-1-90.84Типовой проект 902-1-90.84Типовой проект 902-1-90.84Типовой проект 902-1-90.84Типовой проект 902-1-90.84Типовой проект 902-1-90.84Типовой проект 902-1-90.84Типовой проект 902-1-90.84Типовой проект 902-1-90.84Типовой проект 902-1-90.84Типовой проект 902-1-90.84Типовой проект 902-1-90.84Типовой проект 902-1-90.84

© 2013 Ёшкин Кот :-) Карта сайта