Информационная система
«Ёшкин Кот»

Скачать базу одним архивом
Скачать обновления
История создания базы
Карта сайта

Скачать Типовой проект 904-1-70.86 Альбом 1. Технология производства

Дата актуализации: 10.08.2017

Типовой проект 904-1-70.86

Альбом 1. Технология производства

Обозначение: Типовой проект 904-1-70.86
Обозначение англ: 904-1-70.86
Статус:действует
Название рус.:Альбом 1. Технология производства
Дата добавления в базу:01.09.2013
Дата актуализации:05.05.2017
Оглавление:Титульный лист
Содержание
Пояснительная записка (начало)
Пояснительная записка (продолжение)
Пояснительная записка (окончание)
Общие данные (начало)
Общие данные (окончание)
План расположения оборудования
План расположения оборудования. Разрез 1-1
Схема комбинированная принципиальная компрессорного агрегата
Схема комбинированная принципиальная компрессорной станции
Условные обозначения
Помещение для промывки и зарядки ячеек фильтров, установки маслобаков. Разводка трубопроводов
Компрессорный агрегат. Разводка трубопроводов
Концевой холодильник. Разводка трубопроводов
Воздухосборник. Разводка трубопроводов
Продувочный бак. Разводка трубопроводов
Разводка трубопроводов. План
Разводка трубопроводов. План. Разрезы
Разводка трубопроводов. Разрезы
Спецификация оборудования, арматуры и монтажных материалов трубопроводов
Ведомость теплоизоляционных конструкций
Размещение отборных устройств КИП
Опросный лист на кран
Муфта, ТД-1
Пробка, ТД-2
Фланец, ТД-3,ТД-4
Опора, ТУ-1,-2,-3,-4,-5,-6
Воронка, ТУ-7
Опора, ТУ-8
Опорная конструкция, ТУ-9
Опора, ТУ-10
Глушитель шума стравливания. Эскизный чертеж ГШС.120.00.000 ЭЧ
Промежуточный бак продувок, ПБ.00.000
Маслосборник, МС.00.000
Фильтр с глушителем. Исходные требования ГФ.00.00.00.000.ИТ
Глушитель шума стравливания. Исходные требования ГШС.120.00.000.ИТ
Фильтр с глушителем. Эскизный чертеж ГФ.00.00.00.000.ЭЧ
Бак продувочный. Исходные требования БП.00.000.ИТ
Бак продувочный. Техническое описание БП.00.000.ТО
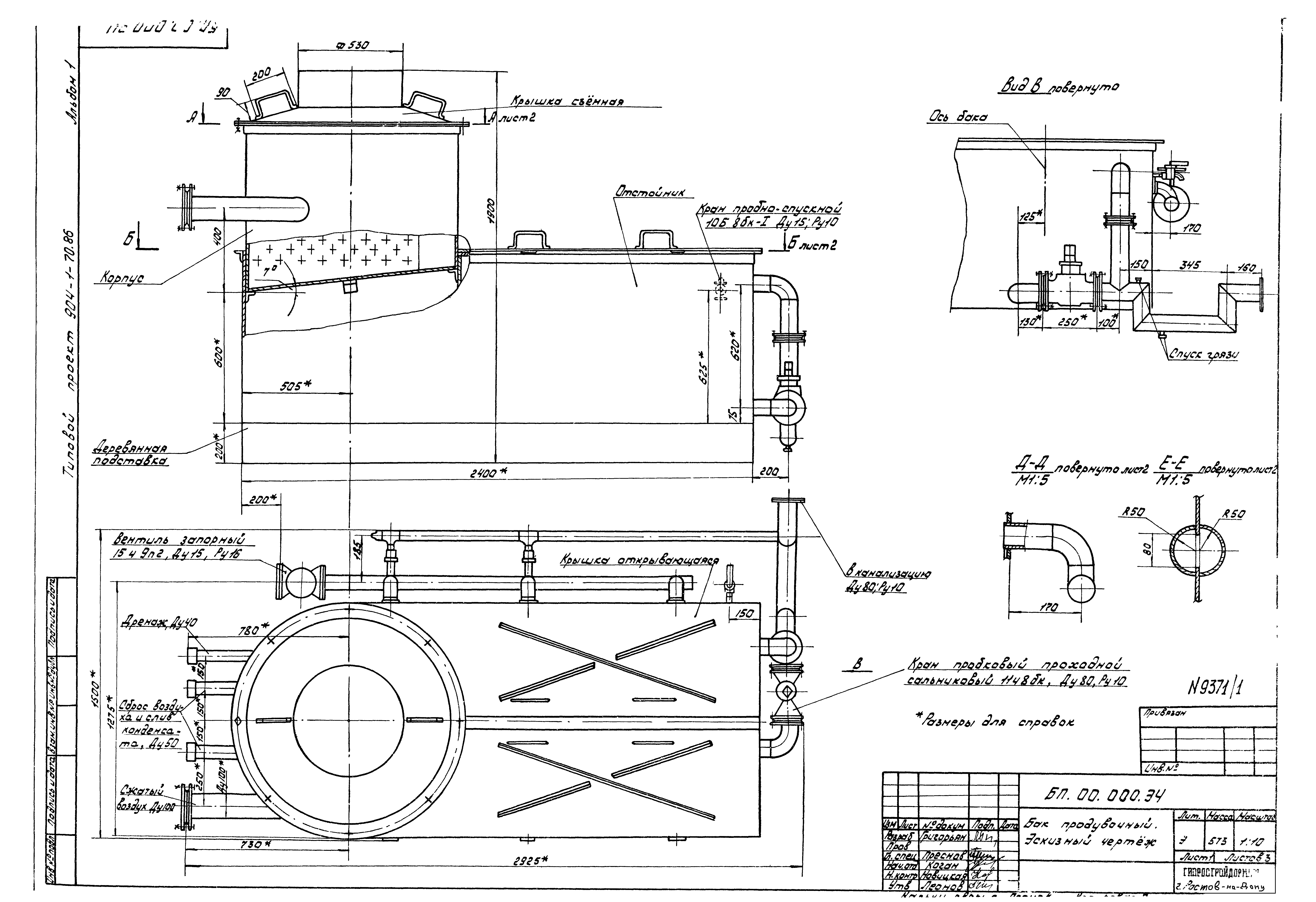
Бак продувочный. Эскизочный чертеж БП.00.000.ЭЧ
Установка для очистки трасс сжатого воздуха. Эскизочный чертеж УО.00.000.ЭЧ
Установка для очистки трасс сжатого воздуха. Техническое описание и инструкция по эксплуатации УО.00.000.ТО
Установка для очистки трасс сжатого воздуха. Исходные требования УО.00.000.ИТ
Бак для масла, V=300 л. Исходные требования БМ.00.000.ИТ
Бак для масла, V=300 л. Эскизочный чертеж БМ.00.000.ЭЧ
Бак для масла, V=50 л. Исходные требования БР.00.000.ИТ
Бак для масла, V=50 л. Эскизочный чертеж БР.00.000.ЭЧ
Ванна для промывки ячеек фильтров. Исходные требования ВП.00.000.ИТ
Ванна для зарядки ячеек фильтров. Исходные требования ВЗ.00.000.ИТ
Ванна для промывки ячеек фильтров. Эскизочный чертеж ВП.00.000.ЭЧ
Ванна для зарядки ячеек фильтров. Эскизочный чертеж ВЗ.00.000.ЭЧ
Стол для отстоя ячеек фильтров. Исходные требования. СО.00.000.ИТ
Стол для отстоя ячеек фильтров. Эскизочный чертеж. СО.00.000.ЭЧ
Разработан: Гипростройдормаш
Утверждён:14.11.1986 Минстройдормаш (Minstroydormash 640)
Расположен в:Техническая документация Строительство Справочные документы Типовые строительные конструкции, изделия и узлы Общероссийский строительный каталог Промышленные предприятия, здания и сооружения Здания и сооружения санитарно-технические Воздухоснабжение, вентиляция и кондиционирование воздуха Воздухоснабжение
Типовой проект 904-1-70.86Типовой проект 904-1-70.86Типовой проект 904-1-70.86Типовой проект 904-1-70.86Типовой проект 904-1-70.86Типовой проект 904-1-70.86Типовой проект 904-1-70.86Типовой проект 904-1-70.86Типовой проект 904-1-70.86Типовой проект 904-1-70.86Типовой проект 904-1-70.86Типовой проект 904-1-70.86Типовой проект 904-1-70.86Типовой проект 904-1-70.86Типовой проект 904-1-70.86Типовой проект 904-1-70.86Типовой проект 904-1-70.86Типовой проект 904-1-70.86Типовой проект 904-1-70.86Типовой проект 904-1-70.86Типовой проект 904-1-70.86Типовой проект 904-1-70.86Типовой проект 904-1-70.86Типовой проект 904-1-70.86Типовой проект 904-1-70.86Типовой проект 904-1-70.86Типовой проект 904-1-70.86Типовой проект 904-1-70.86Типовой проект 904-1-70.86Типовой проект 904-1-70.86Типовой проект 904-1-70.86Типовой проект 904-1-70.86Типовой проект 904-1-70.86Типовой проект 904-1-70.86Типовой проект 904-1-70.86Типовой проект 904-1-70.86Типовой проект 904-1-70.86Типовой проект 904-1-70.86Типовой проект 904-1-70.86Типовой проект 904-1-70.86Типовой проект 904-1-70.86Типовой проект 904-1-70.86Типовой проект 904-1-70.86Типовой проект 904-1-70.86Типовой проект 904-1-70.86Типовой проект 904-1-70.86Типовой проект 904-1-70.86Типовой проект 904-1-70.86Типовой проект 904-1-70.86Типовой проект 904-1-70.86Типовой проект 904-1-70.86Типовой проект 904-1-70.86Типовой проект 904-1-70.86Типовой проект 904-1-70.86Типовой проект 904-1-70.86Типовой проект 904-1-70.86Типовой проект 904-1-70.86Типовой проект 904-1-70.86Типовой проект 904-1-70.86Типовой проект 904-1-70.86Типовой проект 904-1-70.86Типовой проект 904-1-70.86Типовой проект 904-1-70.86Типовой проект 904-1-70.86Типовой проект 904-1-70.86Типовой проект 904-1-70.86Типовой проект 904-1-70.86Типовой проект 904-1-70.86Типовой проект 904-1-70.86Типовой проект 904-1-70.86

© 2013 Ёшкин Кот :-) Карта сайта