Скачать Серия 1.411.1-1/84 Выпуск 1. Фундаменты под колонны прямоугольного сечения. Материалы для проектированияДата актуализации: 10.08.2017 Серия 1.411.1-1/84
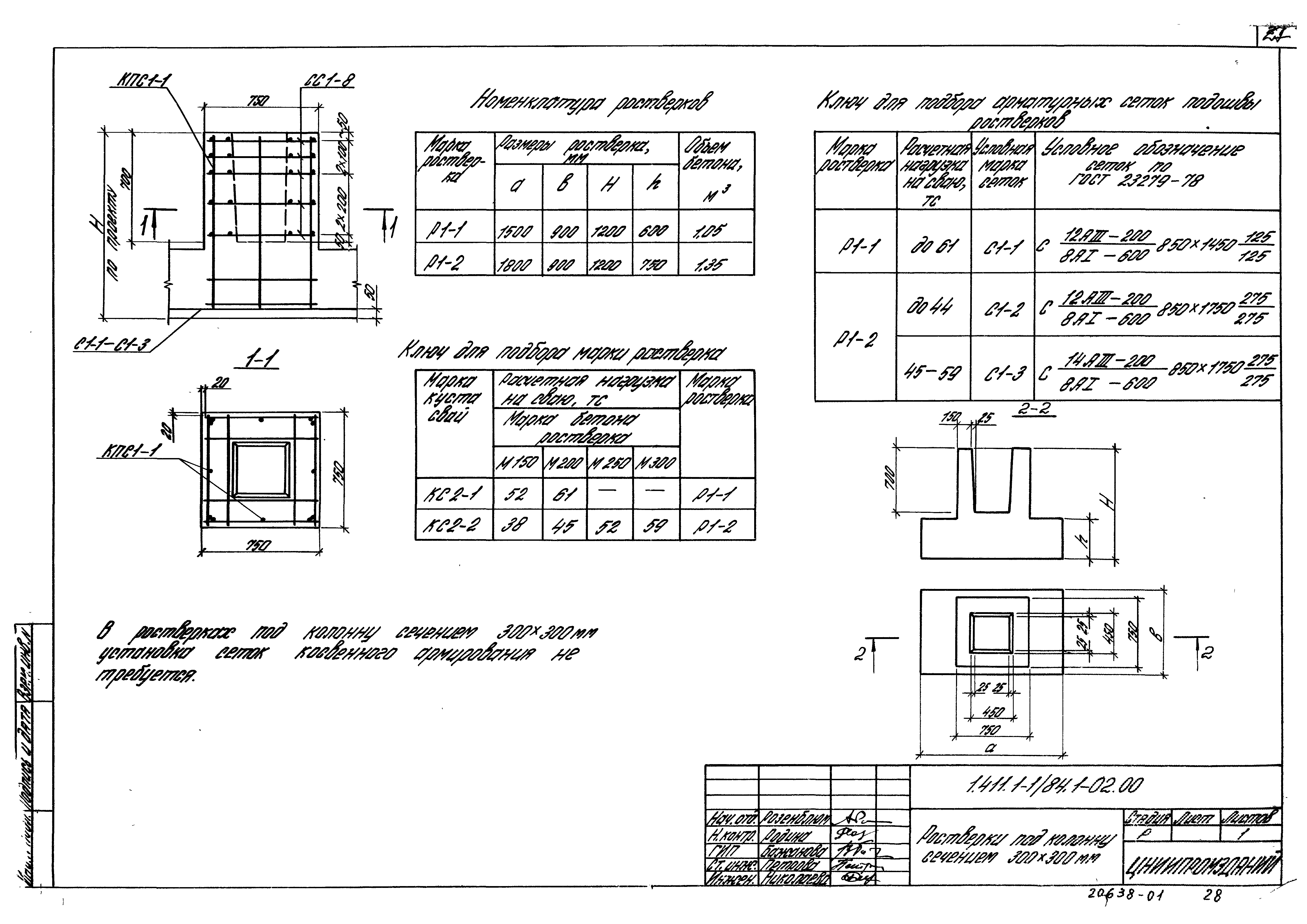
Выпуск 1. Фундаменты под колонны прямоугольного сечения. Материалы для проектированияОбозначение: | Серия 1.411.1-1/84 | Обозначение англ: | Series 1.411.1-1/84 | Статус: | заменен | Название рус.: | Выпуск 1. Фундаменты под колонны прямоугольного сечения. Материалы для проектирования | Дата добавления в базу: | 01.09.2013 | Дата актуализации: | 05.05.2017 | Дата введения: | 01.07.1993 | Область применения: | В выпуске 1 серии 1.411.1-1/84 разработаны материалы для проектирования свайных фундаментов под типовые железобетонные колонны прямоугольного сечения одноэтажных производственных зданий серий 1.423-3; 1.423-5 и 1.424.1-5 | Разработан: | НИИЖБ Госстроя СССР ЦНИИпромзданий Фундаментпроект
| Утверждён: | 15.03.1985 Госстрой СССР (Государственный комитет Совета Министров СССР по делам строительства) (USSR Gosstroy АЧ-I)
| Расположен в: |
| Чем заменён: | | Нормативные ссылки: | |
                                                                                        
|