Информационная система
«Ёшкин Кот»

Скачать базу одним архивом
Скачать обновления
История создания базы
Карта сайта

Скачать Типовой проект 904-1-40 Альбом V. Архитектурно-строительная и сантехническая части

Дата актуализации: 10.08.2017

Типовой проект 904-1-40

Альбом V. Архитектурно-строительная и сантехническая части

Обозначение: Типовой проект 904-1-40
Обозначение англ: 904-1-40
Статус:не действует
Название рус.:Альбом V. Архитектурно-строительная и сантехническая части
Дата добавления в базу:01.09.2013
Дата актуализации:05.05.2017
Дата введения:30.03.1978
Дата окончания срока действия:01.04.1985
Оглавление:Обложка
Титульный лист
Содержание
Архитектурно-строительные решения
АР-1-АР-4 Общие данные
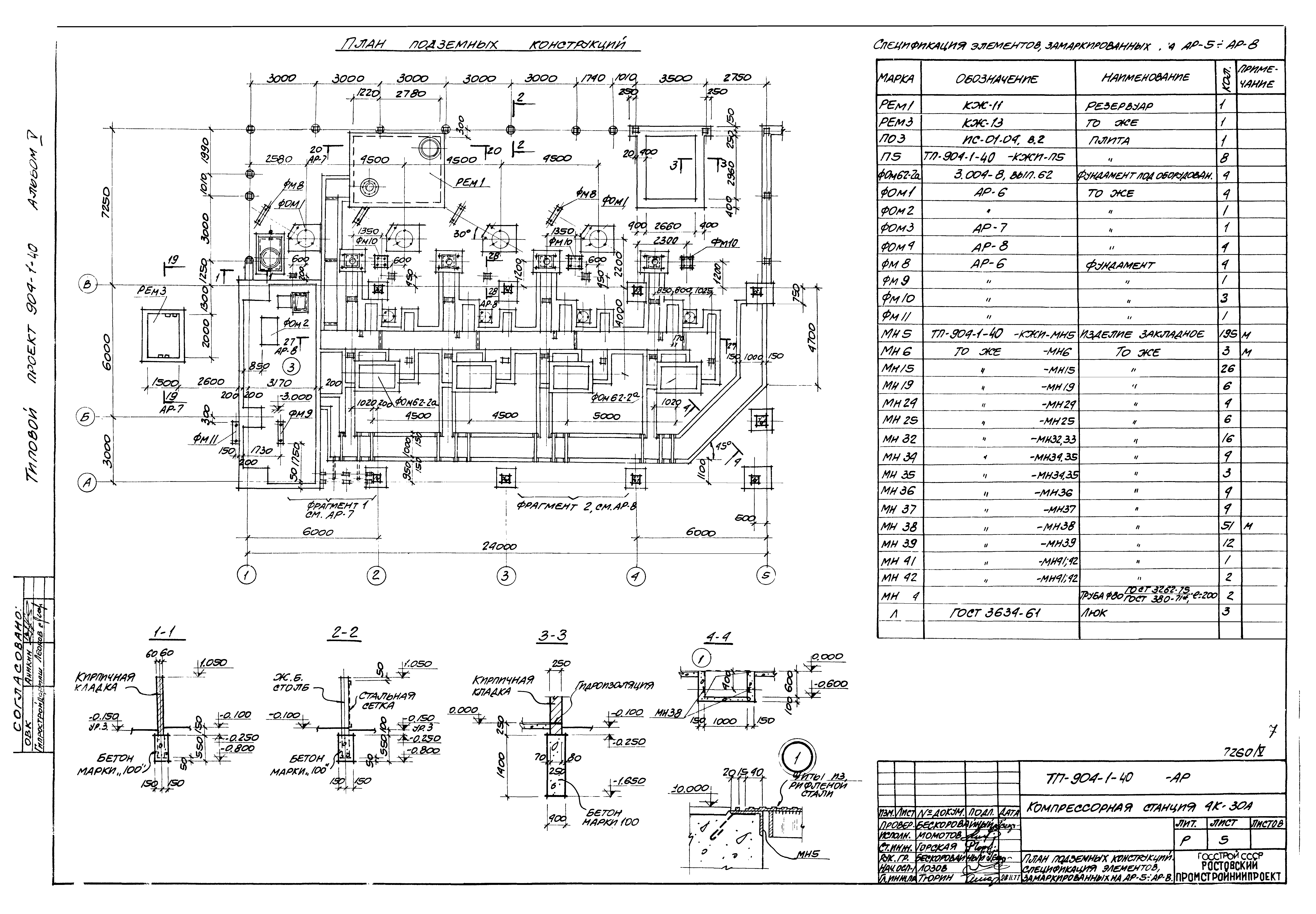
АР-5 План подземных конструкций. Спецификация элементов, замаркированных на АР-5-АР-8
АР-6 Фундаменты ФОМ1,ФОМ2,ФМ8-ФМ11
АР-7 Фрагмент 1. Сечения 11-11-28-28
АР-8 Фрагмент 2. Сечения 21-21-28-28
АР-9 КТП. План на отм. 0.250. Спецификация элементов, замаркированных на АР-9-АР-12
АР-10 КТП. План подземных конструкций
АР-11 КТП. План на отметке 0.000
АР-12 Разрезы 1-1-4-4. Фасады 1-5;5-1;А-В;В-А
АР-13 План полов. План кровли
АР-14 Узлы 5-14
АР-15 Схема раскладки деревянных щитов. Схема 1. Узлы 15-19
Конструкции железобетонные
КЖ-1-КЖ-3 Общие данные
КЖ-4 Маркировочная схема фундаментов, фундаментных балок, подпорных стенок
КЖ-5 Фундаменты ФМ1-ФМ4
КЖ-6 Фундаменты ФМ5,ФМ6,ФМ7
КЖ-7 Спецификации к СТМ1-СТМ4,РЕМ1
КЖ-8 Стенка подпорная СТМ1
КЖ-9 Стенки подпорные СТМ2,СТМ3
КЖ-10 Стенка подпорная СТМ4
КЖ-11 Резервуар РЕМ1
КЖ-12 Резервуар РЕМ2
КЖ-13 Резервуар РЕМ3. Опалубочный чертеж
КЖ-14 Резервуар РЕМ3. Арматурный чертеж
КЖ-15 Фундамент ФОМ-62-2А. Участки монолитные УМ1,УМ2,УМ3
КЖ-16 Перекрытие РКМ1
КЖ-17 Балки БМ1,БМ2,БФМ1
КЖ-18 Маркировочные схемы сборных элементов. Разрезы 1-1,2-2
КЖ-19 Разрезы 3-3-12-12. Узлы 1,2,3
КЖ-20 Маркировочная схема плит перекрытия каналов и резервуара РЕМ1. Узлы 4,5,6
КЖ-21 Маркировочные схемы стеновых панелей
КЖ-22 Фрагменты 1-13. Разрез 1-1
КЖ-23 Плита ПМ2
Конструкции металлические
КМ-1 Общие данные
КМ-2 План съемных металлических щитов на отм. 0.000
КМ-3 Щиты Щ1-Щ14. План балок перекрытия. План стоек под трубопровод
КМ-4 План балок на отм. 3.830. План подвесных путей. Кронштейн КР1
КМ-5 Наружная лестница на кровлю
Внутренние водопровод и канализация
ВК-1,ВК-2 Общие данные
ВК-3 План на отметке 0.000,0.100. Схемы
ВК-4 Насосная станция водопровода оборотной воды. План на отметке -3.000. Разрезы
ВК-5 Насосная станция водопровода оборотной воды. Схемы установок систем В5,К1
Отопление и вентиляция
ОВ-1 Общие данные
ОВ-2 Сводная спецификация систем отопления и вентиляции
ОВ-3 Планы отопления и вентиляции
ОВ-4 Разрезы 1-1;2-2;3-3;4-4. Схемы систем ВЕ1,ВЕ2,В3
ОВ-5 Схемы отопления, теплоснабжения. Узел управления
Разработан: Ростовский Промстройниипроект Госстроя СССР
Утверждён:30.03.1978 Минстройдормаш (Minstroydormash 7/78)
Расположен в:Техническая документация Строительство Справочные документы Типовые строительные конструкции, изделия и узлы Общероссийский строительный каталог Промышленные предприятия, здания и сооружения Здания и сооружения санитарно-технические Воздухоснабжение, вентиляция и кондиционирование воздуха Воздухоснабжение
Чем заменён:
Типовой проект 904-1-40Типовой проект 904-1-40Типовой проект 904-1-40Типовой проект 904-1-40Типовой проект 904-1-40Типовой проект 904-1-40Типовой проект 904-1-40Типовой проект 904-1-40Типовой проект 904-1-40Типовой проект 904-1-40Типовой проект 904-1-40Типовой проект 904-1-40Типовой проект 904-1-40Типовой проект 904-1-40Типовой проект 904-1-40Типовой проект 904-1-40Типовой проект 904-1-40Типовой проект 904-1-40Типовой проект 904-1-40Типовой проект 904-1-40Типовой проект 904-1-40Типовой проект 904-1-40Типовой проект 904-1-40Типовой проект 904-1-40Типовой проект 904-1-40Типовой проект 904-1-40Типовой проект 904-1-40Типовой проект 904-1-40Типовой проект 904-1-40Типовой проект 904-1-40Типовой проект 904-1-40Типовой проект 904-1-40Типовой проект 904-1-40Типовой проект 904-1-40Типовой проект 904-1-40Типовой проект 904-1-40Типовой проект 904-1-40Типовой проект 904-1-40Типовой проект 904-1-40Типовой проект 904-1-40Типовой проект 904-1-40Типовой проект 904-1-40Типовой проект 904-1-40Типовой проект 904-1-40Типовой проект 904-1-40Типовой проект 904-1-40Типовой проект 904-1-40Типовой проект 904-1-40Типовой проект 904-1-40Типовой проект 904-1-40Типовой проект 904-1-40Типовой проект 904-1-40Типовой проект 904-1-40Типовой проект 904-1-40Типовой проект 904-1-40Типовой проект 904-1-40Типовой проект 904-1-40

© 2013 Ёшкин Кот :-) Карта сайта