Информационная система
«Ёшкин Кот»

Скачать базу одним архивом
Скачать обновления
История создания базы
Карта сайта

Скачать Типовой проект 901-7-4.84 Альбом II. Технологическая и санитарно-техническая части. Вариант обеззараживания питьевых вод

Дата актуализации: 10.08.2017

Типовой проект 901-7-4.84

Альбом II. Технологическая и санитарно-техническая части. Вариант обеззараживания питьевых вод

Обозначение: Типовой проект 901-7-4.84
Обозначение англ: 901-7-4.84
Статус:действует
Название рус.:Альбом II. Технологическая и санитарно-техническая части. Вариант обеззараживания питьевых вод
Дата добавления в базу:01.09.2013
Дата актуализации:05.05.2017
Оглавление:Содержание альбома
Технологическая часть
ТХ-1 Общие данные
ТХ-2 Вариант подачи хлорной воды. Принципиальная схема
ТХ-3 Размещение оборудования. Планы на отм. 0.000, 2.400. Разрез 1-1. Вариант подачи газообразного хлора. Принципиальная схема
ТХ-4 Склад баллонов. Насосная. План. Разрезы 1-1,2-2
ТХ-5 Вариант подачи хлорной воды. Хлордозаторная. План на отм. 0.000. Разрез 1-1
ТХ-6 Вариант подачи хлорной воды. Хлордозаторная. План на отм. 2.400. Разрез 2-2
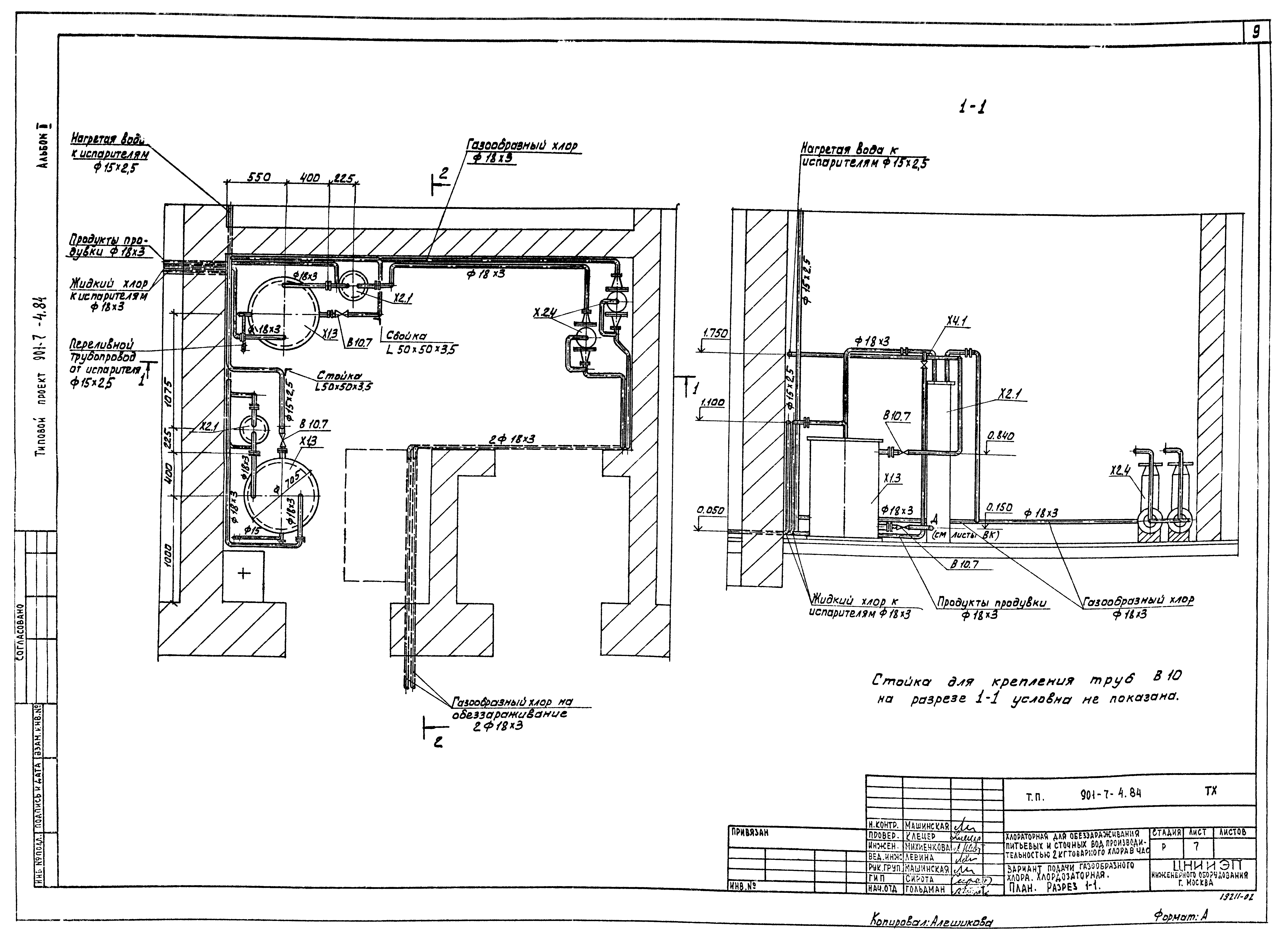
ТХ-7 Вариант подачи газообразного хлора. Хлордозаторная. План. Разрез 1-1
ТХ-8 Вариант подачи газообразного хлора. Хлордозаторная. Разрез 2-2
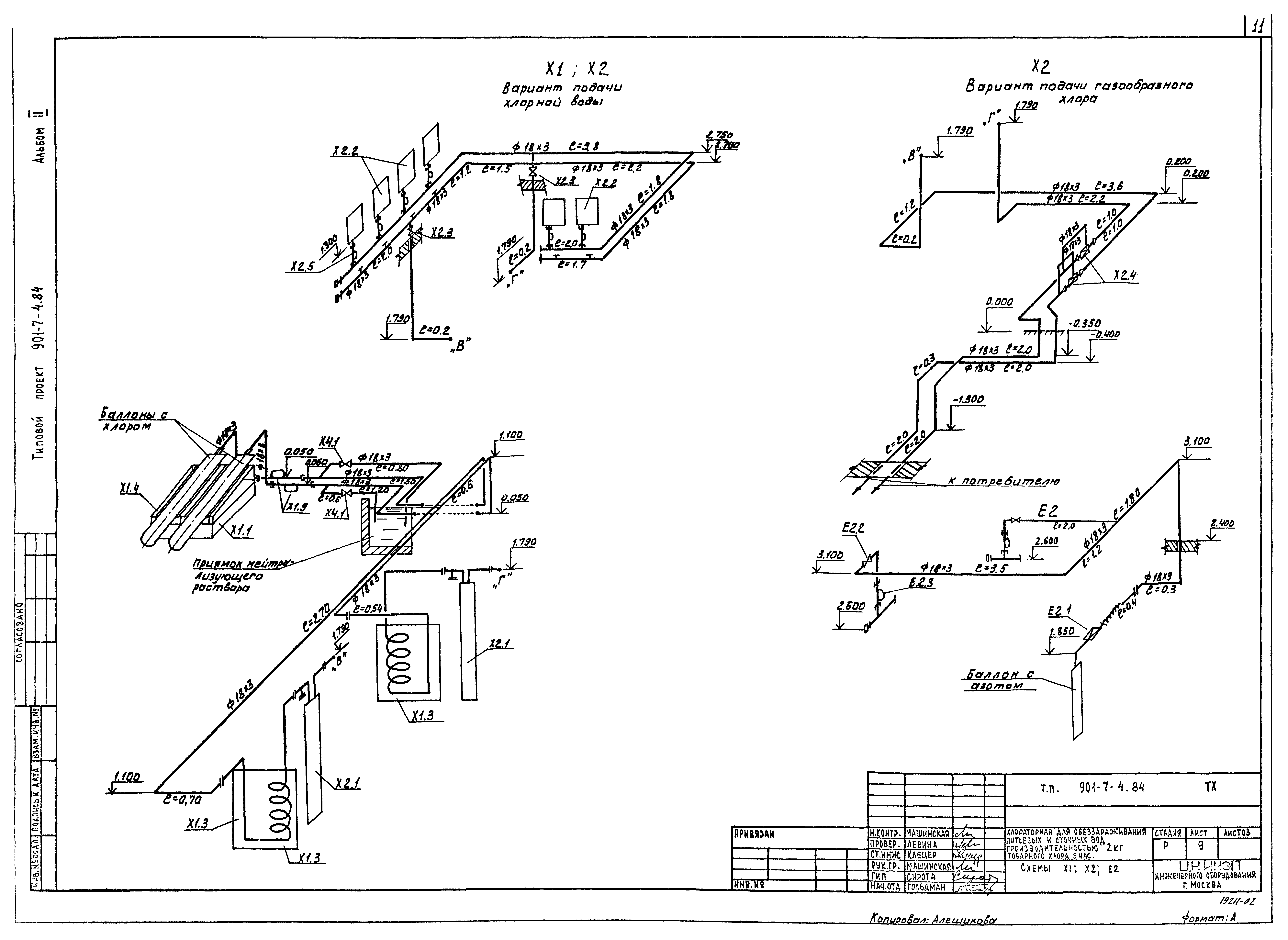
ТХ-9 Схемы Х1,Х2,Е2
ТХ-10 Схемы В10,Х2,Х3,Е4
Внутренний водопровод и канализация
ВК-1 Общие данные
ВК-2 План. Схемы В1,К1,К3,ТО
Отопление и вентиляция
ОВ-1 Общие данные
ОВ-2 План на отм. 0.000. Схемы систем вентиляции П1,П2,В1,В2,В3,В3,ВЕ1. Отопление
ОВ-3 Установка систем П1,П2,В1,В2,В3. Схема системы теплоснабжения
ОВН-1 Переходы
Разработан: ЦНИИЭП иженерного оборудования
Утверждён:27.12.1979 Госгражданстрой (Gosgrazhdanstroy 279)
Расположен в:Техническая документация Строительство Справочные документы Типовые строительные конструкции, изделия и узлы Общероссийский строительный каталог Промышленные предприятия, здания и сооружения Здания и сооружения санитарно-технические Водоснабжение Сооружения и установки по обеззараживанию воды Реагентное хозяйство для станций очистки
Заменяет собой:
Типовой проект 901-7-4.84Типовой проект 901-7-4.84Типовой проект 901-7-4.84Типовой проект 901-7-4.84Типовой проект 901-7-4.84Типовой проект 901-7-4.84Типовой проект 901-7-4.84Типовой проект 901-7-4.84Типовой проект 901-7-4.84Типовой проект 901-7-4.84Типовой проект 901-7-4.84Типовой проект 901-7-4.84Типовой проект 901-7-4.84Типовой проект 901-7-4.84Типовой проект 901-7-4.84Типовой проект 901-7-4.84Типовой проект 901-7-4.84Типовой проект 901-7-4.84Типовой проект 901-7-4.84Типовой проект 901-7-4.84

© 2013 Ёшкин Кот :-) Карта сайта