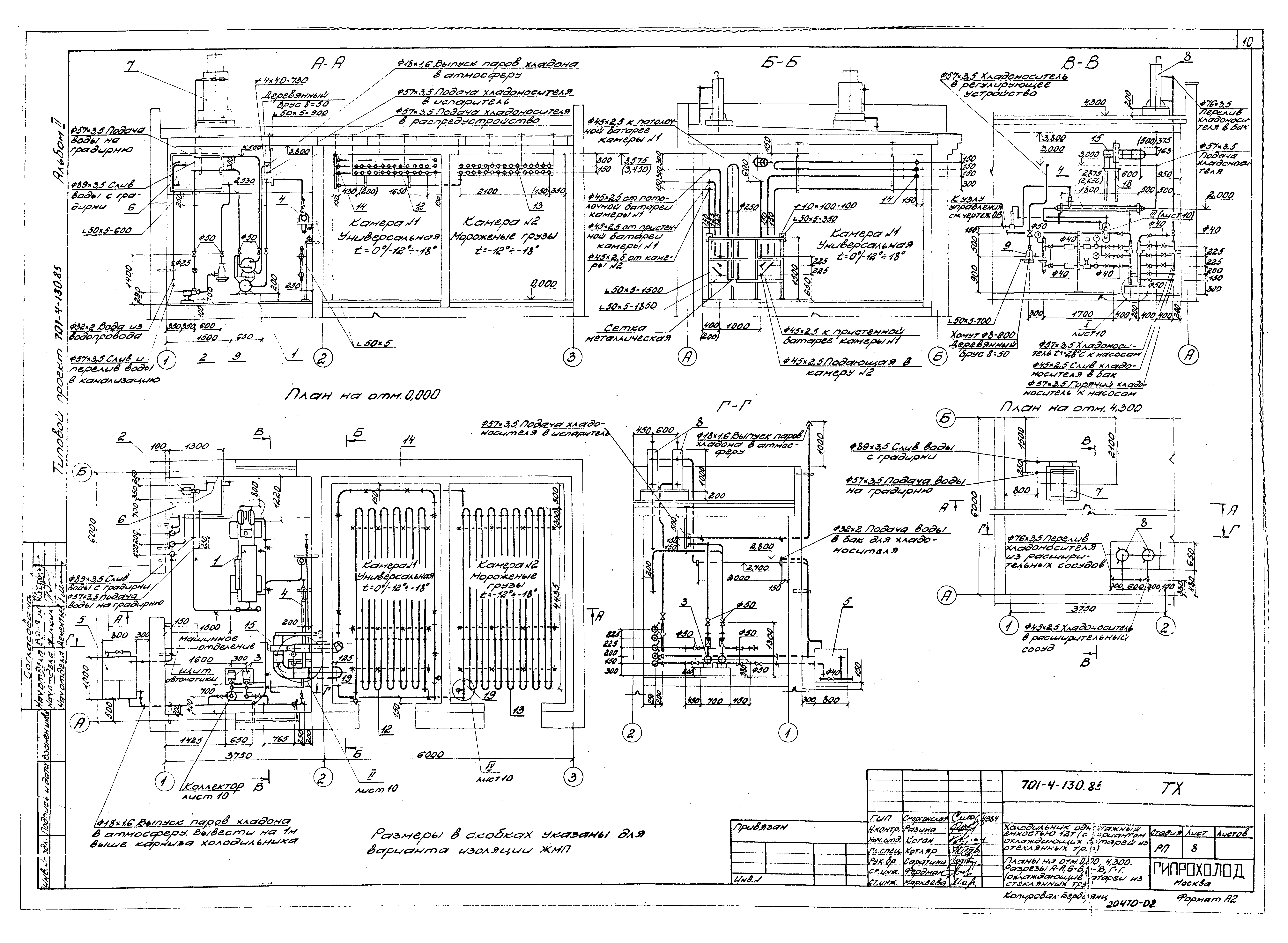
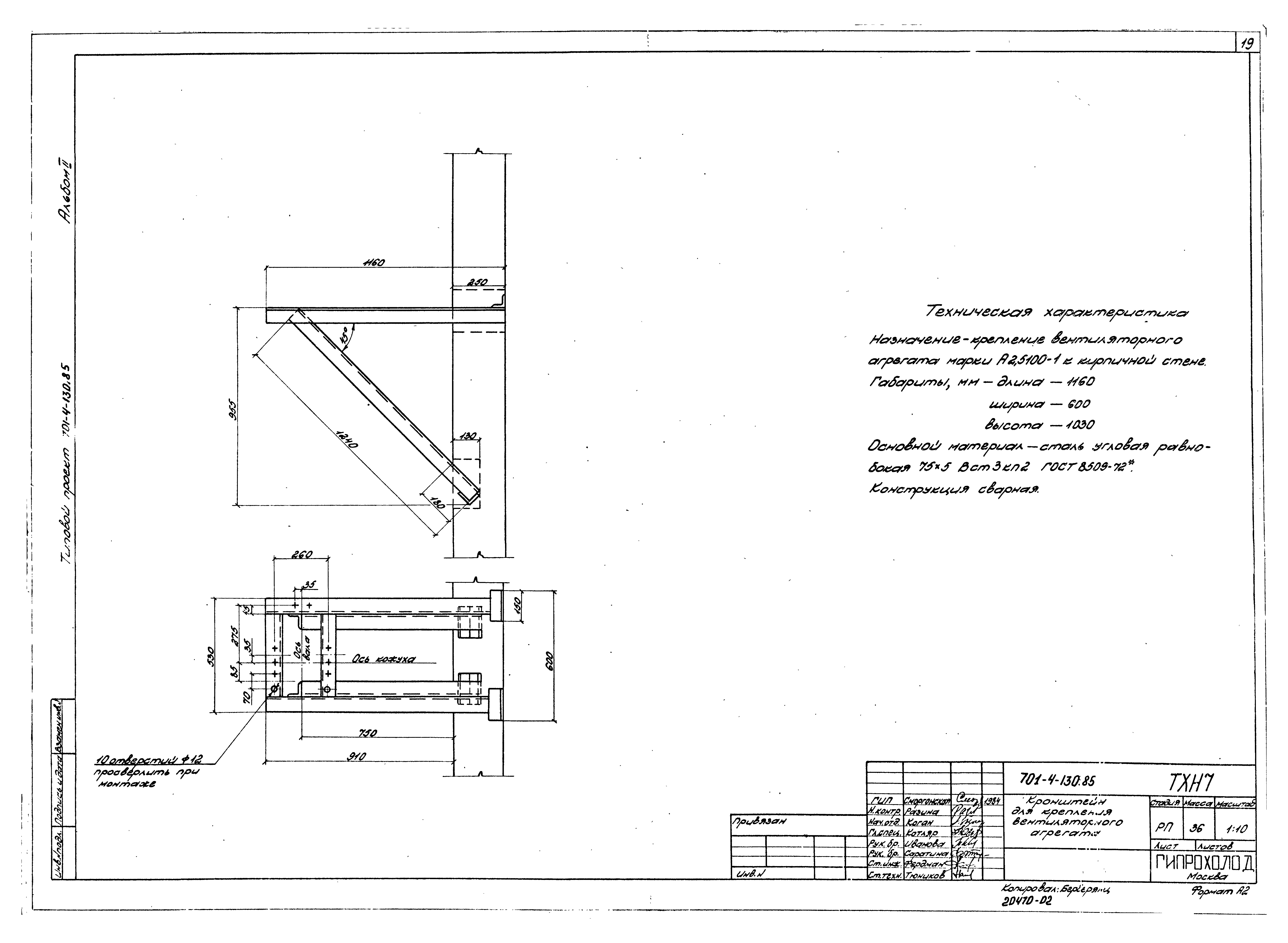
Скачать Типовой проект 701-4-130.85 Альбом II. Холодильно-технологические решения. Автоматизация технологических процессов. Электроосвещение и электрооборудование. Связь и сигнализацияДата актуализации: 10.08.2017 Типовой проект 701-4-130.85
Альбом II. Холодильно-технологические решения. Автоматизация технологических процессов. Электроосвещение и электрооборудование. Связь и сигнализацияОбозначение: | Типовой проект 701-4-130.85 | Обозначение англ: | 701-4-130.85 | Статус: | действует | Название рус.: | Альбом II. Холодильно-технологические решения. Автоматизация технологических процессов. Электроосвещение и электрооборудование. Связь и сигнализация | Дата добавления в базу: | 01.09.2013 | Дата актуализации: | 05.05.2017 | Дата введения: | 14.02.1985 | Разработан: | Гипрохолод Минторга СССР
| Утверждён: | 18.12.1984 Министерство торговли СССР (USSR Ministry of Commerce 311/П-15)
| Расположен в: |
|
                                         
|