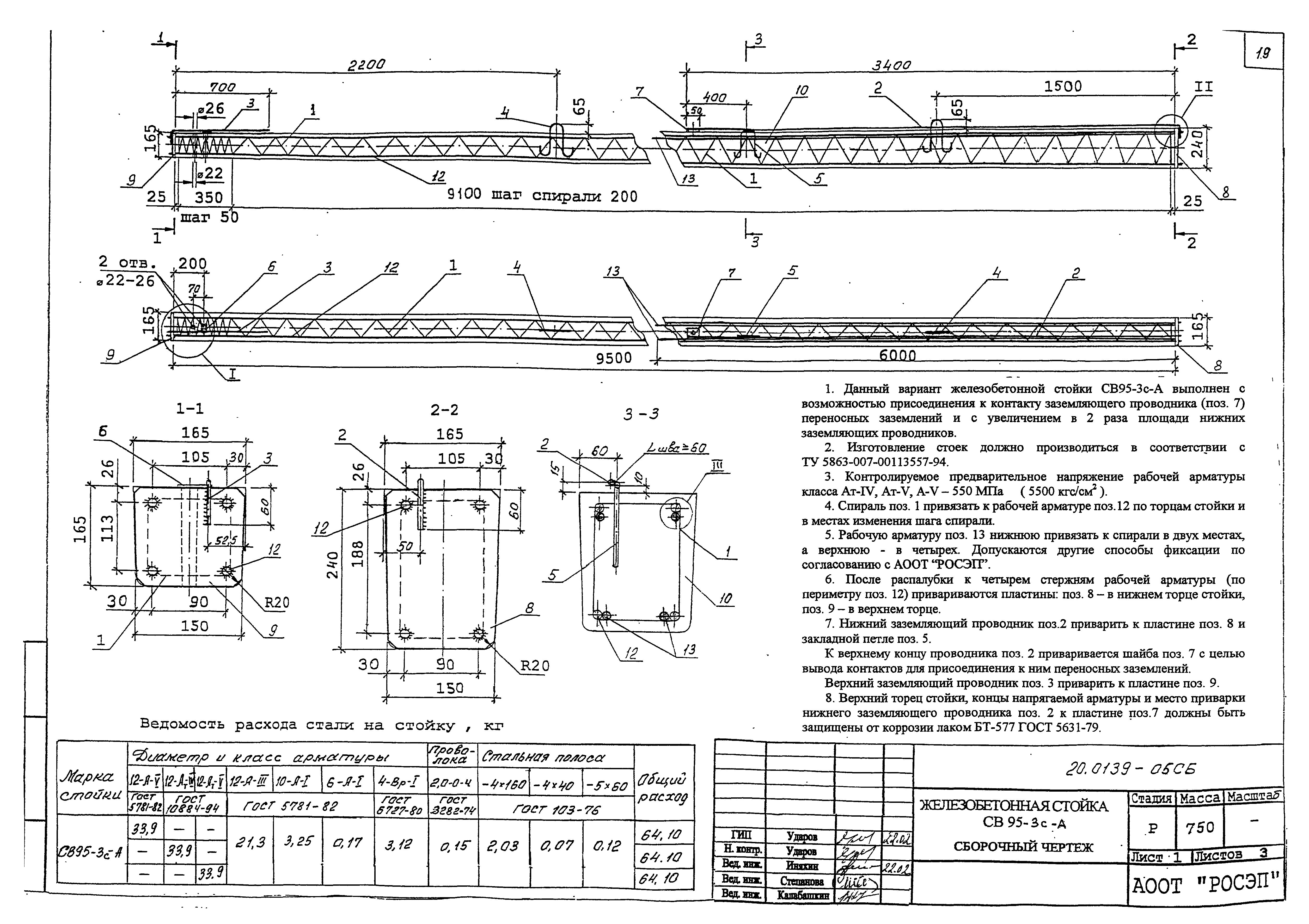
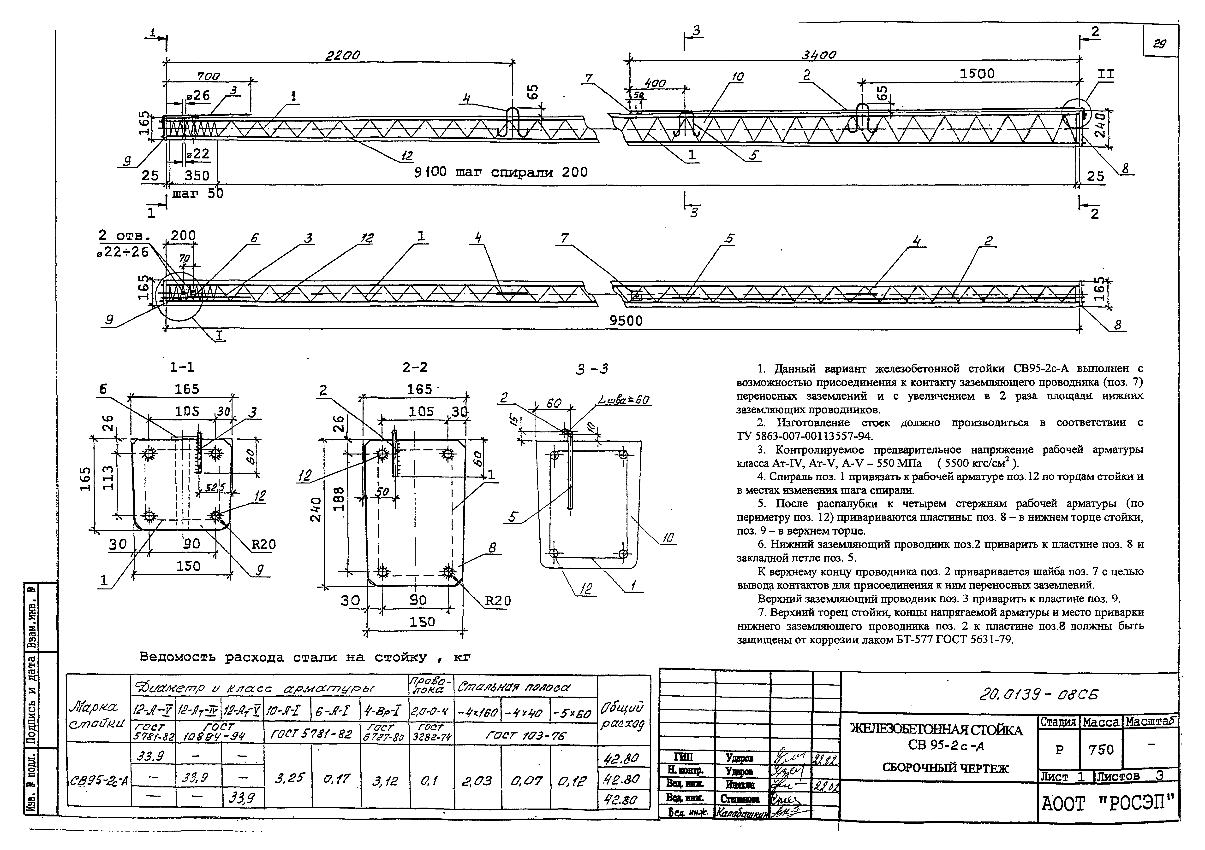
Скачать Шифр 20.0139 Железобетонные стойки для опор ВЛ 0,4 кВ, повышающие долговечность и электробезопасность их эксплуатацииДата актуализации: 10.08.2017 Шифр 20.0139
Железобетонные стойки для опор ВЛ 0,4 кВ, повышающие долговечность и электробезопасность их эксплуатации| Обозначение: | Шифр 20.0139 | | Обозначение англ: | 20.0139 | | Статус: | не определен законодательством | | Название рус.: | Железобетонные стойки для опор ВЛ 0,4 кВ, повышающие долговечность и электробезопасность их эксплуатации | | Дата добавления в базу: | 01.09.2013 | | Дата актуализации: | 05.05.2017 | | Дата введения: | 01.01.2002 | | Разработан: | АООТ РОСЭП
| | Утверждён: | 17.06.2001 АООТ РОСЭП (11-02/252)
| | Расположен в: |
|
                                                              
|