Информационная система
«Ёшкин Кот»

Скачать базу одним архивом
Скачать обновления
История создания базы
Карта сайта

Скачать Серия ПР-05-50/73 Выпуск 1. Рабочие чертежи

Дата актуализации: 10.08.2017

Серия ПР-05-50/73

Выпуск 1. Рабочие чертежи

Обозначение: Серия ПР-05-50/73
Обозначение англ: Series ПР-05-50/73
Статус:заменен
Название рус.:Выпуск 1. Рабочие чертежи
Дата добавления в базу:01.09.2013
Дата актуализации:05.05.2017
Дата введения:01.09.1981
Оглавление:Пояснительная записка
Схемы и маркировка глухих и открывающихся оконных панелей
Глухие оконные панели Г-180,Г-175,ДГ-180,ДГ-175
Глухие оконные панели Г-120,Г-115,ДГ-120,ДГ-115
Открывающиеся оконные панели О-180,О-175,ДЛ-180,ДО-175
Открывающиеся оконные панели О-120,О-115,ДО-120,ДО-115
Рамы оконных панелей Р-1,Р-2,Р-3,Р-4
Рамы оконных панелей Р-9,Р-10,Р-11,Р-12
Рамы оконных панелей Р-5,Р-6,Р-7,Р-8,Р-13,Р-14,Р-15,Р-16
Рамки Ф-1-Ф-16
Детали рам оконных панелей
Детали рамок. Узлы крепления стекол в открывающихся оконных панелях
Прижимы для стекла. Нащельники
Примеры заполнения оконных проемов оконными панелями. Схемы расположения нащельников и деталей крепления оконных панелей к колоннам
Монтажные детали А-1 - А-3;А-22 - А-26. Петля П-1. Позиции № 6,№ 9,№ 10
Узлы рам и рамок
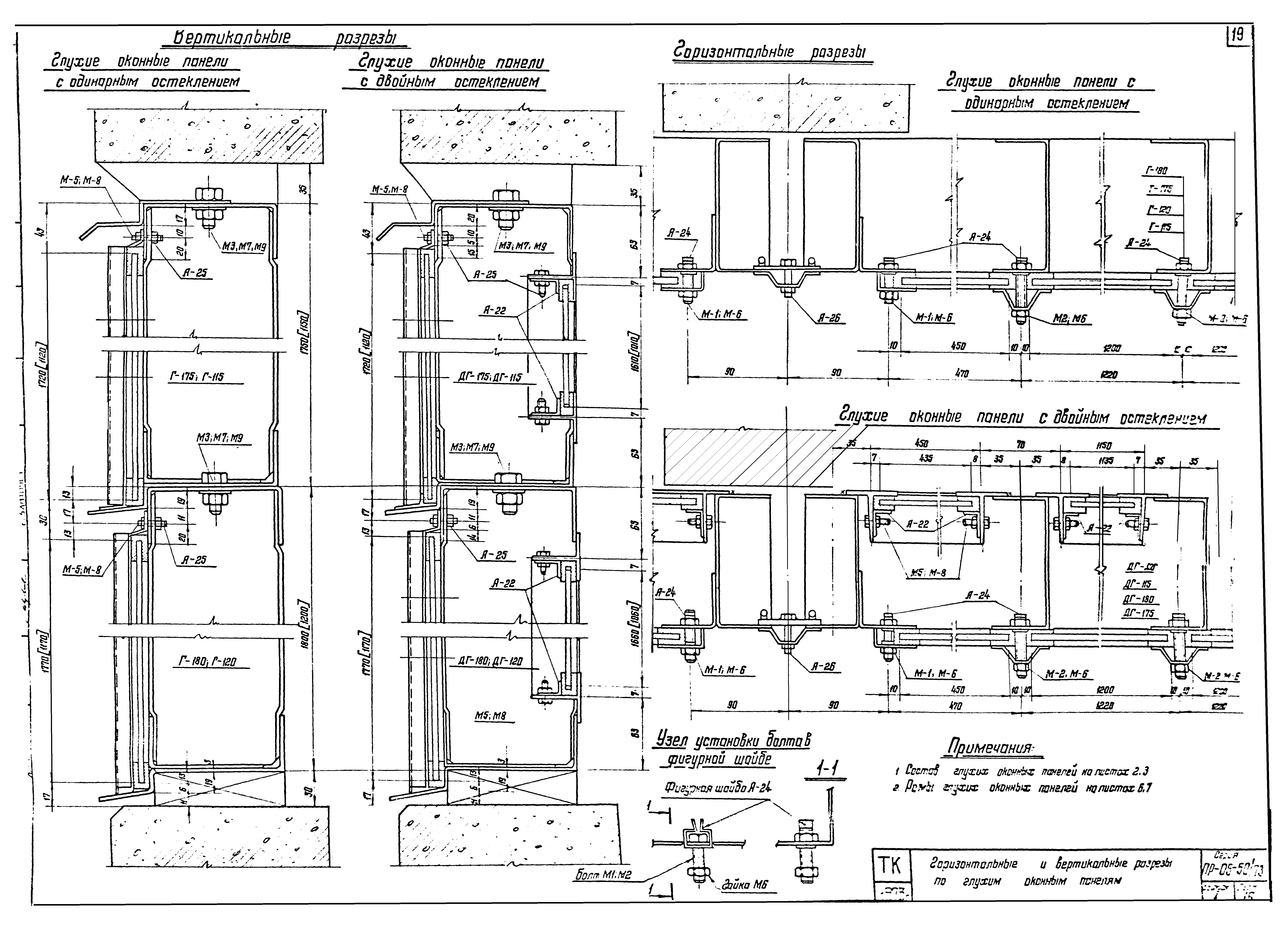
Горизонтальные и вертикальные разрезы по глухим оконным панелям
Узлы навески рамок на рамы открывающихся оконных панелей
Количество деталей в одной раме или рамке остекления
Расход метизов и деталей на оконные панели
Техническая спецификация металла. Техническая спецификация стекол и резины
Разработан: ЦНИИпроектстальконструкция
Златоустовский завод металлоконструкций
Утверждён:21.06.1974 Госстрой СССР (Государственный комитет Совета Министров СССР по делам строительства) (USSR Gosstroy 126)
Расположен в:Техническая документация Строительство Справочные документы Типовые строительные конструкции, изделия и узлы Общероссийский строительный каталог Строительные конструкции, изделия и узлы зданий и сооружений для всех видов строительства Конструкции, изделия и узлы зданий Ограждающие конструкции Окна и балконные двери
Заменяет собой:
Чем заменён:
Серия ПР-05-50/73Серия ПР-05-50/73Серия ПР-05-50/73Серия ПР-05-50/73Серия ПР-05-50/73Серия ПР-05-50/73Серия ПР-05-50/73Серия ПР-05-50/73Серия ПР-05-50/73Серия ПР-05-50/73Серия ПР-05-50/73Серия ПР-05-50/73Серия ПР-05-50/73Серия ПР-05-50/73Серия ПР-05-50/73Серия ПР-05-50/73Серия ПР-05-50/73Серия ПР-05-50/73Серия ПР-05-50/73Серия ПР-05-50/73Серия ПР-05-50/73Серия ПР-05-50/73Серия ПР-05-50/73Серия ПР-05-50/73

© 2013 Ёшкин Кот :-) Карта сайта