| ||||||||||||||||||||||||||
Скачать Типовые материалы для проектирования 407-03-593.90 Альбом 2. Компоновочные чертежиДата актуализации: 10.08.2017
|
| Обозначение: | Типовые материалы для проектирования 407-03-593.90 |
| Обозначение англ: | 407-03-593.90 |
| Статус: | не действует |
| Название рус.: | Альбом 2. Компоновочные чертежи |
| Дата добавления в базу: | 01.09.2013 |
| Дата актуализации: | 05.05.2017 |
| Дата введения: | 01.11.2005 |
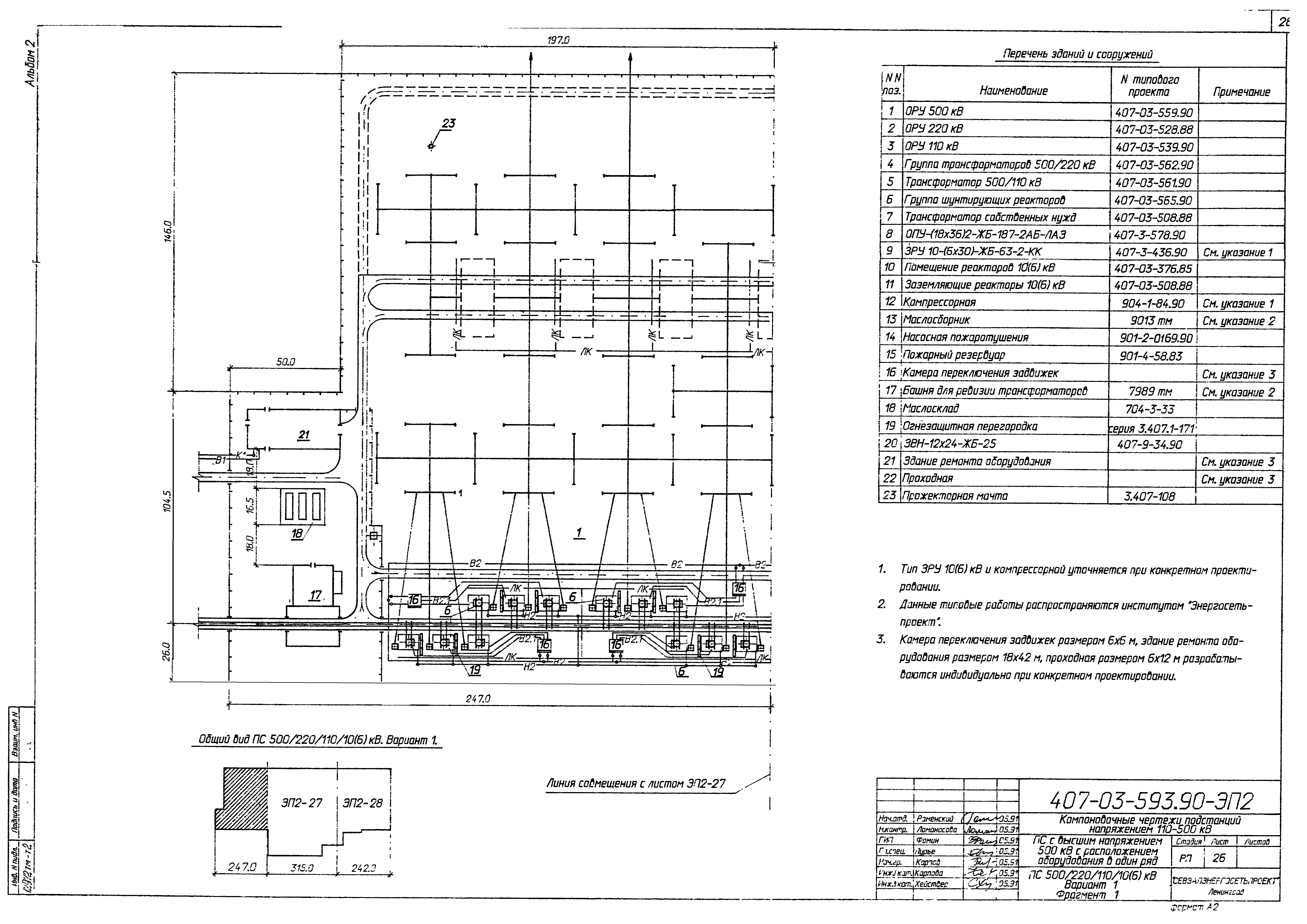
| Оглавление: | 407-03-593.90-ЭП2 Компоновочные чертежи Компоновки ПС с высшим напряжением 110 кВ ПС 110/10(6) кВ. Вариант 1 ПС 110/10(6) кВ. Вариант 2 ПС 110/10(6) кВ. Вариант 3 ПС 110/10(6) кВ. Вариант 4 ПС 110/10(6) кВ. Вариант 5 ПС 110/35/10(6) кВ. Вариант 1 ПС 110/35/10(6) кВ. Вариант 2 ПС 110/35/10(6) кВ. Вариант 3 ПС 110/35/10(6) кВ. Вариант 4 ПС 110/35/10(6) кВ. Вариант 5 ПС 110/35/10(6) кВ. Вариант 6 Компоновки ПС с высшим напряжением 220 кВ ПС 220/10(6) кВ ПС 220/110/10(6) кВ. Вариант 1 ПС 220/110/10(6) кВ. Вариант 2 ПС 220/110/10(6) кВ. Вариант 3 ПС 220/110/10(6) кВ. Вариант 4 ПС 220/110/10(6) кВ. Вариант 5 ПС 220/110/35/10(6) Компоновки ПС с высшим напряжением 330 кВ с расположением оборудования в один ряд ПС 330/110/10(6) кВ. Вариант 1 ПС 330/110/10(6) кВ. Вариант 2 Компоновки ПС с высшим напряжением 330 кВ с расположением оборудования в два ряда ПС 330/110/10(6) кВ. Вариант 1 ПС 330/110/10(6) кВ. Вариант 2 ПС с высшим напряжением 330 кВ с расположением оборудования в три ряда ПС 330/110/10(6) кВ. Вариант 1 ПС 330/110/10(6) кВ. Вариант 2 ПС 330/110/10(6) кВ. Вариант 3 ПС с высшим напряжением 500 кВ с расположением оборудования в один ряд ПС 500/220/110/10(6) кВ. Вариант 1. Фрагмент 1 ПС 500/220/110/10(6) кВ. Вариант 1. Фрагмент 2 ПС 500/220/110/10(6) кВ. Вариант 1. Фрагмент 3 ПС 500/220/110/10(6) кВ. Вариант 2. Фрагмент 1 ПС 500/220/110/10(6) кВ. Вариант 2. Фрагмент 2 ПС 500/220/110/10(6) кВ. Вариант 2. Фрагмент 3 ПС с высшим напряжением 500 кВ с расположением оборудования в два ряда ПС 500/220/110/10(6) кВ. Фрагмент 1 ПС 500/220/110/10(6) кВ. Фрагмент 2 ПС 500/220/110/10(6) кВ. Фрагмент 3 ПС с высшим напряжением 500 кВ с расположением оборудования в три ряда ПС 500/220/110/10(6) кВ. Фрагмент 1 ПС 500/220/110/10(6) кВ. Фрагмент 2 ПС с высшим напряжением 500 кВ с трехрядным расположением оборудования ПС 500/220/110/10(6) кВ. Вариант 1. Фрагмент 1 ПС 500/220/110/10(6) кВ. Вариант 1. Фрагмент 2 ПС 500/220/110/10(6) кВ. Вариант 2. Фрагмент 1 ПС 500/220/110/10(6) кВ. Вариант 2. Фрагмент 2 ПС 500/220/110/10(6) кВ. Перечень зданий и сооружений к варианту 1 ПС 500/220/110/10(6) кВ. Перечень зданий и сооружений к варианту 2 |
| Разработан: | Севзапэнергосетьпроект |
| Утверждён: | 03.06.1991 Минэнерго СССР (USSR Minenergo 14) |
| Расположен в: |











































