Скачать Типовые материалы для проектирования 407-03-593.90 Альбом 1. Пояснительная записка. Справочные материалыДата актуализации: 10.08.2017 Типовые материалы для проектирования 407-03-593.90
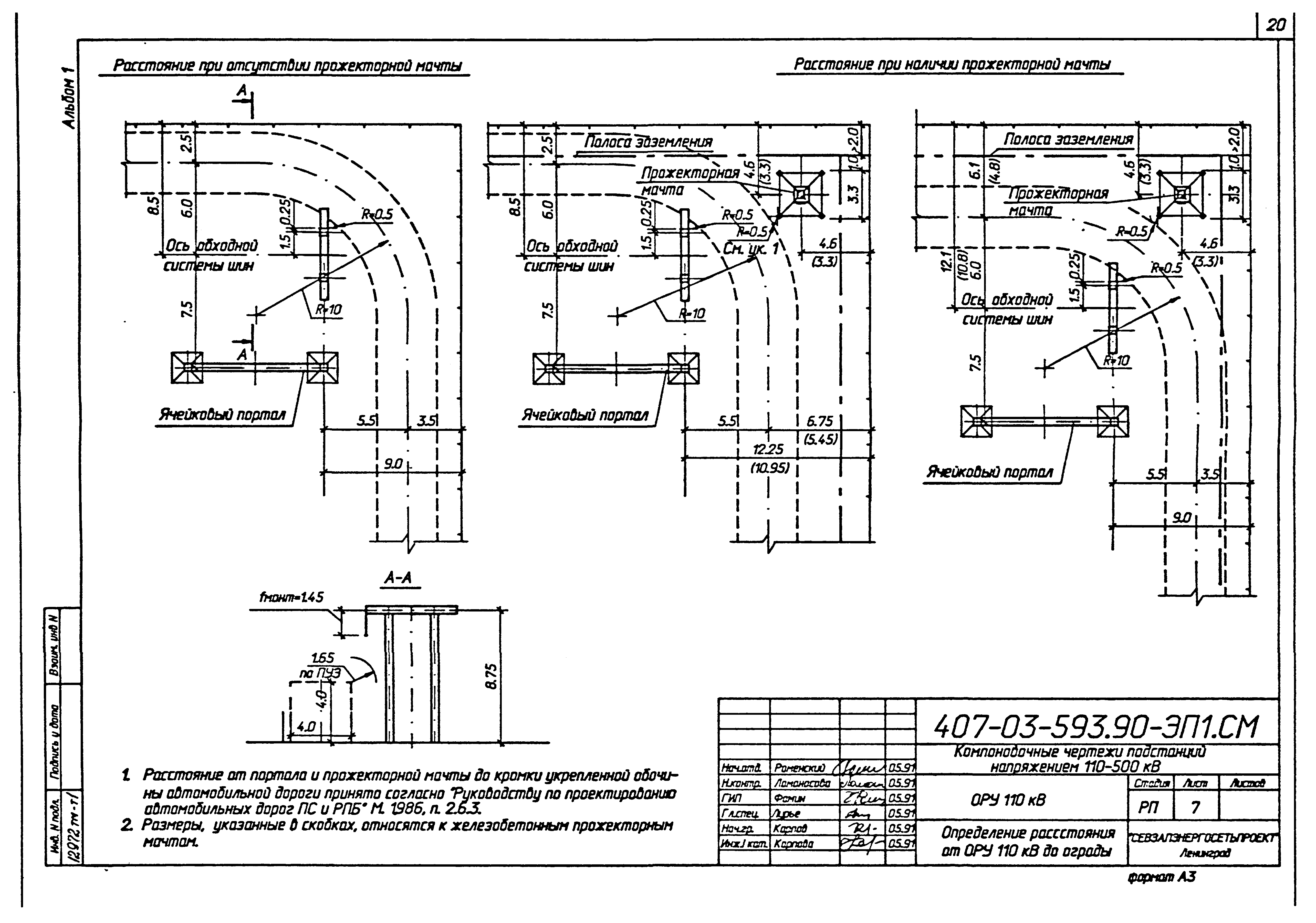
Альбом 1. Пояснительная записка. Справочные материалы| Обозначение: | Типовые материалы для проектирования 407-03-593.90 | | Обозначение англ: | 407-03-593.90 | | Статус: | не действует | | Название рус.: | Альбом 1. Пояснительная записка. Справочные материалы | | Дата добавления в базу: | 01.09.2013 | | Дата актуализации: | 05.05.2017 | | Дата введения: | 01.11.2005 | | Разработан: | Севзапэнергосетьпроект
| | Утверждён: | 03.06.1991 Минэнерго СССР (USSR Minenergo 14)
| | Расположен в: |
|
                                      
|