| ||||||||||||||||||||||||||||
Скачать Серия 3.015-2/77 Выпуск II-1. Сборные железобетонные колонны для эстакад типов Iк; IIк. Траверсы и вставки. Рабочие чертежиДата актуализации: 10.08.2017
|
| Обозначение: | Серия 3.015-2/77 |
| Обозначение англ: | Series 3.015-2/77 |
| Статус: | заменен |
| Название рус.: | Выпуск II-1. Сборные железобетонные колонны для эстакад типов Iк; IIк. Траверсы и вставки. Рабочие чертежи |
| Дата добавления в базу: | 01.09.2013 |
| Дата актуализации: | 05.05.2017 |
| Дата введения: | 01.10.1985 |
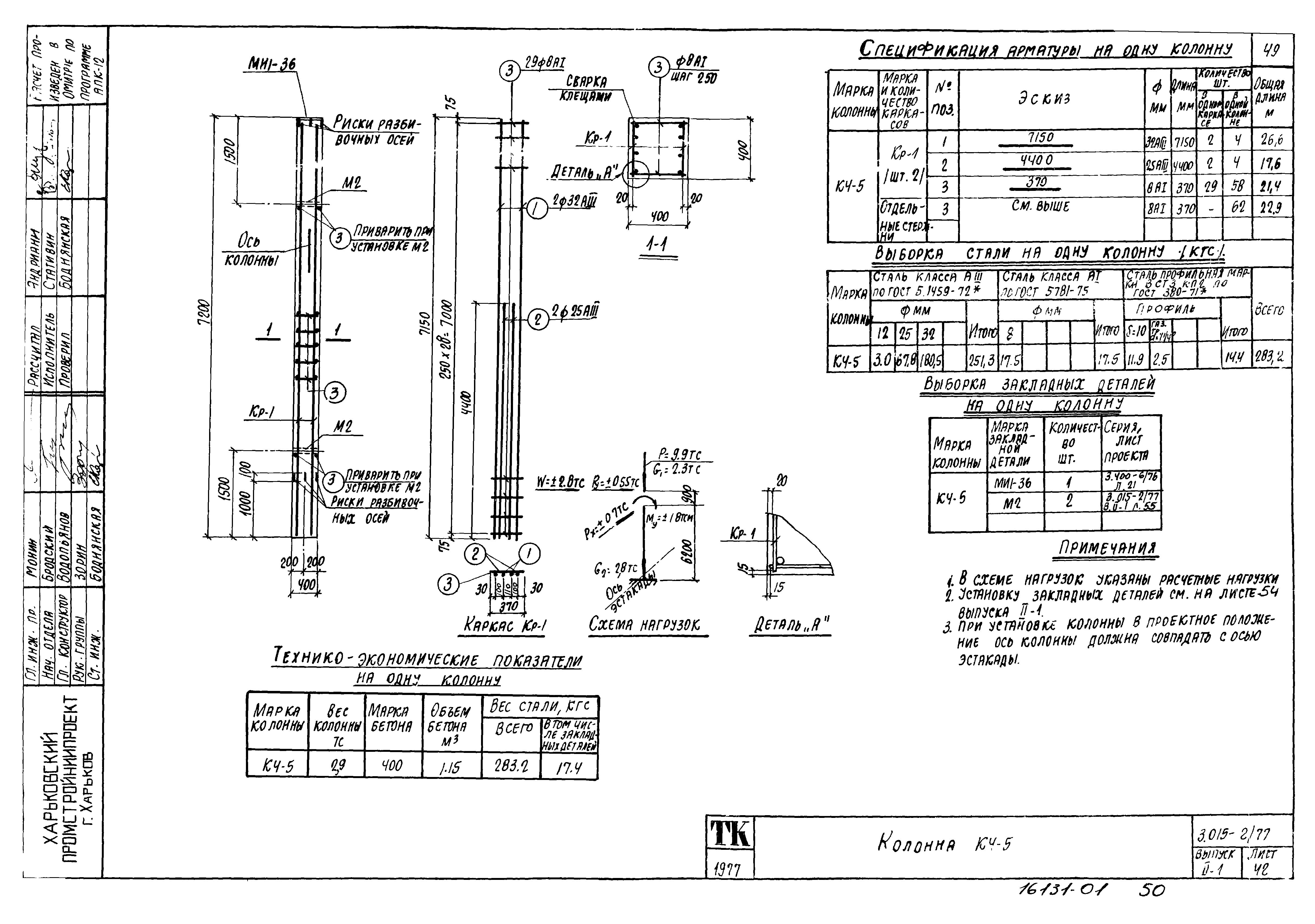
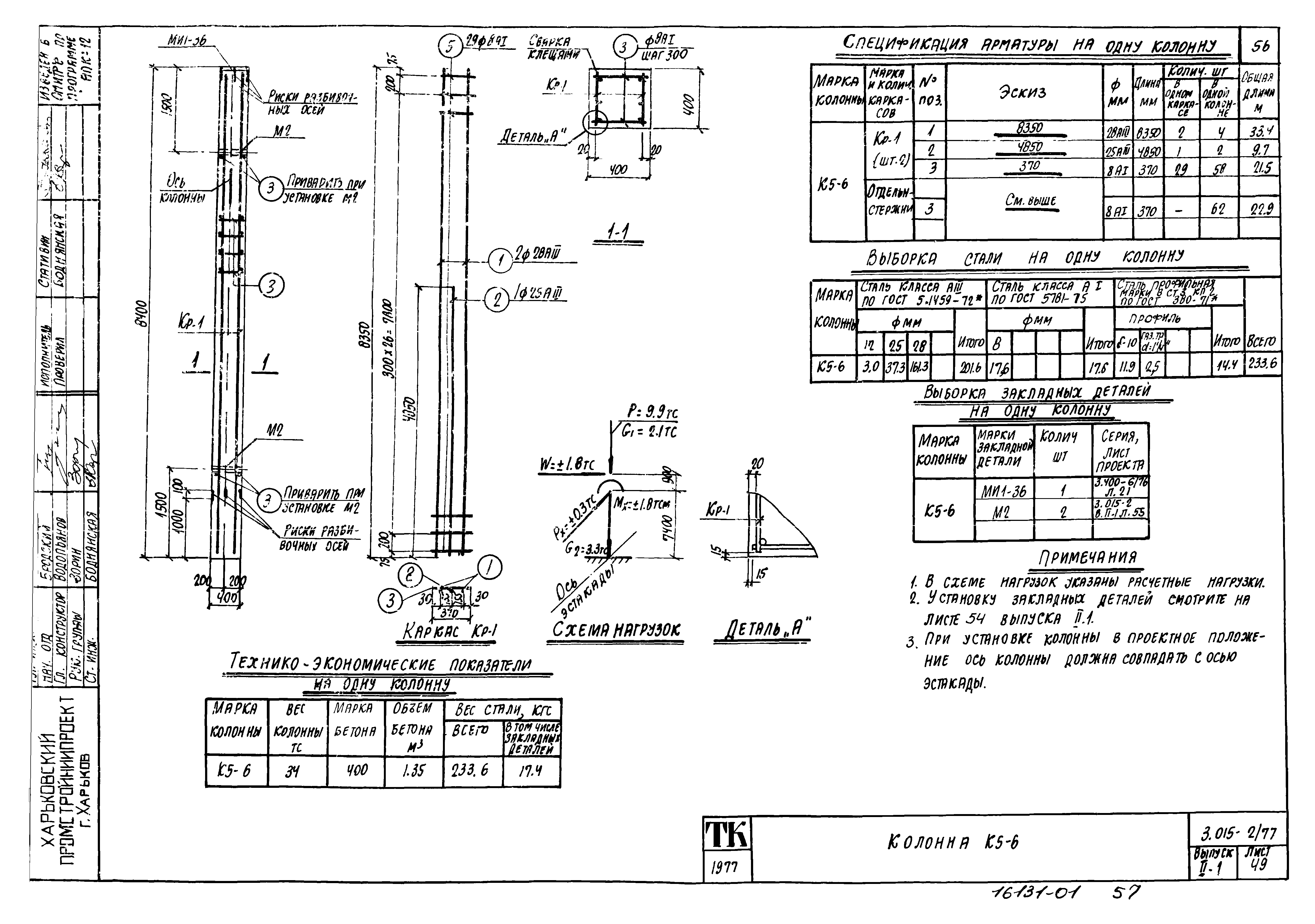
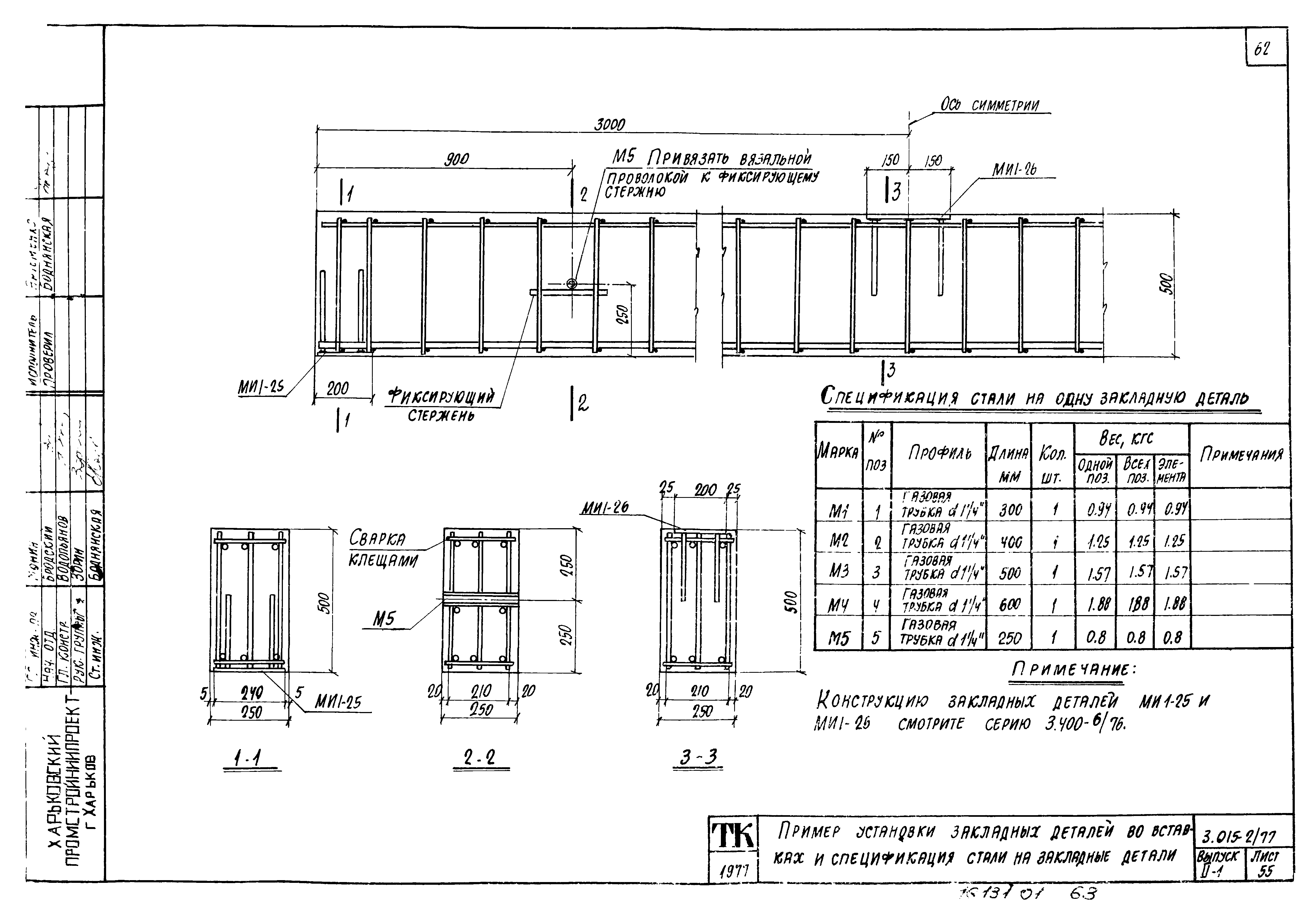
| Оглавление: | Содержание Пояснительная записка Траверса Т1-1 Траверса Т2-1 Траверса Т2-2 Траверса Т3-1 Траверса Т3-2 Траверса Т4-1 Траверса Т5-1 Траверса Т5-2 Траверса Т5-3 Траверса Т5-4 Траверса Т6-1 Траверса Т6-2 Траверса Т6-3 Траверса Т6-4 Траверса Т6-5 Траверса Т6-6 Траверса Т6-7 Траверса Т7-1 Траверса Т7-2 Траверса Т7-3 Траверса Т8 Траверса Т9 Вставка В1-1 Вставка В1-2 Колонна К1-1 Колонна К1-2 Колонна К2-1 Колонна К2-2 Колонна К2-3 Колонна К2-4 Колонна К2-5 Колонна К3-1 Колонна К3-2 Колонна К3-3 Колонна К3-4 Колонна К3-5 Колонна К3-6 Колонна К4-1 Колонна К4-2 Колонна К4-3 Колонна К4-4 Колонна К4-5 Колонна К4-6 Колонна К5-1 Колонна К5-2 Колонна К5-3 Колонна К5-4 Колонна К5-5 Колонна К5-6 Колонна К5-7 Колонна К6-1 Колонна К6-2 Колонна К6-3 Пример установки закладных деталей в колоннах Пример установки закладных деталей во вставках и спецификация стали на закладные детали Примеры установки закладных деталей в траверсах Накладные детали МН-1-МН-10 Накладные детали МН-11-МН-18. Спецификация стали на одну накладную деталь Спецификация стали на одну накладную деталь |
| Разработан: | Харьковский Промстройниипроект ЦНИИпроектстальконструкция НИИЖБ Проектный институт № 1 Госстроя СССР |
| Утверждён: | 02.04.1979 Госстрой СССР (Государственный комитет Совета Министров СССР по делам строительства) (USSR Gosstroy 50) |
| Расположен в: | |
| Чем заменён: |



































































