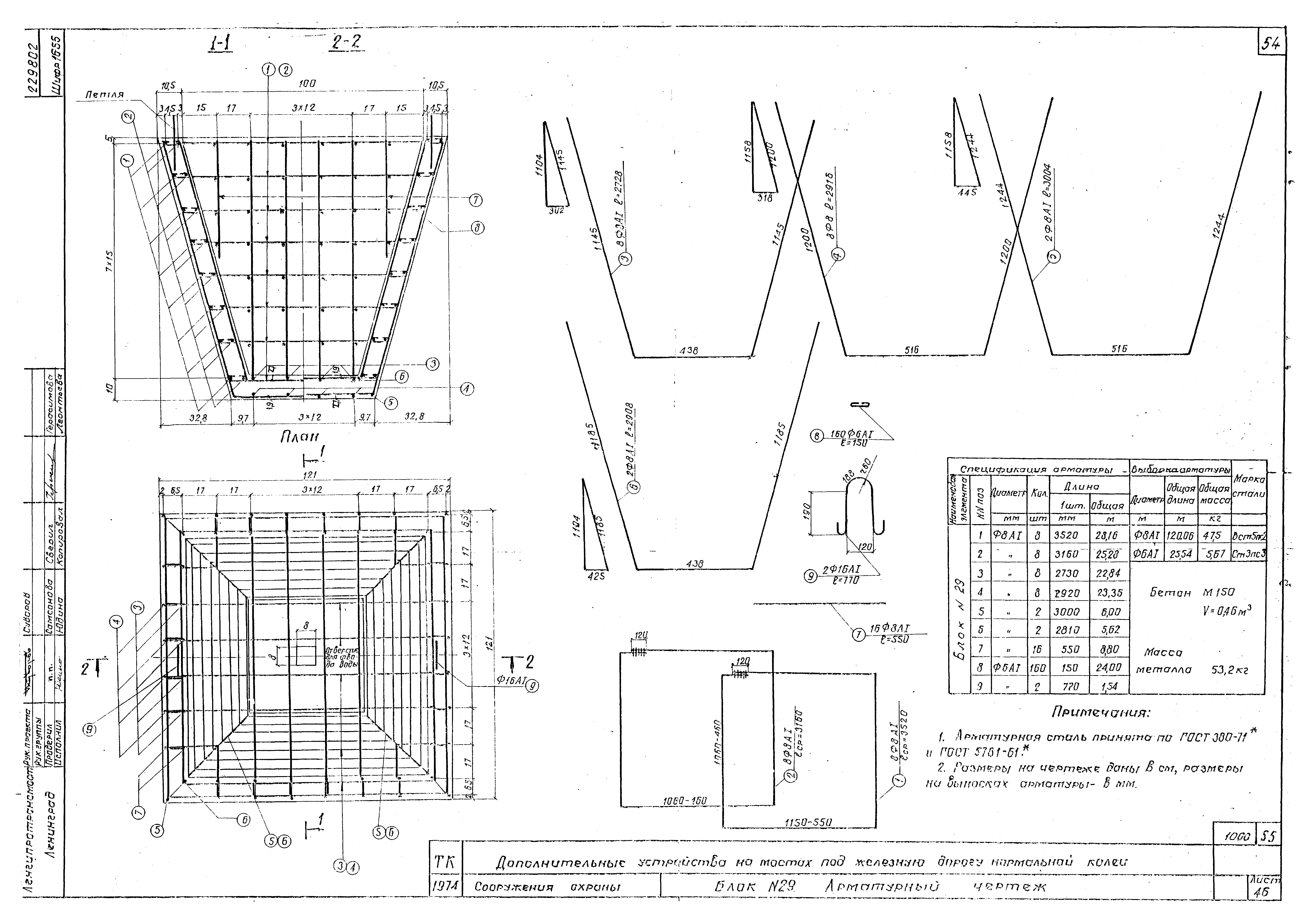
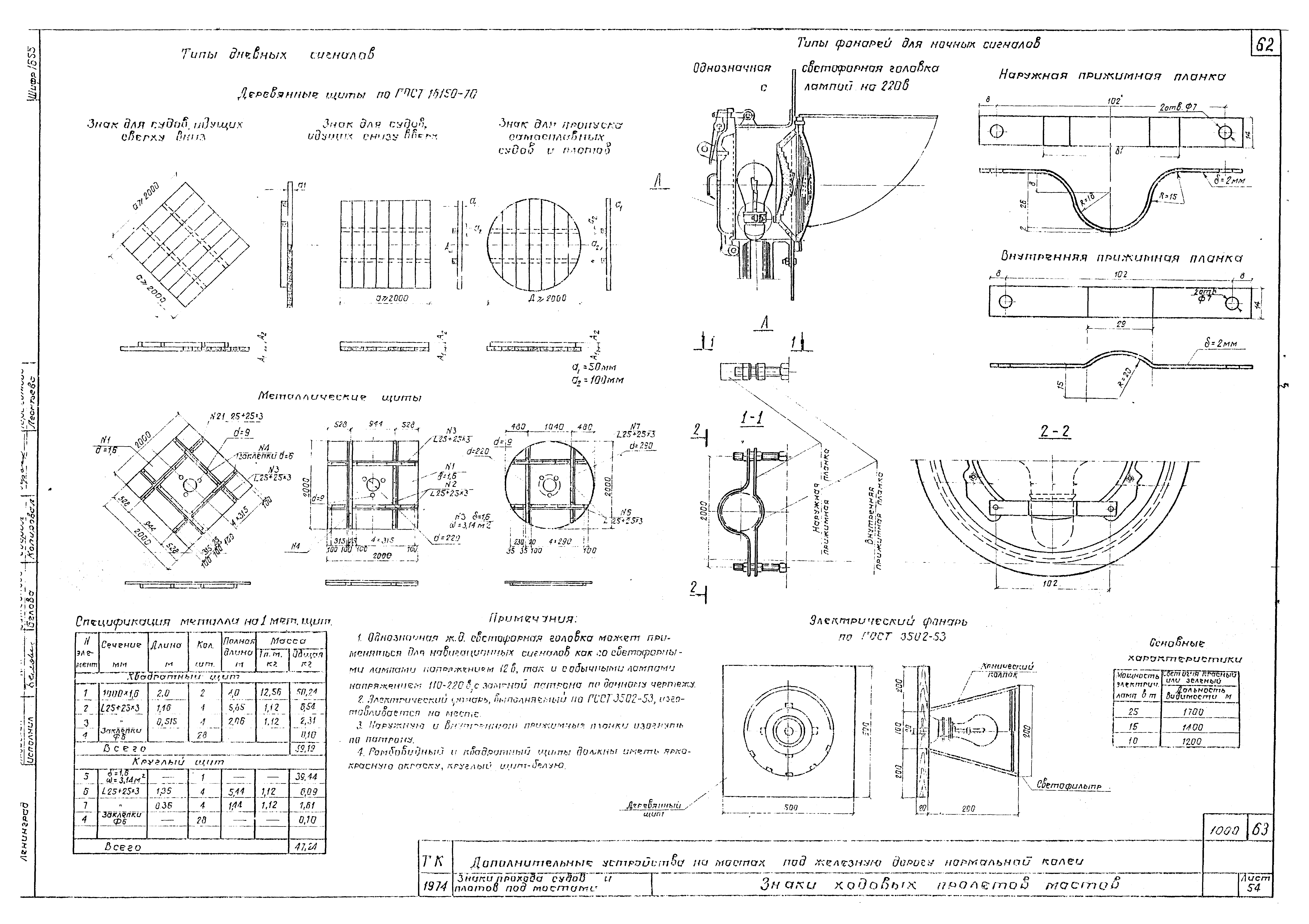
| ||||||||||||||||||||||||
Скачать Серия 3.501-96 Часть IДата актуализации: 10.08.2017
|
| Обозначение: | Серия 3.501-96 |
| Обозначение англ: | Series 3.501-96 |
| Статус: | действует |
| Название рус.: | Часть I |
| Дата добавления в базу: | 01.09.2013 |
| Дата актуализации: | 05.05.2017 |
| Дата введения: | 01.10.1975 |
| Разработан: | Ленгипротрансмост |
| Утверждён: | 30.05.1975 МПС (Ministry of Railroads П-15535) |
| Расположен в: |






































































