| ||||||||||||||||||||||||||||
Скачать Серия 1.435-5 Ворота промышленных зданий раздвижные однопольные и двухпольные размером 3,6х3,0; 3,6х3,6 и 4,8х5,4 м. Воздушные и воздушно-тепловые завесы с центробежными вентиляторами. Рабочие чертежиДата актуализации: 10.08.2017
|
| Обозначение: | Серия 1.435-5 |
| Обозначение англ: | Series 1.435-5 |
| Статус: | не действует |
| Название рус.: | Ворота промышленных зданий раздвижные однопольные и двухпольные размером 3,6х3,0; 3,6х3,6 и 4,8х5,4 м. Воздушные и воздушно-тепловые завесы с центробежными вентиляторами. Рабочие чертежи |
| Дата добавления в базу: | 01.09.2013 |
| Дата актуализации: | 05.05.2017 |
| Дата введения: | 01.09.1969 |
| Дата окончания срока действия: | 01.07.1978 |
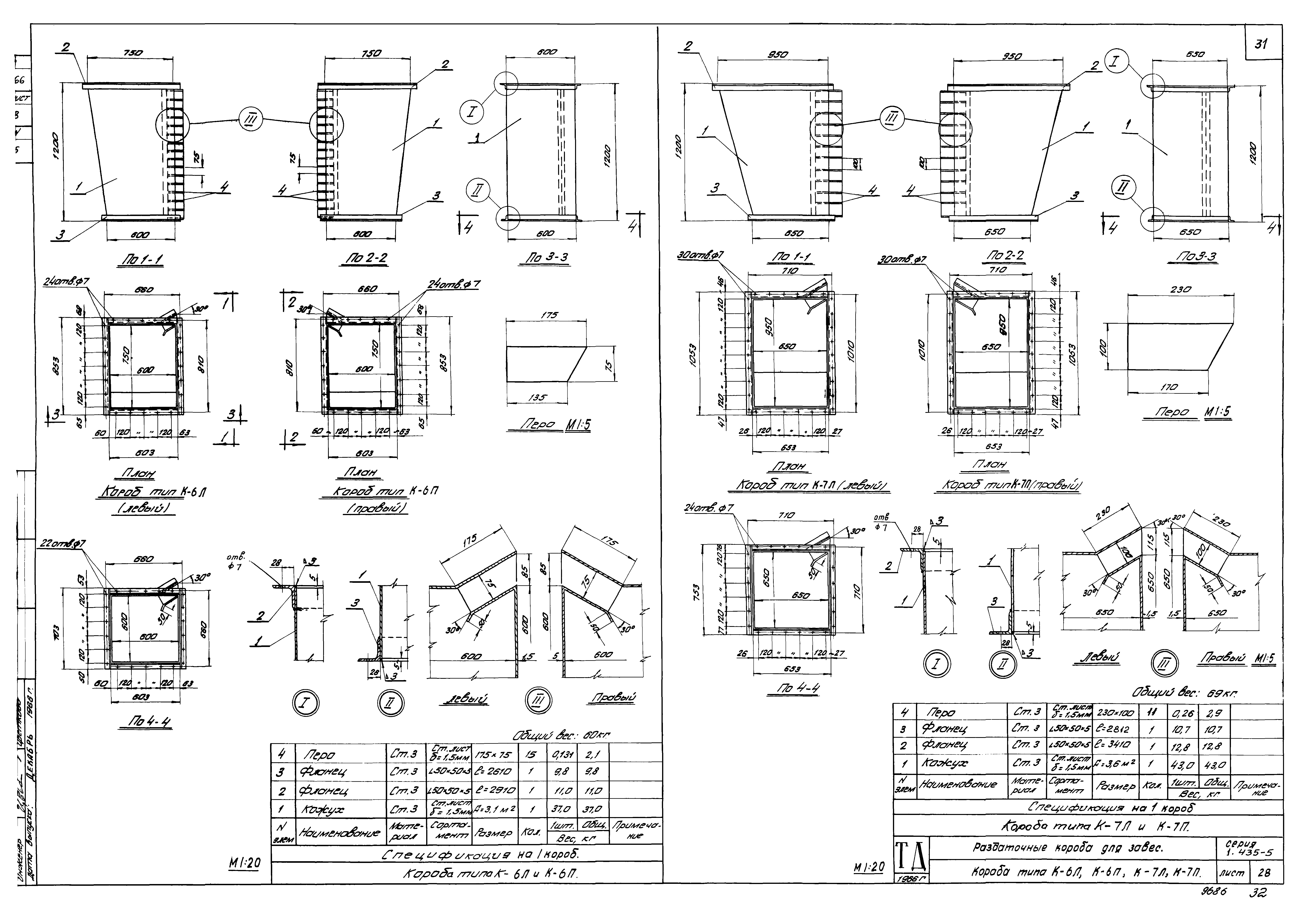
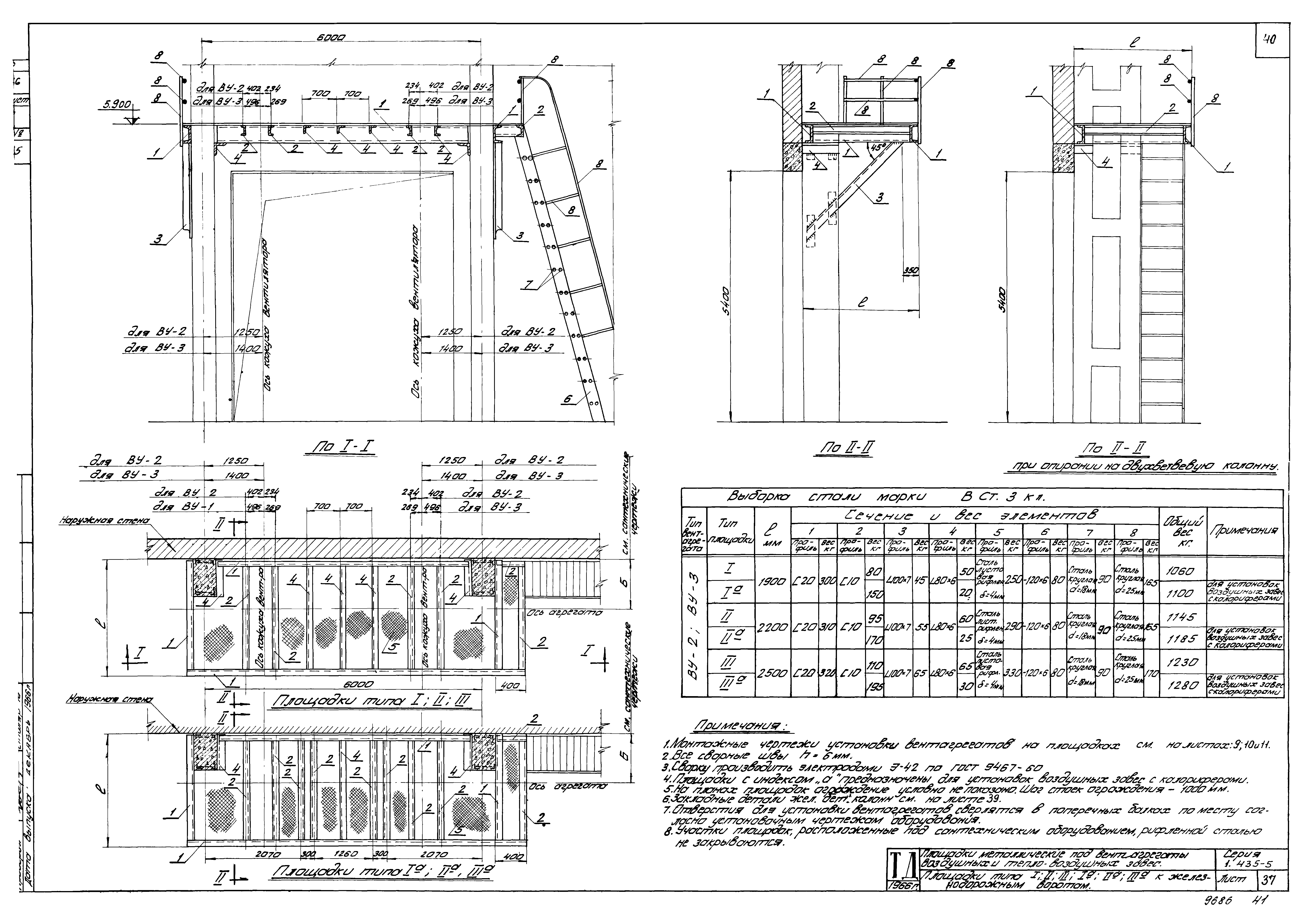
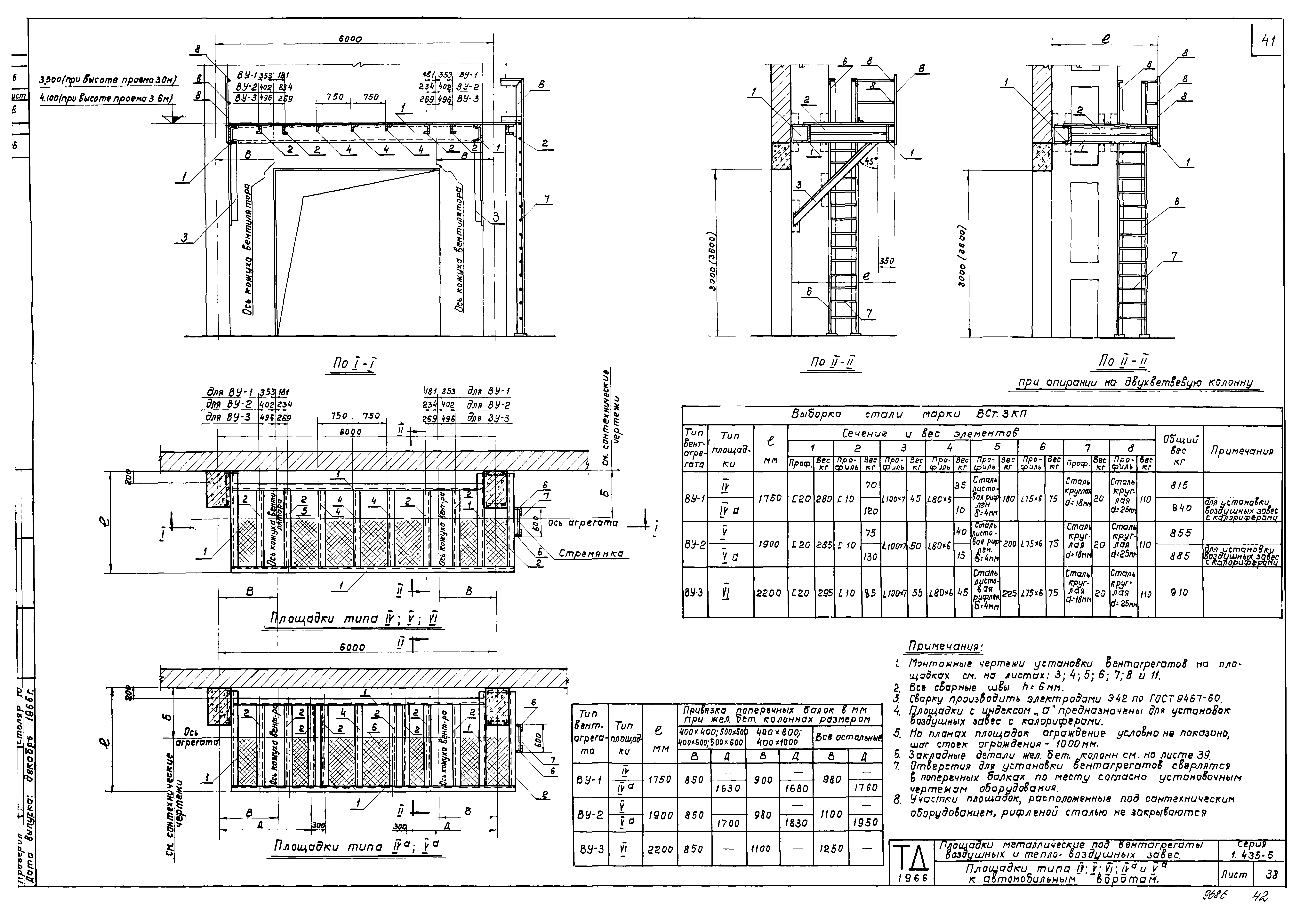
| Оглавление: | Общие указания Таблицы характеристик Завесы с установкой вентагрегатов тип В3-1÷В3-12 - на площадке и тип В3-13÷В3-27 - на полу Завесы с установкой вентагрегатов тип ТВ3-1;2;4;5;8;9 и 11 - на площадке и тип ТВ3-3;6;7;10 и ТВ3-12÷В3-27 - на полу Чертежи Воздушные завесы с установкой вентагрегатов на площадке Ворота размером 3.6х3 м. Завесы тип В3-1÷В3-7 (схема 1 и 2). Общий вид Ворота размером 3.6х3 м. Завесы тип В3-1÷В3-6 (схема 1). Узел "А" Ворота размером 3.6х3 м. Завесы тип В3-1÷В3-7 (схема 2). Узел "Б" Ворота размером 3.6х3.6 м. Завесы тип В3-8÷В3-10 (схемы 1 и 2). Общий вид Ворота размером 3.6х3.6 м. Завесы тип В3-8÷В3-10 (схемы 1). Узел "А" Ворота размером 3.6х3.6 м. Завесы тип В3-8÷В3-10 (схемы 2). Узел "Б" Ворота размером 4.8х5.4 м. Завесы тип В3-11 и В3-12 (схемы 3). Общий вид Ворота размером 4.8х5.4 м. Завесы тип В3-11 и В3-12 (схемы 3). Узел "В" Тепло-воздушные завесы с установкой вентагрегатов на площадке Завесы тип ТВ3-1;2;4;5;8;9 и 11 (тип установки калориферов Т1 и Т2). Общий вид и детали Воздушные и тепло-воздушные завесы с установкой вентагрегатов на площадке. Переходные патрубки тип П-1÷П-32 Воздушные завесы с установкой вентагрегатов на полу Ворота размером 3.6х3 м. Завесы тип В3-13 (схемы 4 и 5) и отвод М-1-М-9 Ворота размером 3.6х3.6 м. Завесы тип В3-14-В3-20 (схема 6) Ворота размером 4.8х5.4 м. Завесы тип В3-21-В3-27 (схема 4,5 и 6) Ворота размером 3.6х3.0;3.6х3.6 и 4.8х5.4 м. Завесы тип В3-13-В3-27 (схема 4,5 и 6) и таблицы размеров Тепло-воздушные завесы с установкой вентагрегатов на полу Завесы тип ТВ3-3;6;7;10 и ТВ3-12-ТВ3-27. Установки калориферов тип Т2 Завесы тип ТВ3-3;6;7;10 и ТВ3-12-ТВ3-27. Установки калориферов тип Т3 Завесы тип ТВ3-3;6;7;10 и ТВ3-12-ТВ3-27. Установки калориферов Т2 и Т3 (схемы 4,5 и 6) Воздушные и тепло-воздушные завесы с установкой вентагрегатов на полу. Переходные патрубки тип П-1÷П-15 и колено с направляющими лопатками тип Т-1-Т-9 Тепло-воздушные завесы с установкой вентагрегатов на полу. Конфузоры тип К-11-К-26 Воздушные и тепло-воздушные завесы с установкой вентагрегатов на полу и площадке. Монтажные узлы 1-11 Раздаточные короба для завес Короба типа К-1л и К-1п Короба типа К-2л и К-2п Короба типа К-3л и К-3п Короба типа К-4л и К-4п Короба типа К-5л и К-5п Короба типа К-6л и К-6п; К-7л и К-7п Короба типа К-8л и К-8п Короба типа К-9л и К-9п Короба типа К-10л и К-10п Короба типа К-11л и К-11п Воздушные и тепловоздушные завесы с установкой вентагрегатов на площадке. Узлы крепления тип Т-1-Т-3 Воздушные и тепловоздушные завесы с установкой вентагрегатов на полу и площадке. Узлы крепления тип Т-4-Т-5 Ворота железнодорожные размером 4.8х5.4 м. Съемные щиты типа Щ-1. Общий вид и спецификация Ворота железнодорожные размером 4.8х5.4 м. Съемные щиты типа Щ-1. Детали Площадки металлические под вентагрегаты воздушных и тепло-воздушных завес. Площадки типа 1;2;3;1а;2а;3а к железнодорожным воротам Площадки типа 4;5;6;4а;5а к автомобильным воротам Закладные элементы в железобетонных колоннах для крепления площадок |
| Разработан: | ЦНИИпромзданий |
| Утверждён: | 25.04.1969 Госстрой СССР (Государственный комитет Совета Министров СССР по делам строительства) (USSR Gosstroy 55) |
| Расположен в: |











































