| ||||||||||||||||||||||||||||
Скачать Серия КЭ-01-58 Выпуск 2. Перемычки. Рабочие чертежиДата актуализации: 10.08.2017
|
| Обозначение: | Серия КЭ-01-58 |
| Обозначение англ: | Series КЭ-01-58 |
| Статус: | не действует |
| Название рус.: | Выпуск 2. Перемычки. Рабочие чертежи |
| Дата добавления в базу: | 01.09.2013 |
| Дата актуализации: | 05.05.2017 |
| Дата введения: | 01.10.1967 |
| Дата окончания срока действия: | 01.02.1987 |
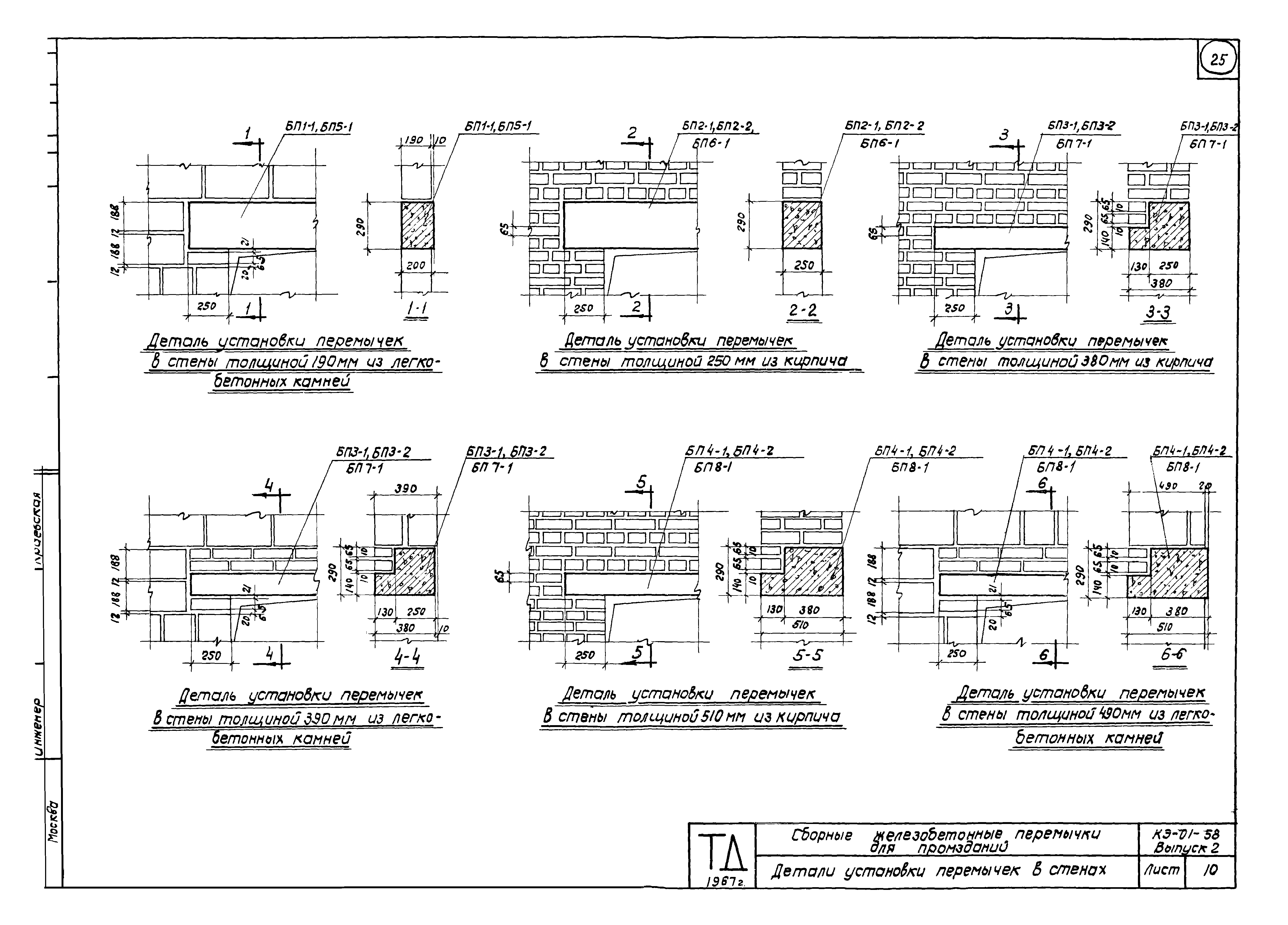
| Оглавление: | Пояснительная записка 1. Общая часть 2. Конструктивные решения 3. Технические требования к изготовлению, приемке и монтажу 4. Указания по применению рабочих чертежей Рабочие чертежи Перемычки БП1-1,БП2-1,БП2-2,БП5-1,БП6-1. Опалубочный чертеж и армирование. Показатели расхода материалов Перемычки БП3-1,БП3-2,БП4-1,БП4-2,БП7-1,БП8-1. Опалубочный чертеж и армирование. Показатели расхода материалов Армирование перемычек. Спецификация марок арматурных изделий и закладных деталей на одну перемычку Армирование перемычек. Выборка стали на одну перемычку Армирование перемычек. Пространственные каркасы КП1-КП10 Армирование перемычек. Спецификация марок арматурных изделий и закладных деталей на пространственный каркас Армирование перемычек. Каркасы КР1-КР8, сетки С1-С4, закладные детали М1-М4 Армирование перемычек. Спецификация и выборка стали на одно арматурное изделие Разбивка закладных деталей М4 и деревянных пробок в перемычках для крепления оконных переплетов Детали установки перемычек в стенах |
| Разработан: | ЦНИИпромзданий НИИЖБ |
| Утверждён: | 18.07.1967 Госстрой СССР (Государственный комитет Совета Министров СССР по делам строительства) (USSR Gosstroy 118) |
| Расположен в: |


























