Скачать Серия 1.063.1-1 Выпуск 1. Фермы пролетом 6, 9, 12 и 18 м. Рабочие чертежиДата актуализации: 10.08.2017 Серия 1.063.1-1
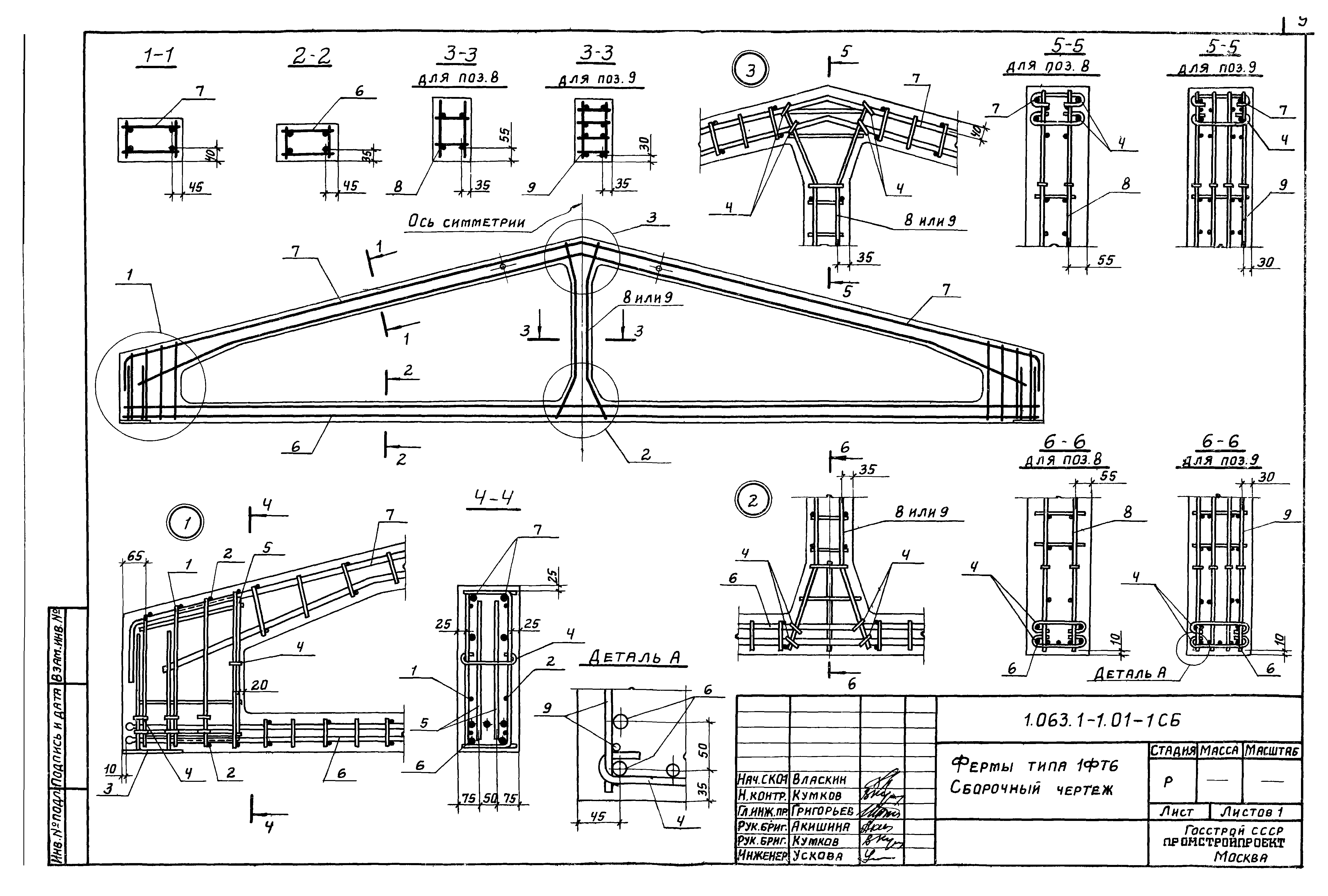
Выпуск 1. Фермы пролетом 6, 9, 12 и 18 м. Рабочие чертежиОбозначение: | Серия 1.063.1-1 | Обозначение англ: | Series 1.063.1-1 | Статус: | не действует | Название рус.: | Выпуск 1. Фермы пролетом 6, 9, 12 и 18 м. Рабочие чертежи | Дата добавления в базу: | 01.09.2013 | Дата актуализации: | 05.05.2017 | Дата введения: | 01.07.1982 | Дата окончания срока действия: | 01.02.1994 | Оглавление: | Содержание 1.063.1-1.01ПЗ Пояснительная записка 1.063.1-1.01-1ГЧ Фермы типа 1ФТ6. Габаритный чертеж 1.063.1-1.01-1 Фермы типа 1ФТ6 1.063.1-1.01-1 СБ Фермы типа 1ФТ6. Сборочный чертеж 1.063.1-1.01-2ГЧ Фермы типа 1ФТ9. Габаритный чертеж 1.063.1-1.01-2 Фермы типа 1ФТ9 1.063.1-1.01-2СБ Фермы типа 1ФТ9. Сборочный чертеж 1.063.1-1.01-3ГЧ Фермы типа 1ФТ12. Габаритный чертеж 1.063.1-1.01-3 Фермы типа 1ФТ12 1.063.1-1.01-3СБ Фермы типа 1ФТ12. Сборочный чертеж 1.063.1-1.01-4ГЧ Фермы типа 1ФТ18. Габаритный чертеж 1.063.1-1.01-4 Фермы типа 1ФТ18 1.063.1-1.01-4СБ Фермы типа 1ФТ18. Сборочный чертеж 1.063.1-1.01-5ГЧ Фермы типа 2ФТ18. Габаритный чертеж 1.063.1-1.01-5 Фермы типа 2ФТ18 1.063.1-1.01-5СБ Фермы типа 2ФТ18. Сборочный чертеж 1.063.1-1.01СМ Схемы испытаний ферм типов 1ФТ6,1ФТ9,1ФТ12,1ФТ18 и 2ФТ18 | Разработан: | НИИЖБ ЦНИИЭПсельстрой ГПИ Промстройпроект
| Утверждён: | 09.03.1982 Госстрой СССР (Государственный комитет Совета Министров СССР по делам строительства) (USSR Gosstroy 44)
| Расположен в: |
| Чем заменён: | |
                                
|