Скачать Типовой проект 903-2-15 Альбом II. Часть 1. Сооружения слива и приема мазута и жидких присадок. Части: тепломеханическая, архитектурно-строительная, автоматизация, электротехническая (из ТП 903-2-11)Дата актуализации: 10.08.2017 Типовой проект 903-2-15
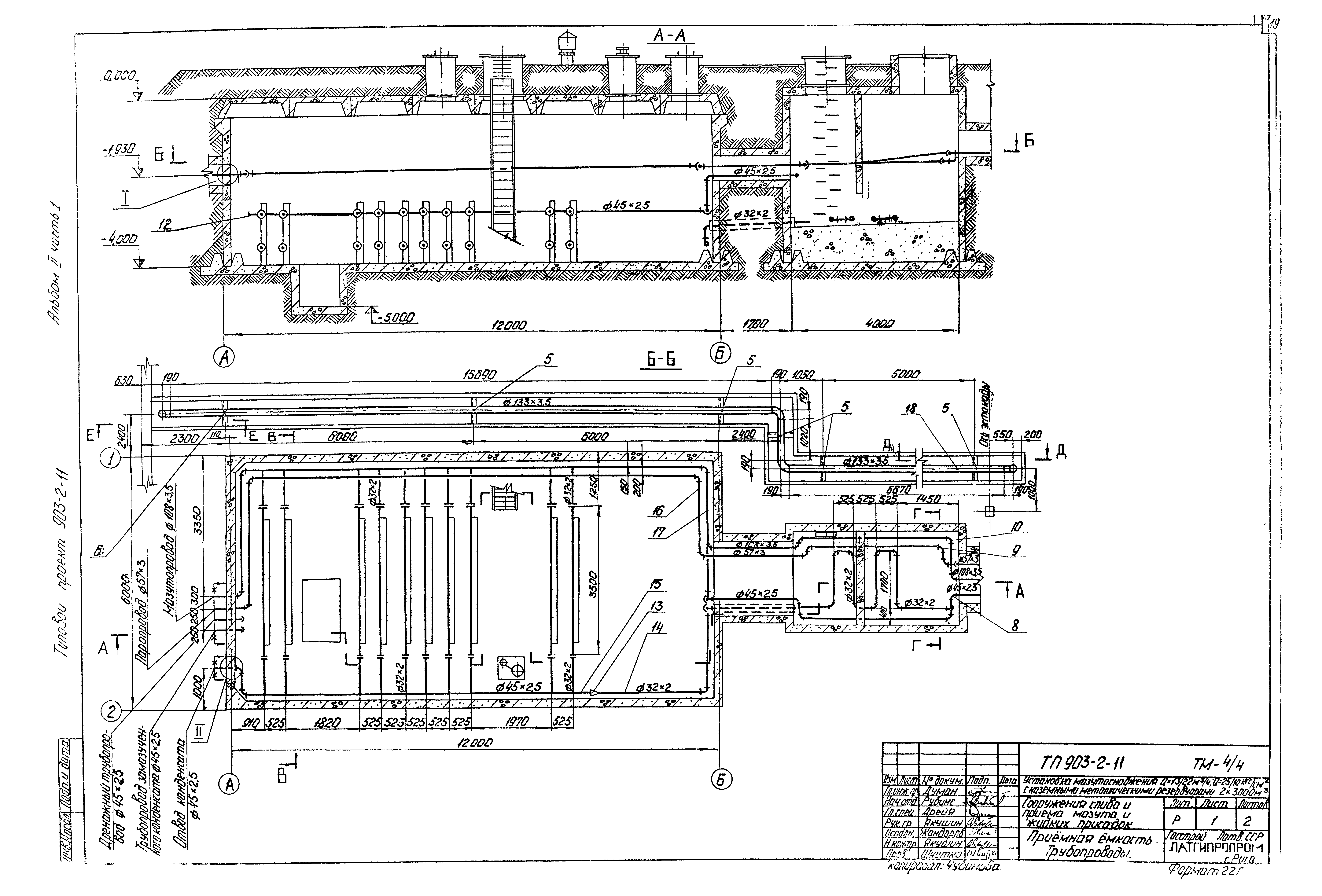
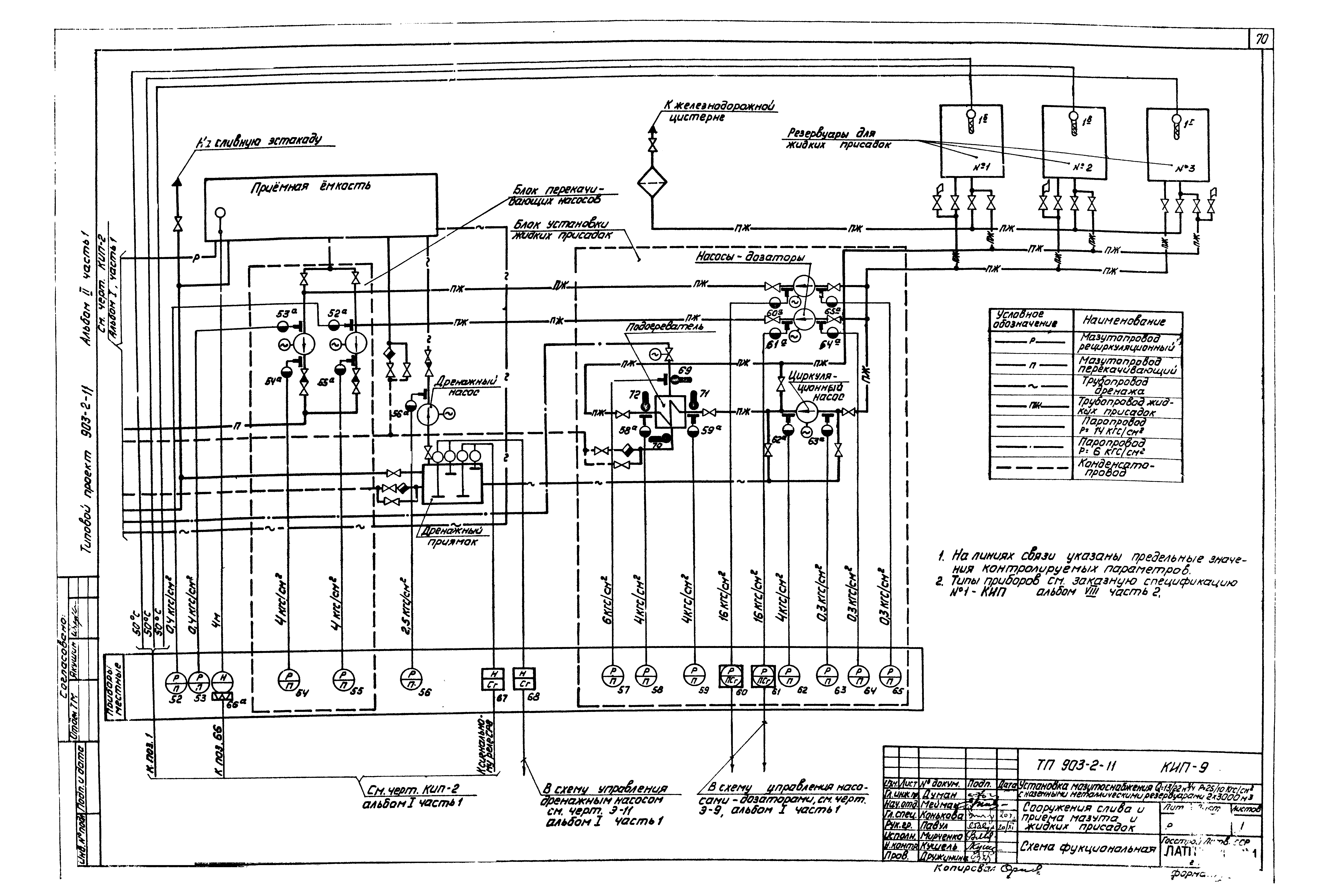
Альбом II. Часть 1. Сооружения слива и приема мазута и жидких присадок. Части: тепломеханическая, архитектурно-строительная, автоматизация, электротехническая (из ТП 903-2-11)Обозначение: | Типовой проект 903-2-15 | Обозначение англ: | 903-2-15 | Статус: | действует | Название рус.: | Альбом II. Часть 1. Сооружения слива и приема мазута и жидких присадок. Части: тепломеханическая, архитектурно-строительная, автоматизация, электротехническая (из ТП 903-2-11) | Дата добавления в базу: | 01.09.2013 | Дата актуализации: | 05.05.2017 | Дата введения: | 01.03.1981 | Оглавление: | ТП 903-2-11 Лист 1,2 Содержание альбома ТП 903-2-11 Лист 1,2,3 Пояснительная записка ТП 903-2-11-ТМ Тепломеханическая часть ТП 903-2-11-ТМ Сооружения слива мазута ТП 903-2-11-ТМ-3/1 Лист 1 Сооружения слива мазута. Общие данные (начало) ТП 903-2-11-ТМ-3/1 Лист 2 Сооружения слива мазута. Общие данные (окончание) ТП 903-2-11-ТМ-3/2 Сооружения слива мазута. Перечень изолируемых поверхностей ТП 903-2-11-ТМ-3/3 Лист 1,2 Сооружения слива мазута. Эстакада мазутослива ТП 903-2-11-ТМ-3/4 Сооружения слива мазута. Разогревательное устройство ТП 903-2-11-ТМ-3/5 Сооружения слива мазута. Рукав с наконечником ТП 903-2-11-ТМ-3/6 Сооружения слива мазута. Подвеска ТП 903-2-11-ТМ Приемная емкость ТП 903-2-11-ТМ-4 Лист 1 Приемная емкость. Общие данные (начало) ТП 903-2-11-ТМ-4/1 Лист 2 Приемная емкость. Общие данные (окончание) ТП 903-2-11-ТМ-4/2 Приемная емкость. Перечень изолируемых поверхностей ТП 903-2-11-ТМ-4/3 Лист 1,2 Приемная емкость. Компоновка оборудования ТП 903-2-11-ТМ-4/4 Лист 1,2 Приемная емкость. Трубопроводы ТП 903-2-11-ТМ-4/5 Приемная емкость. Установка люка-лаза Ду 1000 ТП 903-2-11-ТМ-4/6 Приемная емкость. Установка светового люка Ду 700 ТП 903-2-11-ТМ-4/7 Приемная емкость. Установка вентиляционного патрубка ВП-250 ТП 903-2-11-ТМ-4/8 Приемная емкость. Установка люка Ду 700 с датчиком уровня ДСУ-2М ТП 903-2-11-ТМ-4/9 Приемная емкость. Втулка с колпаком для прохода через перекрытие ТП 903-2-11-ТМ-4/10 Приемная емкость. Установка люка Ду 700 с замерным устройством Ду 150 ТП 903-2-11-ТМ-4/11 Приемная емкость. Установка фильтрующего устройства ТП 903-2-11-ТМ-4/12 Приемная емкость. Установка подогревательного элемента F=3,17 м² ТП 903-2-11-ТМ Сооружения жидких присадок ТП 903-2-11-ТМ-5/1 Лист 1 Сооружения жидких присадок. Общие данные (начало) ТП 903-2-11-ТМ-5/1 Лист 2 Сооружения жидких присадок. Общие данные (окончание) ТП 903-2-11-ТМ-5/2 Сооружения жидких присадок. Перечень изолируемых поверхностей ТП 903-2-11-ТМ-5/3 Лист 1,2 Сооружения жидких присадок. Общий вид установки для приема, хранения жидких присадок и ввода их в мазут ТП 903-2-11-ТМ-5/4 Сооружения жидких присадок. Распределительный колодец ТП 903-2-11-ТМ-5/5 Сооружения жидких присадок. Сливное устройство ТП 903-2-11-ТМ-5/6 Сооружения жидких присадок. Соединительное устройство ТП 903-2-11-ТМ-5/7 Сооружения жидких присадок. Разогревательное устройство ТП 903-2-11-КЖ Архитектурно-строительная часть ТП 903-2-11-КЖ Конструкции железобетонные ТП 903-2-11-КЖ-1 Общие данные (начало) ТП 903-2-11-КЖ-2 Общие данные (окончание) ТП 903-2-11-КЖ-3 Эстакада мазутослива. Схема сооружений слива и приема мазута. План КМ1 ТП 903-2-11-КЖ-4 Эстакада мазутослива. Канал КН1 ТП 903-2-11-КЖ-5 Эстакада мазутослива. Канал КН2 ТП 903-2-11-КЖ-6 Эстакада мазутослива. Канал КН2. Элемент плана № 1. УМ3,УМ9. Опалубка и армирование ТП 903-2-11-КЖ-7 Эстакада мазутослива. Канал мазутослива КНМ1 ТП 903-2-11-КЖ-8 Эстакада мазутослива. КНМ1. Разрезы 2-2;3-3. Балка БМ1. Спецификации ТП 903-2-11-КЖ-9 Эстакада мазутослива. Маркировочная схема фундаментов и колонн. Фундаменты ФМ1,ФМ2 ТП 903-2-11-КЖ-10 Эстакада мазутослива. Спецификации к листу КЖ-9. Схемы сгиба сеток С3;С4;С7 ТП 903-2-11-КЖ-11 Эстакада мазутослива. Приямок ПРМ1 ТП 903-2-11-КЖ-12 Приемная емкость. Открытая площадка. Маркировочный план лестниц и фундаментов ТП 903-2-11-КЖ-13 Приемная емкость. Маркировочные схемы стеновых панелей, монолитных участков и плит покрытия ТП 903-2-11-КЖ-14 Приемная емкость. Узлы "1-8" ТП 903-2-11-КЖ-15 Приемная емкость. ДМ1. Опалубка ТП 903-2-11-КЖ-16 Приемная емкость. ДМ1. Армирование ТП 903-2-11-КЖ-17 Приемная емкость. ДМ1. Сопряжение пакетов в углах ТП 903-2-11-КЖ-18 Приемная емкость. ПРМ2. Опалубка и армирование ТП 903-2-11-КЖ-19 Приемная емкость. Разбивка закладных деталей в монолитных узлах УМ1-УМ4 ТП 903-2-11-КЖ-20 Приемная емкость. УМ5 (гидрозатвор). Опалубка ТП 903-2-11-КЖ-21 Приемная емкость. УМ5 (гидрозатвор). Армирование ТП 903-2-11-КЖ-22 Приемная емкость. КЛМ1,УМ6,УМ7. Опалубка и армирование ТП 903-2-11-КЖ-23 Приемная емкость. ПРМ3,РКМ1. Опалубка и армирование ТП 903-2-11-КЖ-24 Приемная емкость. Схема расположения молниеотвода на кровле ТП 903-2-11-КМ Конструкции металлические ТП 903-2-11-КМ-1 Общие данные (начало) ТП 903-2-11-КМ-2 Общие данные (окончание) ТП 903-2-11-КМ-3 Техническая спецификация металла для специализированных заводов ТП 903-2-11-КМ-4 Эстакада мазутослива. Площадка на отм. 3.950 ТП 903-2-11-КМ-5 Эстакада мазутослива. Площадка на отм. 3.950. Узлы "1-4" ТП 903-2-11-КМ-6 Эстакада мазутослива. Площадка на отм. 3.950. Узлы "5,6". Ведомость элементов. Связь СВ1 ТП 903-2-11-КМ-7 Эстакада мазутослива. Элементы мостика МО1-1,МО1-2,МО1-3 ТП 903-2-11-КМ-8 Эстакада мазутослива. МКР1 - металлическая крышка. МР1 - металлическая рама ТП 903-2-11-КМ-9 Приемная емкость. Лестница Л1. Металлическая крышка МКР2 ТП 903-2-11-КИП Автоматизация ТП 903-2-11-КИП-8 Общие данные ТП 903-2-11-КИП-9 Схема функциональная ТП 903-2-11-КИП-10 Схема внешних проводок ТП 903-2-11-Э Электротехническая часть ТП 903-2-11-Э-1 Общие данные ТП 903-2-11-Э-2 План осветительной электроустановки эстакады мазутослива | Разработан: | Латгипропром
| Утверждён: | 16.11.1978 Латгипропром (290)
| Расположен в: |
|
                                                                         
|