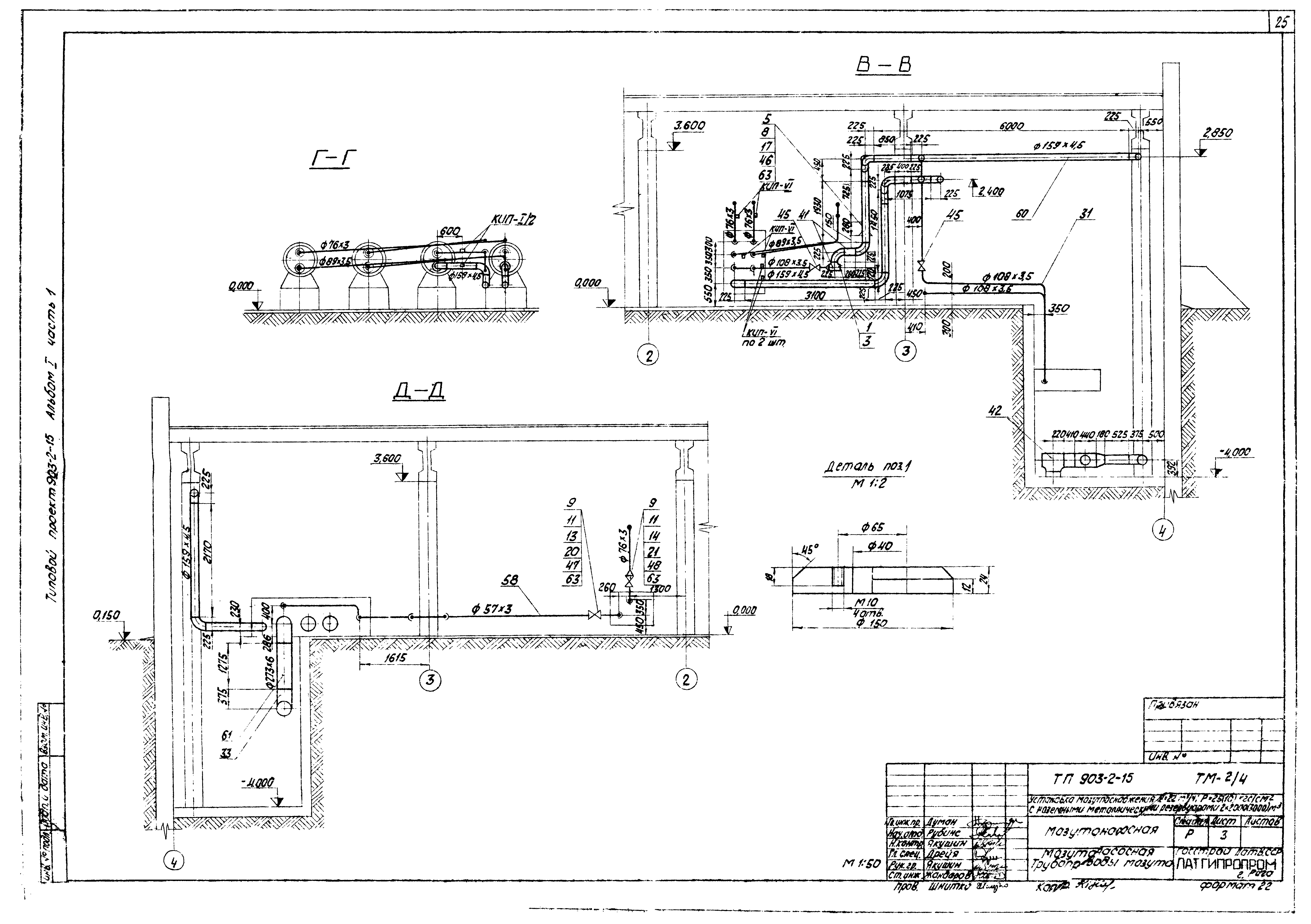
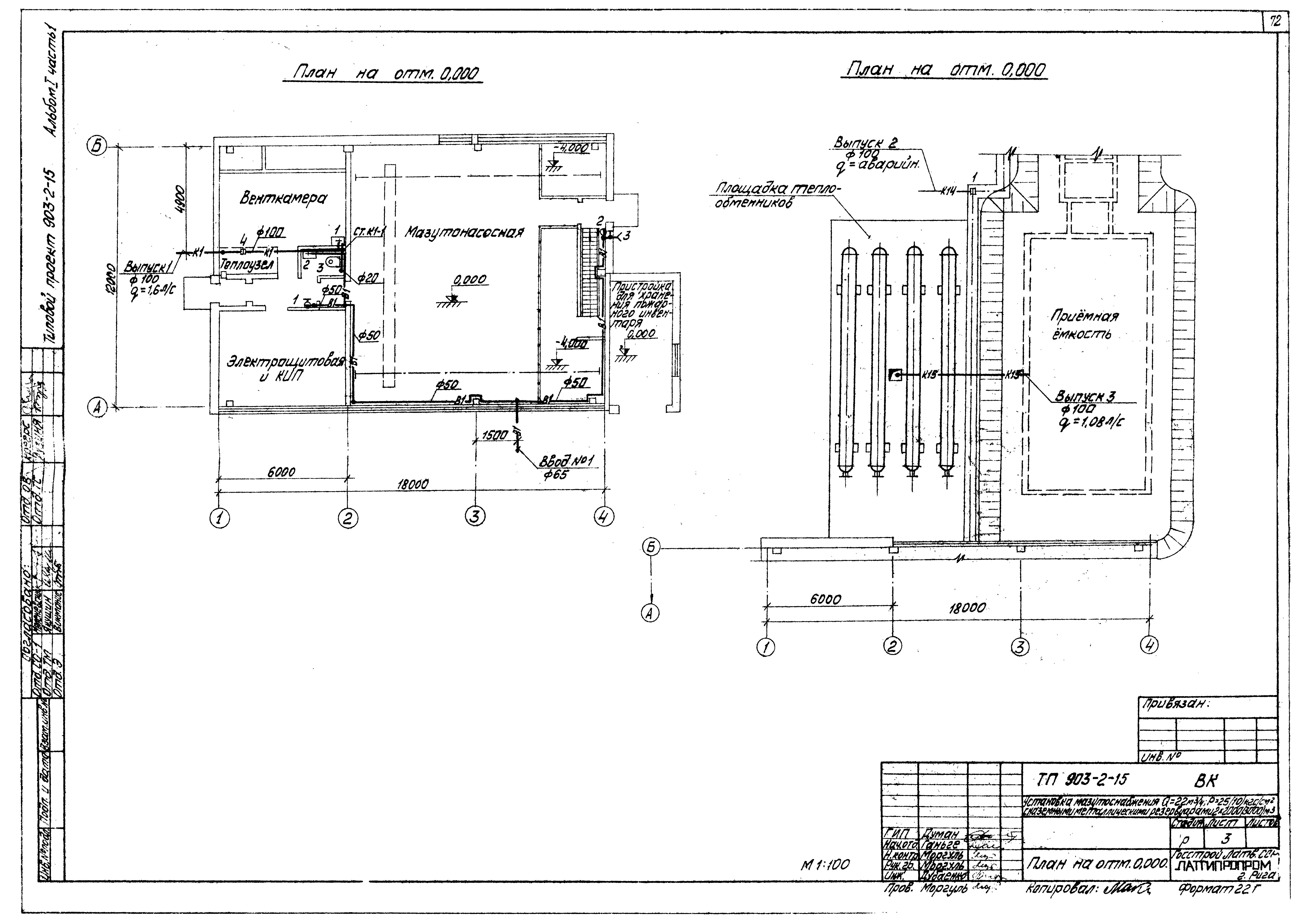
Скачать Типовой проект 903-2-15 Альбом I. Часть 1. Мазутонасосная. Части: тепломеханическая, автоматизация, электротехническая, санитарно-техническая, тепловые сетиДата актуализации: 10.08.2017 Типовой проект 903-2-15
Альбом I. Часть 1. Мазутонасосная. Части: тепломеханическая, автоматизация, электротехническая, санитарно-техническая, тепловые сетиОбозначение: | Типовой проект 903-2-15 | Обозначение англ: | 903-2-15 | Статус: | действует | Название рус.: | Альбом I. Часть 1. Мазутонасосная. Части: тепломеханическая, автоматизация, электротехническая, санитарно-техническая, тепловые сети | Дата добавления в базу: | 01.09.2013 | Дата актуализации: | 05.05.2017 | Разработан: | Латгипропром
| Утверждён: | 21.11.1980 Латгипропром (246)
| Расположен в: |
|
                                                                                  
|