Информационная система
«Ёшкин Кот»

Скачать базу одним архивом
Скачать обновления
История создания базы
Карта сайта

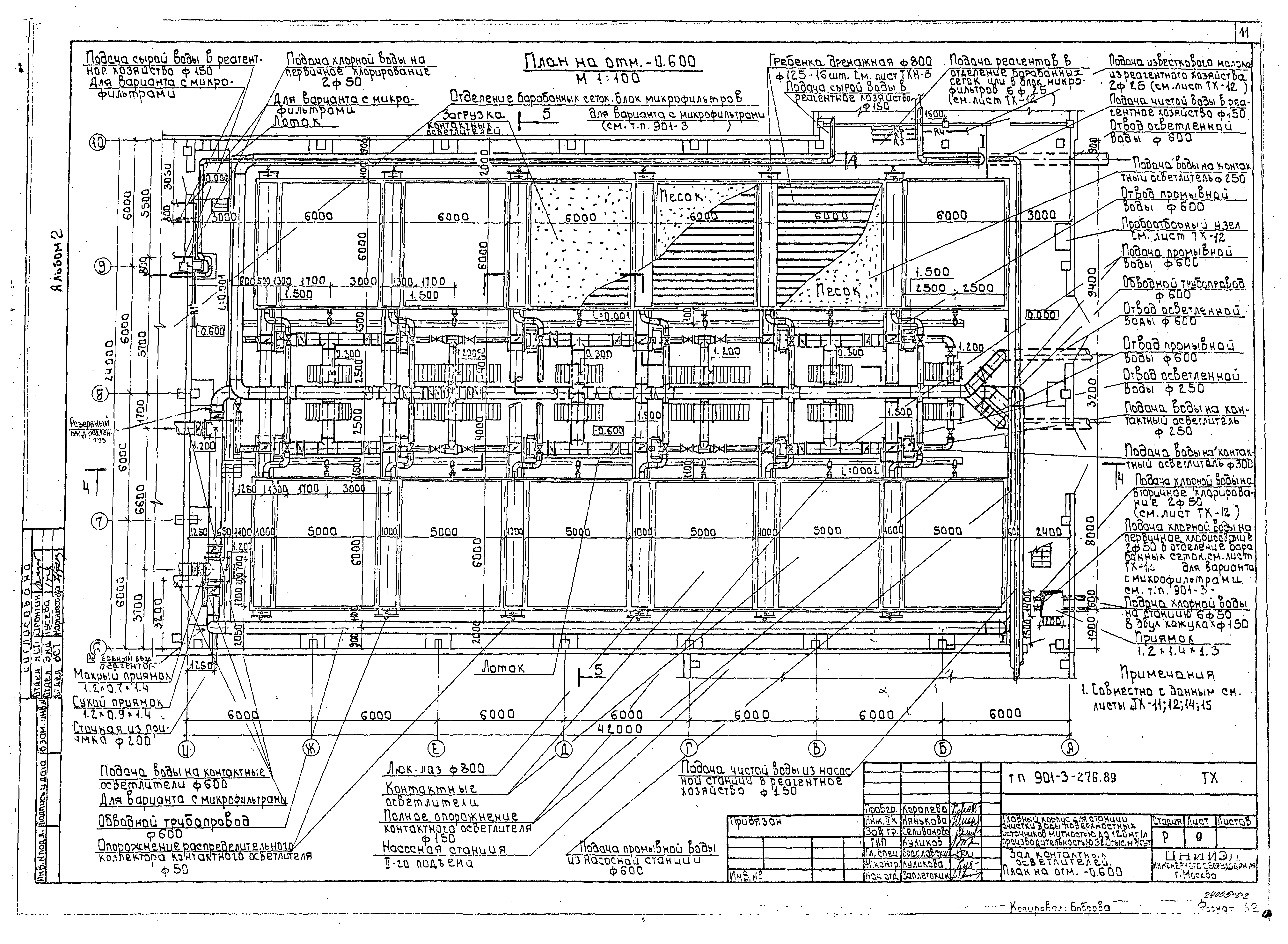
Скачать Типовой проект 901-3-276.89 Альбом 2. Технология производства. Эскизные чертежи общих видов. Внутренний водопровод и канализация. Отопление и вентиляция

Дата актуализации: 10.08.2017

Типовой проект 901-3-276.89

Альбом 2. Технология производства. Эскизные чертежи общих видов. Внутренний водопровод и канализация. Отопление и вентиляция

Обозначение: Типовой проект 901-3-276.89
Обозначение англ: 901-3-276.89
Статус:не определен законодательством
Название рус.:Альбом 2. Технология производства. Эскизные чертежи общих видов. Внутренний водопровод и канализация. Отопление и вентиляция
Дата добавления в базу:01.09.2013
Дата актуализации:05.05.2017
Дата введения:19.09.1989
Разработан: ЦНИИЭП инженерного оборудования Госгражданстроя
Утверждён:29.07.1986 Госгражданстрой (Gosgrazhdanstroy 242)
Издан: Госстрой СССР (1990 г. )
Расположен в:Техническая документация Строительство Справочные документы Типовые строительные конструкции, изделия и узлы Общероссийский строительный каталог Промышленные предприятия, здания и сооружения Здания и сооружения санитарно-технические Водоснабжение Очистные сооружения Станции очистки воды
Типовой проект 901-3-276.89Типовой проект 901-3-276.89Типовой проект 901-3-276.89Типовой проект 901-3-276.89Типовой проект 901-3-276.89Типовой проект 901-3-276.89Типовой проект 901-3-276.89Типовой проект 901-3-276.89Типовой проект 901-3-276.89Типовой проект 901-3-276.89Типовой проект 901-3-276.89Типовой проект 901-3-276.89Типовой проект 901-3-276.89Типовой проект 901-3-276.89Типовой проект 901-3-276.89Типовой проект 901-3-276.89Типовой проект 901-3-276.89Типовой проект 901-3-276.89Типовой проект 901-3-276.89Типовой проект 901-3-276.89Типовой проект 901-3-276.89Типовой проект 901-3-276.89Типовой проект 901-3-276.89Типовой проект 901-3-276.89Типовой проект 901-3-276.89Типовой проект 901-3-276.89Типовой проект 901-3-276.89Типовой проект 901-3-276.89Типовой проект 901-3-276.89Типовой проект 901-3-276.89Типовой проект 901-3-276.89Типовой проект 901-3-276.89Типовой проект 901-3-276.89Типовой проект 901-3-276.89Типовой проект 901-3-276.89Типовой проект 901-3-276.89Типовой проект 901-3-276.89Типовой проект 901-3-276.89Типовой проект 901-3-276.89Типовой проект 901-3-276.89Типовой проект 901-3-276.89Типовой проект 901-3-276.89Типовой проект 901-3-276.89Типовой проект 901-3-276.89Типовой проект 901-3-276.89Типовой проект 901-3-276.89Типовой проект 901-3-276.89Типовой проект 901-3-276.89

© 2013 Ёшкин Кот :-) Карта сайта