Информационная система
«Ёшкин Кот»

Скачать базу одним архивом
Скачать обновления
История создания базы
Карта сайта

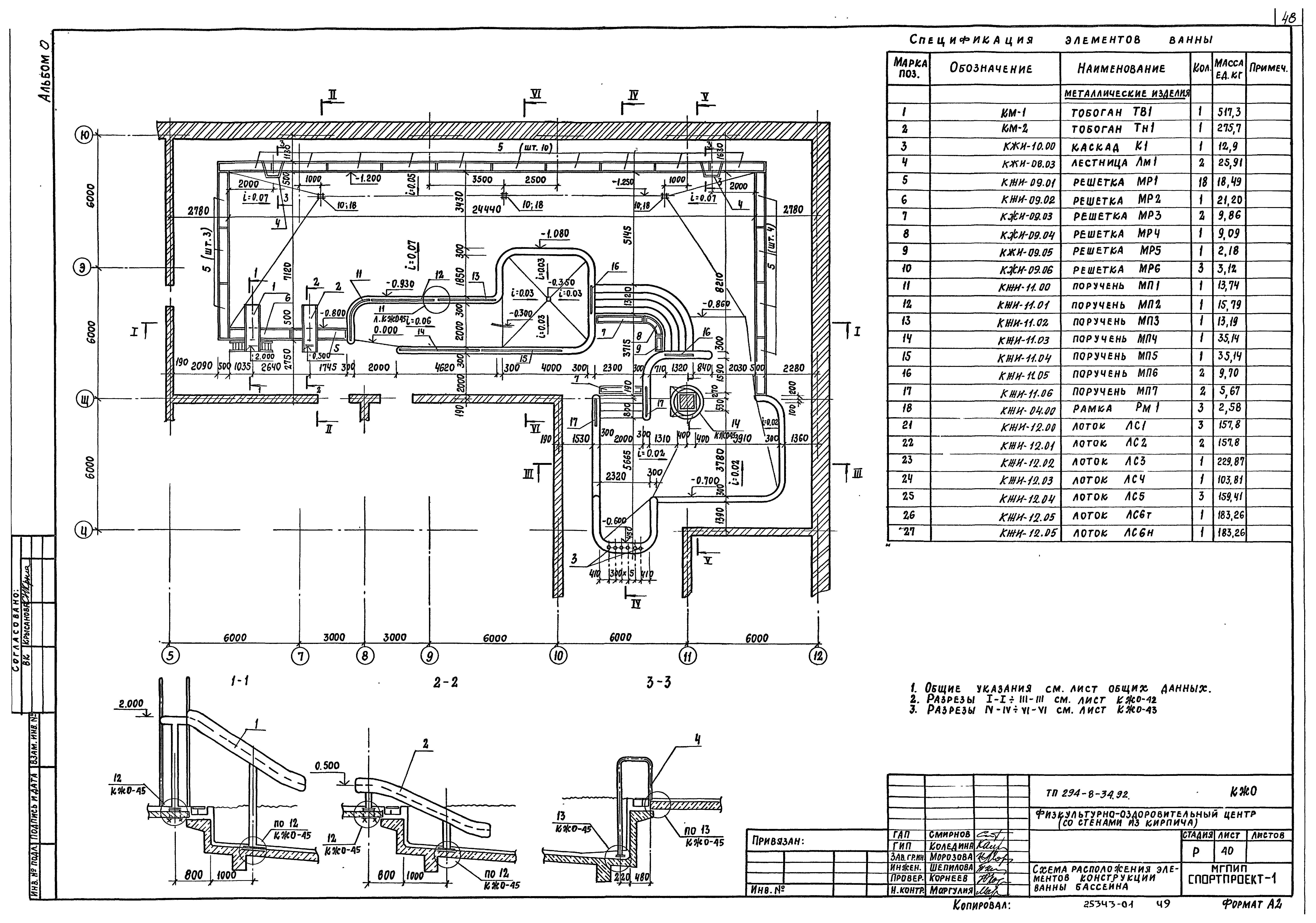
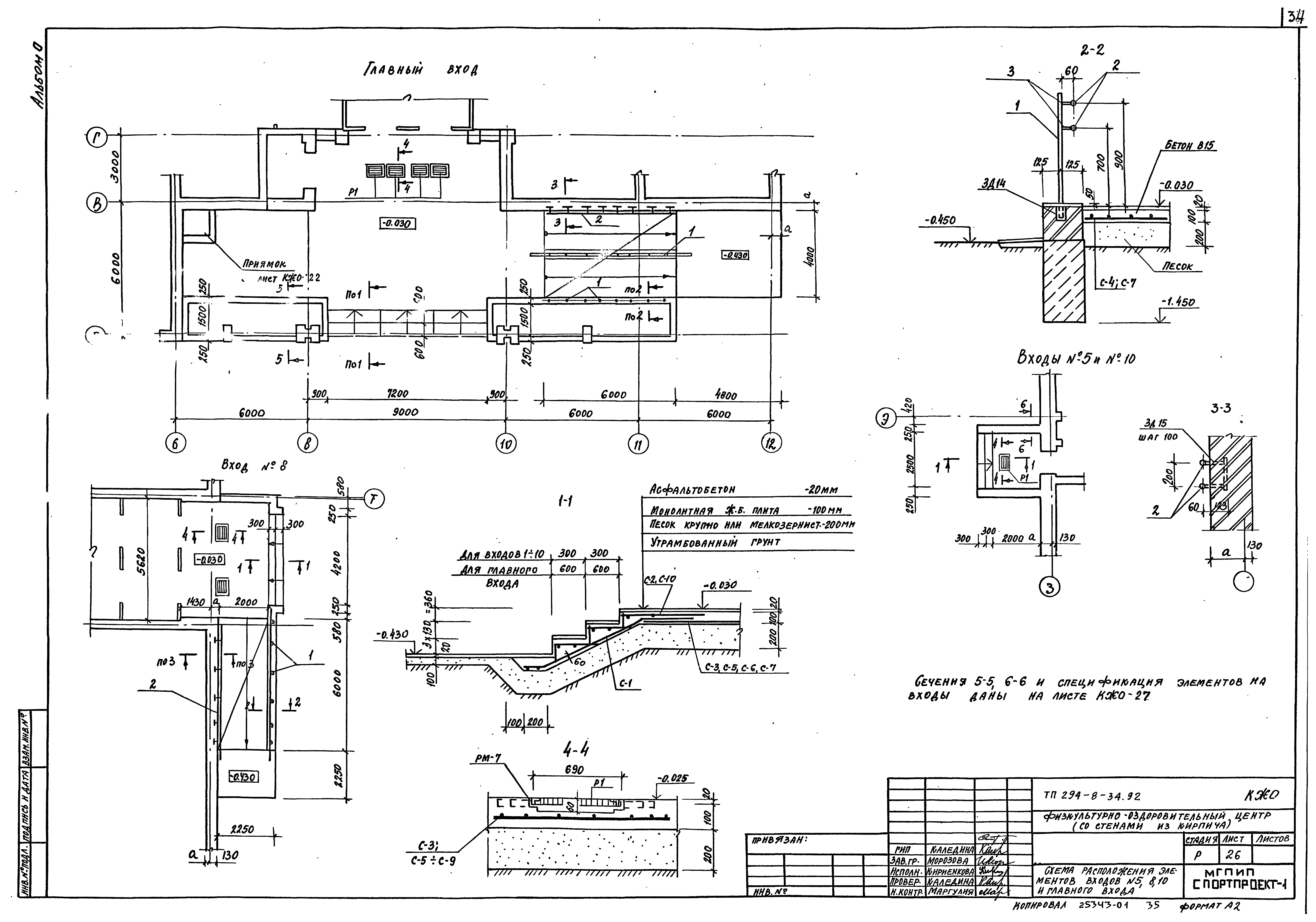
Скачать Типовой проект 294-8-34.92 Альбом 0. Материалы для привязки и чертежи нулевого цикла

Дата актуализации: 10.08.2017

Типовой проект 294-8-34.92

Альбом 0. Материалы для привязки и чертежи нулевого цикла

Обозначение: Типовой проект 294-8-34.92
Обозначение англ: 294-8-34.92
Статус:не определен законодательством
Название рус.:Альбом 0. Материалы для привязки и чертежи нулевого цикла
Дата добавления в базу:01.09.2013
Дата актуализации:05.05.2017
Дата введения:22.04.1992
Разработан: Спортпроект-1
Утверждён:26.12.1990 Госкомархитектура (262)
Расположен в:Техническая документация Строительство Справочные документы Типовые строительные конструкции, изделия и узлы Общероссийский строительный каталог Общественные здания в городах и поселках городского типа Физкультурно-оздоровительные и спортивные здания и сооружения Физкультурно-оздоровительные и спортивные комплексы
Типовой проект 294-8-34.92Типовой проект 294-8-34.92Типовой проект 294-8-34.92Типовой проект 294-8-34.92Типовой проект 294-8-34.92Типовой проект 294-8-34.92Типовой проект 294-8-34.92Типовой проект 294-8-34.92Типовой проект 294-8-34.92Типовой проект 294-8-34.92Типовой проект 294-8-34.92Типовой проект 294-8-34.92Типовой проект 294-8-34.92Типовой проект 294-8-34.92Типовой проект 294-8-34.92Типовой проект 294-8-34.92Типовой проект 294-8-34.92Типовой проект 294-8-34.92Типовой проект 294-8-34.92Типовой проект 294-8-34.92Типовой проект 294-8-34.92Типовой проект 294-8-34.92Типовой проект 294-8-34.92Типовой проект 294-8-34.92Типовой проект 294-8-34.92Типовой проект 294-8-34.92Типовой проект 294-8-34.92Типовой проект 294-8-34.92Типовой проект 294-8-34.92Типовой проект 294-8-34.92Типовой проект 294-8-34.92Типовой проект 294-8-34.92Типовой проект 294-8-34.92Типовой проект 294-8-34.92Типовой проект 294-8-34.92Типовой проект 294-8-34.92Типовой проект 294-8-34.92Типовой проект 294-8-34.92Типовой проект 294-8-34.92Типовой проект 294-8-34.92Типовой проект 294-8-34.92Типовой проект 294-8-34.92Типовой проект 294-8-34.92Типовой проект 294-8-34.92Типовой проект 294-8-34.92Типовой проект 294-8-34.92Типовой проект 294-8-34.92Типовой проект 294-8-34.92Типовой проект 294-8-34.92Типовой проект 294-8-34.92Типовой проект 294-8-34.92Типовой проект 294-8-34.92Типовой проект 294-8-34.92Типовой проект 294-8-34.92Типовой проект 294-8-34.92Типовой проект 294-8-34.92Типовой проект 294-8-34.92Типовой проект 294-8-34.92Типовой проект 294-8-34.92Типовой проект 294-8-34.92Типовой проект 294-8-34.92Типовой проект 294-8-34.92Типовой проект 294-8-34.92Типовой проект 294-8-34.92Типовой проект 294-8-34.92Типовой проект 294-8-34.92Типовой проект 294-8-34.92Типовой проект 294-8-34.92

© 2013 Ёшкин Кот :-) Карта сайта