Скачать Типовой проект 903-1-161 Альбом II. Часть 1. Архитектурно-строительная часть. Общие чертежи и нулевой циклДата актуализации: 10.08.2017 Типовой проект 903-1-161
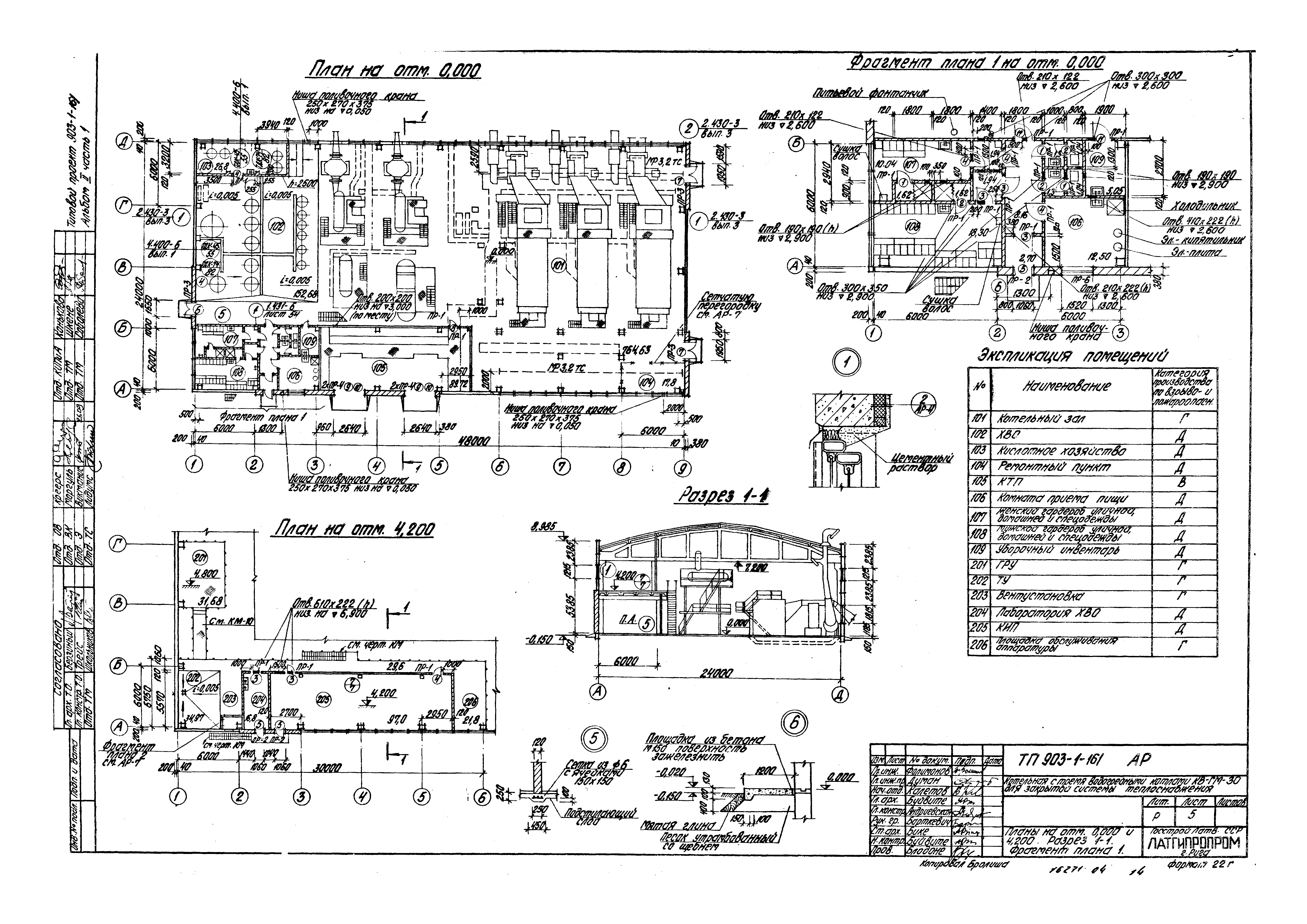
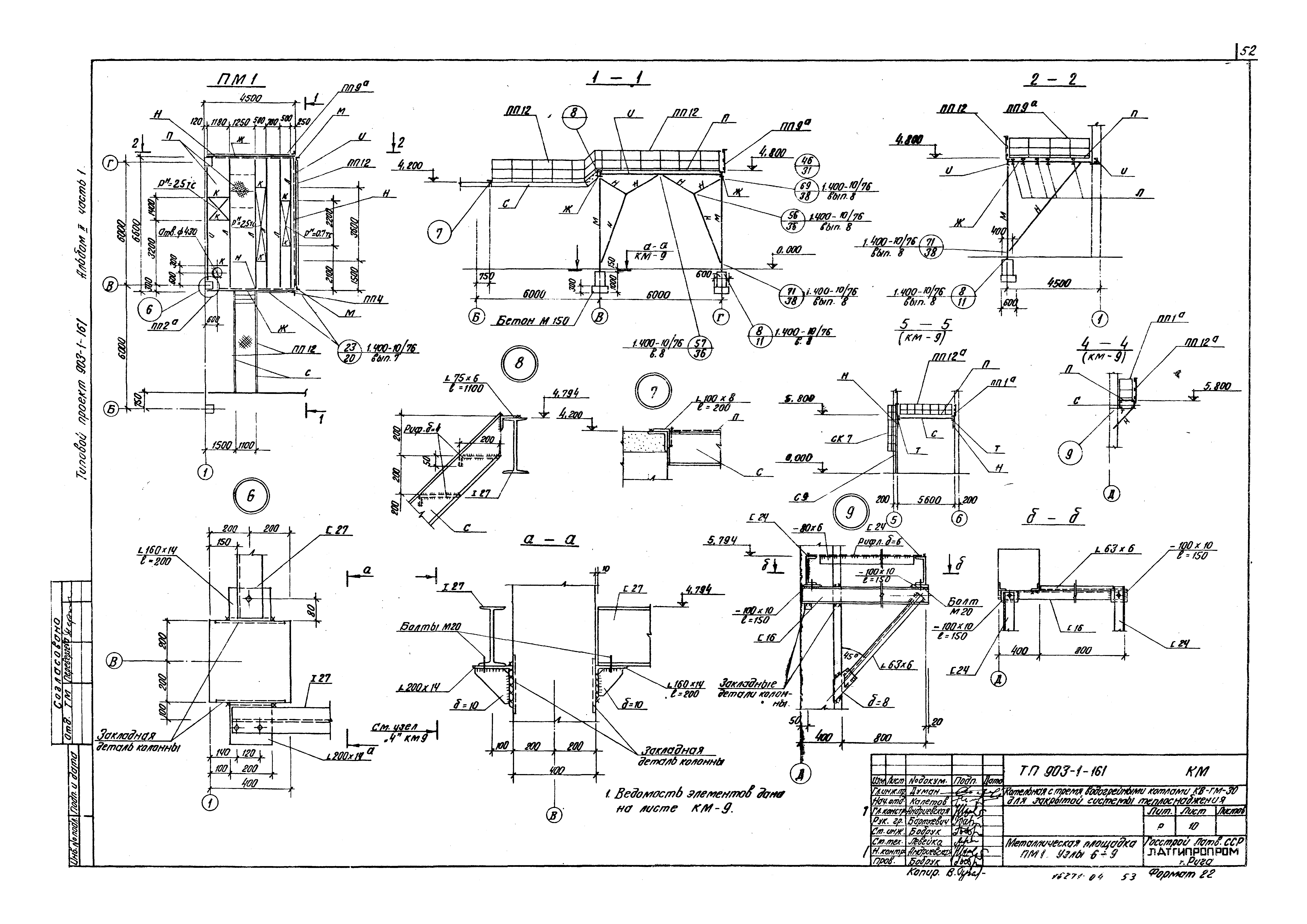
Альбом II. Часть 1. Архитектурно-строительная часть. Общие чертежи и нулевой циклОбозначение: | Типовой проект 903-1-161 | Обозначение англ: | 903-1-161 | Статус: | заменен | Название рус.: | Альбом II. Часть 1. Архитектурно-строительная часть. Общие чертежи и нулевой цикл | Дата добавления в базу: | 01.09.2013 | Дата актуализации: | 05.05.2017 | Дата введения: | 01.09.1989 | Разработан: | Латгипропром
| Утверждён: | 27.04.1979 Главпромстройпроект Госстроя СССР (27)
| Расположен в: |
| Чем заменён: | |
                                                                              
|