Скачать Типовой проект 903-1-161 Альбом I. Часть 3. Блоки тепломеханического оборудованияДата актуализации: 10.08.2017 Типовой проект 903-1-161
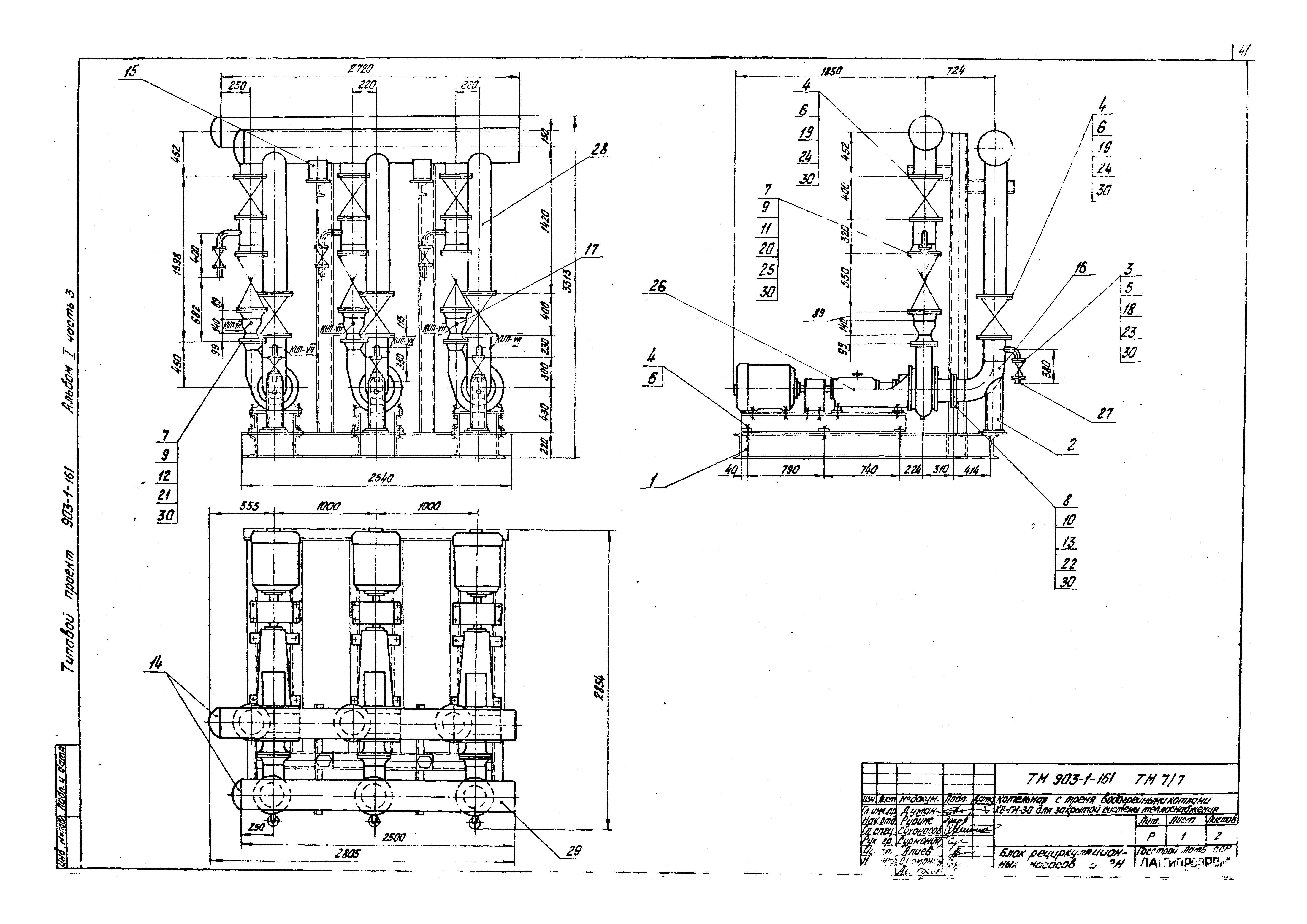
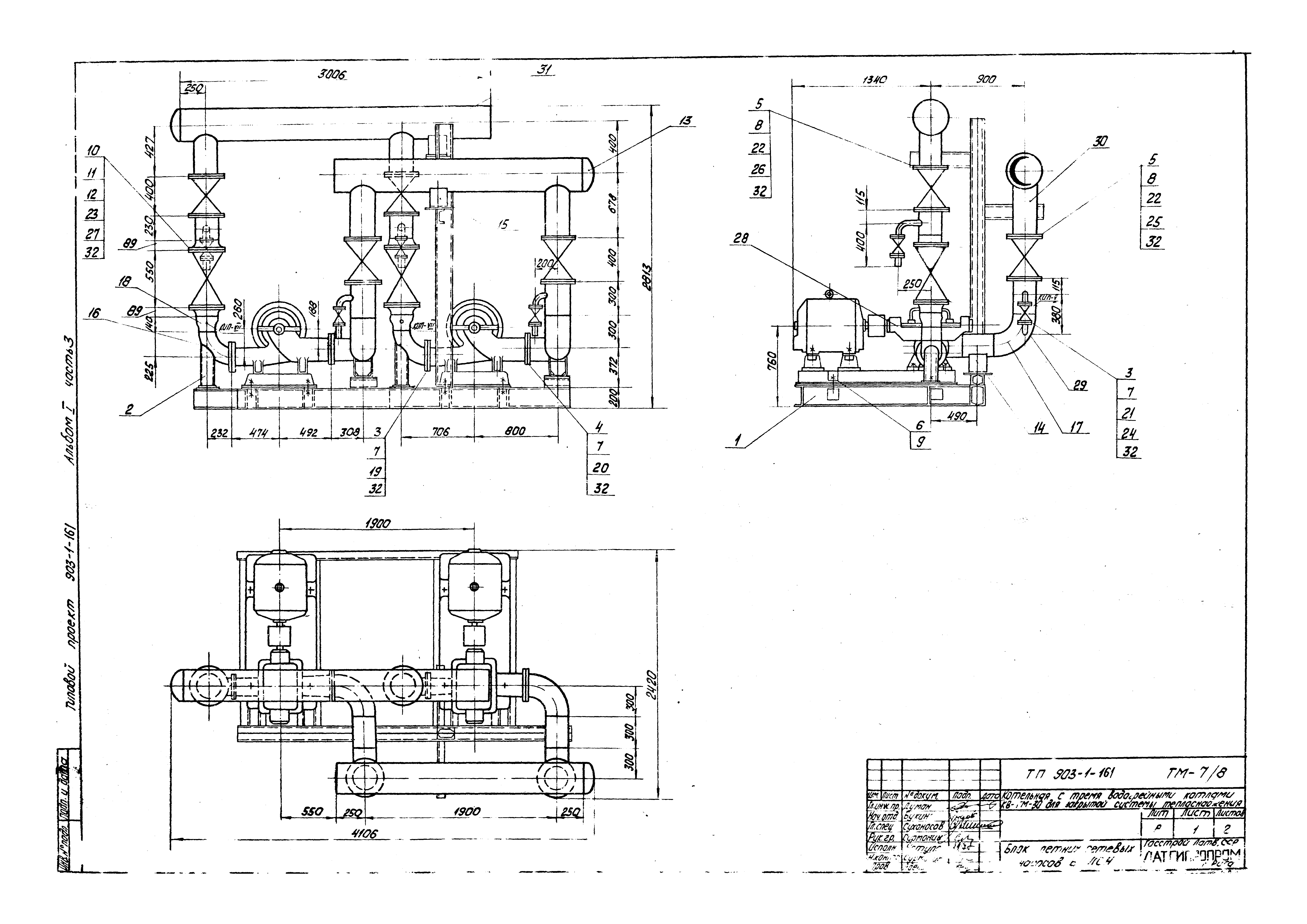
Альбом I. Часть 3. Блоки тепломеханического оборудованияОбозначение: | Типовой проект 903-1-161 | Обозначение англ: | 903-1-161 | Статус: | заменен | Название рус.: | Альбом I. Часть 3. Блоки тепломеханического оборудования | Дата добавления в базу: | 01.09.2013 | Дата актуализации: | 05.05.2017 | Дата введения: | 01.09.1989 | Разработан: | Латгипропром
| Утверждён: | 27.04.1979 Главпромстройпроект Госстроя СССР (27)
| Расположен в: |
| Чем заменён: | |
                                                                     
|