Информационная система
«Ёшкин Кот»

Скачать базу одним архивом
Скачать обновления
История создания базы
Карта сайта

Скачать Типовой проект 0901-9-18.1.87 Альбом IV. Строительные изделия

Дата актуализации: 10.08.2017

Типовой проект 0901-9-18.1.87

Альбом IV. Строительные изделия

Обозначение: Типовой проект 0901-9-18.1.87
Обозначение англ: 0901-9-18.1.87
Статус:не определен законодательством
Название рус.:Альбом IV. Строительные изделия
Дата добавления в базу:01.09.2013
Дата актуализации:05.05.2017
Дата введения:16.10.1987
Оглавление:ТП 0901-9-18.1.87-КЖИ Изделия марки КЖИ
ТП 0901-9-18.1.87-КЖИ1 Содержание альбома
ТП 0901-9-18.1.87-КЖИ2 Технические условия
ТП 0901-9-18.1.87-КЖИ3 Плита перекрытия 1П1-4АIVТ-а
ТП 0901-9-18.1.87-КЖИ3-01 Плита перекрытия 1П1-4АIVТ-б
ТП 0901-9-18.1.87-КЖИ3-02 Плита перекрытия 1П1-4АIVТ-в
ТП 0901-9-18.1.87-КЖИ3-03 Плита перекрытия 1П1-4АIVТ-г
ТП 0901-9-18.1.87-КЖИ4 Плита перекрытия 1П3-4АIVТ-а
ТП 0901-9-18.1.87-КЖИ5 Изделие закладное МН-1
ТП 0901-9-18.1.87-КЖИ6 Сетка арматурная С-1
ТП 0901-9-18.1.87-КЖИ7 Решетка Р-1
ТП 0901-9-18.1.87-КЖИ8 Каркас пространственный КП-1
ТП 0901-9-18.1.87-КЖИ9 Каркас плоский КР-1
ТП 0901-9-18.1.87-КЖИ10 Изделие закладное МН-2
ТП 0901-9-18.1.87-КЖИ11 Изделие закладное МН-3
ТП 0901-9-18.1.87-КЖИ12 Изделие закладное МН-4
ТП 0901-9-18.1.87-КЖИ13 Кольцо
ТП 0901-9-18.1.87-КЖИ14 Изделие закладное МН-5
ТП 0901-9-18.1.87-КЖИ15 Кольцо
ТП 0901-9-18.1.87-КЖИ16 Деревянная крышка ø1600
ТП 0901-9-18.1.87-КЖИ17 Деревянная крышка 1600х1400
ТП 0901-9-18.1.87-КЖИ18 Кольцо стеновое КЦ15-6"А"
ТП 0901-9-18.1.87-МО Изделия марки МО
ТП 0901-9-18.1.87-МО124-00-00-00 СБ Решетка ø1410. Сборочный чертеж
ТП 0901-9-18.1.87-МО124-00-00-00 Решетка ø1410
ТП 0901-9-18.1.87-МО124-00-00-01 Хомут
ТП 0901-9-18.1.87-МО124-01-00-00 Решетка
ТП 0901-9-18.1.87-МО127-00-00-00 СБ Решетка 1150х1450. Сборочный чертеж
ТП 0901-9-18.1.87-МО127-00-00-00 Решетка 1150х1450
ТП 0901-9-18.1.87-МО127-00-00-01 Планка
ТП 0901-9-18.1.87-МО127-01-00-00 Решетка
ТП 0901-9-18.1.87-МО127-00-00-02 Планка
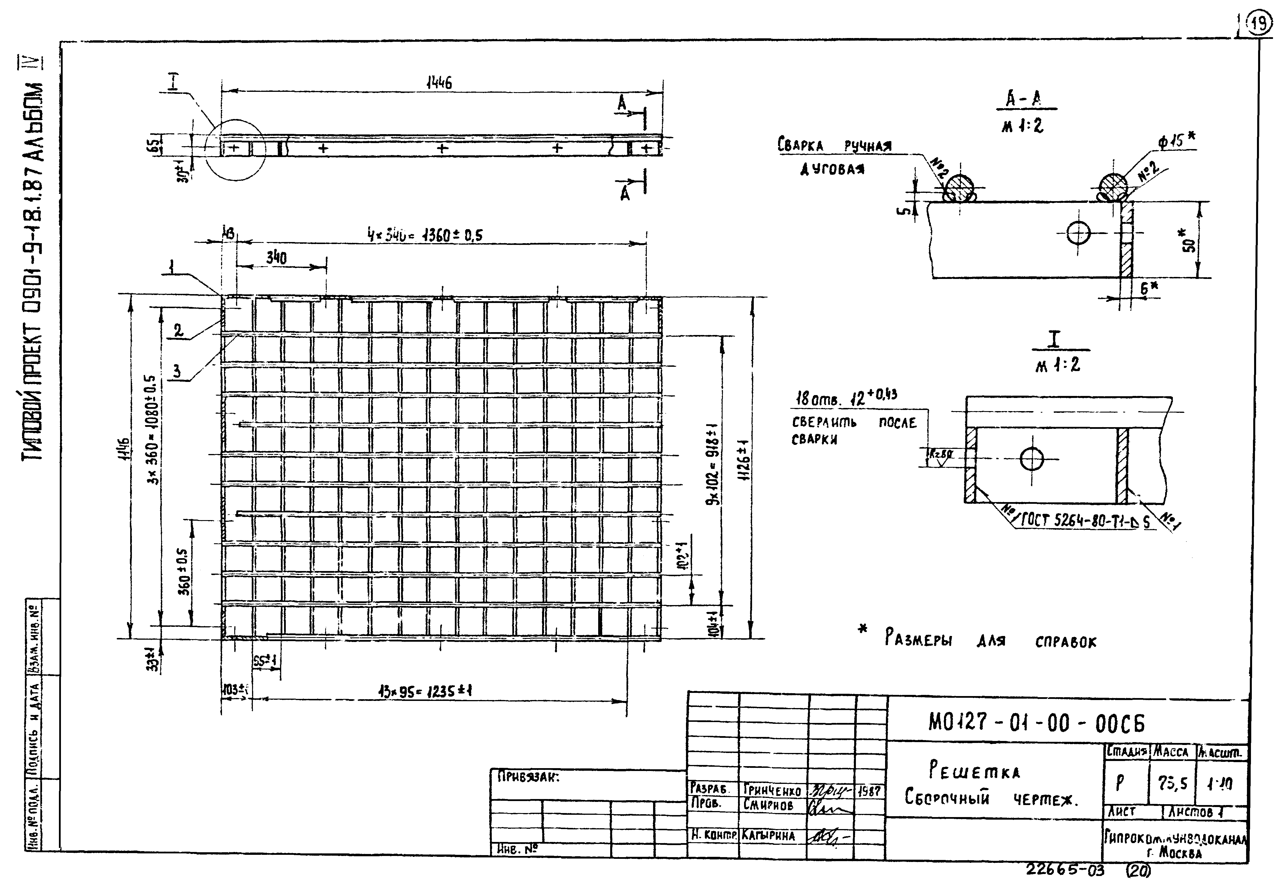
ТП 0901-9-18.1.87-МО127-01-00-00 СБ Решетка. Сборочный чертеж
Разработан: Гипрокоммунводоканал Минжилкомхоза РСФСР
Утверждён:16.10.1987 Минжилкомхоз РСФСР (Russian Federation Minzhilkomkhoz 12-ТД)
Расположен в:Техническая документация Строительство Справочные документы Типовые строительные конструкции, изделия и узлы Общероссийский строительный каталог Защитные сооружения гражданской обороны Конструкции и инженерное оборудование Фильтры-поглотители
Типовой проект 0901-9-18.1.87Типовой проект 0901-9-18.1.87Типовой проект 0901-9-18.1.87Типовой проект 0901-9-18.1.87Типовой проект 0901-9-18.1.87Типовой проект 0901-9-18.1.87Типовой проект 0901-9-18.1.87Типовой проект 0901-9-18.1.87Типовой проект 0901-9-18.1.87Типовой проект 0901-9-18.1.87Типовой проект 0901-9-18.1.87Типовой проект 0901-9-18.1.87Типовой проект 0901-9-18.1.87Типовой проект 0901-9-18.1.87Типовой проект 0901-9-18.1.87Типовой проект 0901-9-18.1.87Типовой проект 0901-9-18.1.87Типовой проект 0901-9-18.1.87Типовой проект 0901-9-18.1.87Типовой проект 0901-9-18.1.87Типовой проект 0901-9-18.1.87

© 2013 Ёшкин Кот :-) Карта сайта