Информационная система
«Ёшкин Кот»

Скачать базу одним архивом
Скачать обновления
История создания базы
Карта сайта

Скачать Типовой проект 902-2-328 Альбом III. Строительная часть

Дата актуализации: 10.08.2017

Типовой проект 902-2-328

Альбом III. Строительная часть

Обозначение: Типовой проект 902-2-328
Обозначение англ: 902-2-328
Статус:действует
Название рус.:Альбом III. Строительная часть
Дата добавления в базу:01.09.2013
Дата актуализации:05.05.2017
Дата введения:22.03.1979
Оглавление:ТП 902-2-328 7 Содержание альбома
ТП 902-2-328 7-КЖ-1 Общие данные
ТП 902-2-328 7-КЖ-2 Примеры компоновки секций аэротенков
ТП 902-2-328 7-КЖ-3 Маркировочные схемы стеновых панелей и фильтросных лотков
ТП 902-2-328 7-КЖ-4 Маркировочные схемы лотков и балок. Разрезы 1-1÷4-4
ТП 902-2-328 7-КЖ-5 Планы мостиков. Спецификация
ТП 902-2-328 7-КЖ-6 Маркировочная схема лотков осветленной воды и активного ила. Спецификации
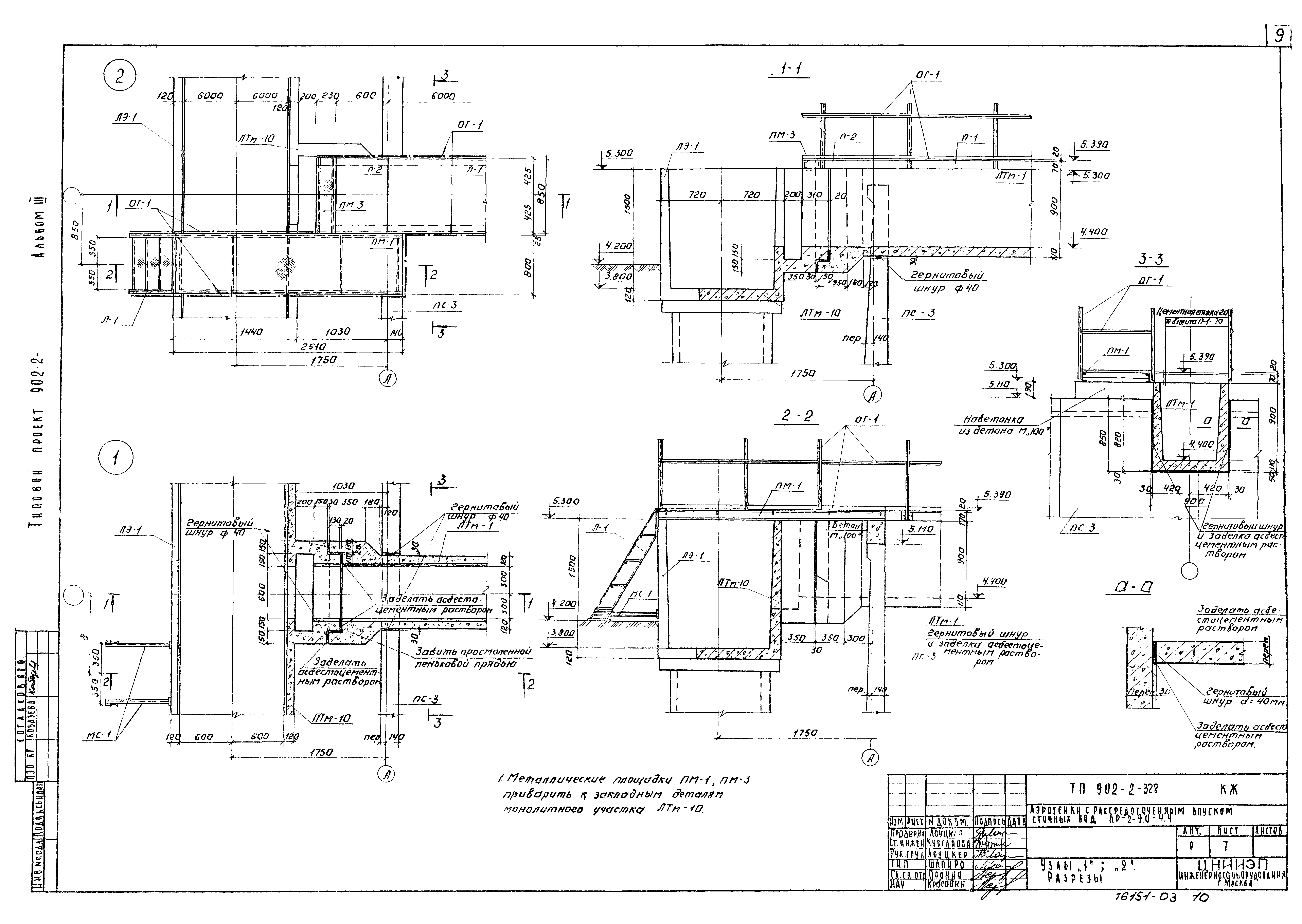
ТП 902-2-328 7-КЖ-7 Узлы "1","2". Разрезы
ТП 902-2-328 7-КЖ-8 Узлы "3","4". Планы. Разрез 4-4
ТП 902-2-328 7-КЖ-9 Узлы "3","4". Разрезы 5-5÷7-7
ТП 902-2-328 7-КЖ-10 Узлы "5","6"
ТП 902-2-328 7-КЖ-11 Детали установки панелей, балок, лотков, подвижной опоры под воздуховод
ТП 902-2-328 7-КЖ-12 Детали стыков стеновых панелей
ТП 902-2-328 7-КЖ-13 Детали установки фильтросных лотков
ТП 902-2-328 7-КЖ-14 Днище. Опалубочный чертеж. Разрезы. План чистого пола днища
ТП 902-2-328 7-КЖ-15 Днище. Опалубочный чертеж. Узлы. Детали
ТП 902-2-328 7-КЖ-16 Днище. Армирование. План раскладки нижних сеток
ТП 902-2-328 7-КЖ-17 Днище. Армирование. План раскладки верхних сеток
ТП 902-2-328 7-КЖ-18 Днище. Армирование. План раскладки каркасов
ТП 902-2-328 7-КЖ-19 Днище. Армирование. Разрезы. Спецификации
ТП 902-2-328 7-КЖ-20 Днище. Армирование. Узлы 1-4
ТП 902-2-328 7-КЖ-21 Днище. Армирование. Узлы 5-9
ТП 902-2-328 7-КЖ-22 Днище. Армирование. Арматурные сетки и каркасы
ТП 902-2-328 7-КЖ-23 Монолитные участки стен. Опалубочный чертеж
ТП 902-2-328 7-КЖ-24 Монолитные участки стен УМ-1,УМ-2. Армирование
ТП 902-2-328 7-КЖ-25 Монолитные участки стен УМ-3,УМ-4,УМ-5,УМ-8. Армирование
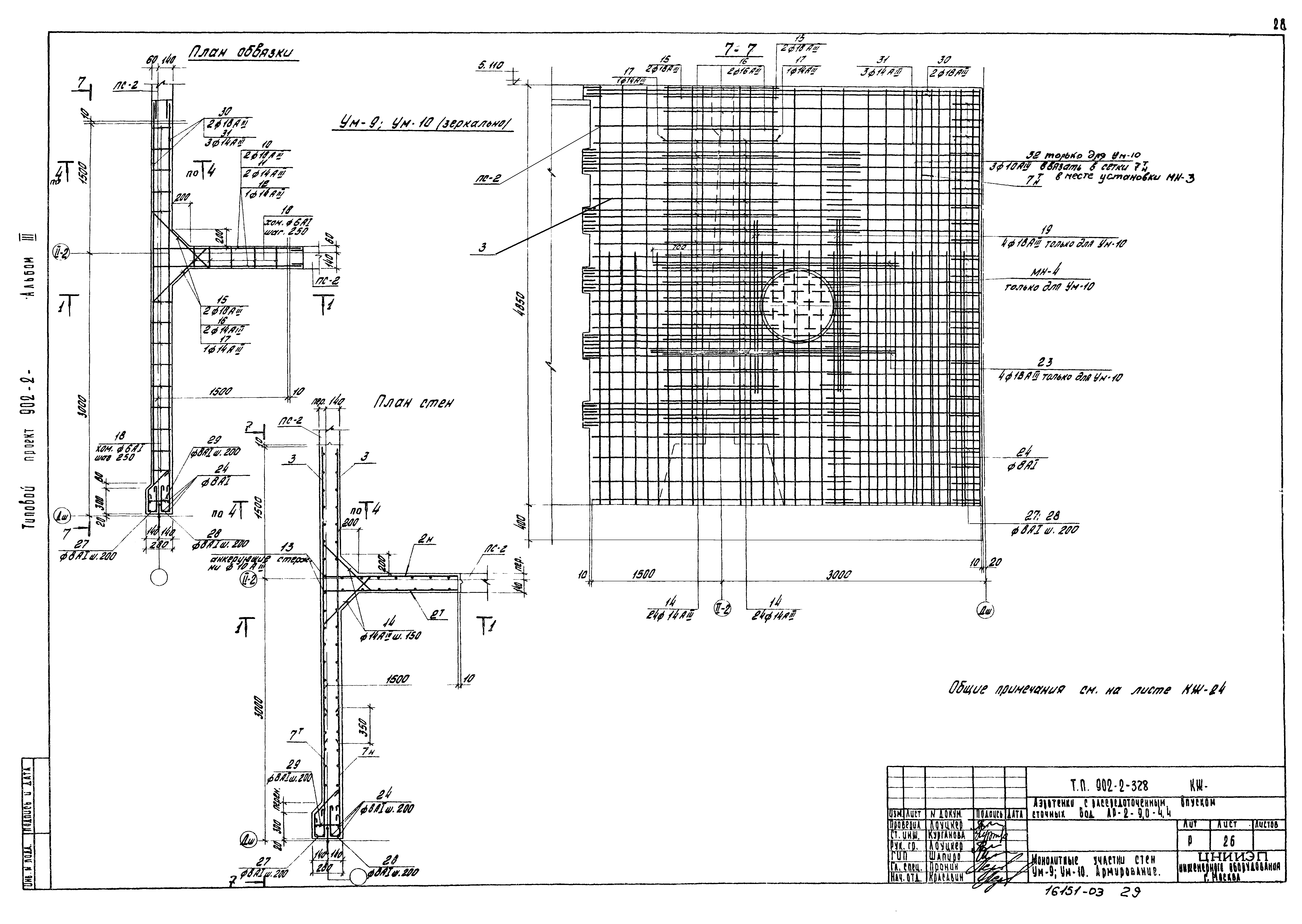
ТП 902-2-328 7-КЖ-26 Монолитные участки стен УМ-9,УМ-10. Армирование
ТП 902-2-328 7-КЖ-27 Монолитные участки стен УМ-6,УМ-7,УМ-11. Армирование. Спецификации
ТП 902-2-328 7-КЖ-28 Монолитные участки стен. Арматурные сетки
ТП 902-2-328 7-КЖ-29 Монолитные участки лотков ЛТМ-1÷ЛТМ-8. Опалубочный чертеж
ТП 902-2-328 7-КЖ-30 Монолитные участки лотков ЛТМ-9÷ЛТМ-12. Опалубочный чертеж
ТП 902-2-328 7-КЖ-31 Монолитные участки лотков ЛТМ-1,ЛТМ-2,ЛТМ-5÷ЛТМ-8. Армирование
ТП 902-2-328 7-КЖ-32 Монолитные участки лотков ЛТМ-3,ЛТМ-4,ЛТМ-9÷ЛТМ-12. Армирование
ТП 902-2-328 7-КЖ-33 Монолитные участки лотков. Выборки. Спецификации
ТП 902-2-328 7-КЖ-34 Стеновые панели. Опалубочный чертеж
ТП 902-2-328 7-КЖ-35 Стеновые панели. Армирование. Арматурные сетки. Спецификации
ТП 902-2-328 7-КЖ-36 Сборные железобетонные элементы. Опалубочный чертеж
ТП 902-2-328 7-КЖ-37 Сборные железобетонные элементы. Армирование. Спецификации
ТП 902-2-328 7-КЖ-38 Сборные железобетонные элементы. Арматурные сетки
ТП 902-2-328 7-КЖ-39 6ти метровая вставка
ТП 902-2-328 7-КЖ-40 Металлические площадки. Закладные детали
Разработан: ЦНИИЭП иженерного оборудования
Утверждён:22.07.1974 Госгражданстрой (Gosgrazhdanstroy 164)
Расположен в:Техническая документация Строительство Справочные документы Типовые строительные конструкции, изделия и узлы Общероссийский строительный каталог Промышленные предприятия, здания и сооружения Здания и сооружения санитарно-технические Канализация Сооружения биологической (биохимической) очистки Аэротенки, аэрируемые биопруды, аэроакселаторы
Типовой проект 902-2-328Типовой проект 902-2-328Типовой проект 902-2-328Типовой проект 902-2-328Типовой проект 902-2-328Типовой проект 902-2-328Типовой проект 902-2-328Типовой проект 902-2-328Типовой проект 902-2-328Типовой проект 902-2-328Типовой проект 902-2-328Типовой проект 902-2-328Типовой проект 902-2-328Типовой проект 902-2-328Типовой проект 902-2-328Типовой проект 902-2-328Типовой проект 902-2-328Типовой проект 902-2-328Типовой проект 902-2-328Типовой проект 902-2-328Типовой проект 902-2-328Типовой проект 902-2-328Типовой проект 902-2-328Типовой проект 902-2-328Типовой проект 902-2-328Типовой проект 902-2-328Типовой проект 902-2-328Типовой проект 902-2-328Типовой проект 902-2-328Типовой проект 902-2-328Типовой проект 902-2-328Типовой проект 902-2-328Типовой проект 902-2-328Типовой проект 902-2-328Типовой проект 902-2-328Типовой проект 902-2-328Типовой проект 902-2-328Типовой проект 902-2-328Типовой проект 902-2-328Типовой проект 902-2-328Типовой проект 902-2-328Типовой проект 902-2-328Типовой проект 902-2-328Типовой проект 902-2-328

© 2013 Ёшкин Кот :-) Карта сайта