Информационная система
«Ёшкин Кот»

Скачать базу одним архивом
Скачать обновления
История создания базы
Карта сайта

Скачать Типовой проект 902-2-321 Альбом III. Часть 2. Блок емкостей АМ-330. Контактные резервуары

Дата актуализации: 10.08.2017

Типовой проект 902-2-321

Альбом III. Часть 2. Блок емкостей АМ-330. Контактные резервуары

Обозначение: Типовой проект 902-2-321
Обозначение англ: 902-2-321
Статус:действует
Название рус.:Альбом III. Часть 2. Блок емкостей АМ-330. Контактные резервуары
Дата добавления в базу:01.09.2013
Дата актуализации:05.05.2017
Дата введения:29.09.1978
Оглавление:ТП 902-2-321 Содержание альбома
ТП 902-2-321-КГ-1 Общие данные
ТП 902-2-321-КГ Технологическая часть
ТП 902-2-321 Блок емкостей
ТП 902-2-321-КГ-2 План. Разрезы
ТП 902-2-321 Контактные резервуары
ТП 902-2-321-КГ-3 План. Разрезы
ТП 902-2-321-КЖ Конструкции железобетонные
ТП 902-2-321-КЖ-1 Маркировочная схема стеновых панелей. Маркировочная схема лотков и ходовых мостиков. Разрезы 1-1÷3-3
ТП 902-2-321-КЖ-2 Узлы
ТП 902-2-321-КЖ-3 План днища. Разрезы 1-1÷3-3. Узлы
ТП 902-2-321-КЖ-4 Днище. Армирование. План раскладки верхних и нижних сеток. План раскладки каркасов. Разрезы. Узлы
ТП 902-2-321-КЖ-5 Днище. Армирование. Сетки. Каркасы. Спецификации
ТП 902-2-321-КЖ-6 Монолитные конструкции. Опалубочный чертеж
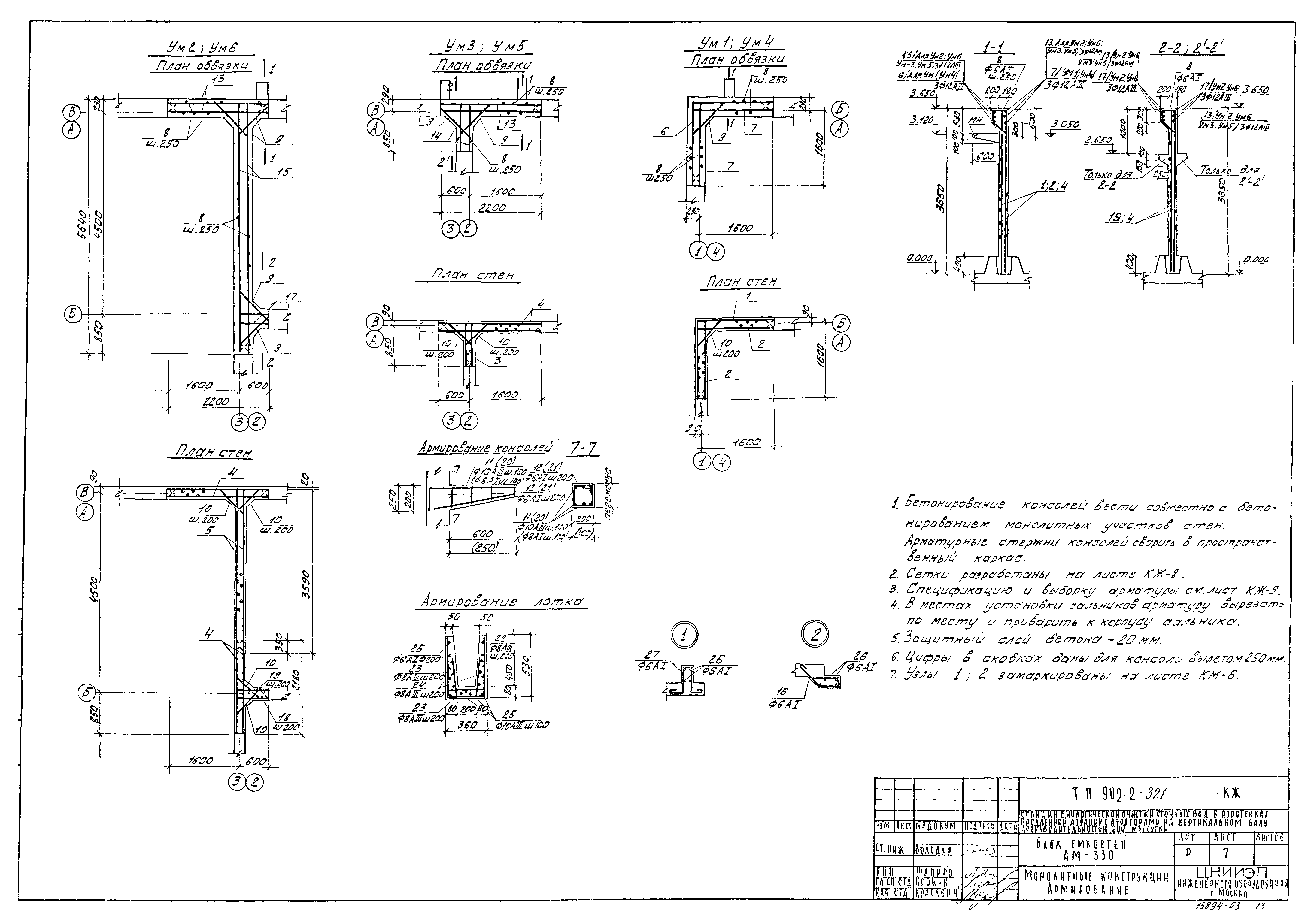
ТП 902-2-321-КЖ-7 Монолитные конструкции. Армирование
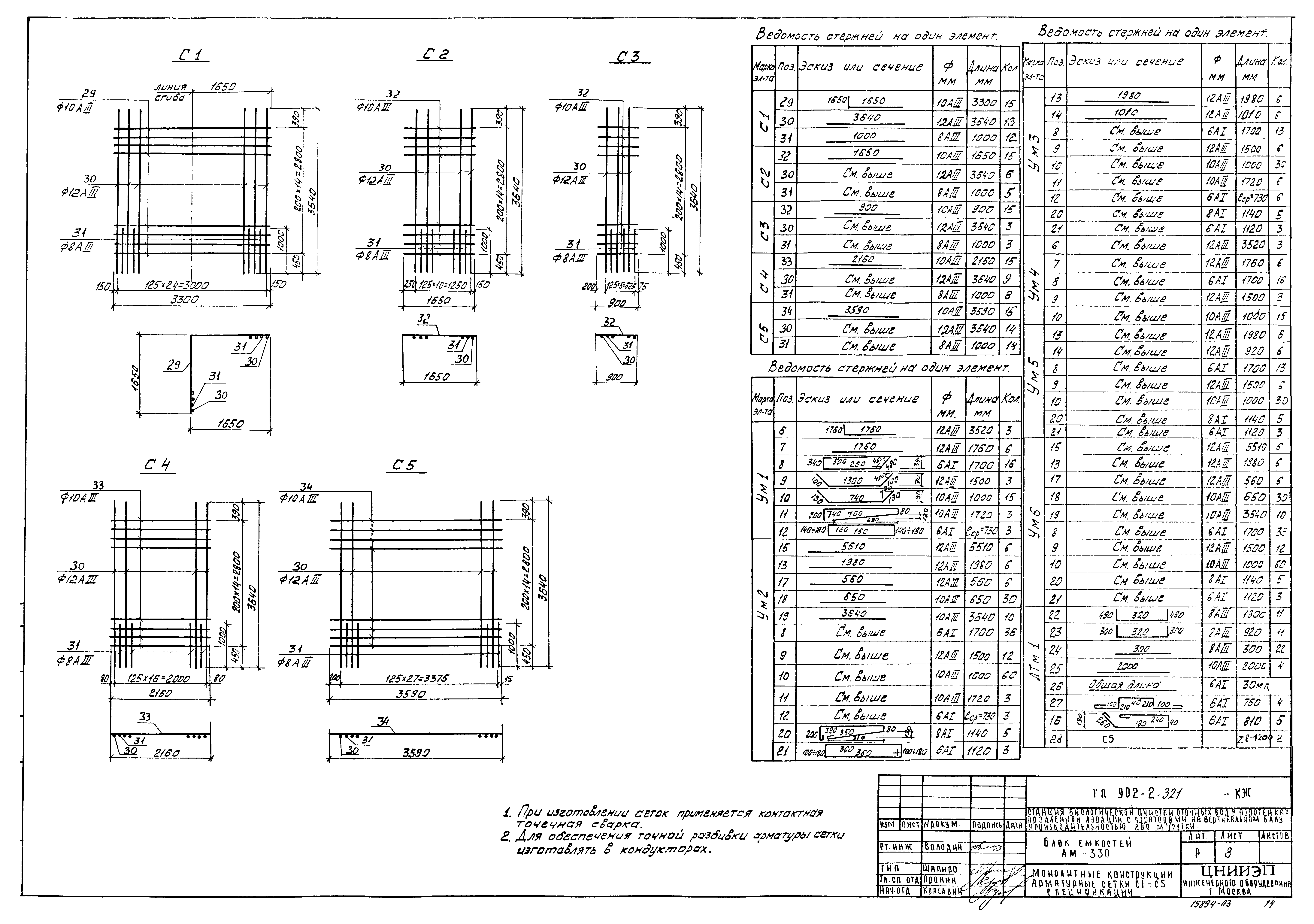
ТП 902-2-321-КЖ-8 Монолитные конструкции. Арматурные сетки С1-С5. Спецификации
ТП 902-2-321-КЖ-9 Монолитные конструкции. Спецификации
ТП 902-2-321-КЖ-10 Сборные железобетонные элементы. Металлические марки М1-М2-М3. Щиты
ТП 902-2-321-КЖ-11 Ходовые мостики
ТП 902-2-321-ЭЛ Электротехническая часть
ТП 902-2-321-ЭЛ-1 Общие данные
Разработан: ЦНИИЭП иженерного оборудования
Утверждён:19.07.1977 Госгражданстрой (Gosgrazhdanstroy 144)
Расположен в:Техническая документация Строительство Справочные документы Типовые строительные конструкции, изделия и узлы Общероссийский строительный каталог Промышленные предприятия, здания и сооружения Здания и сооружения санитарно-технические Канализация Сооружения биологической (биохимической) очистки Станции биологической очистки сточных вод
Типовой проект 902-2-321Типовой проект 902-2-321Типовой проект 902-2-321Типовой проект 902-2-321Типовой проект 902-2-321Типовой проект 902-2-321Типовой проект 902-2-321Типовой проект 902-2-321Типовой проект 902-2-321Типовой проект 902-2-321Типовой проект 902-2-321Типовой проект 902-2-321Типовой проект 902-2-321Типовой проект 902-2-321Типовой проект 902-2-321Типовой проект 902-2-321Типовой проект 902-2-321Типовой проект 902-2-321Типовой проект 902-2-321

© 2013 Ёшкин Кот :-) Карта сайта