Информационная система
«Ёшкин Кот»

Скачать базу одним архивом
Скачать обновления
История создания базы
Карта сайта

Скачать Типовой проект 902-2-323 Альбом II. Генплан. Производственно-вспомогательное здание

Дата актуализации: 10.08.2017

Типовой проект 902-2-323

Альбом II. Генплан. Производственно-вспомогательное здание

Обозначение: Типовой проект 902-2-323
Обозначение англ: 902-2-323
Статус:действует
Название рус.:Альбом II. Генплан. Производственно-вспомогательное здание
Дата добавления в базу:01.09.2013
Дата актуализации:05.05.2017
Оглавление:ТП 902-2-323 Содержание альбома
ТП 902-2-323-КГ Технологическая часть
ТП 902-2-323-КГ-1 Общие данные
ТП 902-2-323-КГ-2 Технологическая схема
ТП 902-2-323-КГ-3 Технологическая схема (вариант с доочисткой)
ТП 902-2-323-КГ-4 Примерный генплан
ТП 902-2-323-КГ-5 Примерный генплан (вариант с доочисткой)
ТП 902-2-323 Производственно-вспомогательное здание
ТП 902-2-323-КГ-6 Вариант здания с хлордозаторной. План. Разрезы
ТП 902-2-323-КГ-7 Вариант здания с хлордозаторной. Схема трубопроводов
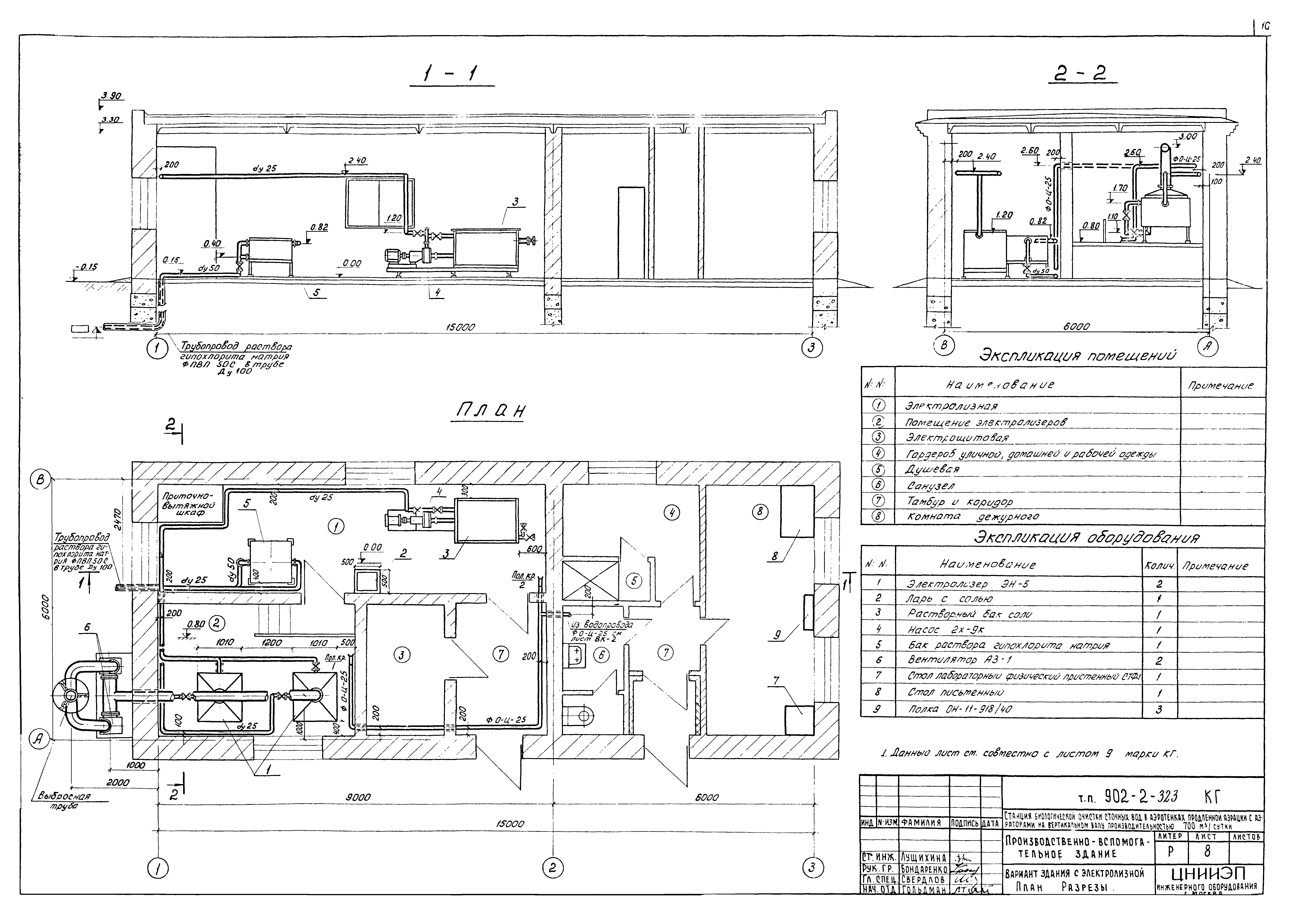
ТП 902-2-323-КГ-8 Вариант здания с электролизной. План. Разрезы
ТП 902-2-323-КГ-9 Вариант здания с электролизной. Схема трубопроводов
ТП 902-2-323-ОВ,ВК Санитарно-техническая часть
ТП 902-2-323-ОВ-1 Общие данные (начало)
ТП 902-2-323-ОВ-2 Общие данные (продолжение)
ТП 902-2-323 Производственно-вспомогательное здание с хдордозаторной
ТП 902-2-323-ОВ-3 Планы на отм. 0.00 (варианты с теплоносителем вода 95º-70º и с электроэнергией). Схемы отопления и вентиляции. Тепловой узел
ТП 902-2-323-ОВ-4 Приточный шкаф. План. Разрезы. Схема обвязки ребристых труб. Спецификация
ТП 902-2-323-ОВ-5 Сводная спецификация
ТП 902-2-323 Производственно-вспомогательное здание с электролизной
ТП 902-2-323-ОВ-6 Планы на отм. 0.00 (варианты с теплоносителем вода 95º-70º и с электроэнергией). Схемы отопления и вентиляции. Тепловой узел
ТП 902-2-323-ОВ-7 Приточный шкаф. План. Разрезы. Схема обвязки ребристых труб. Спецификация
ТП 902-2-323-ОВ-8 Сводная спецификация
ТП 902-2-323-ВК-1 Общие данные. Вариант здания с хлордозаторной. План. Схемы водопровода и канализации
ТП 902-2-323-ВК-2 Вариант здания с электролизной. План. Схемы водопровода и канализации
ТП 902-2-323-ГП,АР,КЖ Архитектурно-строительная часть
ТП 902-2-323-ГП-1 Примерный генплан
ТП 902-2-323-ГП-2 Примерный генплан (вариант с доочисткой)
ТП 902-2-323 Производственно-вспомогательное здание
ТП 902-2-323-АР-1 Общие данные (начало)
ТП 902-2-323-АР-2 Общие данные (окончание)
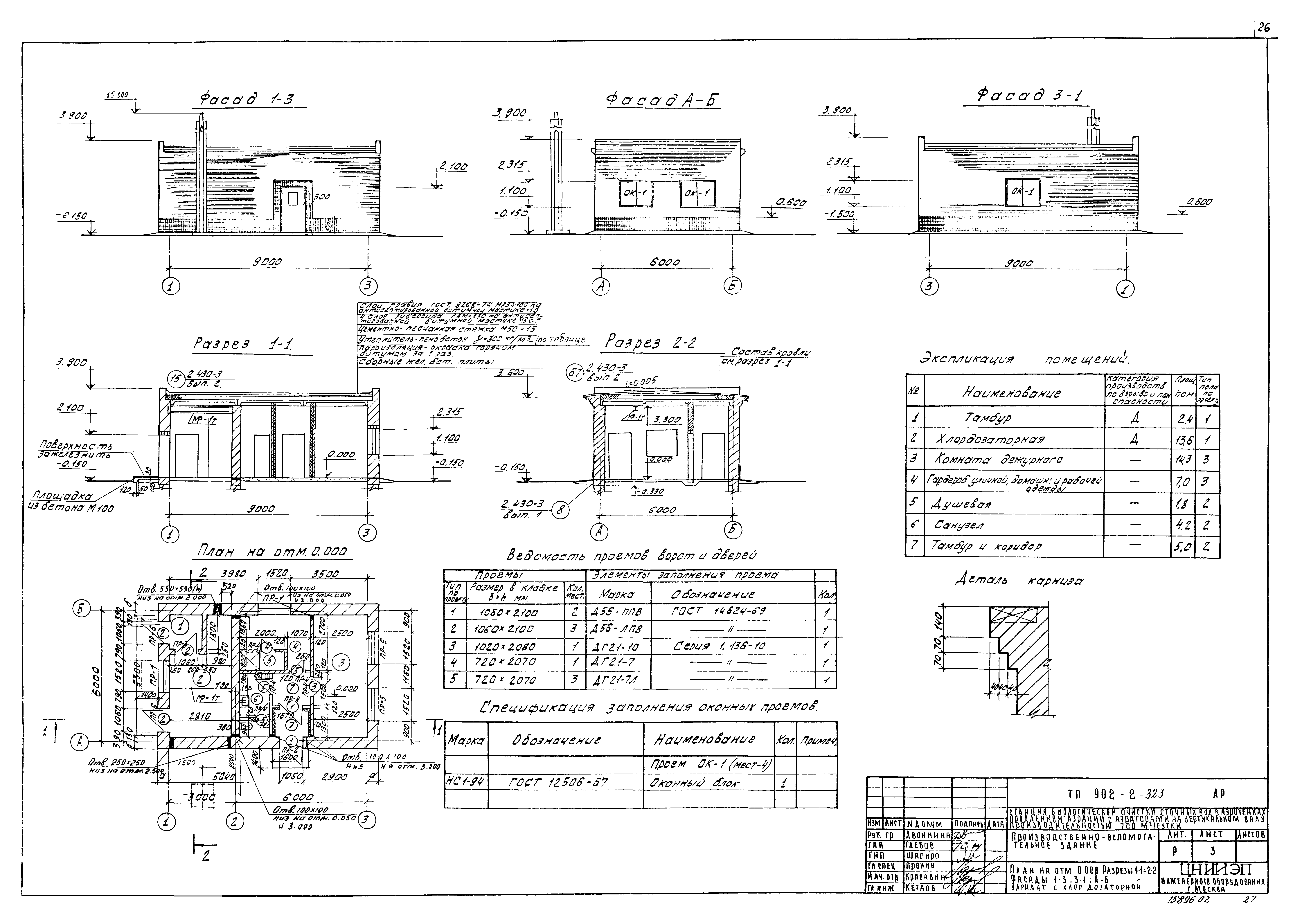
ТП 902-2-323-АР-3 Планы на отм. 0.00. Разрезы 1-1;2-2. Фасады 1-3;3-1;АБ. Вариант с хлордозаторной
ТП 902-2-323-АР-4 Планы на отм. 0.00. Фасады 1-3;3-1. Разрезы 1-1;2-2. Вариант с электролизной
ТП 902-2-323-КЖ-1 Общие данные
ТП 902-2-323-КЖ-2 Варианты с хлордозаторной и электролизной. Маркировочные схемы фундаментов
ТП 902-2-323-КЖ-3 Варианты с хлордозаторной и электролизной. Подземное хозяйство
ТП 902-2-323-КЖ-4 Варианты с хлордозаторной и электролизной. Планы покрытия и монорельса. Закладные детали. Спецификации
ТП 902-2-323-КЖ-5 Варианты с хлордозаторной и электролизной. Вентиляционные трубы. Разрезы. Спецификации
ТП 902-2-323-КЖ-6 Подводящие лотки
ТП 902-2-323-ЭЛ Электротехническая часть
ТП 902-2-323-ЭЛ-1 Общие данные
ТП 902-2-323-ЭЛ-2 Ведомость электрооборудования, изделий и материалов (начало)
ТП 902-2-323-ЭЛ-3 Ведомость электрооборудования, изделий и материалов (окончание)
ТП 902-2-323-ЭЛ-4 Ведомость электрооборудования, изделий и материалов электроосвещения (начало)
ТП 902-2-323-ЭЛ-5 Ведомость электрооборудования, изделий и материалов электроосвещения (окончание)
ТП 902-2-323-ЭЛ-6 Питание электрооборудования. Схема принципиальная электрическая (начало)
ТП 902-2-323-ЭЛ-7 Питание электрооборудования. Схема принципиальная электрическая (окончание). Схема подключения электрооборудования
ТП 902-2-323-ЭЛ-8 Кабельный журнал
ТП 902-2-323-ЭЛ-9 План на отм. 0.00. Размещение электрооборудования и прокладка кабеля
ТП 902-2-323-ЭЛ-10 Электрическое освещение. План на отм. 0.00
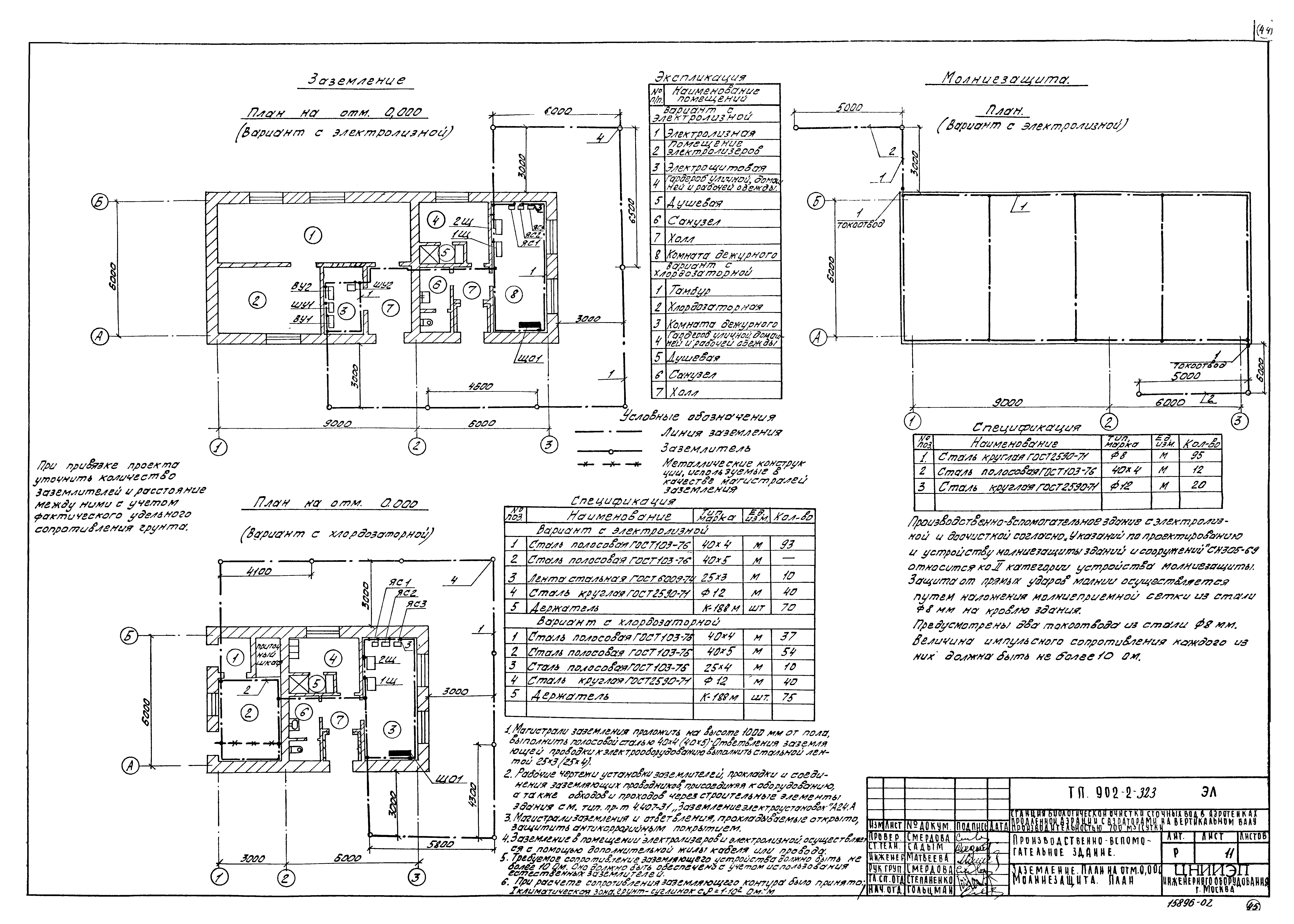
ТП 902-2-323-ЭЛ-11 Заземление. План на отм. 0.00. Молниезащита. План
Разработан: ЦНИИЭП иженерного оборудования
Утверждён:19.07.1977 Госгражданстрой (Gosgrazhdanstroy 144)
Расположен в:Техническая документация Строительство Справочные документы Типовые строительные конструкции, изделия и узлы Общероссийский строительный каталог Промышленные предприятия, здания и сооружения Здания и сооружения санитарно-технические Канализация Сооружения биологической (биохимической) очистки Станции биологической очистки сточных вод
Типовой проект 902-2-323Типовой проект 902-2-323Типовой проект 902-2-323Типовой проект 902-2-323Типовой проект 902-2-323Типовой проект 902-2-323Типовой проект 902-2-323Типовой проект 902-2-323Типовой проект 902-2-323Типовой проект 902-2-323Типовой проект 902-2-323Типовой проект 902-2-323Типовой проект 902-2-323Типовой проект 902-2-323Типовой проект 902-2-323Типовой проект 902-2-323Типовой проект 902-2-323Типовой проект 902-2-323Типовой проект 902-2-323Типовой проект 902-2-323Типовой проект 902-2-323Типовой проект 902-2-323Типовой проект 902-2-323Типовой проект 902-2-323Типовой проект 902-2-323Типовой проект 902-2-323Типовой проект 902-2-323Типовой проект 902-2-323Типовой проект 902-2-323Типовой проект 902-2-323Типовой проект 902-2-323Типовой проект 902-2-323Типовой проект 902-2-323Типовой проект 902-2-323Типовой проект 902-2-323Типовой проект 902-2-323Типовой проект 902-2-323Типовой проект 902-2-323Типовой проект 902-2-323Типовой проект 902-2-323Типовой проект 902-2-323Типовой проект 902-2-323Типовой проект 902-2-323Типовой проект 902-2-323Типовой проект 902-2-323Типовой проект 902-2-323

© 2013 Ёшкин Кот :-) Карта сайта