Информационная система
«Ёшкин Кот»

Скачать базу одним архивом
Скачать обновления
История создания базы
Карта сайта

Скачать Типовой проект 903-1-225.86 Альбом 10.8. Металлоконструкции вспомогательного оборудования и устройств (из ТП 903-1-224.86)

Дата актуализации: 10.08.2017

Типовой проект 903-1-225.86

Альбом 10.8. Металлоконструкции вспомогательного оборудования и устройств (из ТП 903-1-224.86)

Обозначение: Типовой проект 903-1-225.86
Обозначение англ: 903-1-225.86
Статус:действует
Название рус.:Альбом 10.8. Металлоконструкции вспомогательного оборудования и устройств (из ТП 903-1-224.86)
Дата добавления в базу:01.09.2013
Дата актуализации:05.05.2017
Оглавление:ТП 903-1-224.86 Золоудаление
ТП 903-1-224.86 12.02.13.000 Короб
ТП 903-1-224.86 12.02.13.000 СБ Короб
ТП 903-1-224.86 12.02.13.100 Фланец
ТП 903-1-224.86 12.02.13.100 СБ Фланец
ТП 903-1-224.86 12.02.07.300 Задвижка
ТП 903-1-224.86 12.02.14.000 Задвижка
ТП 903-1-224.86 12.02.14.000 СБ Задвижка
ТП 903-1-224.86 12.02.07.100 СБ Короб
ТП 903-1-224.86 12.02.07.300 СБ Задвижка
ТП 903-1-224.86 12.02.07.100 Короб
ТП 903-1-224.86 12.02.07.101 Стенка
ТП 903-1-224.86 12.02.15.000 Переход
ТП 903-1-224.86 12.02.15.000 СБ Переход
ТП 903-1-224.86 12.02.15.001 Переход
ТП 903-1-224.86 12.02.16.000 СБ Опора
ТП 903-1-224.86 12.02.16.000 Опора
ТП 903-1-224.86 12.02.17.000 Короб
ТП 903-1-224.86 12.02.17.000 СБ Короб
ТП 903-1-224.86 Лаз борова
ТП 903-1-224.86 58.01.00.000 СБ Лаз борова
ТП 903-1-224.86 58.01.00.000 Лаз борова
ТП 903-1-224.86 58.01.80.003 Ось
ТП 903-1-224.86 58.01.00.002 Дверка
ТП 903-1-224.86 58.01.00.001 Корпус
ТП 903-1-224.86 Предохранительный резервуар
ТП 903-1-224.86 21.01.00.000 СБ Предохранительный резервуар
ТП 903-1-224.86 21.01.00.000 Предохранительный резервуар
ТП 903-1-224.86 21.01.01.000 Воронка
ТП 903-1-224.86 21.01.01.000 СБ Воронка
ТП 903-1-224.86 21.01.01.001 Патрубок
ТП 903-1-224.86 21.01.01.002 Решетка
ТП 903-1-224.86 21.01.01.003 Воронка
ТП 903-1-224.86 21.01.02.000 Резервуар
ТП 903-1-224.86 21.01.02.000 СБ Резервуар
ТП 903-1-224.86 21.01.02.100 Опора
ТП 903-1-224.86 21.01.02.100 СБ Опора
ТП 903-1-224.86 21.01.02.001 Корпус
ТП 903-1-224.86 21.01.02.002 Труба
ТП 903-1-224.86 21.01.02.003 Воронка
ТП 903-1-224.86 21.01.02.004 Патрубок
ТП 903-1-224.86 21.01.02.005 Патрубок
ТП 903-1-224.86 21.01.02.006 Патрубок
ТП 903-1-224.86 Бак мерник V=1м³
ТП 903-1-224.86 24.01.00.000 Бак мерник V=1м³
ТП 903-1-224.86 24.21.02.002 Ручка
ТП 903-1-224.86 24.21.00.001 Рейка
ТП 903-1-224.86 24.21.01.002 Днище
ТП 903-1-224.86 24.21.00.000 СБ Бак мерник V=1м³
ТП 903-1-224.86 24.21.01.000 Бак
ТП 903-1-224.86 24.21.01.001 Корпус
ТП 903-1-224.86 24.21.01.000 СБ Бак
ТП 903-1-224.86 24.21.01.003 Крышка
ТП 903-1-224.86 24.21.01.004 Сектор
ТП 903-1-224.86 24.21.01.005 Сегмент
ТП 903-1-224.86 24.21.01.006 Кольцо
ТП 903-1-224.86 24.21.01.007 Кронштейн
ТП 903-1-224.86 24.21.01.008 Бобышка
ТП 903-1-224.86 24.21.02.000 Полукрышка
ТП 903-1-224.86 24.21.02.000 СБ Полукрышка
ТП 903-1-224.86 Шкаф аккумуляторный
ТП 903-1-224.86 83.02.00.006 Стойка
ТП 903-1-224.86 83.02.00.000 Шкаф аккумуляторный
ТП 903-1-224.86 83.02.00.001 Обечайка
ТП 903-1-224.86 83.02.00.000 СБ Шкаф аккумуляторный
ТП 903-1-224.86 83.02.00.002 Крышка
ТП 903-1-224.86 83.02.00.003 Фланец
ТП 903-1-224.86 83.02.00.004 Подкладка
ТП 903-1-224.86 83.02.00.005 Стойка
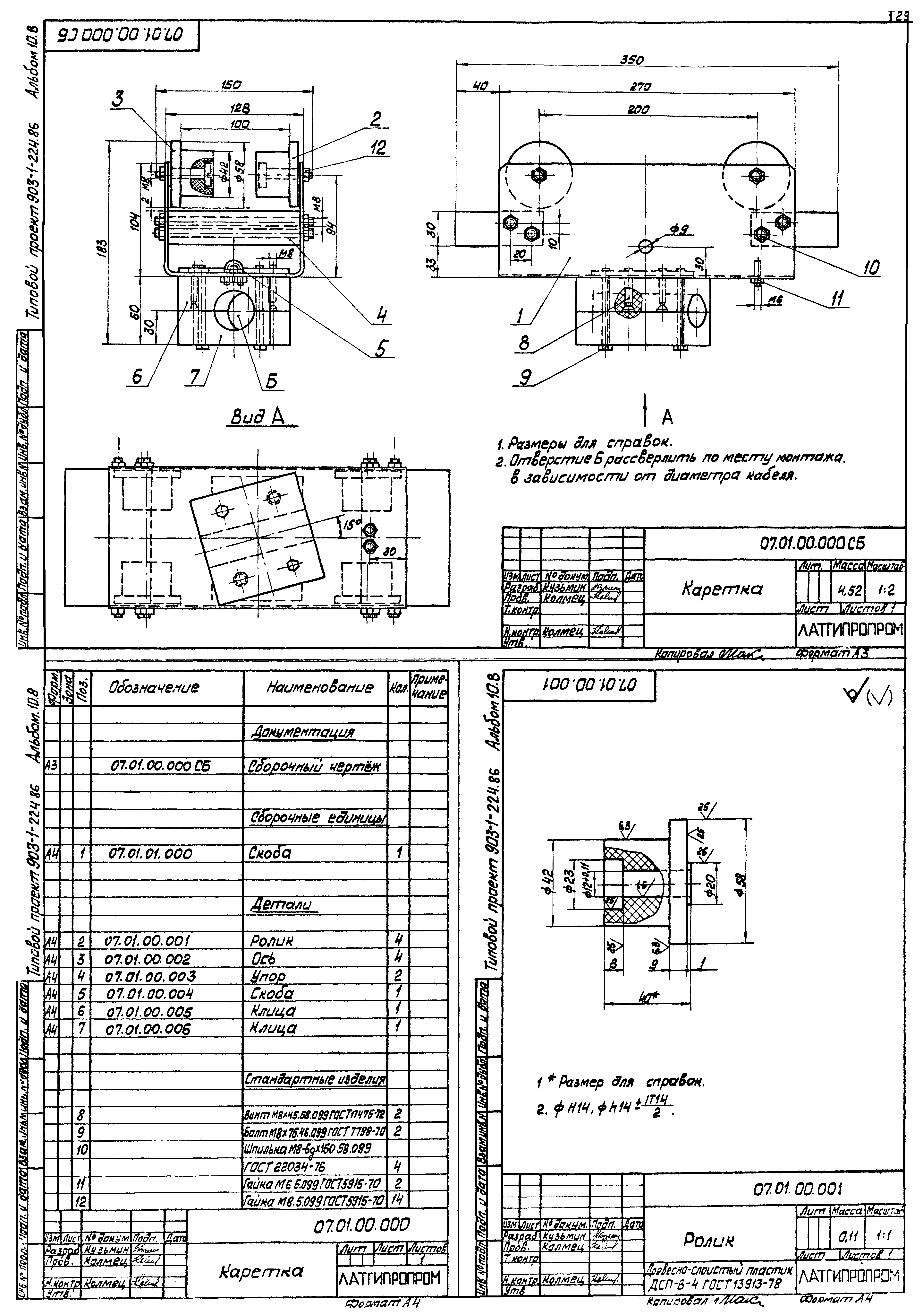
ТП 903-1-224.86 07.01.00.000 СБ Каретка
ТП 903-1-224.86 07.01.00.000 Каретка
ТП 903-1-224.86 07.01.01.000 Скоба
ТП 903-1-224.86 07.01.01.000 СБ Скоба
ТП 903-1-224.86 07.02.00.000 СБ Каретка
ТП 903-1-224.86 07.02.00.000 Каретка
ТП 903-1-224.86 07.02.01.000 Скоба
ТП 903-1-224.86 07.02.01.000 СБ Скоба
ТП 903-1-224.86 64.113.01.000 СБ Переход
ТП 903-1-224.86 64.113.02.000 СБ Лючок
Разработан: Латгипропром
Утверждён:20.05.1986 Госстрой СССР (Государственный комитет Совета Министров СССР по делам строительства) (USSR Gosstroy АЧ-30)
Расположен в:Техническая документация Строительство Справочные документы Типовые строительные конструкции, изделия и узлы Общероссийский строительный каталог Промышленные предприятия, здания и сооружения Здания и сооружения санитарно-технические Теплоснабжение Котельные установки Закрытые системы теплоснабжения Топливо - каменные и бурые угли
Типовой проект 903-1-225.86Типовой проект 903-1-225.86Типовой проект 903-1-225.86Типовой проект 903-1-225.86Типовой проект 903-1-225.86Типовой проект 903-1-225.86Типовой проект 903-1-225.86Типовой проект 903-1-225.86Типовой проект 903-1-225.86Типовой проект 903-1-225.86Типовой проект 903-1-225.86Типовой проект 903-1-225.86Типовой проект 903-1-225.86Типовой проект 903-1-225.86Типовой проект 903-1-225.86Типовой проект 903-1-225.86Типовой проект 903-1-225.86Типовой проект 903-1-225.86Типовой проект 903-1-225.86Типовой проект 903-1-225.86Типовой проект 903-1-225.86Типовой проект 903-1-225.86Типовой проект 903-1-225.86Типовой проект 903-1-225.86Типовой проект 903-1-225.86Типовой проект 903-1-225.86Типовой проект 903-1-225.86Типовой проект 903-1-225.86Типовой проект 903-1-225.86Типовой проект 903-1-225.86Типовой проект 903-1-225.86Типовой проект 903-1-225.86Типовой проект 903-1-225.86Типовой проект 903-1-225.86Типовой проект 903-1-225.86Типовой проект 903-1-225.86Типовой проект 903-1-225.86Типовой проект 903-1-225.86Типовой проект 903-1-225.86

© 2013 Ёшкин Кот :-) Карта сайта