Информационная система
«Ёшкин Кот»

Скачать базу одним архивом
Скачать обновления
История создания базы
Карта сайта

Скачать Типовой проект 903-1-225.86 Альбом 10.5. Металлоконструкции топливоподачи. Конвейер ленточный № 3 (из ТП 903-1-224.86)

Дата актуализации: 10.08.2017

Типовой проект 903-1-225.86

Альбом 10.5. Металлоконструкции топливоподачи. Конвейер ленточный № 3 (из ТП 903-1-224.86)

Обозначение: Типовой проект 903-1-225.86
Обозначение англ: 903-1-225.86
Статус:действует
Название рус.:Альбом 10.5. Металлоконструкции топливоподачи. Конвейер ленточный № 3 (из ТП 903-1-224.86)
Дата добавления в базу:01.09.2013
Дата актуализации:05.05.2017
Оглавление:ТП 903-1-224.86 Содержание альбома
ТП 903-1-224.86 14.03.00.000 Конвейер ленточный желобчатый наклонный 8063-100 L=66100 № 3
ТП 903-1-224.86 14.03.00.000 СБ Конвейер ленточный желобчатый наклонный 8063-100 L=66100 № 3. Сборочный чертеж
ТП 903-1-224.86 14.03.01.000 Воронка верхняя
ТП 903-1-224.86 14.03.01.001 Стенка
ТП 903-1-224.86 14.03.01.002 Стенка
ТП 903-1-224.86 14.03.01.003 Стенка
ТП 903-1-224.86 14.03.01.000 СБ Воронка верхняя. Сборочный чертеж
ТП 903-1-224.86 14.03.02.000 Воронка нижняя
ТП 903-1-224.86 14.03.03.000 Воронка средняя
ТП 903-1-224.86 14.03.02.000 СБ Воронка нижняя. Сборочный чертеж
ТП 903-1-224.86 14.03.03.000 СБ Воронка средняя. Сборочный чертеж
ТП 903-1-224.86 14.03.03.001 Стенка
ТП 903-1-224.86 14.03.03.002 Стенка
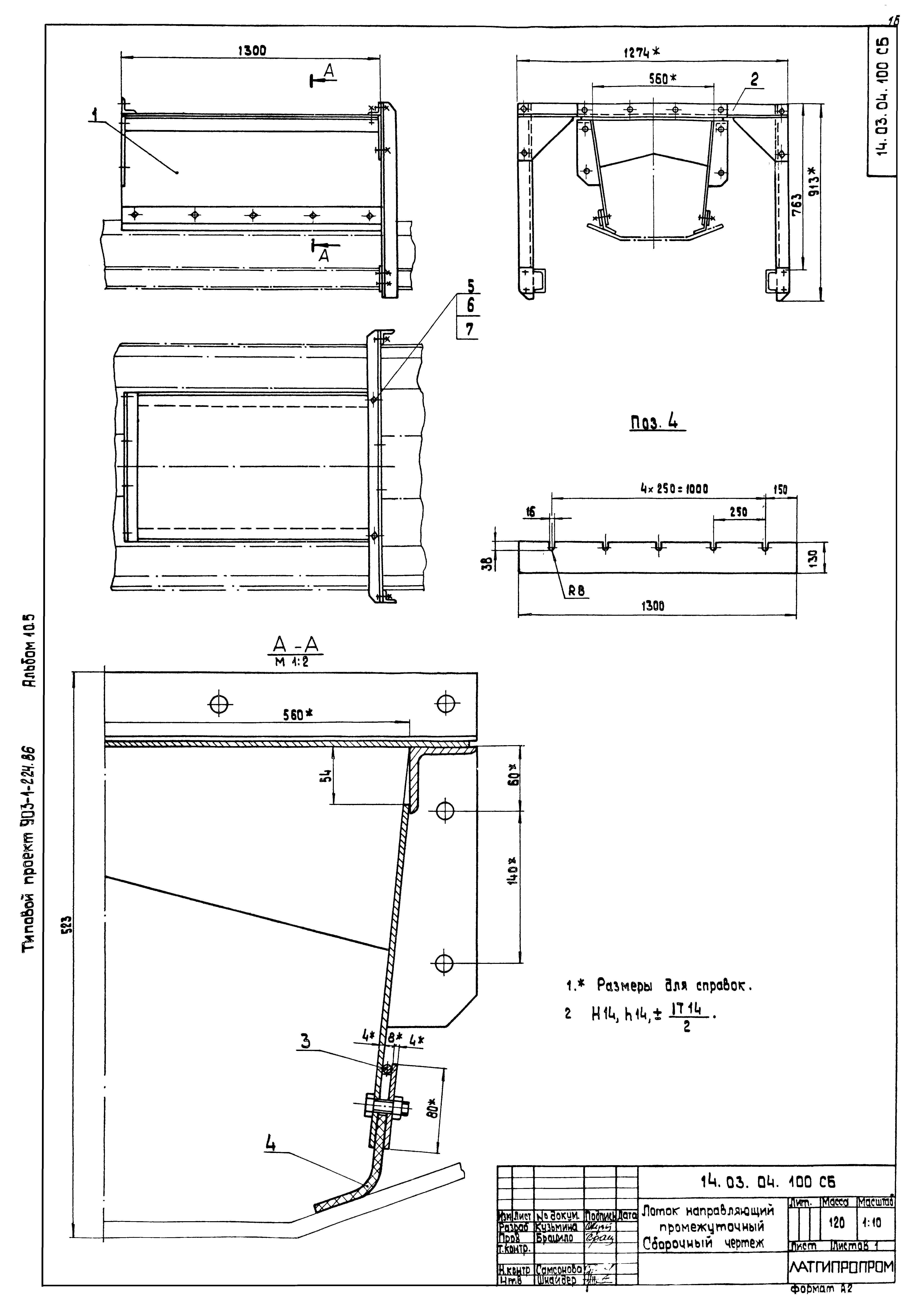
ТП 903-1-224.86 14.03.04.000 Лоток загрузочный
ТП 903-1-224.86 14.03.04.100 Лоток направляющий промежуточный
ТП 903-1-224.86 14.03.04.000 СБ Лоток загрузочный. Сборочный чертеж
ТП 903-1-224.86 14.03.04.100 СБ Лоток направляющий промежуточный. Сборочный чертеж
ТП 903-1-224.86 14.03.04.110 Корпус
ТП 903-1-224.86 14.03.04.111 Боковина
ТП 903-1-224.86 14.03.04.110 СБ Корпус. Сборочный чертеж
ТП 903-1-224.86 14.03.04.112 Диафрагма
ТП 903-1-224.86 14.03.04.113 Уголок
ТП 903-1-224.86 14.03.04.120 Прижим боковой
ТП 903-1-224.86 14.03.04.120 СБ Прижим боковой. Сборочный чертеж
ТП 903-1-224.86 14.03.04.200 Патрубок
ТП 903-1-224.86 14.03.04.201 Корпус
ТП 903-1-224.86 14.03.04.200 СБ Патрубок. Сборочный чертеж
ТП 903-1-224.86 14.03.05.000 СБ Металлоконструкция конвейера. Сборочный чертеж
ТП 903-1-224.86 14.03.05.000 Металлоконструкция конвейера
ТП 903-1-224.86 14.03.05.100 Секция головная
ТП 903-1-224.86 14.03.05.100 СБ Секция головная. Сборочный чертеж
ТП 903-1-224.86 14.03.05.200 Секция загрузочная
ТП 903-1-224.86 14.03.05.200 СБ Секция загрузочная. Сборочный чертеж
ТП 903-1-224.86 14.03.05.300 Секция средней части L=4800
ТП 903-1-224.86 14.03.05.300 СБ Секция средней части L=4800. Сборочный чертеж
ТП 903-1-224.86 14.03.05.400 Секция средней части L=6000
ТП 903-1-224.86 14.03.05.400 СБ Секция средней части L=6000. Сборочный чертеж
ТП 903-1-224.86 14.03.05.500 Стойка Н=560
ТП 903-1-224.86 14.03.05.501 Стойка
ТП 903-1-224.86 14.03.05.500 СБ Стойка Н=560. Сборочный чертеж
ТП 903-1-224.86 14.03.05.600 Стойка Н=845
ТП 903-1-224.86 14.03.05.601 Стойка
ТП 903-1-224.86 14.03.05.600 СБ Стойка Н=845. Сборочный чертеж
ТП 903-1-224.86 14.03.06.000 Ограждение каната
ТП 903-1-224.86 14.03.07.000 Ограждение конвейера и устройства аварийные выключающие в сборе
ТП 903-1-224.86 14.03.06.000 СБ Ограждение каната. Сборочный чертеж
ТП 903-1-224.86 14.03.07.000 СБ Ограждение конвейера и устройства аварийные выключающие в сборе. Сборочный чертеж
ТП 903-1-224.86 14.03.07.100 Кронштейн
ТП 903-1-224.86 14.03.07.200 Кронштейн
ТП 903-1-224.86 14.03.07.100 СБ Кронштейн. Сборочный чертеж
ТП 903-1-224.86 14.03.07.200 СБ Кронштейн. Сборочный чертеж
ТП 903-1-224.86 14.03.07.201 Косынка
ТП 903-1-224.86 14.03.07.300 Кронштейн
ТП 903-1-224.86 14.03.07.300 СБ Кронштейн. Сборочный чертеж
ТП 903-1-224.86 14.03.07.400 Панель ограждения
ТП 903-1-224.86 14.03.07.401 Стойка
ТП 903-1-224.86 14.03.07.400 СБ Панель ограждения. Сборочный чертеж
ТП 903-1-224.86 14.03.08.000 Ограждение муфты
ТП 903-1-224.86 14.03.08.001 Обечайка
ТП 903-1-224.86 14.03.08.000 СБ Ограждение муфты. Сборочный чертеж
ТП 903-1-224.86 14.03.09.000 Ограждение муфты
ТП 903-1-224.86 14.03.09.001 Обечайка
ТП 903-1-224.86 14.03.09.000 СБ Ограждение муфты. Сборочный чертеж
ТП 903-1-224.86 14.03.10.000 Рама блоков в сборе
ТП 903-1-224.86 14.03.10.000 СБ Рама блоков в сборе. Сборочный чертеж
ТП 903-1-224.86 14.03.10.100 Рама блоков
ТП 903-1-224.86 14.03.10.100 СБ Рама блоков. Сборочный чертеж
ТП 903-1-224.86 14.03.11.000 Рама натяжки
ТП 903-1-224.86 14.03.11.001 Балка
ТП 903-1-224.86 14.03.11.002 Косынка
ТП 903-1-224.86 14.03.11.000 СБ Рама натяжки. Сборочный чертеж
ТП 903-1-224.86 14.03.12.000 Рама приводного барабана
ТП 903-1-224.86 14.03.12.001 Бобышка
ТП 903-1-224.86 14.03.12.000 СБ Рама приводного барабана. Сборочный чертеж
ТП 903-1-224.86 14.03.12.002 Бобышка
ТП 903-1-224.86 14.03.12.003 Косынка
ТП 903-1-224.86 14.03.12.004 Косынка
ТП 903-1-224.86 14.03.12.005 Косынка
ТП 903-1-224.86 14.03.12.006 Косынка
ТП 903-1-224.86 14.03.12.007 Кронштейн
ТП 903-1-224.86 14.03.12.008 Кронштейн
ТП 903-1-224.86 14.03.12.009 Косынка
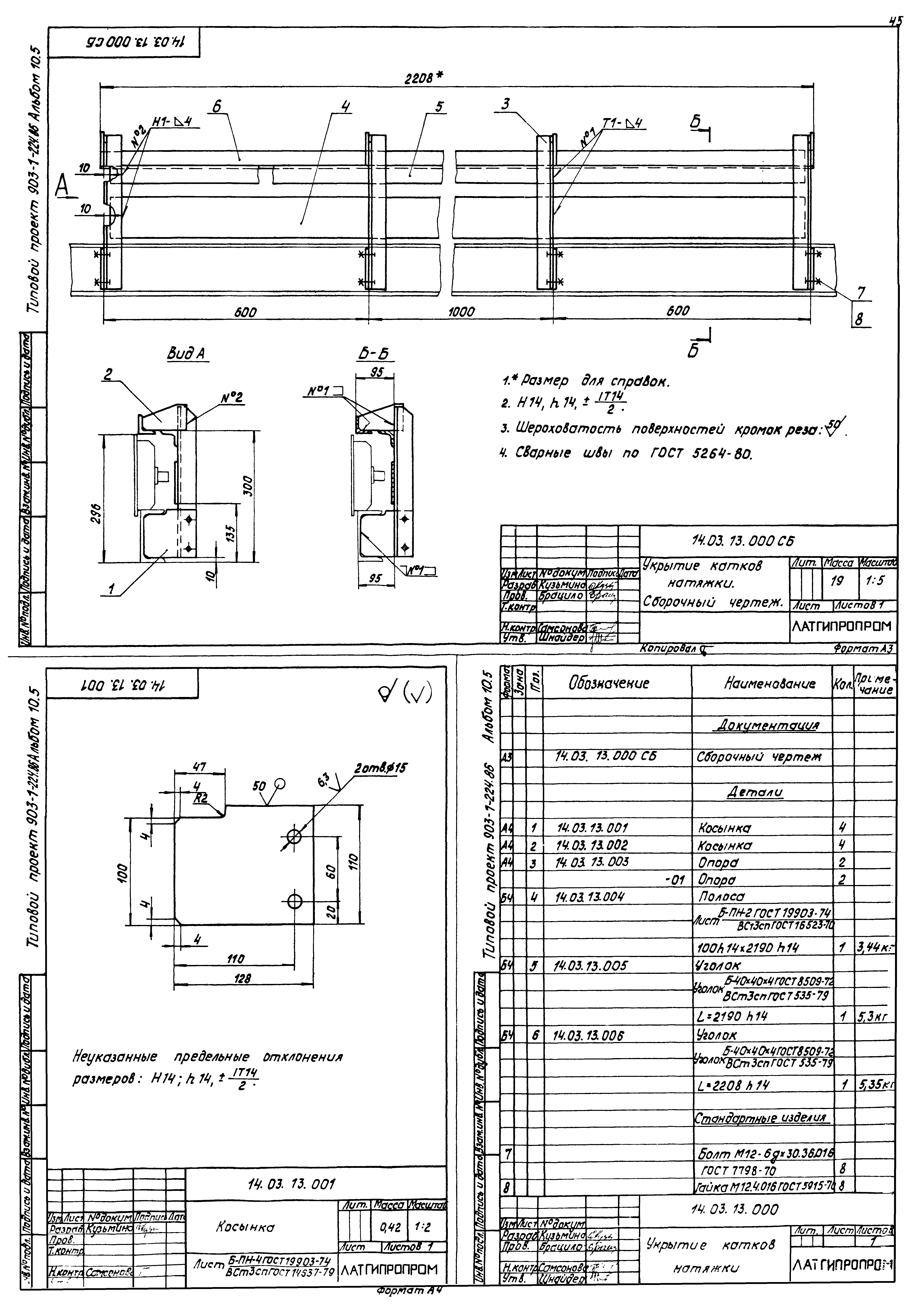
ТП 903-1-224.86 14.03.13.000 Укрытие катков натяжки
ТП 903-1-224.86 14.03.13.001 Косынка
ТП 903-1-224.86 14.03.13.000 СБ Укрытие катков натяжки. Сборочный чертеж
ТП 903-1-224.86 14.03.13.002 Косынка
ТП 903-1-224.86 14.03.13.003 Опора
ТП 903-1-224.86 14.03.14.000 Укрытие натяжки
ТП 903-1-224.86 14.03.14.001 Боковина
ТП 903-1-224.86 14.03.14.000 СБ Укрытие натяжки. Сборочный чертеж
ТП 903-1-224.86 14.03.14.002 Лист верхний
ТП 903-1-224.86 14.03.15.000 Укрытие приводного барабана
ТП 903-1-224.86 14.03.15.100 Связь поперечная
ТП 903-1-224.86 14.03.15.100 СБ Связь поперечная. Сборочный чертеж
ТП 903-1-224.86 14.03.15.001 Боковина
ТП 903-1-224.86 14.03.15.000 СБ Укрытие приводного барабана. Сборочный чертеж
ТП 903-1-224.86 14.03.15.002 Боковина
ТП 903-1-224.86 14.03.15.003 Косынка
ТП 903-1-224.86 14.03.15.004 Лист верхний
ТП 903-1-224.86 14.03.15.005 Завеса
ТП 903-1-224.86 14.03.15.006 Полоса
ТП 903-1-224.86 14.03.15.007 Петля
ТП 903-1-224.86 14.03.15.008 Уголок
Разработан: Латгипропром
Утверждён:20.05.1986 Госстрой СССР (Государственный комитет Совета Министров СССР по делам строительства) (USSR Gosstroy АЧ-30)
Расположен в:Техническая документация Строительство Справочные документы Типовые строительные конструкции, изделия и узлы Общероссийский строительный каталог Промышленные предприятия, здания и сооружения Здания и сооружения санитарно-технические Теплоснабжение Котельные установки Закрытые системы теплоснабжения Топливо - каменные и бурые угли
Типовой проект 903-1-225.86Типовой проект 903-1-225.86Типовой проект 903-1-225.86Типовой проект 903-1-225.86Типовой проект 903-1-225.86Типовой проект 903-1-225.86Типовой проект 903-1-225.86Типовой проект 903-1-225.86Типовой проект 903-1-225.86Типовой проект 903-1-225.86Типовой проект 903-1-225.86Типовой проект 903-1-225.86Типовой проект 903-1-225.86Типовой проект 903-1-225.86Типовой проект 903-1-225.86Типовой проект 903-1-225.86Типовой проект 903-1-225.86Типовой проект 903-1-225.86Типовой проект 903-1-225.86Типовой проект 903-1-225.86Типовой проект 903-1-225.86Типовой проект 903-1-225.86Типовой проект 903-1-225.86Типовой проект 903-1-225.86Типовой проект 903-1-225.86Типовой проект 903-1-225.86Типовой проект 903-1-225.86Типовой проект 903-1-225.86Типовой проект 903-1-225.86Типовой проект 903-1-225.86Типовой проект 903-1-225.86Типовой проект 903-1-225.86Типовой проект 903-1-225.86Типовой проект 903-1-225.86Типовой проект 903-1-225.86Типовой проект 903-1-225.86Типовой проект 903-1-225.86Типовой проект 903-1-225.86Типовой проект 903-1-225.86Типовой проект 903-1-225.86Типовой проект 903-1-225.86Типовой проект 903-1-225.86Типовой проект 903-1-225.86Типовой проект 903-1-225.86Типовой проект 903-1-225.86Типовой проект 903-1-225.86Типовой проект 903-1-225.86Типовой проект 903-1-225.86Типовой проект 903-1-225.86Типовой проект 903-1-225.86Типовой проект 903-1-225.86Типовой проект 903-1-225.86Типовой проект 903-1-225.86

© 2013 Ёшкин Кот :-) Карта сайта