Информационная система
«Ёшкин Кот»

Скачать базу одним архивом
Скачать обновления
История создания базы
Карта сайта

Скачать Типовой проект 903-1-225.86 Альбом 2.6. Строительно-технологическая блок-секция котлоагрегата КЕ-10-14С. Тепломеханическая часть (вариант без воздухоподогревателя) (из ТП 903-1-224.86)

Дата актуализации: 10.08.2017

Типовой проект 903-1-225.86

Альбом 2.6. Строительно-технологическая блок-секция котлоагрегата КЕ-10-14С. Тепломеханическая часть (вариант без воздухоподогревателя) (из ТП 903-1-224.86)

Обозначение: Типовой проект 903-1-225.86
Обозначение англ: 903-1-225.86
Статус:действует
Название рус.:Альбом 2.6. Строительно-технологическая блок-секция котлоагрегата КЕ-10-14С. Тепломеханическая часть (вариант без воздухоподогревателя) (из ТП 903-1-224.86)
Дата добавления в базу:01.10.2014
Дата актуализации:05.05.2017
Оглавление:Основной комплект рабочих чертежей марки ТМ6
   Общие данные
   Ведомость теплоизоляционных конструкций и антикоррозийных покрытий
   Блок-секция котлоагрегата КЕ-10-14С. Вид сверху. План Б-Б
   Блок-секция котлоагрегата КЕ-10-14С. Разрез А-А
   Воздуховоды котла КЕ-10-14С. Разрез Б-Б. Фланцы
   Воздуховоды котла КЕ-10-14С. План А-А. Разрезы В-В, Д-Д, Е-Е
   Воздуховоды котла КЕ-10-14С. Разрез Г-Г
   Газоходы котла КЕ-10-14С. Вид сверху. Разрез В-В. Фланцы
   Газоходы котла КЕ-10-14С. Разрез А-А
   Газоходы котла КЕ-10-14С. Разрез Б-Б. Узлы I, II
   Трубопроводы пара и выхлопа. Вид сверху. Разрезы А-А, Б-Б
   Аксонометрическая схема обвязки котлоагрегата КЕ-10-14С
   Подъемник ПСК для шлакоудаления. План. Таблица комплектации и характеристика
   Подъемник ПСК для шлакоудаления. Узлы I, II. Разрезы А-А, Б-Б, Е-Е
   Подъемник ПСК для шлакоудаления. Узел III. Разрезы В-В, Г-Г, Д-Д, К-К, Л-Л
   Подъемник ПСК для шлакоудаления. Принципиальная схема монтажа каната
   Топливоподача и золошлакоудаление. Общий вид
   Топливоподача и золошлакоудаление. Разрезы А-А, Б-Б, Г-Г, Е-Е, З-З, Ж-Ж, К-К, Л-Л
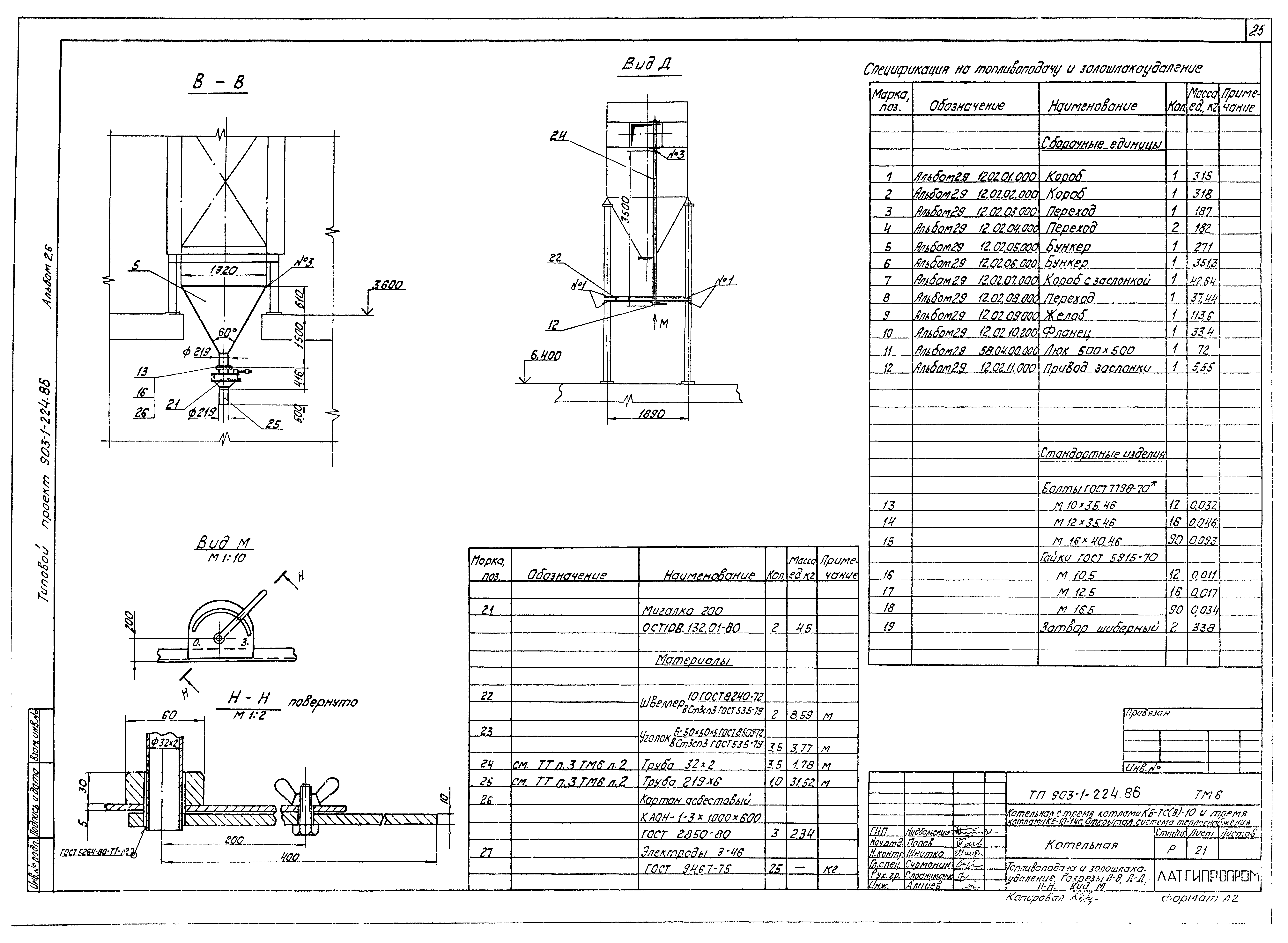
   Топливоподача и золошлакоудаление. Разрезы В-В, Д-Д, Н-Н. Вид М
   Обмуровка предтопка и шлакового бункера. Общий вид. Разрез А-А. Узел I
Разработан: Латгипропром
Утверждён:20.05.1986 Госстрой СССР (Государственный комитет Совета Министров СССР по делам строительства) (USSR Gosstroy АЧ-29)
Расположен в:Техническая документация Строительство Справочные документы Типовые строительные конструкции, изделия и узлы Общероссийский строительный каталог Промышленные предприятия, здания и сооружения Здания и сооружения санитарно-технические Теплоснабжение Котельные установки Закрытые системы теплоснабжения Топливо - каменные и бурые угли
Типовой проект 903-1-225.86Типовой проект 903-1-225.86Типовой проект 903-1-225.86Типовой проект 903-1-225.86Типовой проект 903-1-225.86Типовой проект 903-1-225.86Типовой проект 903-1-225.86Типовой проект 903-1-225.86Типовой проект 903-1-225.86Типовой проект 903-1-225.86Типовой проект 903-1-225.86Типовой проект 903-1-225.86Типовой проект 903-1-225.86Типовой проект 903-1-225.86Типовой проект 903-1-225.86Типовой проект 903-1-225.86Типовой проект 903-1-225.86Типовой проект 903-1-225.86Типовой проект 903-1-225.86Типовой проект 903-1-225.86Типовой проект 903-1-225.86Типовой проект 903-1-225.86Типовой проект 903-1-225.86Типовой проект 903-1-225.86Типовой проект 903-1-225.86Типовой проект 903-1-225.86Типовой проект 903-1-225.86Типовой проект 903-1-225.86

© 2013 Ёшкин Кот :-) Карта сайта