Информационная система
«Ёшкин Кот»

Скачать базу одним архивом
Скачать обновления
История создания базы
Карта сайта

Скачать Типовой проект 904-1-59.85 Альбом 5. Строительные конструкции и изделия

Дата актуализации: 10.08.2017

Типовой проект 904-1-59.85

Альбом 5. Строительные конструкции и изделия

Обозначение: Типовой проект 904-1-59.85
Обозначение англ: 904-1-59.85
Статус:действует
Название рус.:Альбом 5. Строительные конструкции и изделия
Дата добавления в базу:01.09.2013
Дата актуализации:05.05.2017
Дата введения:20.11.1984
Оглавление:ТП 904-1-59.85-КЖИ-100 Балка 1БСД9-4АТVТ-1
ТП 904-1-59.85-КЖИ-200 Колонна К54-7-1
ТП 904-1-59.85-КЖИ-201 Колонна К54-7-3
ТП 904-1-59.85-КЖИ-202 Колонна К54-7-2
ТП 904-1-59.85-КЖИ-203 Колонна КФ9-1-1
ТП 904-1-59.85-КЖИ-300 Плита покрытия (1ПГ-2АТVIТ-60-МПЖ-200П-1,1ПГ-2АТVI-60-МПЖ-200П-2)
ТП 904-1-59.85-КЖИ-301 Плита покрытия 1ПВ-2АТVIТ-60-МПЖ-200П-1
ТП 904-1-59.85-КЖИ-406 Панель стеновая (ПС295.12.20-П-1,ПС295.18.20-П-1)
ТП 904-1-59.85-КЖИ-400 Панель стеновая ПС600.12.20-П-3-2
ТП 904-1-59.85-КЖИ-401 Панель стеновая ПС600.12.20-П-3-1
ТП 904-1-59.85-КЖИ-402 Панель стеновая ПС600.18.20-П-3-1
ТП 904-1-59.85-КЖИ-405 Панель стеновая ПС600.18.20-П-3-2
ТП 904-1-59.85-КЖИ-403 Панель стеновая ПС625.18.20-П-21-1
ТП 904-1-59.85-КЖИ-404 Панель стеновая ПС625.12.20-П-21-1
ТП 904-1-59.85-КЖИ-ПС1 Панель стеновая ПС1
ТП 904-1-59.85-КЖИ-ПС2 Панель стеновая (ПС2,ПС2-1)
ТП 904-1-59.85-КЖИ-ПС3 Панель стеновая ПС3
ТП 904-1-59.85-КЖИ-ПС4 Панель стеновая ПС4
ТП 904-1-59.85-КЖИ-ФБ1 Фундаментная балка ФБ1
ТП 904-1-59.85-КЖИ-П7д-3-1 Плита (П7д-3-1,П10д-3-1,П14д-3-1)
ТП 904-1-59.85-КЖИ-П26-3-1 Плита (П26-3-1,П26-3-2)
ТП 904-1-59.85-КЖИ-Л34-3-1 Лоток Л34-3-1
ТП 904-1-59.85-КЖИ-Л34-3-2 Лоток Л34-3-2
ТП 904-1-59.85-КЖИ-Л34-3-3 Лоток Л34-3-3
ТП 904-1-59.85-КЖИ-Л34-3-4 Лоток Л34-3-4
ТП 904-1-59.85-КЖИ-Л34-3-5 Лоток Л34-3-5
ТП 904-1-59.85-КЖИ-Л34-3-6 Лоток Л34-3-6
ТП 904-1-59.85-КЖИ-Л7д-5-1 Лоток Л7д-5-1
ТП 904-1-59.85-КЖИ-Л9д-5-1 Лоток (Л9д-5-1,Л21д-3-1)
ТП 904-1-59.85-КЖИ-1Л7д-5-200 Лоток Л7д-5-2
ТП 904-1-59.85-КЖИ-КЦП1-20-1-1 Плита перекрытия КЦП1-20-1-1
ТП 904-1-59.85-КЖИ-ТТ Технические требования к изготовлению арматурных и закладных изделий
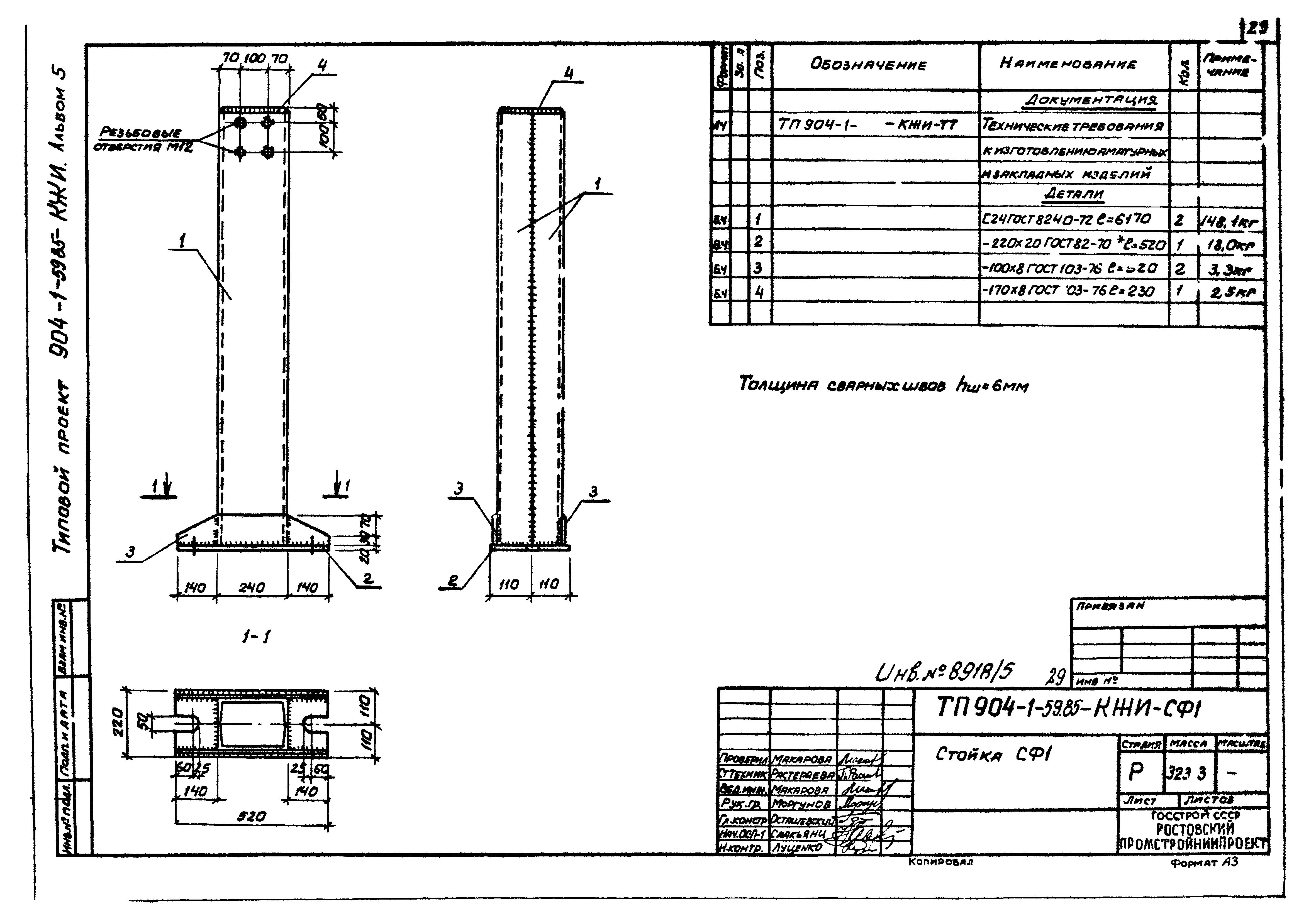
ТП 904-1-59.85-КЖИ-СФ1 Стойка СФ1
ТП 904-1-59.85-КЖИ-МС1 Изделие соединительное МС1
ТП 904-1-59.85-КЖИ-МС2 Изделие соединительное МС2
ТП 904-1-59.85-КЖИ-МС3 Изделие соединительное (МС3,МС4)
ТП 904-1-59.85-КЖИ-МС5 Изделие соединительное МС5
ТП 904-1-59.85-КЖИ-МС6 Изделие соединительное МС6
ТП 904-1-59.85-КЖИ-МС7 Изделие соединительное МС7
ТП 904-1-59.85-КЖИ-МС8 Изделие соединительное МС8
ТП 904-1-59.85-КЖИ-МС9 Изделие соединительное МС9
ТП 904-1-59.85-КЖИ-С1 Сетка арматурная (С1,С2)
ТП 904-1-59.85-КЖИ-МН1 Изделие закладное МН1
ТП 904-1-59.85-КЖИ-МН2 Изделие закладное МН2
ТП 904-1-59.85-КЖИ-МН3 Изделие закладное (МН3,МН4,МН5)
ТП 904-1-59.85-КЖИ-МН6 Изделие закладное (МН6,МН7,МН8)
ТП 904-1-59.85-КЖИ-МН9 Изделие закладное МН9
ТП 904-1-59.85-КЖИ-МН10 Изделие закладное МН10
ТП 904-1-59.85-КЖИ-КП1 Каркас пространственный КП1
ТП 904-1-59.85-КЖИ-КР1 Каркас плоский КР1
ТП 904-1-59.85-КЖИ-КР2 Каркас плоский (КР2-КР6)
ТП 904-1-59.85-КЖИ-КП2 Каркас пространственный (КП2-КП5)
ТП 904-1-59.85-КЖИ-Р1 Решетка (Р1,Р2)
ТП 904-1-59.85-КЖИ-Р3 Решетка Р3
ТП 904-1-59.85-КЖИ-Р4 Решетка Р4
ТП 904-1-59.85-КЖИ-Б1 Балка Б1
ТП 904-1-59.85-КЖИ-204 Колонна 1КФ61-1-1
Разработан: Ростовский Промстройниипроект Госстроя СССР
Утверждён:27.09.1984 Минстройдормаш (Minstroydormash 16/84)
Расположен в:Техническая документация Строительство Справочные документы Типовые строительные конструкции, изделия и узлы Общероссийский строительный каталог Промышленные предприятия, здания и сооружения Здания и сооружения санитарно-технические Воздухоснабжение, вентиляция и кондиционирование воздуха Воздухоснабжение
Заменяет собой:
Типовой проект 904-1-59.85Типовой проект 904-1-59.85Типовой проект 904-1-59.85Типовой проект 904-1-59.85Типовой проект 904-1-59.85Типовой проект 904-1-59.85Типовой проект 904-1-59.85Типовой проект 904-1-59.85Типовой проект 904-1-59.85Типовой проект 904-1-59.85Типовой проект 904-1-59.85Типовой проект 904-1-59.85Типовой проект 904-1-59.85Типовой проект 904-1-59.85Типовой проект 904-1-59.85Типовой проект 904-1-59.85Типовой проект 904-1-59.85Типовой проект 904-1-59.85Типовой проект 904-1-59.85Типовой проект 904-1-59.85Типовой проект 904-1-59.85Типовой проект 904-1-59.85Типовой проект 904-1-59.85Типовой проект 904-1-59.85Типовой проект 904-1-59.85Типовой проект 904-1-59.85Типовой проект 904-1-59.85Типовой проект 904-1-59.85Типовой проект 904-1-59.85Типовой проект 904-1-59.85Типовой проект 904-1-59.85Типовой проект 904-1-59.85Типовой проект 904-1-59.85Типовой проект 904-1-59.85Типовой проект 904-1-59.85Типовой проект 904-1-59.85Типовой проект 904-1-59.85Типовой проект 904-1-59.85Типовой проект 904-1-59.85Типовой проект 904-1-59.85Типовой проект 904-1-59.85Типовой проект 904-1-59.85Типовой проект 904-1-59.85Типовой проект 904-1-59.85

© 2013 Ёшкин Кот :-) Карта сайта