Информационная система
«Ёшкин Кот»

Скачать базу одним архивом
Скачать обновления
История создания базы
Карта сайта

Скачать Типовой проект 904-1-59.85 Альбом 1. Технология производства

Дата актуализации: 10.08.2017

Типовой проект 904-1-59.85

Альбом 1. Технология производства

Обозначение: Типовой проект 904-1-59.85
Обозначение англ: 904-1-59.85
Статус:действует
Название рус.:Альбом 1. Технология производства
Дата добавления в базу:01.09.2013
Дата актуализации:05.05.2017
Оглавление:ТП 904-1-59.85 Титульный лист
ТП 904-1-59.85-ТХ Содержание
ТП 904-1-59.85-ПЗ Пояснительная записка (начало)
ТП 904-1-59.85-ПЗ Пояснительная записка (продолжение)
ТП 904-1-59.85-ПЗ Пояснительная записка (окончание)
ТП 904-1-59.85-ТХ-1 Общие данные (начало)
ТП 904-1-59.85-ТХ-2 Общие данные (окончание)
ТП 904-1-59.85-ТХ-3 План расположения оборудования
ТП 904-1-59.85-ТХ-4 План расположения оборудования
ТП 904-1-59.85-ТХ-5 План расположения оборудования
ТП 904-1-59.85-ТХ-6 План расположения оборудования. Разрез 1-1
ТП 904-1-59.85-ТХ-7 План расположения оборудования
ТП 904-1-59.85-ТХ-8 Схема комбинированная принципиальная компрессорного агрегата
ТП 904-1-59.85-ТХ-9 Схема комбинированная принципиальная компрессорной станции
ТП 904-1-59.85-ТХ-10 Схема комбинированная принципиальная компрессорной станции
ТП 904-1-59.85-ТХ-11 Схема комбинированная принципиальная компрессорной станции
ТП 904-1-59.85-ТХ-12 Условные обозначения
ТП 904-1-59.85-ТХ-13 Помещение для промывки и зарядки ячеек фильтров
ТП 904-1-59.85-ТХ-14,15 Трубопроводы компрессорного агрегата
ТП 904-1-59.85-ТХ-16 Трубопроводы концевого холодильника
ТП 904-1-59.85-ТХ-17 Трубопроводы воздухосборника
ТП 904-1-59.85-ТХ-18 Трубопроводы продувочного бака
ТП 904-1-59.85-ТХ-19 Трубопроводы компрессорной станции. План
ТП 904-1-59.85-ТХ-20 Трубопроводы компрессорной станции. План
ТП 904-1-59.85-ТХ-21 Трубопроводы компрессорной станции. План
ТП 904-1-59.85-ТХ-22,23 Трубопроводы компрессорной станции. План
ТП 904-1-59.85-ТХ-24-26 Трубопроводы компрессорной станции. Разрезы
ТП 904-1-59.85-ТХ-27-32 Спецификация оборудования, арматуры и монтажных материалов трубопроводов
ТП 904-1-59.85-ТХ-33,34 Ведомость теплоизоляционных конструкций
ТП 904-1-59.85-ТХ-35 Закладные элементы
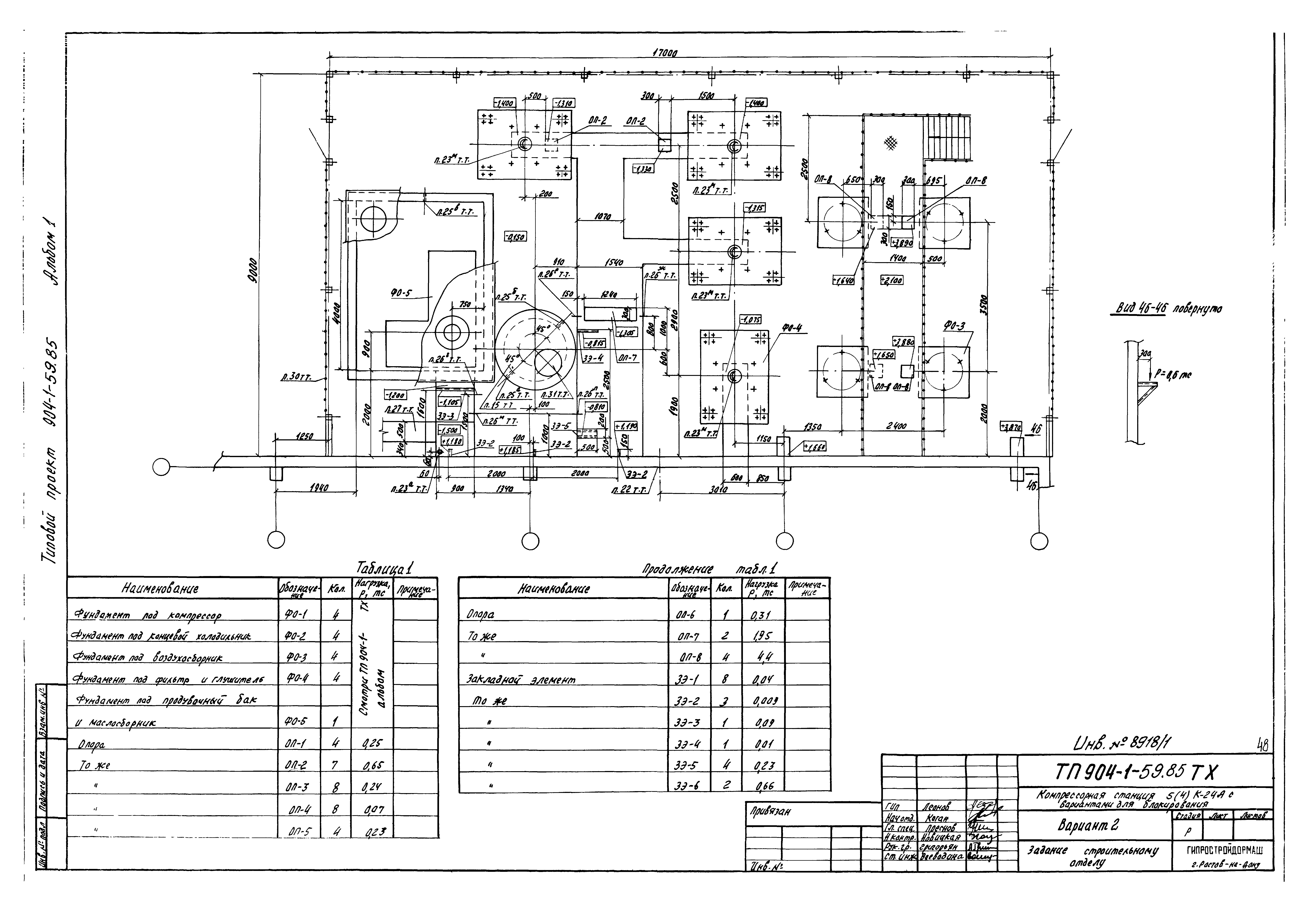
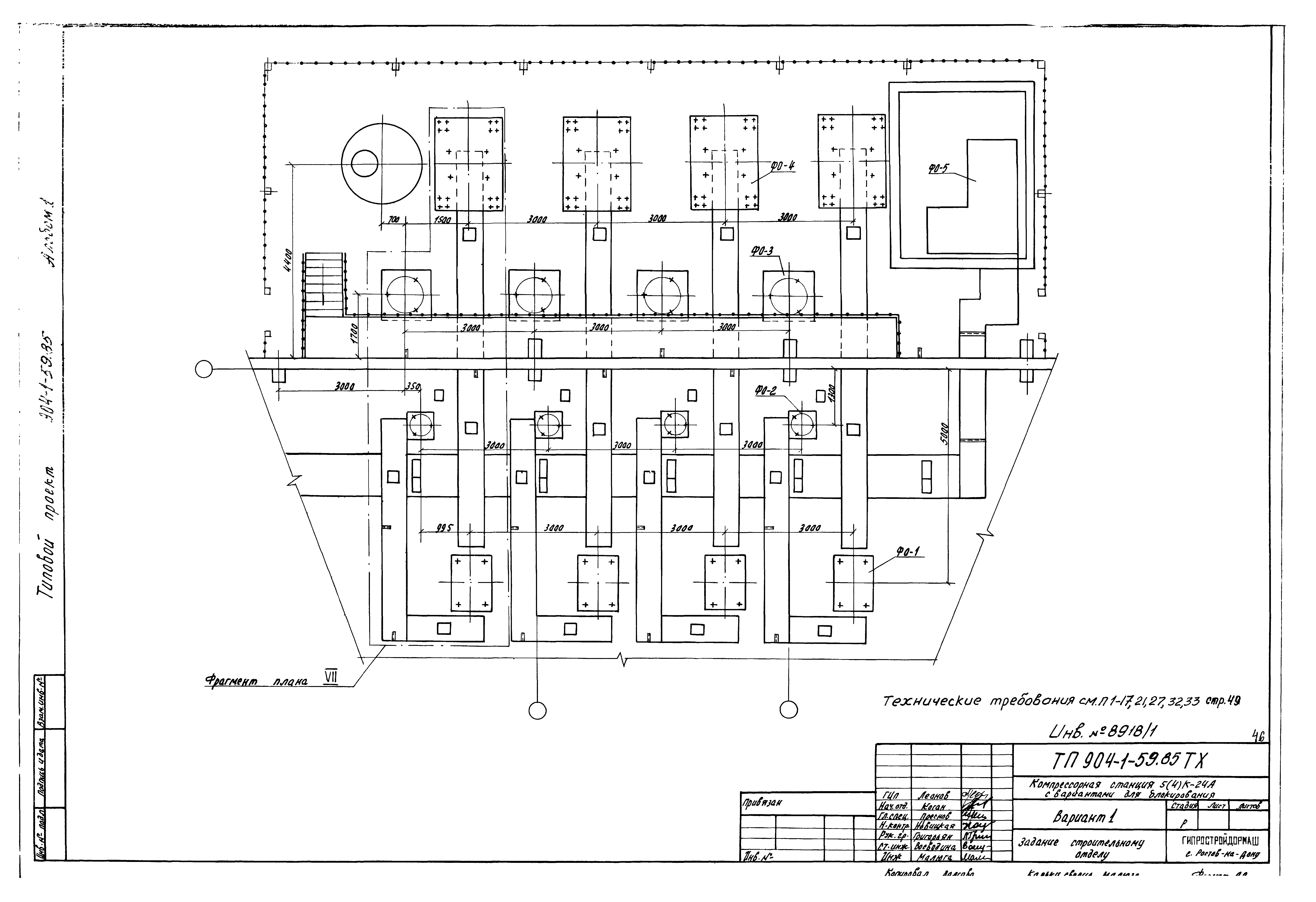
ТП 904-1-59.85-ТХ Задание строительному отделу
ТП 904-1-59.85-ТХ Задание на проектирование разделов ОВ,ВК
ТП 904-1-59.85 Опросный лист на кран
ТП 904-1-59.85 Опросный лист на вентиль
ТП 904-1-59.85-ТД-1 Пробка, ТД-1
ТП 904-1-59.85-ТД-2 Муфта, ТД-2
ТП 904-1-59.85-ТД-3 Патрубок, ТД-3
ТП 904-1-59.85-ТД-4 Опора, ТД-4
ТП 904-1-59.85-МС.00.000 Маслосборник, МС.00.000
ТП 904-1-59.85-ОМ.00.000 Опора под маслобаки, ОМ.00.000
ТП 904-1-59.85-ОК.00.000 Обратный клапан, ОК.00.000
ТП 904-1-59.85-ВП.00.000ИТ Ванна для промывки ячеек фильтров. Исходные требования, ВП.00.000ИТ
ТП 904-1-59.85-ВЗ.00.000.ИТ Ванна для зарядки ячеек фильтров. Исходные требования, ВЗ.00.000.ИТ
ТП 904-1-59.85-ВП.00.000.ЭЧ Ванна для промывки ячеек фильтров. Эскизный чертеж, ВП.00.000.ЭЧ
ТП 904-1-59.85-ВЗ.00.000.ЭЧ Ванна для зарядки ячеек фильтров. Эскизный чертеж, ВЗ.00.000.ЭЧ
ТП 904-1-59.85-БР.00.000.ИТ Бак для масла. Исходные требования, БР.00.000.ИТ
ТП 904-1-59.85-БР.00.000.ЭЧ Бак для масла. Эскизный чертеж, БР.00.000.ЭЧ
ТП 904-1-59.85-СО.00.000.ИТ Стол для отстоя ячеек фильтров. Исходные требования, СО.00.000.ИТ
ТП 904-1-59.85-СО.00.000.ЭЧ Стол для отстоя ячеек фильтров. Эскизный чертеж, СО.00.000.ЭЧ
ТП 904-1-59.85-УО.00.000.ИТ Установка для очистки трасс сжатого воздуха. Исходные требования. УО.00.000.ИТ
ТП 904-1-59.85-УО.00.000.ТО Установка для очистки трасс сжатого воздуха. Техническое описание. УО.00.000.ТО
ТП 904-1-59.85-УО.00.000.ЭЧ Установка для очистки трасс сжатого воздуха. Эскизный чертеж. УО.00.000.ЭЧ
ТП 904-1-59.85-БП.00.000.ИТ Бак продувочный. Исходные требования, БП.00.000.ИТ
ТП 904-1-59.85-БП.00.000.ТО Бак продувочный. Техническое описание, БП.00.000.ТО
ТП 904-1-59.85-БП.00.000.ЭЧ Бак продувочный. Эскизный чертеж, БП.00.000.ЭЧ
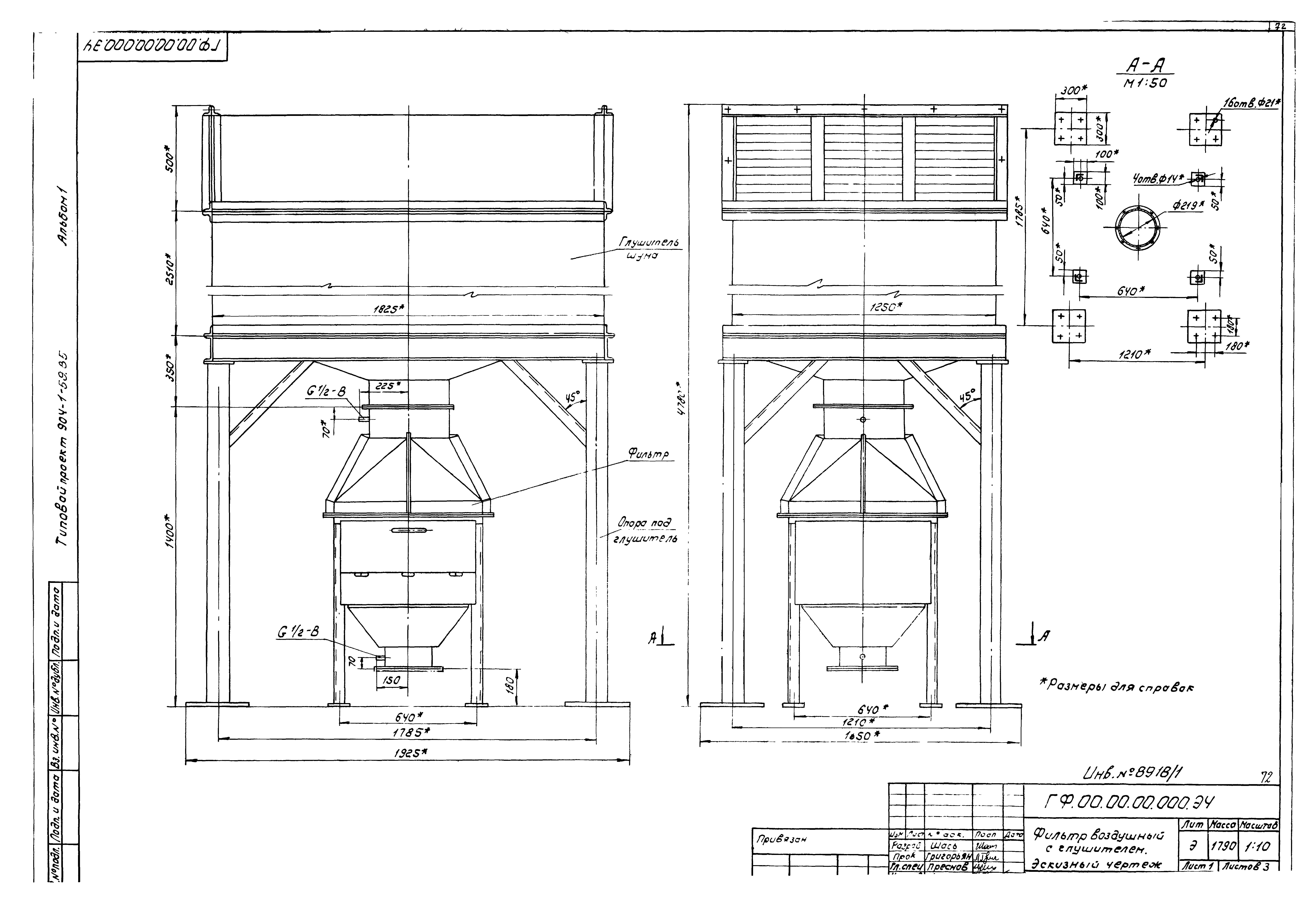
ТП 904-1-59.85-ГФ.00.00.00.000.ИТ Фильтр воздушный с глушителем. Исходные требования, ГФ.00.00.00.000.ИТ
ТП 904-1-59.85-ГШС.60.00.000.ИТ Глушитель шума стравливания. Исходные требования, ГШС.60.00.000.ИТ
ТП 904-1-59.85-ГФ.00.00.00.000.ЭЧ Фильтр воздушный с глушителем. Эскизный чертеж, ГФ.00.00.00.000.ЭЧ
Разработан: Гипростройдормаш
Утверждён:27.09.1984 Минстройдормаш (Minstroydormash 16/84)
Расположен в:Техническая документация Строительство Справочные документы Типовые строительные конструкции, изделия и узлы Общероссийский строительный каталог Промышленные предприятия, здания и сооружения Здания и сооружения санитарно-технические Воздухоснабжение, вентиляция и кондиционирование воздуха Воздухоснабжение
Заменяет собой:
Типовой проект 904-1-59.85Типовой проект 904-1-59.85Типовой проект 904-1-59.85Типовой проект 904-1-59.85Типовой проект 904-1-59.85Типовой проект 904-1-59.85Типовой проект 904-1-59.85Типовой проект 904-1-59.85Типовой проект 904-1-59.85Типовой проект 904-1-59.85Типовой проект 904-1-59.85Типовой проект 904-1-59.85Типовой проект 904-1-59.85Типовой проект 904-1-59.85Типовой проект 904-1-59.85Типовой проект 904-1-59.85Типовой проект 904-1-59.85Типовой проект 904-1-59.85Типовой проект 904-1-59.85Типовой проект 904-1-59.85Типовой проект 904-1-59.85Типовой проект 904-1-59.85Типовой проект 904-1-59.85Типовой проект 904-1-59.85Типовой проект 904-1-59.85Типовой проект 904-1-59.85Типовой проект 904-1-59.85Типовой проект 904-1-59.85Типовой проект 904-1-59.85Типовой проект 904-1-59.85Типовой проект 904-1-59.85Типовой проект 904-1-59.85Типовой проект 904-1-59.85Типовой проект 904-1-59.85Типовой проект 904-1-59.85Типовой проект 904-1-59.85Типовой проект 904-1-59.85Типовой проект 904-1-59.85Типовой проект 904-1-59.85Типовой проект 904-1-59.85Типовой проект 904-1-59.85Типовой проект 904-1-59.85Типовой проект 904-1-59.85Типовой проект 904-1-59.85Типовой проект 904-1-59.85Типовой проект 904-1-59.85Типовой проект 904-1-59.85Типовой проект 904-1-59.85Типовой проект 904-1-59.85Типовой проект 904-1-59.85Типовой проект 904-1-59.85Типовой проект 904-1-59.85Типовой проект 904-1-59.85Типовой проект 904-1-59.85Типовой проект 904-1-59.85Типовой проект 904-1-59.85Типовой проект 904-1-59.85Типовой проект 904-1-59.85Типовой проект 904-1-59.85Типовой проект 904-1-59.85Типовой проект 904-1-59.85Типовой проект 904-1-59.85Типовой проект 904-1-59.85Типовой проект 904-1-59.85Типовой проект 904-1-59.85Типовой проект 904-1-59.85Типовой проект 904-1-59.85Типовой проект 904-1-59.85Типовой проект 904-1-59.85Типовой проект 904-1-59.85Типовой проект 904-1-59.85Типовой проект 904-1-59.85Типовой проект 904-1-59.85Типовой проект 904-1-59.85Типовой проект 904-1-59.85Типовой проект 904-1-59.85

© 2013 Ёшкин Кот :-) Карта сайта