Информационная система
«Ёшкин Кот»

Скачать базу одним архивом
Скачать обновления
История создания базы
Карта сайта

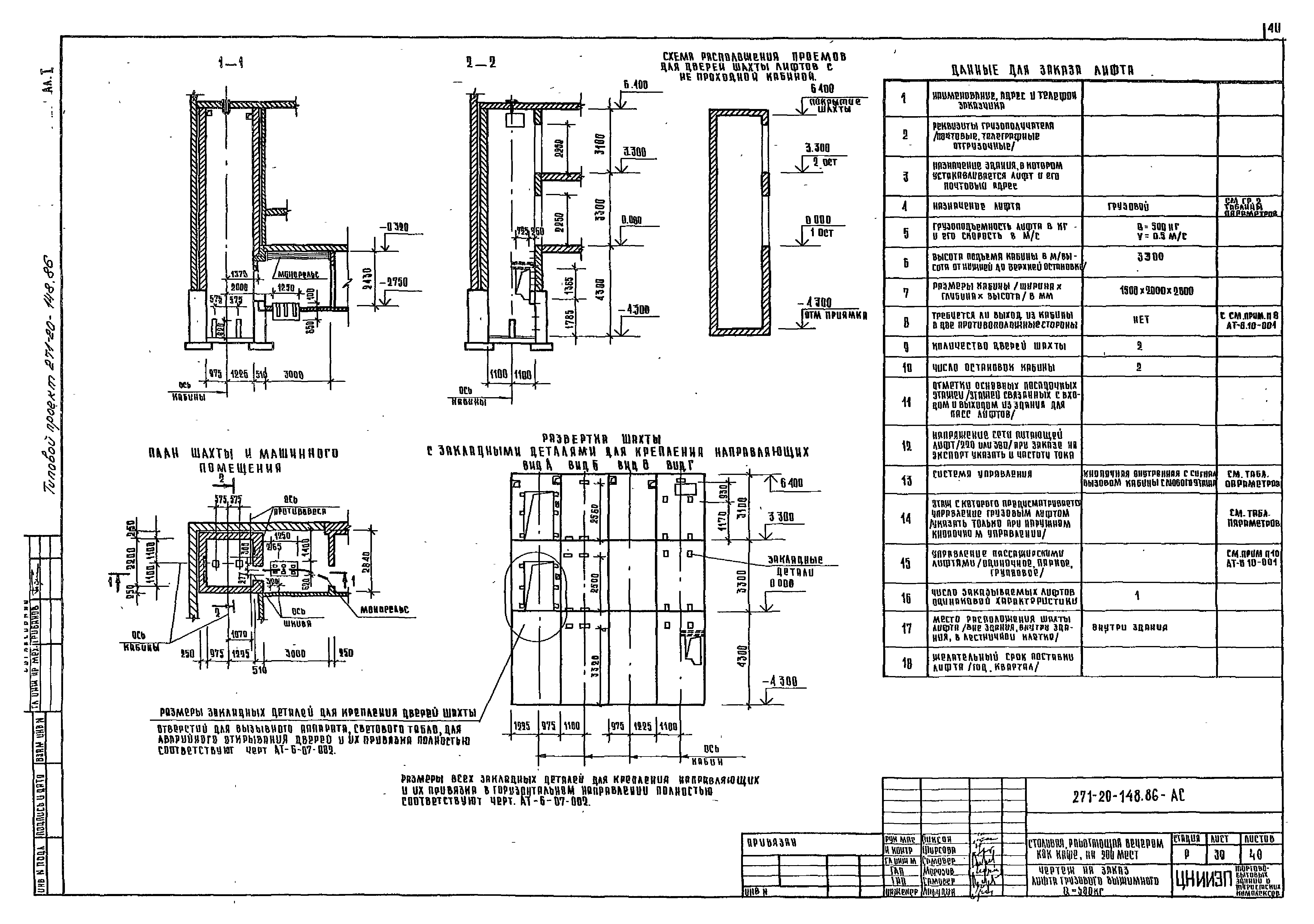
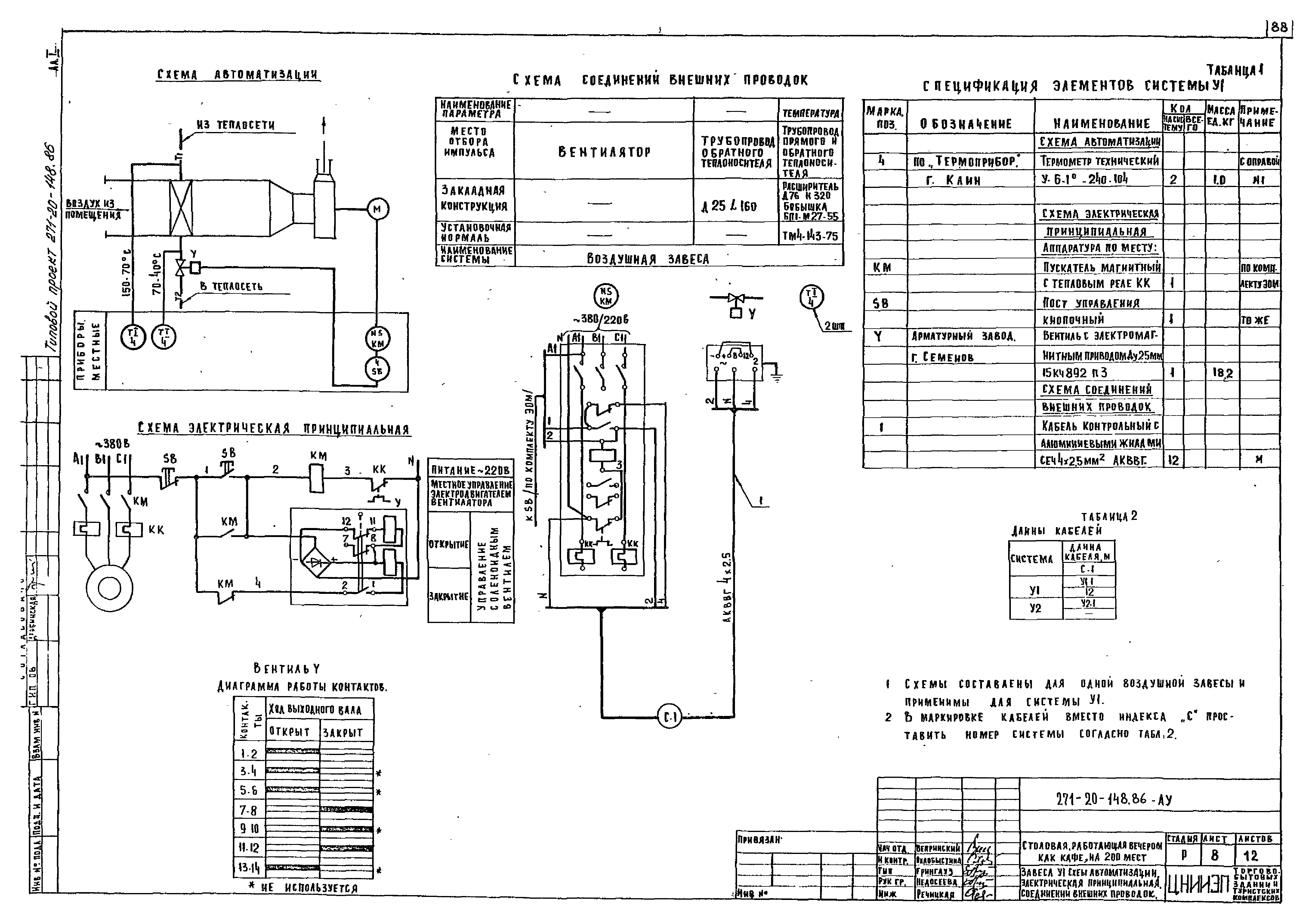
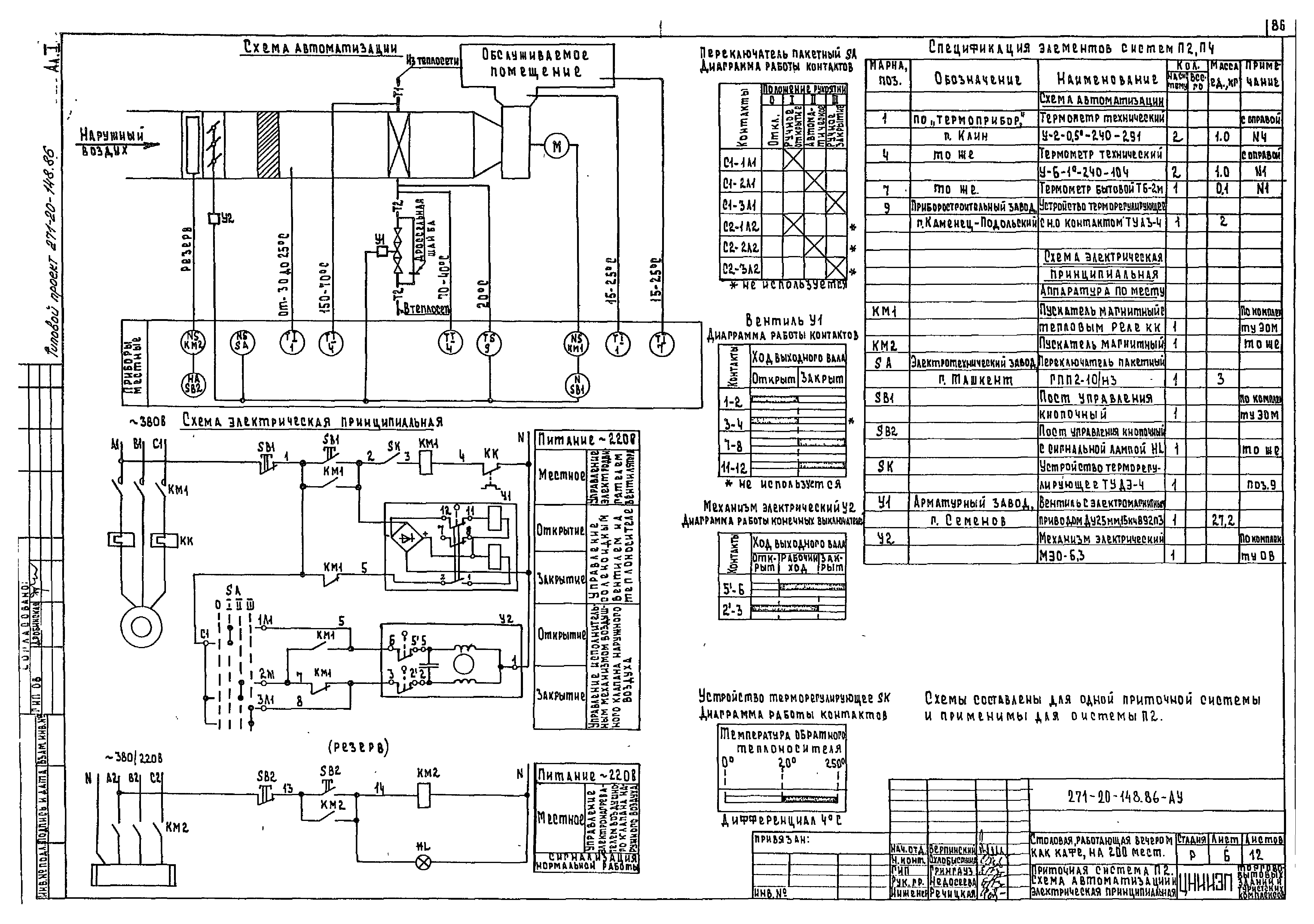
Скачать Типовой проект 271-20-148.86 Альбом I. Архитектурно-строительные решения. Технология и механизация. Отопление и вентиляция. Водопровод и канализация. Холодоснабжение. Электроосвещение и силовое электрооборудование. Автоматизация устройств инженерного оборудования. Связь и сигнализация

Дата актуализации: 10.08.2017

Типовой проект 271-20-148.86

Альбом I. Архитектурно-строительные решения. Технология и механизация. Отопление и вентиляция. Водопровод и канализация. Холодоснабжение. Электроосвещение и силовое электрооборудование. Автоматизация устройств инженерного оборудования. Связь и сигнализация

Обозначение: Типовой проект 271-20-148.86
Обозначение англ: 271-20-148.86
Статус:не определен законодательством
Название рус.:Альбом I. Архитектурно-строительные решения. Технология и механизация. Отопление и вентиляция. Водопровод и канализация. Холодоснабжение. Электроосвещение и силовое электрооборудование. Автоматизация устройств инженерного оборудования. Связь и сигнализация
Дата добавления в базу:01.09.2013
Дата актуализации:05.05.2017
Дата введения:14.03.1986
Разработан: ЦНИИЭП торгово-бытовых зданий и туристских комплексов
Утверждён:21.11.1984 Госгражданстрой (Gosgrazhdanstroy 342)
Расположен в:Техническая документация Строительство Справочные документы Типовые строительные конструкции, изделия и узлы Общероссийский строительный каталог Общественные здания в городах и поселках городского типа Предприятия торговли и общественного питания. Общественные центры Предприятия общественного питания Столовые
Типовой проект 271-20-148.86Типовой проект 271-20-148.86Типовой проект 271-20-148.86Типовой проект 271-20-148.86Типовой проект 271-20-148.86Типовой проект 271-20-148.86Типовой проект 271-20-148.86Типовой проект 271-20-148.86Типовой проект 271-20-148.86Типовой проект 271-20-148.86Типовой проект 271-20-148.86Типовой проект 271-20-148.86Типовой проект 271-20-148.86Типовой проект 271-20-148.86Типовой проект 271-20-148.86Типовой проект 271-20-148.86Типовой проект 271-20-148.86Типовой проект 271-20-148.86Типовой проект 271-20-148.86Типовой проект 271-20-148.86Типовой проект 271-20-148.86Типовой проект 271-20-148.86Типовой проект 271-20-148.86Типовой проект 271-20-148.86Типовой проект 271-20-148.86Типовой проект 271-20-148.86Типовой проект 271-20-148.86Типовой проект 271-20-148.86Типовой проект 271-20-148.86Типовой проект 271-20-148.86Типовой проект 271-20-148.86Типовой проект 271-20-148.86Типовой проект 271-20-148.86Типовой проект 271-20-148.86Типовой проект 271-20-148.86Типовой проект 271-20-148.86Типовой проект 271-20-148.86Типовой проект 271-20-148.86Типовой проект 271-20-148.86Типовой проект 271-20-148.86Типовой проект 271-20-148.86Типовой проект 271-20-148.86Типовой проект 271-20-148.86Типовой проект 271-20-148.86Типовой проект 271-20-148.86Типовой проект 271-20-148.86Типовой проект 271-20-148.86Типовой проект 271-20-148.86Типовой проект 271-20-148.86Типовой проект 271-20-148.86Типовой проект 271-20-148.86Типовой проект 271-20-148.86Типовой проект 271-20-148.86Типовой проект 271-20-148.86Типовой проект 271-20-148.86Типовой проект 271-20-148.86Типовой проект 271-20-148.86Типовой проект 271-20-148.86Типовой проект 271-20-148.86Типовой проект 271-20-148.86Типовой проект 271-20-148.86Типовой проект 271-20-148.86Типовой проект 271-20-148.86Типовой проект 271-20-148.86Типовой проект 271-20-148.86Типовой проект 271-20-148.86Типовой проект 271-20-148.86Типовой проект 271-20-148.86Типовой проект 271-20-148.86Типовой проект 271-20-148.86Типовой проект 271-20-148.86Типовой проект 271-20-148.86Типовой проект 271-20-148.86Типовой проект 271-20-148.86Типовой проект 271-20-148.86Типовой проект 271-20-148.86Типовой проект 271-20-148.86Типовой проект 271-20-148.86Типовой проект 271-20-148.86Типовой проект 271-20-148.86Типовой проект 271-20-148.86Типовой проект 271-20-148.86Типовой проект 271-20-148.86Типовой проект 271-20-148.86Типовой проект 271-20-148.86Типовой проект 271-20-148.86Типовой проект 271-20-148.86Типовой проект 271-20-148.86Типовой проект 271-20-148.86Типовой проект 271-20-148.86Типовой проект 271-20-148.86Типовой проект 271-20-148.86Типовой проект 271-20-148.86Типовой проект 271-20-148.86Типовой проект 271-20-148.86Типовой проект 271-20-148.86Типовой проект 271-20-148.86

© 2013 Ёшкин Кот :-) Карта сайта