Информационная система
«Ёшкин Кот»

Скачать базу одним архивом
Скачать обновления
История создания базы
Карта сайта

Скачать Типовой проект 320-4 Альбом II. Изделия заводского изготовления

Дата актуализации: 10.08.2017

Типовой проект 320-4

Альбом II. Изделия заводского изготовления

Обозначение: Типовой проект 320-4
Обозначение англ: 320-4
Статус:не определен законодательством
Название рус.:Альбом II. Изделия заводского изготовления
Дата добавления в базу:01.09.2013
Дата актуализации:05.05.2017
Дата введения:15.11.1965
Оглавление:ТП 320-4-АС-1 Технические условия
ТП 320-4-АС-2 Номенклатура камней
ТП 320-4-АС-3 Камень К-1
ТП 320-4-АС-4 Камень К-2. Камень К4
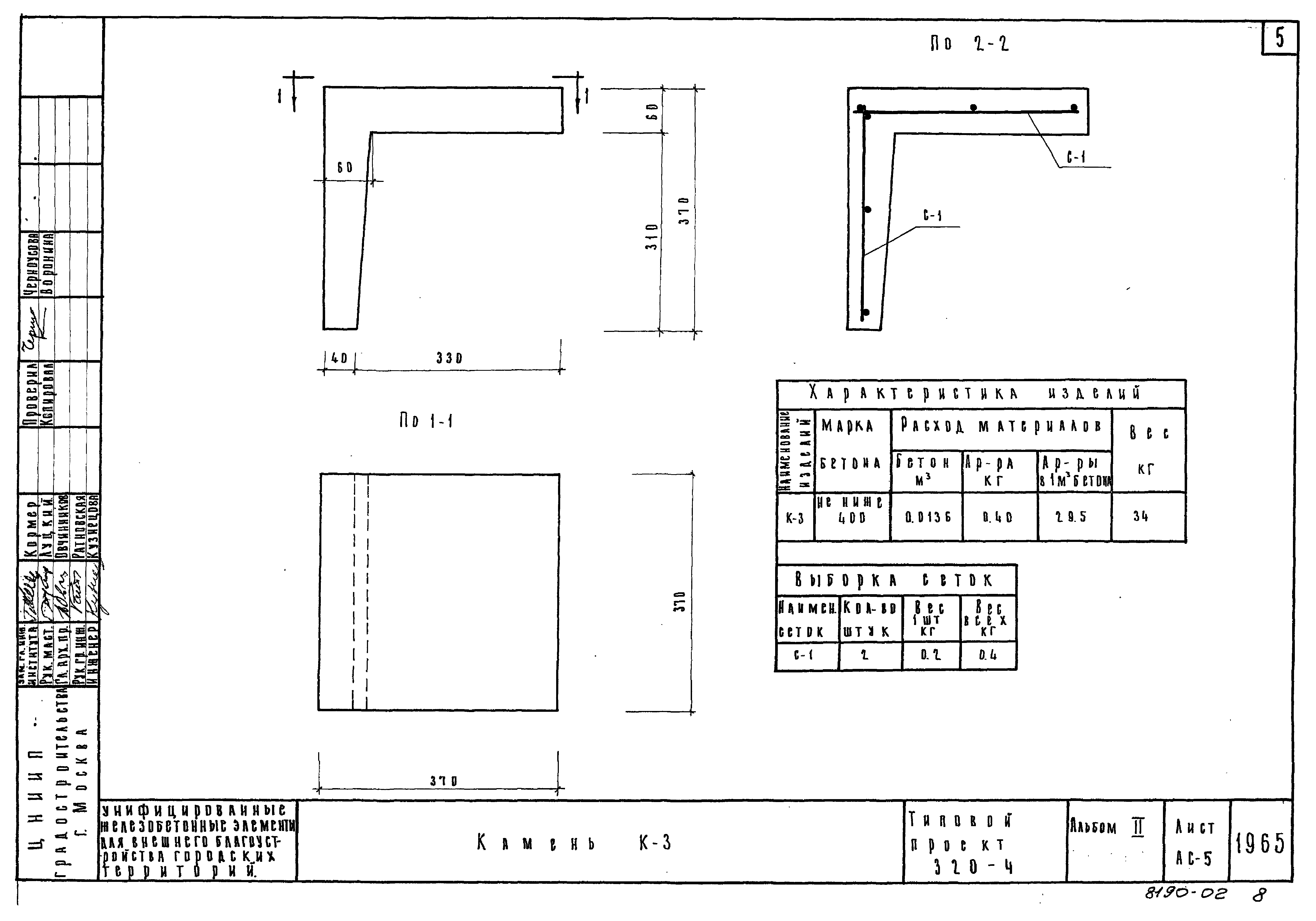
ТП 320-4-АС-5 Камень К-3
ТП 320-4-АС-6 Камень К-5
ТП 320-4-АС-7 Камень К-6
ТП 320-4-АС-8 Сетки С-1 и С-2
Разработан: ЦНИИП градостроительства
Утверждён:15.11.1965 ЦНИИП градостроительства Госгражданстроя (260)
Расположен в:Техническая документация Строительство Справочные документы Типовые строительные конструкции, изделия и узлы Общероссийский строительный каталог Малые формы архитектуры и элементы благоустройства Малые архитектурные формы Обработка поверхности земли
Типовой проект 320-4Типовой проект 320-4Типовой проект 320-4Типовой проект 320-4Типовой проект 320-4Типовой проект 320-4Типовой проект 320-4Типовой проект 320-4Типовой проект 320-4Типовой проект 320-4Типовой проект 320-4

© 2013 Ёшкин Кот :-) Карта сайта